S
Stockum201914.08.19 01:42Hallo zusammen,
Wir, Ehepaar und 2 Kinder wagen uns nach endloser Suche nun auch an einen Neubau. Für das Grundstück standen wir jahrelang auf der Warteliste. Es ist nicht ideal aufgrund der Ostausrichtung aber was anderes gibt es kaum. Nun geht die Planung los und es gibt 2 Varianten die als Grobplanung stehen, jetzt sollen wir uns für eine entscheiden und bitten im subjektive Meinungen bzw. Argumente pro/contra
Bebauungsplan/Einschränkungen
Größe des Grundstücks 576qm
Hang nein
Grundflächenzahl 0,4
Geschossflächenzahl 0,7
Baufenster, Baulinie und -grenze übliche 3m zu den Nachbarn, 1,5 von der Straße
Randbebauung ? Nur Einfamilienhaus
Anzahl Stellplatz 9m Garage plus Stellplatz davor
Geschossigkeit 2
Dachform Satteldach 35grad
Stilrichtung modern
Ausrichtung Ost
Maximale Höhen/Begrenzungen
weitere Vorgaben
Anforderungen der Bauherren
Stilrichtung, Dachform, Gebäudetyp
Keller nein Geschosse 2
Anzahl der Personen, Alter 4 (33,33, 3 und 1)
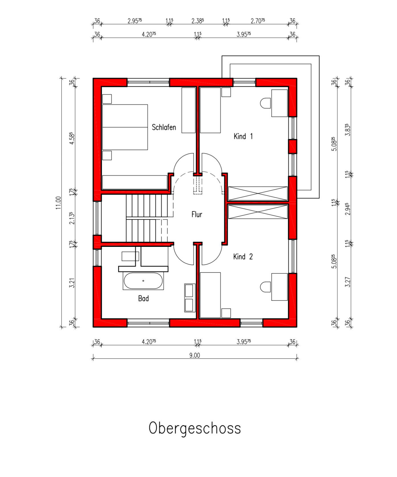
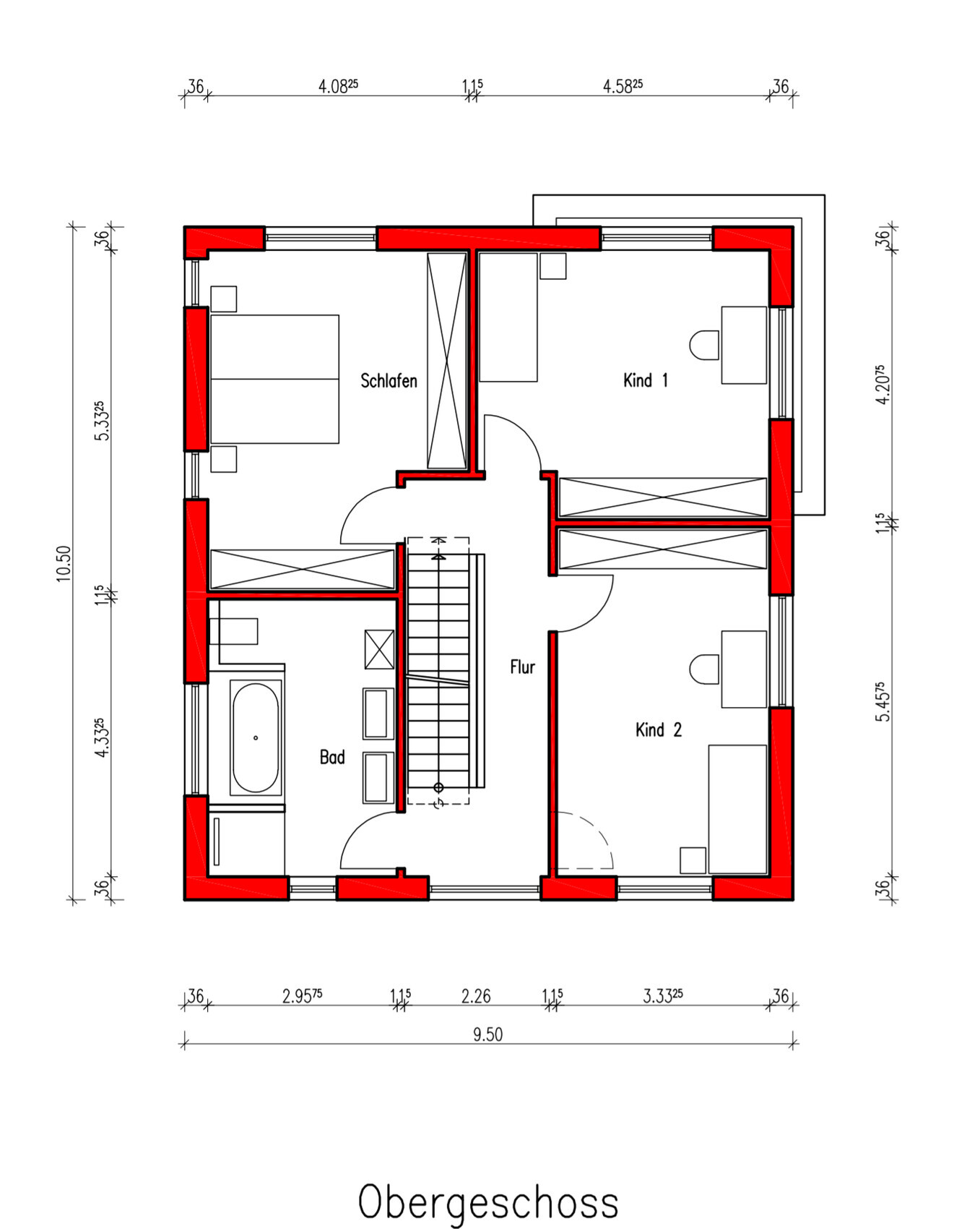
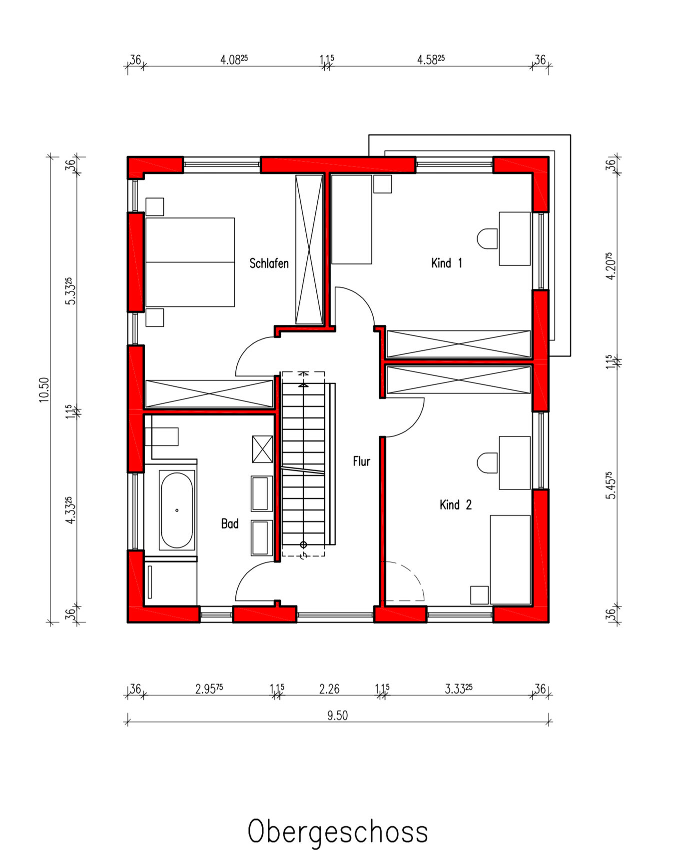
Raumbedarf im EG, OG je 75-80qm
Büro: Familiennutzung oder Homeoffice? Homeoffice klein
Schlafgäste pro Jahr nein
offene oder geschlossene Architektur ?
konservativ oder moderne Bauweise ?
offene Küche, (ja, Trennung sollte aber möglich sein mit Schiebetüren z.B.)Kochinsel oder Halbinsel ja
Anzahl Essplätze 8 - (14)
Kamin nein
Musik/Stereowand nein
Balkon, Dachterrasse nein
Garage, Carport ja 9m
Nutzgarten, Treibhaus nein
weitere Wünsche/Besonderheiten/Tagesablauf, gern auch Begründungen, warum dieses oder das nicht sein soll
Hausentwurf
Von wem stammt die Planung:
-Planer eines Bauunternehmens
-Architekt ja
-Do-it-Yourself ja
Was gefällt besonders?
Bauhauserker
Große Kinderzimmer
Eingang vorne als musthave
Was gefällt nicht?
Keine Beleuchtung von Westen
Zu unkreative Grundriss, Grundriss ähnelt Reihen Haus
Preisschätzung lt Architekt/Planer: 350.000 ohne Nebenkosten ohne Erdarbeiten
Persönliches Preislimit fürs Haus, inkl Ausstattung: Maximum erreicht
favorisierte Heiztechnik: Solewärmepumpe (Tiefenbohrung) + Kontrollierte-Wohnraumlüftung
Warum ist der Entwurf so geworden, wie er jetzt ist?
Wunsch nach Eingang von vorn, da an der Nordseite Garage nicht genug Breite für Eingang und Stellplatz und zusätzlich Sitzplatz im Süden, daher Begrenzung der Breite auf 10m inkl. Erker.
Was macht ihn in Euren Augen besonders gut oder schlecht?
Leider irgendwie zu standardmäßig
Was ist die wichtigste/grundlegende Frage zum Grundriss in 130 Zeichen zusammengefasst?
Welche der Varianten würdet ihr weshalb wählen?
Wo liegen Knackpunkte?
Gibt es kreativere Ideen, ganz andere Ansätze?
Die DGs sind beide stauraumtechnisch nicht gut, was ist das kleinere Übel?
Zur Orientierung: Der Lageplan ist planunten= Osten, Zufahrt über die Straße Plan oben im Westen, Garage Plan rechts im Norden,
Ostgrenze=16,6m
West Grenze (vor dem Haus)= 18,75m
Terrasse im Osten und Süden gewünscht
Vielen Dank, ich freue mich auf das Feedback.







Wir, Ehepaar und 2 Kinder wagen uns nach endloser Suche nun auch an einen Neubau. Für das Grundstück standen wir jahrelang auf der Warteliste. Es ist nicht ideal aufgrund der Ostausrichtung aber was anderes gibt es kaum. Nun geht die Planung los und es gibt 2 Varianten die als Grobplanung stehen, jetzt sollen wir uns für eine entscheiden und bitten im subjektive Meinungen bzw. Argumente pro/contra
Bebauungsplan/Einschränkungen
Größe des Grundstücks 576qm
Hang nein
Grundflächenzahl 0,4
Geschossflächenzahl 0,7
Baufenster, Baulinie und -grenze übliche 3m zu den Nachbarn, 1,5 von der Straße
Randbebauung ? Nur Einfamilienhaus
Anzahl Stellplatz 9m Garage plus Stellplatz davor
Geschossigkeit 2
Dachform Satteldach 35grad
Stilrichtung modern
Ausrichtung Ost
Maximale Höhen/Begrenzungen
weitere Vorgaben
Anforderungen der Bauherren
Stilrichtung, Dachform, Gebäudetyp
Keller nein Geschosse 2
Anzahl der Personen, Alter 4 (33,33, 3 und 1)
Raumbedarf im EG, OG je 75-80qm
Büro: Familiennutzung oder Homeoffice? Homeoffice klein
Schlafgäste pro Jahr nein
offene oder geschlossene Architektur ?
konservativ oder moderne Bauweise ?
offene Küche, (ja, Trennung sollte aber möglich sein mit Schiebetüren z.B.)Kochinsel oder Halbinsel ja
Anzahl Essplätze 8 - (14)
Kamin nein
Musik/Stereowand nein
Balkon, Dachterrasse nein
Garage, Carport ja 9m
Nutzgarten, Treibhaus nein
weitere Wünsche/Besonderheiten/Tagesablauf, gern auch Begründungen, warum dieses oder das nicht sein soll
Hausentwurf
Von wem stammt die Planung:
-Planer eines Bauunternehmens
-Architekt ja
-Do-it-Yourself ja
Was gefällt besonders?
Bauhauserker
Große Kinderzimmer
Eingang vorne als musthave
Was gefällt nicht?
Keine Beleuchtung von Westen
Zu unkreative Grundriss, Grundriss ähnelt Reihen Haus
Preisschätzung lt Architekt/Planer: 350.000 ohne Nebenkosten ohne Erdarbeiten
Persönliches Preislimit fürs Haus, inkl Ausstattung: Maximum erreicht
favorisierte Heiztechnik: Solewärmepumpe (Tiefenbohrung) + Kontrollierte-Wohnraumlüftung
Warum ist der Entwurf so geworden, wie er jetzt ist?
Wunsch nach Eingang von vorn, da an der Nordseite Garage nicht genug Breite für Eingang und Stellplatz und zusätzlich Sitzplatz im Süden, daher Begrenzung der Breite auf 10m inkl. Erker.
Was macht ihn in Euren Augen besonders gut oder schlecht?
Leider irgendwie zu standardmäßig
Was ist die wichtigste/grundlegende Frage zum Grundriss in 130 Zeichen zusammengefasst?
Welche der Varianten würdet ihr weshalb wählen?
Wo liegen Knackpunkte?
Gibt es kreativere Ideen, ganz andere Ansätze?
Die DGs sind beide stauraumtechnisch nicht gut, was ist das kleinere Übel?
Zur Orientierung: Der Lageplan ist planunten= Osten, Zufahrt über die Straße Plan oben im Westen, Garage Plan rechts im Norden,
Ostgrenze=16,6m
West Grenze (vor dem Haus)= 18,75m
Terrasse im Osten und Süden gewünscht
Vielen Dank, ich freue mich auf das Feedback.
Stockum2019 schrieb:
Zu unkreative Grundriss, Grundriss ähnelt Reihen HausReihenhausgrundrisse sind meist recht gut, wenn man die Einfamilienhaus-Variante hat und eben in die Breite gehen kann.Du willst ja irgendwo Dein Carport haben.
Und das ist jetzt Deine Aufgabe: zeichne doch mal das Haus in den Lageplan und zeichne Carport etc dazu. Und bitte auch den Nordpfeil, sonst ist das hier auf Seite 2 nur noch ein Raten. Lesen schmerzt in den Augen
Ich finde Ost-Ausrichtung eines der schwierigsten, deshalb tatsächlich auch mal die Nachbarbebauung mit einfliessen lassen und solche Sachen wie
Stockum2019 schrieb:
Wunsch nach Eingang von vornStockum2019 schrieb:
zusätzlich Sitzplatz im Südeneinfach nur korsettmässig. Da muss man etwas rumspielen. Wenn die Nachbarbebauung und Straße ruhig und grün ist, kann man zB den Sitzplatz nach vorn hinter einer Hecke verlegen etc.
Stockum2019 schrieb:
Leider irgendwie zu standardmäßigEntweder einen Architekten beauftragen (keinen Planer des BUs) oder sich mal klar machen, dass es alles abhängig des Budget und des Grundrisses ist. Einfach gerade Ecken im Standard heisst nicht, dass es unkreativ ist.
Kann es sein, dass Ihr auch vorne Symmetrie wollt? Das ist das erste, was aufzulösen wäre, um mehr Licht von Westen zu bekommen.
Stockum2019 schrieb:
Stilrichtung modernStockum2019 schrieb:
BauhauserkerStockum2019 schrieb:
Eingang vorne als musthaveDas seh ich im Widerspruch zu einer Symmetrie im Vorgarten
Ehrlich gesagt finde ich den Grundriss sehr gut. Ich würde die Podestvariante bevorzugen. Wahrscheinlich würde ich die volle Breite (10m) ausreizen, damit der Flur etwas mehr Stellfläche bietet. Außerdem im Norden im WZ ein großes Fenster rein machen.
Bei 350k kann man keine Extravaganzen erwarten. Du hast eine schöne Südsonne im Haus, die Räume sind ansprechend in Größe und Anordnung. Im Norden kann das Carport hin. Ich würde es so kaufen.
Wenn Du ein Designerhaus willst, solltest Du mal schnell 100k mehr Kredit aufnehmen. Wozu? Nur damit Deine Nachbarn staunen, wie besonders Du bist? Käse!
Dachausbau ist bei 350k erst mal sowieso nicht drin und auch unwichtig.
Bei 350k kann man keine Extravaganzen erwarten. Du hast eine schöne Südsonne im Haus, die Räume sind ansprechend in Größe und Anordnung. Im Norden kann das Carport hin. Ich würde es so kaufen.
Wenn Du ein Designerhaus willst, solltest Du mal schnell 100k mehr Kredit aufnehmen. Wozu? Nur damit Deine Nachbarn staunen, wie besonders Du bist? Käse!
Dachausbau ist bei 350k erst mal sowieso nicht drin und auch unwichtig.
kaho674 schrieb:
Ehrlich gesagt finde ich den Grundriss sehr gut.Ich finde ihn nämlich auch gut, aber mich würde die Sache mit dem Westen auch etwas ärgern. Aber man kann eben nicht alles haben.
J
j.bautsch14.08.19 09:08ich finde den podest Treppen Entwurf auch nicht schlecht und würde diesen bevorzugen
ypg schrieb:
Ich finde ihn nämlich auch gut, aber mich würde die Sache mit dem Westen auch etwas ärgern. Aber man kann eben nicht alles haben.Ja, vor allem, wenn der Eingang im Westen sein muss.Ähnliche Themen