ᐅ Grundriss 180qm plus Keller - 12,40mx9,04m
Erstellt am: 24.06.16 20:23
Hallo,
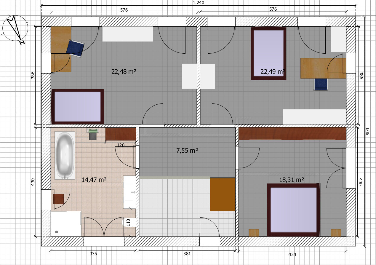
wir haben uns noch mal ein paar weitere Gedanken gemacht und herausgekommen ist der Vor-Entwurf anbei. Inspiriert unter anderem durch das Viebrockhaus 425. Wir haben eine vorgegebene Höhe der OKEGFF und müssen daher ein gutes Stück oberhalb des natürlichen Terrains bauen. Ein Keller macht daher Sinn, auch optisch damit dort nicht eine riesige Aufschüttung ist. Hauptsächlich denken wir darüber nach, ob das Büro auch ausreichend groß ist (um sich darin auch bewegen zu können und sich nicht eingequetscht vorkommen) und ob der Wohnbereich groß genug ist (damit auch mal mehr als 2-3 Leute dort Platz finden oder z.B. gerade aktuell damit man auch mal mit Freunden EM schauen kann).
Bebauungsplan/Einschränkungen
Größe des Grundstücks: ca. 600 qm
Hang: Nord-Süd etwa 2-3% (Südseite höher); Ost-West etwa 7% (Westseite höher); Nord-Süd wird durch Erdarbeiten ausgeglichen: Ost-West muss ausgeglichen werden, da Gebäudehöhe festgelegt ist
Grundflächenzahl: 0,35
Anzahl Stellplatz: 2 Stellplätze (in unserem Fall erstmal ein wenig Kies aufschütten und später evtl. Garage bauen)
Geschossigkeit: 2 Vollgeschosse
Dachform: Satteldach oder Walmdach mit Dachfirst (in unserem Fall: Walmdach)
Ausrichtung: Garten ist Richtung Süden/Südwest
Maximale Höhen/Begrenzungen: 6,30m Traufhöhe ab OKEGFF
Anforderungen der Bauherren
Anzahl der Personen, Alter: 2 Erw. + 2 Kinder
Raumbedarf im EG, OG: Büro im EG
Büro: Abstellplatz für PC + Unterlagen; Wird öfters genutzt aber nicht immer produktiv
Schlafgäste pro Jahr: Ein paar vielleicht
Kamin: Sind wir uns nicht sicher; rein optisch würde er plan rechtsoben gut hinein passen
weitere Wünsche: Büro mit Anschluss Wohnzimmer
Hausentwurf
Von wem stammt die Planung:
-Do-it-Yourself
Was gefällt besonders?: Küche ist top, Essplatz mit großem Fenster und Blick in den Garten top; zwei große, gleichgroße Kinderzimmer; ausreichend Garderoben-Fläche, Speisekammer, viel Stauraum im Keller für unser Gerümpel, Bad ist groß, Schlafzimmer groß und gut 4 Meter Platz für Einbauschränke; Zweite Dusche
Was gefällt nicht?: halbgewendelte Treppe statt gerader Treppe oder Podesttreppe; Büro evtl. ein wenig klein; Wohnzimmer evtl. ein wenig klein und von den Plätzen weiter rechts auf der Couch Blick auf Küche möglich
Wenn Ihr verzichten müsst, auf welche Details/Ausbauten
-könnt Ihr verzichten: Speisekammer; Größe der Kinderzimmer; Luftraum über dem Eingang
-könnt Ihr nicht verzichten: Der Rest
Grundriss:


Ansicht ohne Keller:

wir haben uns noch mal ein paar weitere Gedanken gemacht und herausgekommen ist der Vor-Entwurf anbei. Inspiriert unter anderem durch das Viebrockhaus 425. Wir haben eine vorgegebene Höhe der OKEGFF und müssen daher ein gutes Stück oberhalb des natürlichen Terrains bauen. Ein Keller macht daher Sinn, auch optisch damit dort nicht eine riesige Aufschüttung ist. Hauptsächlich denken wir darüber nach, ob das Büro auch ausreichend groß ist (um sich darin auch bewegen zu können und sich nicht eingequetscht vorkommen) und ob der Wohnbereich groß genug ist (damit auch mal mehr als 2-3 Leute dort Platz finden oder z.B. gerade aktuell damit man auch mal mit Freunden EM schauen kann).
Bebauungsplan/Einschränkungen
Größe des Grundstücks: ca. 600 qm
Hang: Nord-Süd etwa 2-3% (Südseite höher); Ost-West etwa 7% (Westseite höher); Nord-Süd wird durch Erdarbeiten ausgeglichen: Ost-West muss ausgeglichen werden, da Gebäudehöhe festgelegt ist
Grundflächenzahl: 0,35
Anzahl Stellplatz: 2 Stellplätze (in unserem Fall erstmal ein wenig Kies aufschütten und später evtl. Garage bauen)
Geschossigkeit: 2 Vollgeschosse
Dachform: Satteldach oder Walmdach mit Dachfirst (in unserem Fall: Walmdach)
Ausrichtung: Garten ist Richtung Süden/Südwest
Maximale Höhen/Begrenzungen: 6,30m Traufhöhe ab OKEGFF
Anforderungen der Bauherren
Anzahl der Personen, Alter: 2 Erw. + 2 Kinder
Raumbedarf im EG, OG: Büro im EG
Büro: Abstellplatz für PC + Unterlagen; Wird öfters genutzt aber nicht immer produktiv
Schlafgäste pro Jahr: Ein paar vielleicht
Kamin: Sind wir uns nicht sicher; rein optisch würde er plan rechtsoben gut hinein passen
weitere Wünsche: Büro mit Anschluss Wohnzimmer
Hausentwurf
Von wem stammt die Planung:
-Do-it-Yourself
Was gefällt besonders?: Küche ist top, Essplatz mit großem Fenster und Blick in den Garten top; zwei große, gleichgroße Kinderzimmer; ausreichend Garderoben-Fläche, Speisekammer, viel Stauraum im Keller für unser Gerümpel, Bad ist groß, Schlafzimmer groß und gut 4 Meter Platz für Einbauschränke; Zweite Dusche
Was gefällt nicht?: halbgewendelte Treppe statt gerader Treppe oder Podesttreppe; Büro evtl. ein wenig klein; Wohnzimmer evtl. ein wenig klein und von den Plätzen weiter rechts auf der Couch Blick auf Küche möglich
Wenn Ihr verzichten müsst, auf welche Details/Ausbauten
-könnt Ihr verzichten: Speisekammer; Größe der Kinderzimmer; Luftraum über dem Eingang
-könnt Ihr nicht verzichten: Der Rest
Grundriss:
Ansicht ohne Keller:
Hallo,
also mir würde die Wohnecke nicht gefallen. Die Fernsehwand ist kurz und wenn man außen auf der Couch sitzt, sieht man nur schräg zum Fernseher. Wenn jemand öfters ins Arbeitszimmer geht, muss man immer vor dem Fernseher vorbei laufen, stört vielleicht andere beim Schauen. Dafür ist der Platz oberhalb des Sofas ziemlich ungenutzt.
LG
Sabine
also mir würde die Wohnecke nicht gefallen. Die Fernsehwand ist kurz und wenn man außen auf der Couch sitzt, sieht man nur schräg zum Fernseher. Wenn jemand öfters ins Arbeitszimmer geht, muss man immer vor dem Fernseher vorbei laufen, stört vielleicht andere beim Schauen. Dafür ist der Platz oberhalb des Sofas ziemlich ungenutzt.
LG
Sabine
Baust du immer noch nicht ?!
Macht ich vor dem Bau mal genaue Gedanken, wir ihr die Treppe gestalten wollte - das war bei uns ein Hauptkopfzerbrechpunkt (ist aber schön jetzt geworden)
Ansonsten hüpfen die Fenster noch ein wenig - gefällt mir aber (bis auf vielleicht dieser Zipfel im Wohnzimmer)
Macht ich vor dem Bau mal genaue Gedanken, wir ihr die Treppe gestalten wollte - das war bei uns ein Hauptkopfzerbrechpunkt (ist aber schön jetzt geworden)
Ansonsten hüpfen die Fenster noch ein wenig - gefällt mir aber (bis auf vielleicht dieser Zipfel im Wohnzimmer)
Also, so kurz ist die Fernsehwand mit gut 2 Metern nicht. Zum Vergleich, der dort eingezeichnete Fernseher entspricht etwa 70 bis 75 Zoll. Platz wäre genug für etwa 90 Zoll.
Wir schauen aber ehrlich gesagt wenig fern. Vom morgens aufstehen bis unsere Kleine schläft (20h oder tlw. später) bleibt er eh aus, abends auch nicht jeden Tag und dann vielleicht wie heute eine Folge (Game of Thrones) und das war's. EM ist jetzt eine Ausnahme, wobei da auch nur die Deutschland-Spiele und einige spät-Abends-Spiele laufen. Ab und zu mal ein guter Film oder eine gute Serie, aber ist jetzt nicht das wichtigste.
Die Couch ist 3,5m - nur mal zum Vergleich. Ist jetzt etwas größer als eine Standard-Couch, entspricht in etwa unsere jetzigen Couch und bietet in der Realität sicher Platz für 8 Leute. Der "Schnitt" ist bei uns etwas anders. Prinzipiell ist genug Platz für 3-4 Leute zum direkten "Frontal-Schauen" und 4-5 Leute für seitlich Schauen.
Der Platz oberhalb stört mich auch etwas. Naja, einerseits könnten wir dort Kamin oder Klavier unterbringen, andererseits allgemeinen Spielplatz für die Kinder und saisonal der Weihnachtsbaum.
Mal zu unserem Zeitplan, also seit Oktober/November letzten Jahres sind wir nicht nur verheiratet, sondern auch Grundstücksbesitzer. Zumindest so rein notariell. Auch der Bebauungsplan ist mittlerweile final beschlossen. Es ist übrigens Bauanzeigeverfahren. Aber es zieht sich alles eben immer ewig hin. Im Moment läuft erst die Erschließung. Ich glaube auch, in der allerersten Zeitplanung (laut der Erschließungsfirma/Grundstückseigentümer) würden wir jetzt schon fast drin wohnen, aber ok. Es scheint wohl, dass man jetzt bis Oktober/November erschließt und dann dürfen wir bauen. Ja, Schade, Winter.
Aber das läuft hier überall so, über Jahre hinweg. Wir hatten uns auch für eine bauträgergebundenes Projekt hier interessiert.Das war für Ostern 2015 angekündigt und jetzt ist immer noch nichts passiert. Die städtische Gesellschaft verkauft Grundstücke, welche eigentlich vor ein paar Jahren angekündigt waren.
BeHaElJa: Von der Treppe her gefällt mir das bei euch wirklich sehr gut und so in der Art werden wir das auch bauen wollen. Eine geschlossene Treppe und dann eine Tür nach unten. Haben wir auch in einem Musterhaus schon mal so gesehen. Meine Frau möchte eh eine geschlossene Treppe wegen Sicherheit und von der Optik her ist das doch die modernere Variante gegenüber einer offenen Holztreppe.
Wir schauen aber ehrlich gesagt wenig fern. Vom morgens aufstehen bis unsere Kleine schläft (20h oder tlw. später) bleibt er eh aus, abends auch nicht jeden Tag und dann vielleicht wie heute eine Folge (Game of Thrones) und das war's. EM ist jetzt eine Ausnahme, wobei da auch nur die Deutschland-Spiele und einige spät-Abends-Spiele laufen. Ab und zu mal ein guter Film oder eine gute Serie, aber ist jetzt nicht das wichtigste.
Die Couch ist 3,5m - nur mal zum Vergleich. Ist jetzt etwas größer als eine Standard-Couch, entspricht in etwa unsere jetzigen Couch und bietet in der Realität sicher Platz für 8 Leute. Der "Schnitt" ist bei uns etwas anders. Prinzipiell ist genug Platz für 3-4 Leute zum direkten "Frontal-Schauen" und 4-5 Leute für seitlich Schauen.
Der Platz oberhalb stört mich auch etwas. Naja, einerseits könnten wir dort Kamin oder Klavier unterbringen, andererseits allgemeinen Spielplatz für die Kinder und saisonal der Weihnachtsbaum.
Mal zu unserem Zeitplan, also seit Oktober/November letzten Jahres sind wir nicht nur verheiratet, sondern auch Grundstücksbesitzer. Zumindest so rein notariell. Auch der Bebauungsplan ist mittlerweile final beschlossen. Es ist übrigens Bauanzeigeverfahren. Aber es zieht sich alles eben immer ewig hin. Im Moment läuft erst die Erschließung. Ich glaube auch, in der allerersten Zeitplanung (laut der Erschließungsfirma/Grundstückseigentümer) würden wir jetzt schon fast drin wohnen, aber ok. Es scheint wohl, dass man jetzt bis Oktober/November erschließt und dann dürfen wir bauen. Ja, Schade, Winter.
Aber das läuft hier überall so, über Jahre hinweg. Wir hatten uns auch für eine bauträgergebundenes Projekt hier interessiert.Das war für Ostern 2015 angekündigt und jetzt ist immer noch nichts passiert. Die städtische Gesellschaft verkauft Grundstücke, welche eigentlich vor ein paar Jahren angekündigt waren.
BeHaElJa: Von der Treppe her gefällt mir das bei euch wirklich sehr gut und so in der Art werden wir das auch bauen wollen. Eine geschlossene Treppe und dann eine Tür nach unten. Haben wir auch in einem Musterhaus schon mal so gesehen. Meine Frau möchte eh eine geschlossene Treppe wegen Sicherheit und von der Optik her ist das doch die modernere Variante gegenüber einer offenen Holztreppe.
Auf jeden Fall Verbesserung ggü. Erstentwürfen.
Es wird jedoch auch alles sehr groß.
Was mir bei der Größe fehlt, ist z. B. im OG etwas gescheiter Abstellraum für Staubsauger/Wischer usw. Außerdem dort zentrale Staumöglichkeit für Bettwäsche/Handtücher, Klopapiervorrat etc. Und, bei der Größe sollte man auch überlegen, im OG zumindest ein mögliches Plätzchen für Waschmaschine/Trockner zu schaffen. Denn immer alles von ganz oben nach ganz unten zu schaffen (gerade mit ganz kleinen Kindern) ist vielleicht doch etwas unpraktisch.
Die Kinderzimmerfenster sollte man auch noch mal etwas überdenken.
Bad im OG .. Fenster neu überdenken, damit die Dusche auch etwas größer werden kann.
Gästebad im EG .. da würde ich wohl eher nur ein WC setzen und lieber im Keller ein kleines Gästebad, passend zu Gast/Fitness mit Dusche.
Fürs Wohnzimmer evl. den Arbeitsplatz eher planoben rechts in den "halböffentlichen" Bereich integrieren, dafür WZ auflösen und Couchecke dann ganz nach planunten rechts. Dann können nach Westen evtl. auch mehr oder ein größeres Fenster.
Küche ist großzügig, wobei 130 cm Zeilenabstand eigentlich schon wieder zu viel sind. Da würden von den Arbeitsabläufen her ca. 110 cm reichen.
Stell doch mal den Grundstücksplan mit ein, am besten mit Nachbargrundstücken und Straßenlage. Stellplätze/Garagen sollen wohl in den Westen?
Es wird jedoch auch alles sehr groß.
Was mir bei der Größe fehlt, ist z. B. im OG etwas gescheiter Abstellraum für Staubsauger/Wischer usw. Außerdem dort zentrale Staumöglichkeit für Bettwäsche/Handtücher, Klopapiervorrat etc. Und, bei der Größe sollte man auch überlegen, im OG zumindest ein mögliches Plätzchen für Waschmaschine/Trockner zu schaffen. Denn immer alles von ganz oben nach ganz unten zu schaffen (gerade mit ganz kleinen Kindern) ist vielleicht doch etwas unpraktisch.
Die Kinderzimmerfenster sollte man auch noch mal etwas überdenken.
Bad im OG .. Fenster neu überdenken, damit die Dusche auch etwas größer werden kann.
Gästebad im EG .. da würde ich wohl eher nur ein WC setzen und lieber im Keller ein kleines Gästebad, passend zu Gast/Fitness mit Dusche.
Fürs Wohnzimmer evl. den Arbeitsplatz eher planoben rechts in den "halböffentlichen" Bereich integrieren, dafür WZ auflösen und Couchecke dann ganz nach planunten rechts. Dann können nach Westen evtl. auch mehr oder ein größeres Fenster.
Küche ist großzügig, wobei 130 cm Zeilenabstand eigentlich schon wieder zu viel sind. Da würden von den Arbeitsabläufen her ca. 110 cm reichen.
Stell doch mal den Grundstücksplan mit ein, am besten mit Nachbargrundstücken und Straßenlage. Stellplätze/Garagen sollen wohl in den Westen?
Ähnliche Themen