Hallo zusammen,
wir planen aktuell unseren Hausbau in Niederösterreich und ich würde gerne euren Blick auf unseren Grundriss bekommen. Ich bin 22, mein Partner ist 26 – er finanziert das Haus. Gerade deshalb ist mir wichtig, dass der Grundriss wirklich gut passt und wir keine teuren „Fehler“ mitbauen. Ich bin gerade dabei, ihn zu optimieren, aber je länger man draufschaut, desto blinder wird man.
Ich freue mich über jede Anmerkung, Kritik und Verbesserungsvorschläge – egal ob zu Laufwegen, Stauraum, Belichtung, Möblierbarkeit oder einfach „das wirkt unpraktisch“ -> das sind nämlich die Dinge, die ich aktuell versuche auszubessern
Zusätzlich hätte ich ein paar konkrete Fragen, zu denen ich besonders unsicher bin (Liste folgt):
Bebauungsplan/Einschränkungen
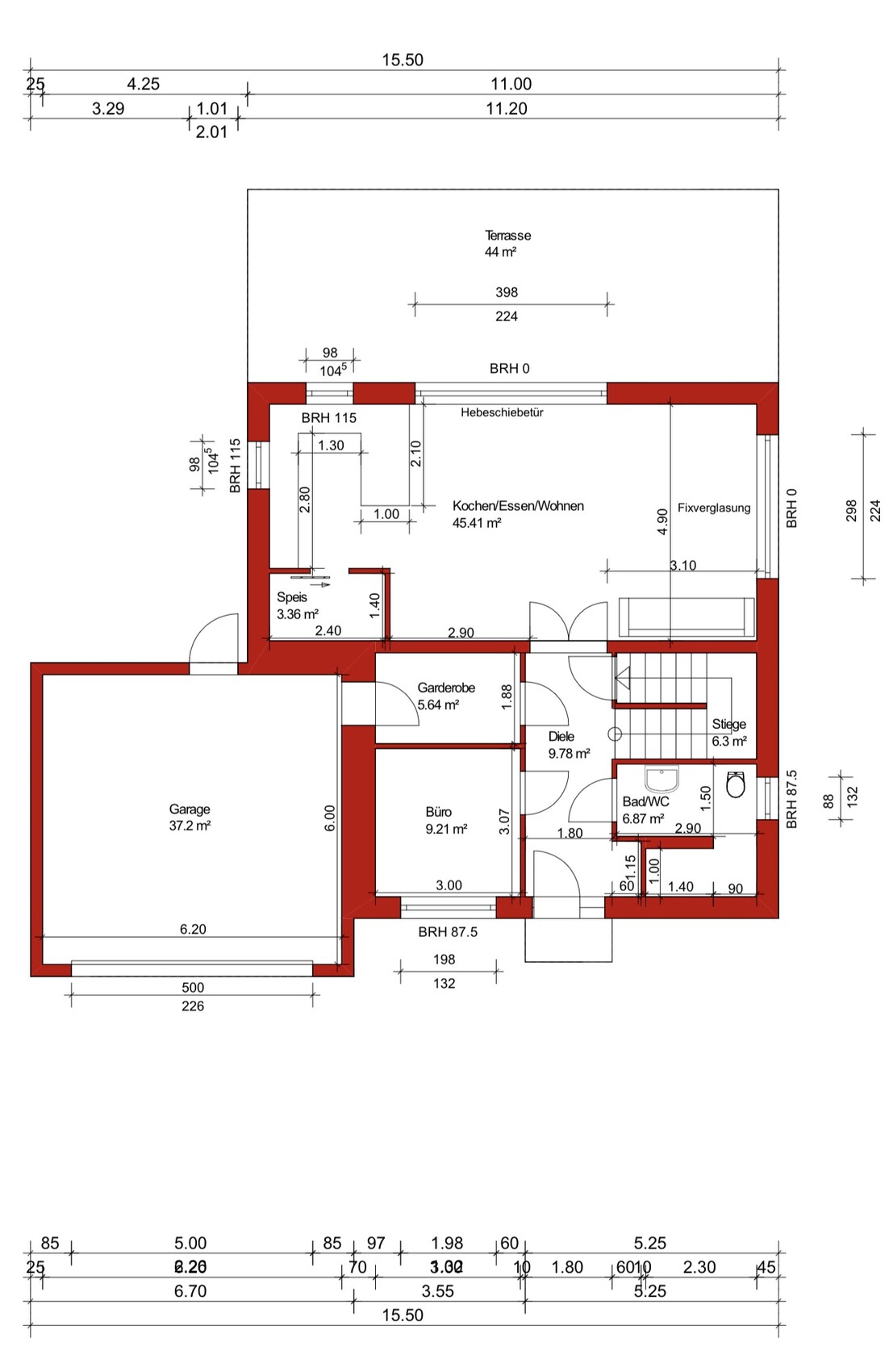
Größe des Grundstücks : 625 m2 (30% davon dürfen bebaut werden)
Grundflächenzahl : 1
Geschossflächenzahl : 2
Anzahl Stellplatz : 2
Dachform : Walmdach
Stilrichtung : modern, gemütlich
Ausrichtung : Terrasse ist Richtung Norden ausgerichtet
Anforderungen der Bauherren
Stilrichtung, Dachform, Gebäudetyp : modern, aber nicht zu sehr Würfel, Walmdach
Keller, Geschosse : Keller, EG, OG
Anzahl der Personen, Alter : vorerst W22 und M26
Raumbedarf im EG, OG : Büro im EG ggf. als späteres Schlafzimmer eingeplant
Büro: Familiennutzung oder Homeoffice? : HO
offene oder geschlossene Architektur : eher offen
konservativ oder moderne Bauweise : modern
offene Küche, Kochinsel : ja
Anzahl Essplätze : 2, mind. 6-8 Gäste
Kamin : vielleicht Zukunftsdenken
Musik/Stereowand : Soundanlage an Fernsehwand
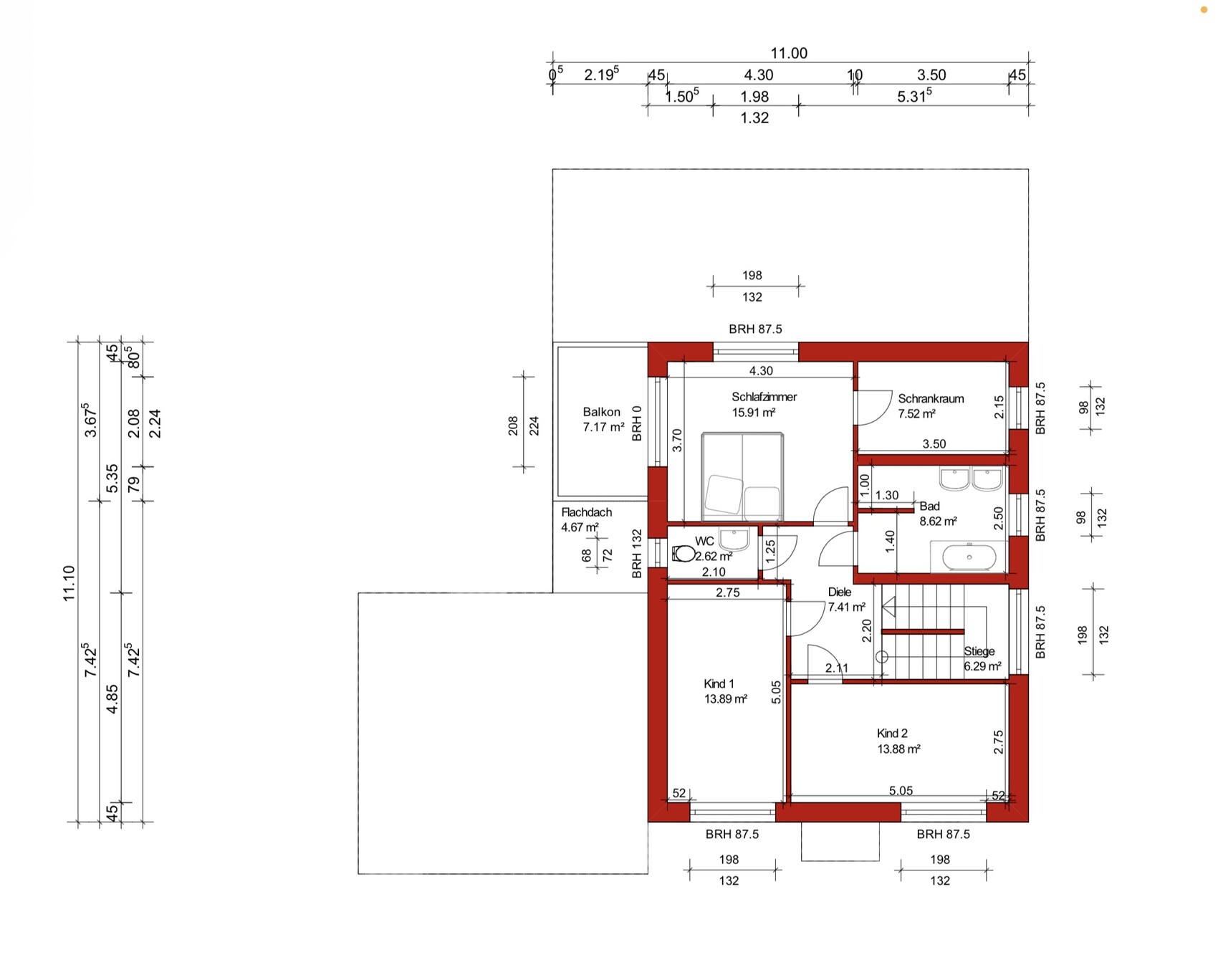
Balkon, Dachterrasse : kleiner Balkon am Schlafzimmer
Garage, Carport : 37 m2 Garage, die aber nicht direkt gebaut wird, sondern irgendwann später angebaut wird
Aktuell und mutmaßlich noch geraume Zeit kinderlos, aber Kinderwunsch besteht
Hausentwurf
Von wem stammt die Planung:
-Do-it-Yourself
Was gefällt besonders? Die Größe des Grundrisses, die Aufteilung der Nutz-/Wohnflächen auf die verschiedenen Geschosse
Was gefällt nicht? Die Größen von best. einzelnen Räumen, Türanschläge, Ausrichtung der Wohnzimmerfenster gen Nordosten, Einrichtungsmöglichkeiten des großen Wohnraumes im EG, wie die Speis in den Raum integriert ist, 2 Räume im Keller, die Durchgangsräume sind für andere Zimmer
favorisierte Heiztechnik: Fußbodenheizung










wir planen aktuell unseren Hausbau in Niederösterreich und ich würde gerne euren Blick auf unseren Grundriss bekommen. Ich bin 22, mein Partner ist 26 – er finanziert das Haus. Gerade deshalb ist mir wichtig, dass der Grundriss wirklich gut passt und wir keine teuren „Fehler“ mitbauen. Ich bin gerade dabei, ihn zu optimieren, aber je länger man draufschaut, desto blinder wird man.
Ich freue mich über jede Anmerkung, Kritik und Verbesserungsvorschläge – egal ob zu Laufwegen, Stauraum, Belichtung, Möblierbarkeit oder einfach „das wirkt unpraktisch“ -> das sind nämlich die Dinge, die ich aktuell versuche auszubessern
Zusätzlich hätte ich ein paar konkrete Fragen, zu denen ich besonders unsicher bin (Liste folgt):
- Türanschläge -> mein Freund würde am liebsten alle Türöffnungen nach außen geben, das gefällt mir leider gar nicht... für welche Räume würdet ihr dieses Problem wie lösen? wenn ich in unterschiedlichen Räumen (z.B. Büro, beide Kinderzimmer) die Tür in den Raum öffnen lasse, wie weit würdet ihr sie dann von der Wand weggeben?
- Auch mit der Küchensituation bin ich noch nicht ganz zufrieden. Aufgrund des Mangels an Abstellraum im EG würden wir die Speis vermutlich beibehalten, sind uns aber aktuell nicht sicher wie. Sollte irgendwann Geld vom Himmel fallen wäre mir am liebsten eine versteckte Speis und so viel Raum für Schränke wie möglich, aber ist halt leider auch teuer. Falls ihr Anmerkungen zur Gestaltung der Küchensituation habt, immer her damit (die Möbel sind nur provisorisch reingeklatscht, aber Verortung von Herd, Spüle und Spülmaschine sollte schon so ähnlich funktionieren -> würdet ihr dann das Fenster über der Spüle auf eine Brüstungshöhe von 1,15m (bei 95cm Arbeitsplattenhöhe geben) oder lieber direkt flächenbündig über die Arveitsplatte geben?
- Wie würdet ihr weiterhin die Tür in der Garderobe platzieren? Aktuell haben wir auf einer Seite 60cm Platz und auf der unteren Seite 38cm und ich bin am Überlegen, ob es nicht schlauer wäre oben mind. 66 cm zu lassen für etwas tiefere Schränke und Abstand zur Tür (unten dann ggf. nur ein schmaler Schuhschrank oder ggf. eine Sitzbank) bzw. die beiden Türen ganz nach unten vom Raum zu setzen und alles wo kein Schrank ist als luftigeren Durchgang (für ggf. Kinderwagen oÄ) freizulassen
- Das Büro könnte vielleicht als Schlafzimmer umfunktioniert werden (vgl. Bild ), sowohl im 3 Meter breiten Büro als auch im darüberliegende 2,75 Meter breiten Kinderzimmer 1 befindet sich jedoch aktuell ein 1,98 Meter breites und 1,32 Meter hohes Fenster -> wäre es nicht klüger diese Fenster etwas schmaler zu gestalten, da unter beiden ggf. mal ein Bett stehen würde und auch die Brüstungshöhe von 87,5 cm etwa anzuheben? für mehr Licht könnte man das Fenster ja vielleicht einfach etwas länglicher machen oder?
- oben wäre die Überlegung das Kinderzimmer 1 mit dem unpraktischeren Grundriss um eine 25cm tiefe Nische ins Kinderzimmer 1 zu erweitern (dann wären es ungefähr 14,6m2 vs 12,6 m2, wobei Kinderzimmer mMn einfacher zu möblieren ist) -> so könnte das Bett in der Nische, mit dem Kopfende weg von Fenster und Blickrichtung der Tür stehen und die Breite wäre wie im darunterliegenden Büro (Fenster können identisch übereinander liegen)
- wie würdet ihr die Fenster in Kinderzimmer 2 positioneren? lieber ein breiteres oder zwei etwas schmälere links und rechts?
- habt ihr Ideen wie man die Räume im Keller anders anordnen könnte?
Bebauungsplan/Einschränkungen
Größe des Grundstücks : 625 m2 (30% davon dürfen bebaut werden)
Grundflächenzahl : 1
Geschossflächenzahl : 2
Anzahl Stellplatz : 2
Dachform : Walmdach
Stilrichtung : modern, gemütlich
Ausrichtung : Terrasse ist Richtung Norden ausgerichtet
Anforderungen der Bauherren
Stilrichtung, Dachform, Gebäudetyp : modern, aber nicht zu sehr Würfel, Walmdach
Keller, Geschosse : Keller, EG, OG
Anzahl der Personen, Alter : vorerst W22 und M26
Raumbedarf im EG, OG : Büro im EG ggf. als späteres Schlafzimmer eingeplant
Büro: Familiennutzung oder Homeoffice? : HO
offene oder geschlossene Architektur : eher offen
konservativ oder moderne Bauweise : modern
offene Küche, Kochinsel : ja
Anzahl Essplätze : 2, mind. 6-8 Gäste
Kamin : vielleicht Zukunftsdenken
Musik/Stereowand : Soundanlage an Fernsehwand
Balkon, Dachterrasse : kleiner Balkon am Schlafzimmer
Garage, Carport : 37 m2 Garage, die aber nicht direkt gebaut wird, sondern irgendwann später angebaut wird
Aktuell und mutmaßlich noch geraume Zeit kinderlos, aber Kinderwunsch besteht
Hausentwurf
Von wem stammt die Planung:
-Do-it-Yourself
Was gefällt besonders? Die Größe des Grundrisses, die Aufteilung der Nutz-/Wohnflächen auf die verschiedenen Geschosse
Was gefällt nicht? Die Größen von best. einzelnen Räumen, Türanschläge, Ausrichtung der Wohnzimmerfenster gen Nordosten, Einrichtungsmöglichkeiten des großen Wohnraumes im EG, wie die Speis in den Raum integriert ist, 2 Räume im Keller, die Durchgangsräume sind für andere Zimmer
favorisierte Heiztechnik: Fußbodenheizung
haydee schrieb:
die gleichen Anmerkungen wie im letzten Thread.okay schade, ich dachte, ich konnte etwas verbessernNMarieKH schrieb:
Hier auch ein paar Bilder wie ich mir das mit der versteckten Speis und den Einbauschränken vorstellen würdeSo hast du es aber in deinem Grundriss nicht eingezeichnet. Und so passt es auch nicht gut, weil planoberhalb deiner Speisekammer nur noch 340 cm sind. Davon wären dann 60 cm für die Hochschrankwand, dann ca. 100 cm Gang und dann maximal 180 cm Halbinsel. Und da alles nur Rohbaumaße sind, eher weniger.Und Stauraum ist da auch eher vernichtend, denn in dieser Kammer soll ja sicherlich ein TK-Schrank Platz haben oder so, also muss der Durchgang dorthin breiter als 60 cm werden und damit ist dann nicht mehr viel Schrankplatz in der Hochschrankwand.
Weiterhin
NMarieKH schrieb:
die Tür in den Raum öffnen lasse, wie weit würdet ihr sie dann von der Wand weggeben?Überall, wo Schränke für Kleiderbügeltiefe hin sollen, würde ich mindestens 65 besser 70 cm planen. Es ist immerhin nur ein Rohbaumaß, schafft aber dann ausreichend Platz.Beide Kinderzimmer sollten an beiden jeweiligen Außenwänden ein Fenster haben. Dann kann man auch mal schnell etwas Durchzug produzieren und hat Tageslicht von mind. 2 Seiten.
Das Elternschlafzimmer finde ich überhaupt nicht schön. Links der Tür dürften es ja ca. 310 cm sein. Ich empfinde das Kopfteil vom Bett neben der Eingangstür als sehr unangenehm.
Ähnliche Themen