ᐅ Grundriss-Planung Einfamilienhaus ca. 240qm mit Doppelgarage und Einliegerwohnung im Keller
Erstellt am: 14.06.21 16:04
G
GrandioosG
Grandioos14.06.21 16:04Liebe Hausbau-Community,
ich habe schon einige Planungen und Beiträge hier im Forum gelesen und bin immer dankbar für die unterschiedlichen Ideen und insbesondere Kommentare. Zu unserem Vorhaben: Wir besitzen bereits ein erschlossenes Grundstück im bestehenden Wohngebiet (Baulücke) im Süden Deutschlands (BW). Wir planen mit unserem Architekten ein Massivhaus (Stein) vrsl. Im KFW 55 Standard.
Herzlichen Dank vorab für Eure Ideen und Kommentare.
Bebauungsplan/Einschränkungen
Größe des Grundstücks: 967qm
Hang: Ca. 1,5 Meter Gefälle auf 45m Grundstückslänge
Grundflächenzahl: 0,4
Geschossflächenzahl: 0,5
Baufenster, Baulinie und -grenze: lt. Bebauungsplan / siehe Foto "Lageplan" - Blaue Striche
Randbebauung: 10m Baugrenze von Straße (Westseite). Grundstück an Südgrenze noch nicht bebaut
Anzahl Stellplatz: keine Vorgaben
Geschossigkeit: 1
Dachform: Satteldach – 38° bis 48°
Stilrichtung: Offene Bauweise
Ausrichtung: keine Vorgaben
Maximale Höhen/Begrenzungen: bergseitig Erdgeschossfußbodenhöhe über nat. Gelände: 1m
Firsthöhe max. 9,25m
Anforderungen der Bauherren
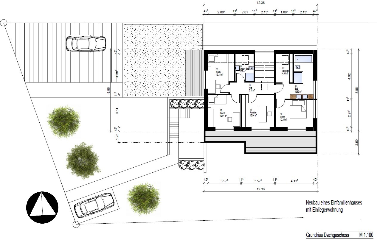
Stilrichtung, Dachform, Gebäudetyp: Klassisches Einfamilienhaus mit Satteldach, ohne Dachgauben aber mit überstehendem Dach an den Giebelseiten. Hoher Kniestock an Südseite im OG (>2m)
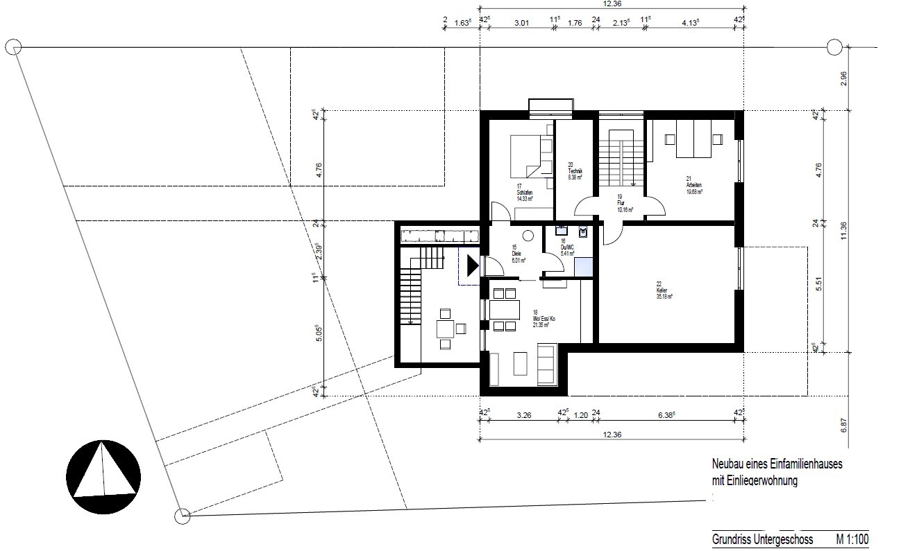
Keller, Geschosse: Wohnkeller mit Einliegerwohnung (ca. 50qm). Wohnen im EG und OG mit hoher lichter Raumhöhe (ca. 2,80m) – da ich 1,99m groß bin
Anzahl der Personen, Alter: 2 Erwachsene (32 & 31), 1 Kleinkind (<1), max. 3 Kinder in Summe als Wunsch.
Raumbedarf:
UG: Einliegerwohnung mit separatem Eingang (Westen) abgetrennt von unserem Bereich; Kellerraum; Technik; Gast/Hobby
EG: Offener Wohnbereich mit offener, geräumiger Küche inkl. Kochinsel, Speisekammer, Gäste-WC mit Dusche barrierefrei, Büro Home Office / Gast, Garderobe, Hauswirtschaftsraum inkl. Wäsche und Trocknung
OG: Badezimmer Eltern inkl. Wanne, Elternschlafzimmer, Ankleide, 2 Kinderschlafzimmer, 2. Arbeitszimmer (Lehrer)
Büro: 1 Person mit 60-80% Homeoffice, 1 Person als Lehrer tätig (u.a. Korrekturen)
Schlafgäste pro Jahr: Viele (>15), große Familie und weitreichender, entfernter Freundeskreis
offene oder geschlossene Architektur: Offene
konservativ oder moderne Bauweise: Meine Frau wünscht gemütlichen Landhausstil, ich bevorzuge auch teils moderne Elemente und klare Formen à Es wird bestimmt eine Mischung
offene Küche, Kochinsel: Offene Küche (L form mit Kochinsel in Richtung Esstisch
Anzahl Essplätze: Mindestens 8
Kamin: Ja, idealerweise als Raumteiler im „Wohnschlauch“
Musik/Stereowand: Eher sekundär, wir schauen kaum TV, wenn dann im Wohnzimmer irgendwo hinter einem Schrank versteckt
Balkon, Dachterrasse: Terrasse sehr wichtig, Balkon eher nicht. Süd-Ostterrasse um die Vorzüge der Sonne zu genießen und gleichzeitig ihr zu entkommen wenn sie zu intensiv wird. Einliegerwohnung sollte auch eine kleine Terrasse gen Westen haben.
Garage, Carport: Doppelgarage für uns, Stellplatz für Einliegerwohnung
Nutzgarten, Treibhaus: Nutzgarten im Osten
weitere Wünsche/Besonderheiten/Tagesablauf:
Offener Zugang von Küche & Esszimmer auf Terrasse / Garten
Trockener/Überdachter Zugang von Garage ins Haus
Hausentwurf
Von wem stammt die Planung: Architekt, inkl. Unserem Input nach 2 Sitzungen
Was gefällt besonders? Warum: Eingang Einliegerwohnung (getrennt von uns); 1 Büro im EG, großer Hauswirtschaftsraum, Große Terrasse, hoher Kniestock im OG Süden, Platz für Klavier gefunden; viel Licht bei Podesttreppe im Norden
Was gefällt nicht? Warum? Insgesamt einfach zu groß und dadurch perspektivisch zu teuer, eigentlich wollten wir einen offenen Dachstuhl,
Preisschätzung lt Architekt/Planer: Summe 300+400 brutto inkl. Doppelgarage nach Bundeskorrekturfaktor: 725.000 € (ohne Außenanlagen und Nebenkosten)
Persönliches Preislimit fürs Haus, inkl Ausstattung: 600.000 € ohne Nebenkosten
favorisierte Heiztechnik: Hybridheizung Luft-Wasser-Wärmepumpe mit Gaswerttherme, Photovoltaikanlage auf Süddach
Wenn Ihr verzichten müsst, auf welche Details/Ausbauten
-könnt Ihr verzichten: 2. Arbeitszimmer im OG, kleinerer Allraum, kleineres Büro 1/Gast, unter Zähneknirschen noch das Duschbad im OG, Fenster gen Süden im Wohnzimmer
-könnt Ihr nicht verzichten: Duschbad im EG, Hauswirtschaftsraum mit Wäsche im EG, Getrennter Eingang und Außenbereich für Einliegerwohnung)
Warum ist der Entwurf so geworden, wie er jetzt ist?
Wie kann dieses oder ein minimal reduziertes Raumprogramm effizienter geplant werden? Haben wir grobe Planungsfehler übersehen?





ich habe schon einige Planungen und Beiträge hier im Forum gelesen und bin immer dankbar für die unterschiedlichen Ideen und insbesondere Kommentare. Zu unserem Vorhaben: Wir besitzen bereits ein erschlossenes Grundstück im bestehenden Wohngebiet (Baulücke) im Süden Deutschlands (BW). Wir planen mit unserem Architekten ein Massivhaus (Stein) vrsl. Im KFW 55 Standard.
Herzlichen Dank vorab für Eure Ideen und Kommentare.
Bebauungsplan/Einschränkungen
Größe des Grundstücks: 967qm
Hang: Ca. 1,5 Meter Gefälle auf 45m Grundstückslänge
Grundflächenzahl: 0,4
Geschossflächenzahl: 0,5
Baufenster, Baulinie und -grenze: lt. Bebauungsplan / siehe Foto "Lageplan" - Blaue Striche
Randbebauung: 10m Baugrenze von Straße (Westseite). Grundstück an Südgrenze noch nicht bebaut
Anzahl Stellplatz: keine Vorgaben
Geschossigkeit: 1
Dachform: Satteldach – 38° bis 48°
Stilrichtung: Offene Bauweise
Ausrichtung: keine Vorgaben
Maximale Höhen/Begrenzungen: bergseitig Erdgeschossfußbodenhöhe über nat. Gelände: 1m
Firsthöhe max. 9,25m
Anforderungen der Bauherren
Stilrichtung, Dachform, Gebäudetyp: Klassisches Einfamilienhaus mit Satteldach, ohne Dachgauben aber mit überstehendem Dach an den Giebelseiten. Hoher Kniestock an Südseite im OG (>2m)
Keller, Geschosse: Wohnkeller mit Einliegerwohnung (ca. 50qm). Wohnen im EG und OG mit hoher lichter Raumhöhe (ca. 2,80m) – da ich 1,99m groß bin
Anzahl der Personen, Alter: 2 Erwachsene (32 & 31), 1 Kleinkind (<1), max. 3 Kinder in Summe als Wunsch.
Raumbedarf:
UG: Einliegerwohnung mit separatem Eingang (Westen) abgetrennt von unserem Bereich; Kellerraum; Technik; Gast/Hobby
EG: Offener Wohnbereich mit offener, geräumiger Küche inkl. Kochinsel, Speisekammer, Gäste-WC mit Dusche barrierefrei, Büro Home Office / Gast, Garderobe, Hauswirtschaftsraum inkl. Wäsche und Trocknung
OG: Badezimmer Eltern inkl. Wanne, Elternschlafzimmer, Ankleide, 2 Kinderschlafzimmer, 2. Arbeitszimmer (Lehrer)
Büro: 1 Person mit 60-80% Homeoffice, 1 Person als Lehrer tätig (u.a. Korrekturen)
Schlafgäste pro Jahr: Viele (>15), große Familie und weitreichender, entfernter Freundeskreis
offene oder geschlossene Architektur: Offene
konservativ oder moderne Bauweise: Meine Frau wünscht gemütlichen Landhausstil, ich bevorzuge auch teils moderne Elemente und klare Formen à Es wird bestimmt eine Mischung
offene Küche, Kochinsel: Offene Küche (L form mit Kochinsel in Richtung Esstisch
Anzahl Essplätze: Mindestens 8
Kamin: Ja, idealerweise als Raumteiler im „Wohnschlauch“
Musik/Stereowand: Eher sekundär, wir schauen kaum TV, wenn dann im Wohnzimmer irgendwo hinter einem Schrank versteckt
Balkon, Dachterrasse: Terrasse sehr wichtig, Balkon eher nicht. Süd-Ostterrasse um die Vorzüge der Sonne zu genießen und gleichzeitig ihr zu entkommen wenn sie zu intensiv wird. Einliegerwohnung sollte auch eine kleine Terrasse gen Westen haben.
Garage, Carport: Doppelgarage für uns, Stellplatz für Einliegerwohnung
Nutzgarten, Treibhaus: Nutzgarten im Osten
weitere Wünsche/Besonderheiten/Tagesablauf:
Offener Zugang von Küche & Esszimmer auf Terrasse / Garten
Trockener/Überdachter Zugang von Garage ins Haus
Hausentwurf
Von wem stammt die Planung: Architekt, inkl. Unserem Input nach 2 Sitzungen
Was gefällt besonders? Warum: Eingang Einliegerwohnung (getrennt von uns); 1 Büro im EG, großer Hauswirtschaftsraum, Große Terrasse, hoher Kniestock im OG Süden, Platz für Klavier gefunden; viel Licht bei Podesttreppe im Norden
Was gefällt nicht? Warum? Insgesamt einfach zu groß und dadurch perspektivisch zu teuer, eigentlich wollten wir einen offenen Dachstuhl,
Preisschätzung lt Architekt/Planer: Summe 300+400 brutto inkl. Doppelgarage nach Bundeskorrekturfaktor: 725.000 € (ohne Außenanlagen und Nebenkosten)
Persönliches Preislimit fürs Haus, inkl Ausstattung: 600.000 € ohne Nebenkosten
favorisierte Heiztechnik: Hybridheizung Luft-Wasser-Wärmepumpe mit Gaswerttherme, Photovoltaikanlage auf Süddach
Wenn Ihr verzichten müsst, auf welche Details/Ausbauten
-könnt Ihr verzichten: 2. Arbeitszimmer im OG, kleinerer Allraum, kleineres Büro 1/Gast, unter Zähneknirschen noch das Duschbad im OG, Fenster gen Süden im Wohnzimmer
-könnt Ihr nicht verzichten: Duschbad im EG, Hauswirtschaftsraum mit Wäsche im EG, Getrennter Eingang und Außenbereich für Einliegerwohnung)
Warum ist der Entwurf so geworden, wie er jetzt ist?
- Begrenzte Möglichkeiten durch relativ schmales und längliches Grundstück (l 44m x b 22m) sowie kleines Baufenster (10m Grenze im Westen sowie Straße im Westen)
- Architekt bevorzugt „schmale Häuser“
- Terrassen & Gartenfläche nach Süden optimieren „wohnen nach süden“. Haus möglichst weit in den Norden gesetzt
- Dieser Planentwurf ermöglicht großzügiges Wohnen und Arbeiten mit einer großen Fenster- und Terrassenfläche nach Süden und Osten mit maximaler Abtrennung zur Straße
Wie kann dieses oder ein minimal reduziertes Raumprogramm effizienter geplant werden? Haben wir grobe Planungsfehler übersehen?
Grandioos schrieb:
Terrassen & Gartenfläche nach Süden optimieren „wohnen nach süden“. Haus möglichst weit in den Norden gesetzt
Dieser Planentwurf ermöglicht großzügiges Wohnen und Arbeiten mit einer großen Fenster- und Terrassenfläche nach Süden und Osten mit maximaler Abtrennung zur Straße
[...] Haben wir grobe Planungsfehler übersehen?Ich würde mir über die Straße wenig Gedanken machen, die sieht eher nicht nach einem Highway aus. Den groben Planungsfehler habt Ihr m.E. nicht übersehen, sondern begangen: die Knallsonne von Süden wird hereingeholt, und die Abendsonne im Westen ignoriert; ebenso wie der Garten zur ruhigsten Ostseite.https://www.instagram.com/11antgmxde/
https://www.linkedin.com/company/bauen-jetzt/
Grandioos schrieb:
Preisschätzung lt Architekt/Planer: Summe 300+400 brutto inkl. Doppelgarage nach Bundeskorrekturfaktor: 725.000 € (ohne Außenanlagen und Nebenkosten)
Persönliches Preislimit fürs Haus, inkl Ausstattung: 600.000 € ohne NebenkostenWie passt das denn finanziell zusammen??
Grandioos schrieb:
Wohnkeller mit Einliegerwohnung (ca. 50qm).Und die Einliegerwohnung braucht Ihr noch mal, weil ... ? Wenn Ihr jetzt schon 125 K im Minus seid, solltet Ihr dringend den Architekten mal zur Rede stellen. Wer plant so, wenn die Vorgabe klar nicht erfüllt wird? Merke: Bauvorhaben werden selten günstiger (aber ganz oft teurer) als geplant.Ähnliche Themen