ᐅ Sinnvolles Wohnkonzept für Keller-Einliegerwohnung
Erstellt am: 22.05.25 20:11
G
goldfisch13822.05.25 20:11Hallo zusammen,
wir möchten unseren Keller als Einliegerwohnung einrichten für Gäste bzw. temporär auch vermieten an eine Einzelperson. Wir haben hier noch keine Mieter, da wir aktuell noch in der Planung sind. Aufgrund einiger Industrieunternehmen wird die Wohnung aber trotz nicht allzu ergiebigem Grundriss für 1 Person ausreichen. Der Keller wird über einen Lichtschacht auf der Süd-Ost Seite mit Tageslicht versorgt. Hierbei haben wir beim Bau direkt möglichst breite Fenster eingeplant.
Nun Infos zur geplanten Einrichtung:
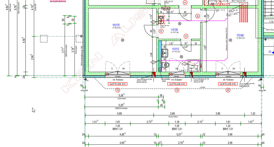
Wir haben im linken Raum (110170) den Wohn-/Essbereich vorgesehen. Direkt links neben der Eingangstür würden wir die Küchenzeile platzieren, gegenüber dann den Esstisch. Zusätzlich möchten wir hier auch noch eine kleine Wohnecke einrichten mit Fernseher (zusätzlichen TV-Anschluss haben wir im rechten Raum eingeplant).

Das Bad lässt sich bzgl. Positionierung der einzelnen Elemente aufgrund der bereits fixen Abwasserrohre nicht mehr großartig verändern. Ggf. planen wir die Dusche nochmal um und tauschen die Platzierung mit dem Waschtisch.
Der rechte Raum (110169) soll als Schlafzimmer genutzt werden. Mehr wird hier auch nicht möglich sein, wenn man bedenkt, dass noch ein Schrank o.Ä. Platz finden muss. Wir sind hier eben noch unschlüssig wie wir die Aufteilung gestalten möchten, um den geringen Platz möglichst effizient zu nutzen.
Temporär für die nächsten Jahre wird wie schon erwähnt vermietet, später soll die Räumlichkeit dann die eigene Wohnung für unser Kind sein, sobald es mal größer ist.
Danke euch vorab für eure Unterstützung und Ratschläge.
Beste Grüße
wir möchten unseren Keller als Einliegerwohnung einrichten für Gäste bzw. temporär auch vermieten an eine Einzelperson. Wir haben hier noch keine Mieter, da wir aktuell noch in der Planung sind. Aufgrund einiger Industrieunternehmen wird die Wohnung aber trotz nicht allzu ergiebigem Grundriss für 1 Person ausreichen. Der Keller wird über einen Lichtschacht auf der Süd-Ost Seite mit Tageslicht versorgt. Hierbei haben wir beim Bau direkt möglichst breite Fenster eingeplant.
Nun Infos zur geplanten Einrichtung:
Wir haben im linken Raum (110170) den Wohn-/Essbereich vorgesehen. Direkt links neben der Eingangstür würden wir die Küchenzeile platzieren, gegenüber dann den Esstisch. Zusätzlich möchten wir hier auch noch eine kleine Wohnecke einrichten mit Fernseher (zusätzlichen TV-Anschluss haben wir im rechten Raum eingeplant).
Das Bad lässt sich bzgl. Positionierung der einzelnen Elemente aufgrund der bereits fixen Abwasserrohre nicht mehr großartig verändern. Ggf. planen wir die Dusche nochmal um und tauschen die Platzierung mit dem Waschtisch.
Der rechte Raum (110169) soll als Schlafzimmer genutzt werden. Mehr wird hier auch nicht möglich sein, wenn man bedenkt, dass noch ein Schrank o.Ä. Platz finden muss. Wir sind hier eben noch unschlüssig wie wir die Aufteilung gestalten möchten, um den geringen Platz möglichst effizient zu nutzen.
Temporär für die nächsten Jahre wird wie schon erwähnt vermietet, später soll die Räumlichkeit dann die eigene Wohnung für unser Kind sein, sobald es mal größer ist.
Danke euch vorab für eure Unterstützung und Ratschläge.
Beste Grüße
goldfisch138 schrieb:
Direkt links neben der EingangstürDirekt? Welches direkt links von der Eingangstür meinst Du?goldfisch138 schrieb:
gegenüberUnd welches Gegenüber?goldfisch138 schrieb:
Zusätzlich möchten wir hier auch noch eine kleine Wohnecke einrichten mit FernseherWollt Ihr die Wohnung möbliert vermieten?H
hanghaus202323.05.25 08:46Wo baut Ihr denn?
Wer will denn im Keller wohnen. Dein Kind später sicher nicht. Mieter? Das tust Du Dir nicht an. Denn die wechseln laufend falls Du überhaupt jemanden findest. Mal ganz davon abgesehen, das sich so eine Investition niemals rechnet.
Gibt es denn einen eigenen Eingang für die Einliegerwohnung?
Wie weit schaut der Keller aus der Erde raus?
So etwas sollte man nur planen wenn man am Hang baut.
Zeig doch mal das Grundstück und den ganzen Keller.
Zeichne mal die angedachte Möblierung in den Grundriss.
Wer will denn im Keller wohnen. Dein Kind später sicher nicht. Mieter? Das tust Du Dir nicht an. Denn die wechseln laufend falls Du überhaupt jemanden findest. Mal ganz davon abgesehen, das sich so eine Investition niemals rechnet.
Gibt es denn einen eigenen Eingang für die Einliegerwohnung?
Wie weit schaut der Keller aus der Erde raus?
So etwas sollte man nur planen wenn man am Hang baut.
Zeig doch mal das Grundstück und den ganzen Keller.
Zeichne mal die angedachte Möblierung in den Grundriss.
hanghaus2023 schrieb:
Zeig doch mal das Grundstück und den ganzen Keller.Das alles sollte hinreichend bekannt sein. Der TE postet sehr oft das Kellergeschoss wie auch das Haus. Da gibt es einige ThreadsW
wiltshire23.05.25 12:34Du kannst das so machen wie geplant - da würde ich nichts mehr ändern.
Bei der Vermietung empfehle ich Dir wegen der juristischen Handlungsfähigkeit möbliert zu vermieten. Die Kellerlage ist wenig attraktiv, aber jemand, der die Wohnung während der Arbeitswoche nutzt und am Wochenende zu Hause ist könnte sich damit gut arrangieren. Gut ist, wenn das Unternehmen die Wohnung für den Mieter anmietet.
Die Wohnung später einem jugendlichen Kinde bereit zustellen ist eine gute und großzügige Idee. Ich kenne kaum Jugendliche, die das wegen des geringen Tageslichts nicht wünschen wollten. Einer meiner beiden Jungs findet das sogar explizit wünschenswert, da die Monitore...
Verwende für die Einrichtung ein allgemein gefälliges modernes Design wie beispielsweise IKEA und halte Dich an das was eine Mehrheit an Ausstattung wünscht (Spülmaschine, Kühl-Gefrier-Kombi, große Spüle, Induktionshert, Ofen mit Mikrowellenfunktion, Ecksofa, große Fernseher in Wohn- und Schlafzimmer, großes Bett, viel Schrankraum, weniger Regal, gefällige Bilder, funktionale Beleuchtung mit kleinen Akzenten, kleinerer Esstisch, viele Garderobenhaken, Schuhschrank, große Bodenfliesen in Eingang und Bad, Laminat in den Wohnräumen, großes Waschbecken, Dusche ohne Stufe, keine Badewanne, eigener LAN Anschluss mit eigenem WLAN Router am gemeinschaftlichen Internetzugang, eigene Unterverteilung für Strom ggfs. Strom- und Wasserzähler, Rollladen.
Bei der Vermietung empfehle ich Dir wegen der juristischen Handlungsfähigkeit möbliert zu vermieten. Die Kellerlage ist wenig attraktiv, aber jemand, der die Wohnung während der Arbeitswoche nutzt und am Wochenende zu Hause ist könnte sich damit gut arrangieren. Gut ist, wenn das Unternehmen die Wohnung für den Mieter anmietet.
Die Wohnung später einem jugendlichen Kinde bereit zustellen ist eine gute und großzügige Idee. Ich kenne kaum Jugendliche, die das wegen des geringen Tageslichts nicht wünschen wollten. Einer meiner beiden Jungs findet das sogar explizit wünschenswert, da die Monitore...
Verwende für die Einrichtung ein allgemein gefälliges modernes Design wie beispielsweise IKEA und halte Dich an das was eine Mehrheit an Ausstattung wünscht (Spülmaschine, Kühl-Gefrier-Kombi, große Spüle, Induktionshert, Ofen mit Mikrowellenfunktion, Ecksofa, große Fernseher in Wohn- und Schlafzimmer, großes Bett, viel Schrankraum, weniger Regal, gefällige Bilder, funktionale Beleuchtung mit kleinen Akzenten, kleinerer Esstisch, viele Garderobenhaken, Schuhschrank, große Bodenfliesen in Eingang und Bad, Laminat in den Wohnräumen, großes Waschbecken, Dusche ohne Stufe, keine Badewanne, eigener LAN Anschluss mit eigenem WLAN Router am gemeinschaftlichen Internetzugang, eigene Unterverteilung für Strom ggfs. Strom- und Wasserzähler, Rollladen.
H
hanghaus202323.05.25 13:43ypg schrieb:
Das alles sollte hinreichend bekannt sein. Der TE postet sehr oft das Kellergeschoss wie auch das Haus. Da gibt es einige ThreadsDanke. Warum macht man dann einen neuen Beitrag auf? Ich bin nicht der @11ant.Ich mag halt nicht Alle Beitraege des TE durchsuchen.
Ähnliche Themen