Hausbau - Ratgeber
Bauherrenhilfe
- Bauherrenhilfe vor Vertragsabschluss
-- Warum einen unabhängigen Baubetreuer?
-- Vertragsgrundlagen
-- Bausumme
-- Zahlungsplan zur Kostenkontrolle
-- Pflichten des Bauherren vor Vertragsabschluss
-- Unterlagen beim Hausbau vor Vertragsabschluss
- Bauherrenhilfe nach Vertragsabschluss
-- Bauantrag bei Behörden
-- Bau-Genehmigungsverfahren bei Baubehörden
-- Bauspezifische Versicherungen
-- Bauzeitenplan
-- Baubeginn - die Letzten Pflichten der Bauherrschaft
- Bauherrenhilfe während der Bauzeit
- Gewährleistungsansprüche
- Bauabnahme
Baufinanzierung
- Baufinanzierung - Allgemeine Fragen
- Kreditarten
- Kredit-Konditionen
- Bausparen
- Staatliche Förderungen
- Verkehrswert
- Haushaltsrechnung und Bonität
Hausbau Planung
- Haustypen
- Hausbau Vorbereitungsarbeiten
- Das Baugrundstück
- Baugrund beim Hausbau
- Baurecht
- Gebäudeschutz
- Erdarbeiten und Wasserhaltung
- Stützmauern
- Einfriedung
- Untergeschoss
- Kanalisation
- Tragende Elemente
- Nichttragende Innenwände
- Fundation / Fundament
- Deckenkonstruktionen
- Dächer
- Kaminanlagen
- Treppen Rampen Leitern
- Dachbeläge und Spengler
- Fenster
- Sonnen und Wetterschutz
- Aussenputze
- Einbauten, Küchen, Türen
- Bodenbeläge und Unterlagsböden
- Parkett
- Gips, Wand, Decke
Haustechnik und Energie
- Heiztechnik
- Lüftung und Klimatechnik
- Sanitärtechnik
- Elektrotechnik
- Erneuerbare Energie
Whirlpools / Jacuzzi
Hausbau Magazin
- Baufinanzierung trotz Krise?
- Das Blockhaus
- Moderne Dämmstoffe im Vergleich
- Erker Vor- und Nachteile
- Glasflächen beim Hausbau
- Günstig ein Haus Bauen
- Mediterraner Hausbaustil
- Mehrgenerationenhaus
- Moderne Architektur
- Gartengestaltung leicht gemacht
- Traditioneller Ziegelbau
- Villa als höchster Traum
- Im Eigenheim Ruhestand geniessen
- Altbau sanieren
- Kauf einer Holzgarage
- Immobilienmakler
- Arbeitshandschuhe für den Winter
- Zuhause verschönern
- Outdoor-Plissees
- Schlafzimmer planen
- Terrassenüberdachung
- Wohngebäudeversicherung
- Zaunarten und Eigenschaften
- Hauseingang gestalten
- Der perfekte Grundriss
- Sparsamer heizen im Altbau
- Einfamilienhaus smart finanzieren
- Planung einer PV-Anlage
- Neues Haus
- Immobilienfinanzierung
- Installation einer Photovoltaikanlage
- Asbest erkennen und entfernen
- Gartenpflege im Frühling – worauf achten
- Sauna im Fokus - Wellness zuhause
- Erfolgreich vermieten
- Die perfekte Winterbekleidung
- Das Niedrigenergiehaus
- Der April und seine Stürme
- Architektonische Vielfalt
- Ökologisch und nachhaltig bauen
- Das perfekte Schlafzimmer
- Nachhaltige Energieversorgung
- Zukunftsorientiert bauen
- Nachhaltigkeit beim Hausbau
- Tiny Houses
- Wärmepumpen als nachhaltige Heizvariante
- Maßgeschneiderten Kleiderschrank
- Der richtige Baukredit
- Ratgeber für erfolgreichen Hausbau
- Haus als Altersvorsorge
Do-it-yourself Anleitungen
- Verlegeanleitung für Bodenbeläge und Parkett
- Bodenbeläge und Parkett reinigen und pflegen
- Malerarbeiten am Haus
- Garten Tipps
- Umzug und Reinigung

ᐅ Grundrissplanung Stadtvilla 130 qm

Erstellt am: 13.06.17 10:24
B
bika5
B
bika5
13.06.17 10:24
Hallo liebe Forum-mitglieder!

Es werden Meinungen und Verbesserungsvorschläge gesucht.


Bebauungsplan/Einschränkungen passt

Größe des Grundstücks 573qm

Hang nein

Grundflächenzahl 0,2

Geschossflächenzahl 0,5

Baufenster, Baulinie und –grenze 3m Straßenseite

Randbebauung

Anzahl Stellplatz 2

Geschossigkeit 2

Dachform Walmdach

Stilrichtung Stadtvilla

Ausrichtung West

Maximale Höhen/Begrenzungen 8,29


Anforderungen der Bauherren

Stilrichtung, Dachform, Gebäudetyp Stadtvilla

Keller, Geschosse ohne Keller, 2 Geschosse

Anzahl der Personen, Alter 4 ( 36,34,6,1)

Raumbedarf im EG, OG ???

Büro: Familiennutzung oder Homeoffice? Familie ( Gäste/Abstell)

Schlafgäste pro Jahr 20

offene oder geschlossene Architektur offen

konservativ oder moderne Bauweise modern

offene Küche, Kochinsel offen

Anzahl Essplätze 4-6

Kamin ja

Balkon, Dachterrasse nein

Garage, Carport Doppelcarport

Nutzgarten, Treibhaus ?

Hausentwurf

Von wem stammt die Planung:

-Planer eines Bauunternehmens

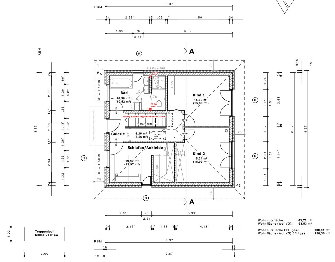
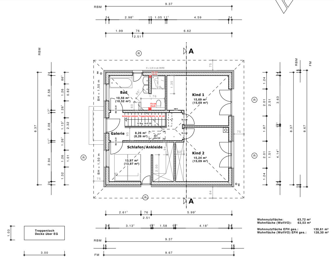
Was gefällt besonders? Warum? Küche offen aber trotzdem abgegrenzt zu Wohnzimmer, vernünftige Größe Kinderzimmer, gerade Treppe

Was gefällt nicht? Warum? Offene Diele (geraüschübertragung nach oben, man schaut von Eingangstür ins Wohnzimmer rein)

favorisierte Heiztechnik: Erdwärme, Luftwärme


Wenn Ihr verzichten müsst, auf welche Details/Ausbauten

-könnt Ihr verzichten: Großes Schlafzimmer, große Küche, große Hauswirtschaftsraum, Garage, Umkleide?

-könnt Ihr nicht verzichten: Gästezimmer


Warum ist der Entwurf so geworden, wie er jetzt ist? ZB Fast alle unsere Vorstellungen wurden auf kleine Wohnfläche umgesetzt.

Standardentwurf vom Planer? ja, überarbeitet

Entsprechende/Welche Wünsche wurden vom Architekten umgesetzt? Gerade Treppe, Gästezimmer, Küche in einer Nische, Gäste-WC mit Dusche, Große Kinderzimmer

Himmelsausrichtung stimmt auf dem Grundriss nicht, die richtige habe ich auf dem Lageplan gezeichnet, Eingang wird von der Straßenseite geplant, Essplatz wird vergrößert indem man die Küche etwa 40 cm Richtung Hauswirtschaftsraum schiebt und die Treppenwand verkürzt, mit Fenstergrößen und Lage bin ich noch nicht zufrieden, OG Bad ist auch noch verbesserungswürdig, haben ein Termin in Badstudio geplant.
Lageplan eines Baugebiets mit Parzellen-Nummern, Straßennamen, roter Grenzlinie und Nordpfeil.

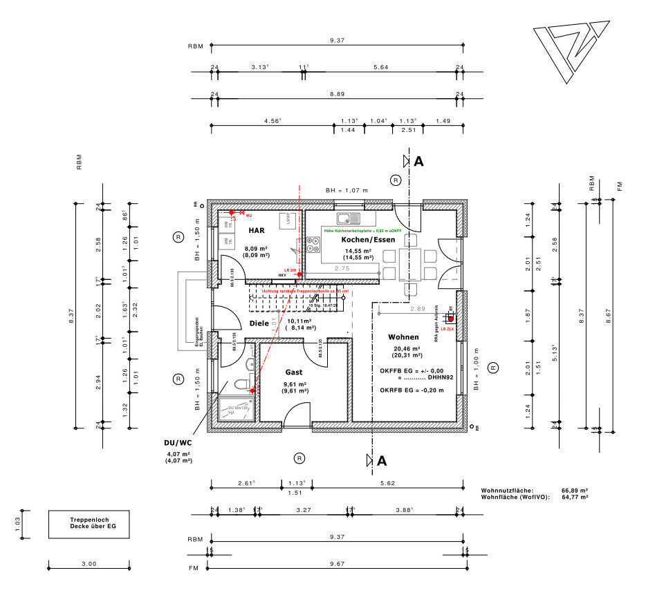
Grundriss eines Hauses mit Küche/Essbereich, Wohnzimmer, Diele, Gästezimmer, HAR und DU/WC.

Grundriss eines Obergeschosses mit Schlafzimmer/Ankleide, Bad, Galerie und zwei Kinderzimmer.


Vielen Dank für eure Anregungen .
M
Marvinius
13.06.17 10:33
Keine Tür zwischen Wohnzimmer und Hauseingang? Finde ich ungemütlich. Flur neben der Treppe über 3m nur knapp 1.0m breit? Das wird ein Schlauch. Euer Haus ist eventuell zu klein für eine gerade Treppe.
S
sven.conzi
13.06.17 12:54
Wie soll der Weg von Diele in die Küche erfolgen? Es sollte möglichst ein Durchgang von mindestens 1 m bleiben. Eventuell Hebeschiebetür statt Flügeltüren zur Terrasse einplanen, sicherlich auch teurer.
M
MIA_SAN_MIA__
13.06.17 13:23
Servus,

ich hab aktuell das selbe Problem wie du, die gerade Treppe in das Hauskonzept zu integrieren...

Soll der Tisch tatsächlich wie eingezeichnet stehen? eher nicht oder?
A
aero2016
13.06.17 14:40
Passt das wirklich mit eurem Esstisch in dem Durchgang? Wie breit ist der Tisch, der dort mal stehen soll?
Mich würde stören, dass immer irgendwie Stühle gerückt werden müssen wenn die Terrassentüren geöffnet werden sollen.

Ich würde Ankleide und Schlafzimmer tauschen. Also Ankleide rechts, Schlafzimmer links.
M
Marvinius
13.06.17 15:50
Im Katalog eines hochpreisigen Anbieters, dessen Name mit V beginnt, gibt es interessante Lösungen für gerade Treppen.
küchetreppewohnzimmerschlafzimmerstraßenseitedachformstadtvillakellergeschossegarage