ᐅ Neubau: ca. 280m2 plus Keller - Eure Anregungen
Erstellt am: 15.01.21 13:06
P
Pfalzpaulianer15.01.21 13:06Hallo zusammen,
Vielen Dank noch einmal fuer eure Anregungen und Feedback zu unserem ersten Entwurf. Der Architekt hat sich noch einmal ins Zeug gelegt und wir sind nun fast beim Bauantrag. Hier nun also die fast finale Version. Wir sind dankbar fuer Eure Meinungen, Gedanken, Vorschlaege.
Anbei der Fragebogen
Bebauungsplan/Einschränkungen : Paragraph 34 , wie Nachbarbebauung
Größe des Grundstücks: 709 qm (derzeit mit Altbestand bebaut - Abbruch im Gange)
Hang nein
Grundflächenzahl n.A
Geschossflächenzahl nA
Baufenster, Baulinie und -grenze: 3 m
Randbebauung
Anzahl Stellplatz 2
Geschossigkeit 2
Dachform Satteldach
Stilrichtung : modernes Haus im klassischen Pfaelzer Gewand ( Biberschwanzdach, Sandsteinelemente, Fensterläden)
Ausrichtung Sued
Maximale Höhen/Begrenzungen : wie Nachbarbebauung
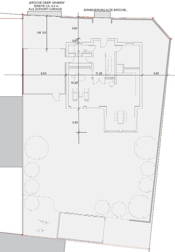
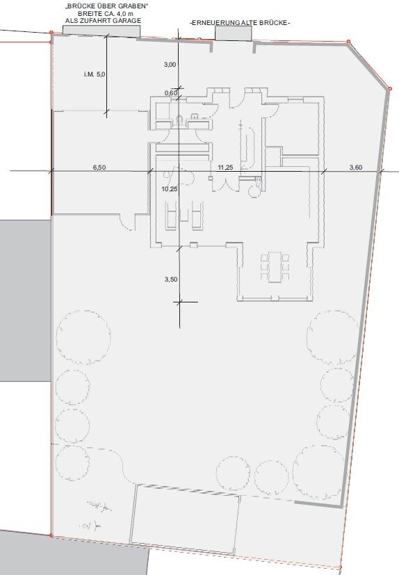
Anforderungen der Bauherren: Der traumhaften Blick in die Weinberge (Norden) sollte im Grundriss beruecksichtigt werden.
Stilrichtung, Dachform, Gebäudetyp: Da unser Grundstück in einem Weinort liegt, moechten wir gerne einen Neubau mit klassischen Pfaelzer Stilelementen, ohne jedoch kitschig oder altbacken zu wirken.
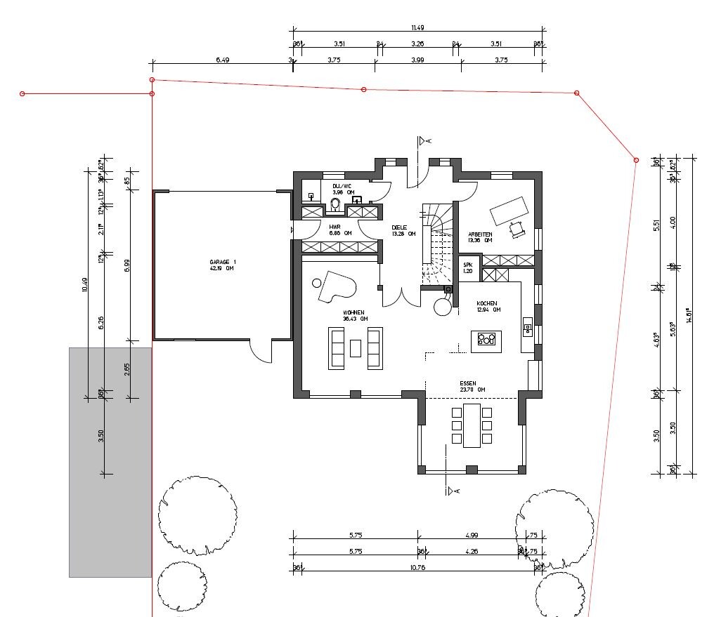
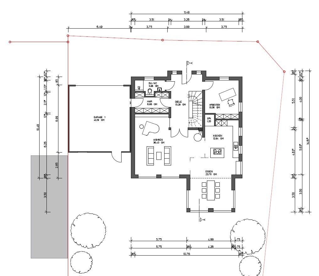
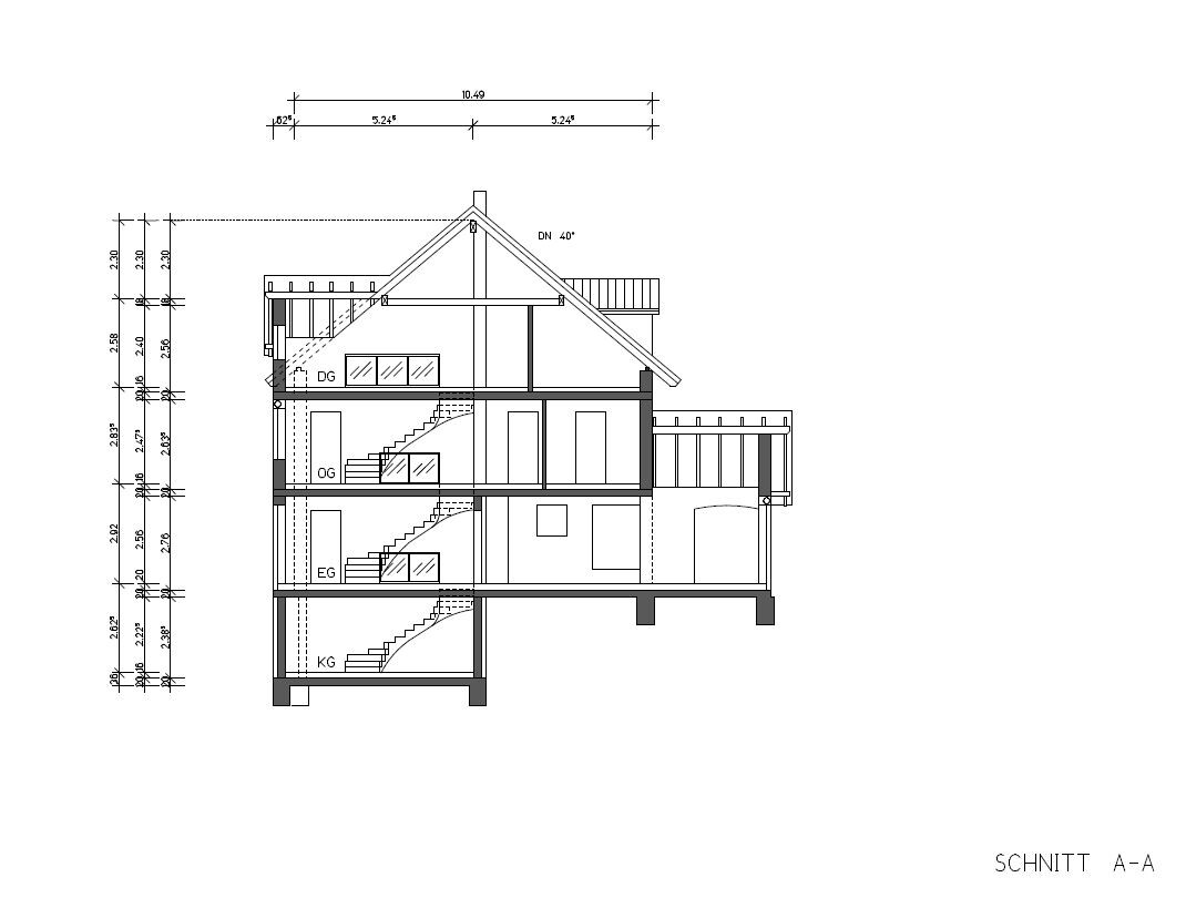
Keller, Geschosse (Voll oder Teilkeller, 2 Vollgeschosse plus DG
Anzahl der Personen, Alter: 5, (41,40 und 3 Kinder (13,9,9)
Raumbedarf im EG, OG: Grosser Wohn und Essbereich im EG (Platz fuer ein Klavier), Bad und Fernsehzimmer im EG (kann auch als Schlafzimmer genutzt werden, bei eventueller Pflegebeduerftigkeit von Verwandten)
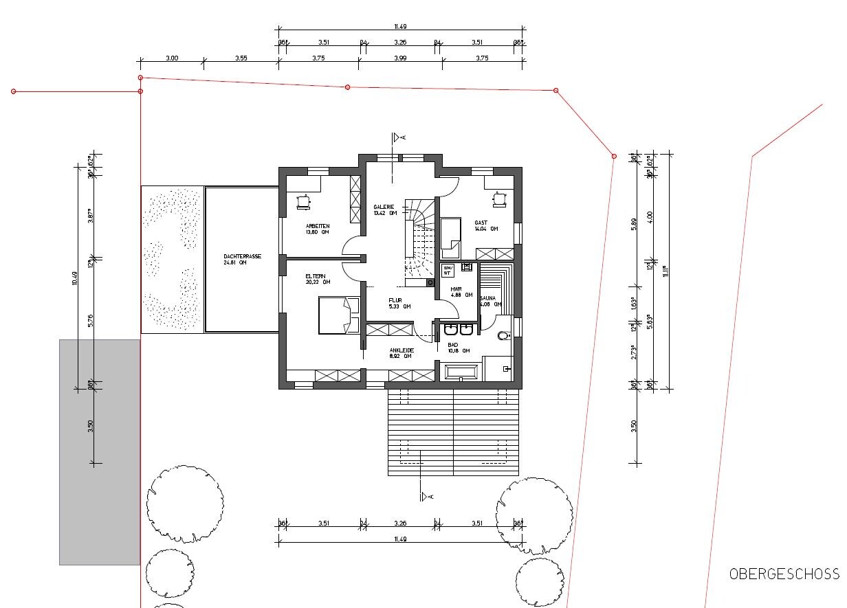
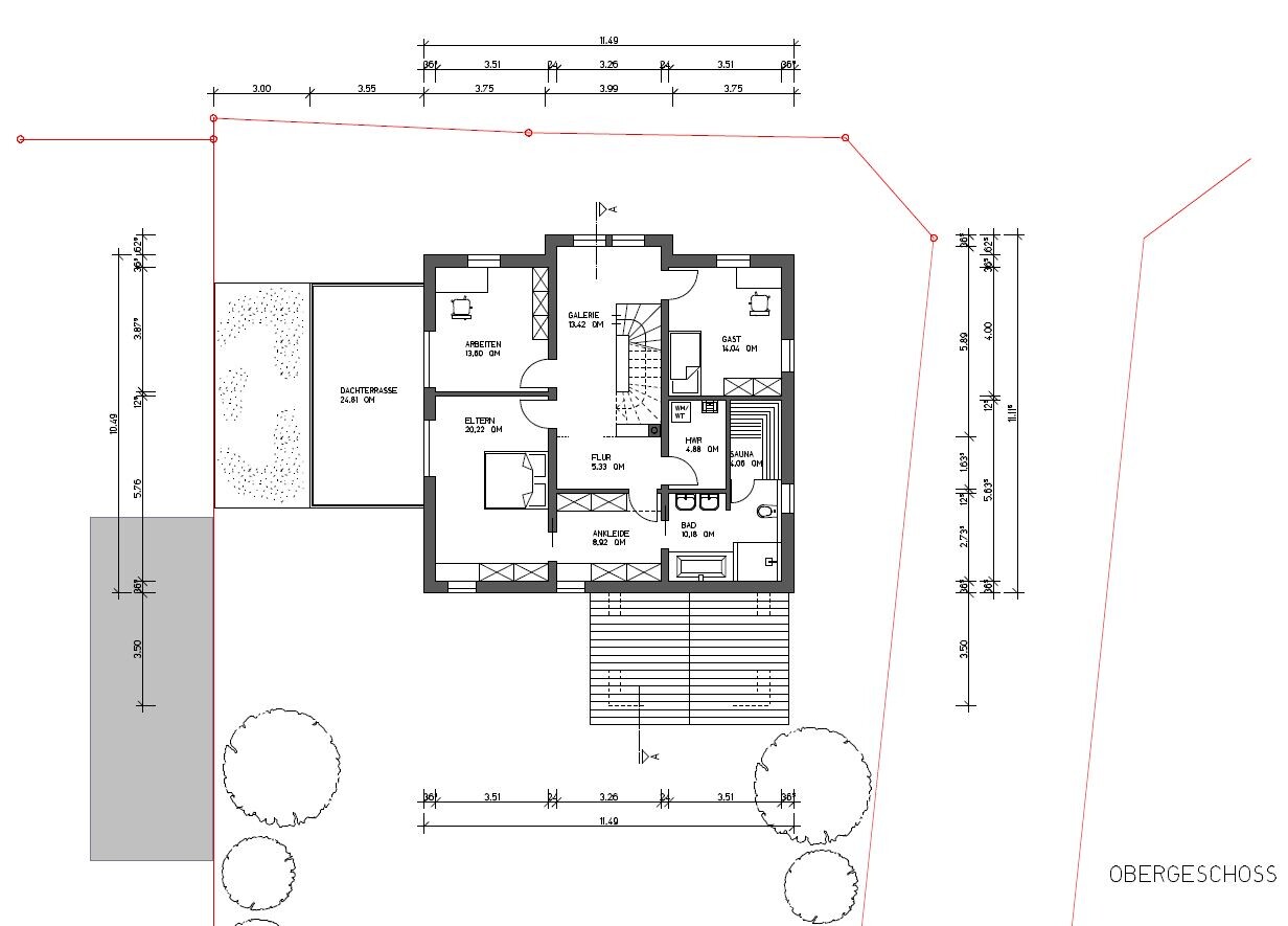
1 OG: Elternbereich inkl Ankleide und Bad, Homeoffice Mann, Gaeste/ Büro
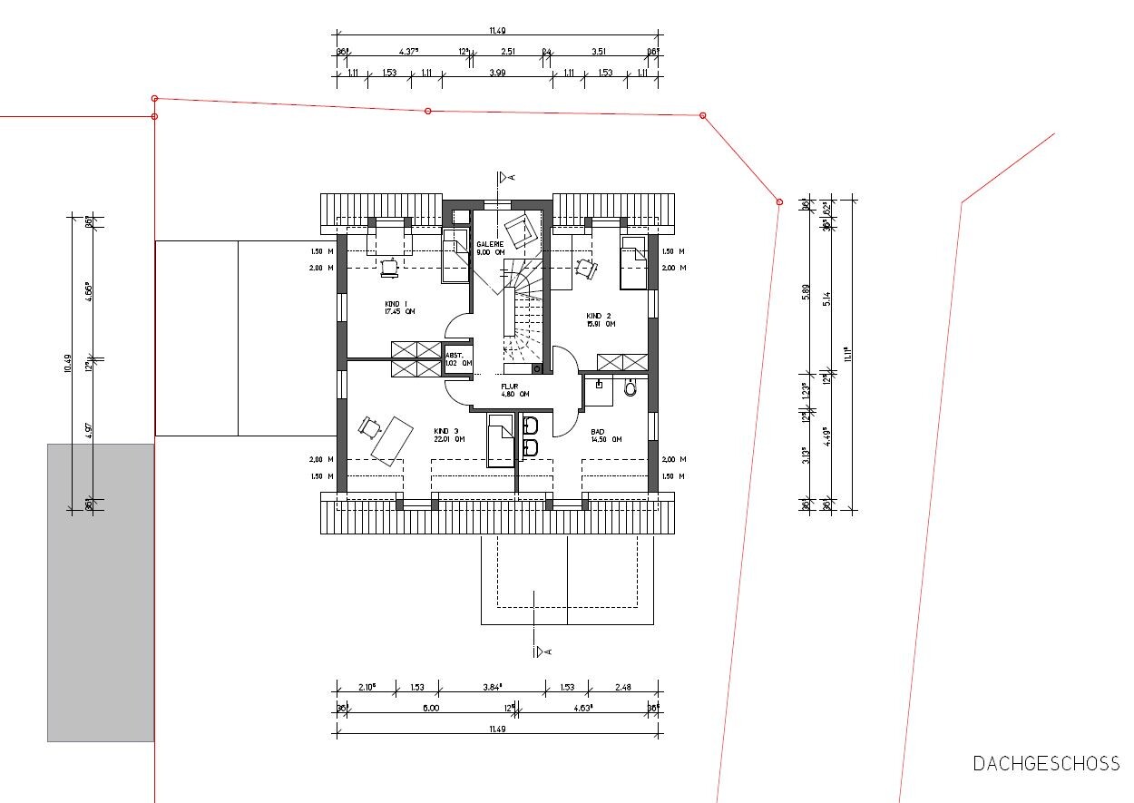
2 OG: Kinderbereich mit 3 Schlafzimmer und Kinderbad
Büro: Familiennutzung oder Homeoffice: 2 mal Homeoffice
Schlafgäste pro Jahr: 10
offene oder geschlossene Architektur offen
konservativ oder moderne Bauweise: Mix,
offene Küche, Kochinsel
Anzahl Essplätze: 12
Kamin: ja, schwedischer Rundkachelofen.
Musik/Stereowand: nein , Fernsehzimmer im 1 OG (Gästezimmer)
Balkon, Dachterrasse: Dachterrasse auf Doppelgarage mit Blick in die Weinberge
Garage, Carport: Doppelgarage
Hausentwurf
Von wem stammt die Planung: Architekt
Was gefällt besonders? Warum? Abgeschlossener Eltern und Kinderbereich, Dachterrasse mit herrlichem Blick in die Weinberge auch aus dem Homeoffice, separates Fernsehzimmer, offene Küche mit grosszuegigem Wohn und Essbereich, Sitzbereich in der Galerie im 1 OG und DG
Was gefällt nicht? Warum? Fenstergroessen muessen im OG noch final geplant werden. Wahrscheinlich etwas groesser. Rundfenster gefallen uns nicht so. (Anbau und Nordansicht). Habt ihr hier alternative Ideen , die zum Haus passen?
Preisschätzung lt Architekt/Planer: erste Schaetzung ca 900k inkl Nebenkosten (ohne Garten)
Persönliches Preislimit fürs Haus, inkl Ausstattung: 900k
favorisierte Heiztechnik: Wärmepumpe mit Kuehlfunktion
[Wenn Ihr verzichten müsst, auf welche Details/Ausbauten: Vollkeller (Ist eine Preisfrage, da das derzeitige Haus einen Keller hat und abgerissen werden muss. ein Teilkeller ist geplant und je nach Kosten fuer die Auffuellung kommt auch ein Vollkeller in Frage.
-könnt Ihr verzichten: grosses Elternschlafzimmer, Kinderbad im DG kann noch kleiner sein
-könnt Ihr nicht verzichten: Kinderetage mit Kinderbad , Dachterrasse, grosse Ankleide,
,
Warum ist der Entwurf so geworden, wie er jetzt ist? Viele Gespraeche mit Architekten, Uns ist es wichtig, dass das Haus auch von außen nicht 0815 aussieht. Teurer, aber einkalkuliert. ZB. Fensterläden und Sandsteinelemente
Entsprechende/Welche Wünsche wurden vom Architekten umgesetzt? separate Eltern und Kinderetage
Was macht ihn in Euren Augen besonders gut oder schlecht?
Super: abgeschlossene Bereiche, grosszuegiges Wohn- und Esszimmer
Was ist die wichtigste/grundlegende Frage zum Grundriss in 130 Zeichen zusammengefasst?
Kinderbad mit separater Toilette , um den morgendlichen Stau der 3 Schulkinder zu entzerren?
Ideen zu den Außenansichten?
Viel Spass beim Angucken und vielen Dank fuer Eure Hilfe.









Vielen Dank noch einmal fuer eure Anregungen und Feedback zu unserem ersten Entwurf. Der Architekt hat sich noch einmal ins Zeug gelegt und wir sind nun fast beim Bauantrag. Hier nun also die fast finale Version. Wir sind dankbar fuer Eure Meinungen, Gedanken, Vorschlaege.
Anbei der Fragebogen
Bebauungsplan/Einschränkungen : Paragraph 34 , wie Nachbarbebauung
Größe des Grundstücks: 709 qm (derzeit mit Altbestand bebaut - Abbruch im Gange)
Hang nein
Grundflächenzahl n.A
Geschossflächenzahl nA
Baufenster, Baulinie und -grenze: 3 m
Randbebauung
Anzahl Stellplatz 2
Geschossigkeit 2
Dachform Satteldach
Stilrichtung : modernes Haus im klassischen Pfaelzer Gewand ( Biberschwanzdach, Sandsteinelemente, Fensterläden)
Ausrichtung Sued
Maximale Höhen/Begrenzungen : wie Nachbarbebauung
Anforderungen der Bauherren: Der traumhaften Blick in die Weinberge (Norden) sollte im Grundriss beruecksichtigt werden.
Stilrichtung, Dachform, Gebäudetyp: Da unser Grundstück in einem Weinort liegt, moechten wir gerne einen Neubau mit klassischen Pfaelzer Stilelementen, ohne jedoch kitschig oder altbacken zu wirken.
Keller, Geschosse (Voll oder Teilkeller, 2 Vollgeschosse plus DG
Anzahl der Personen, Alter: 5, (41,40 und 3 Kinder (13,9,9)
Raumbedarf im EG, OG: Grosser Wohn und Essbereich im EG (Platz fuer ein Klavier), Bad und Fernsehzimmer im EG (kann auch als Schlafzimmer genutzt werden, bei eventueller Pflegebeduerftigkeit von Verwandten)
1 OG: Elternbereich inkl Ankleide und Bad, Homeoffice Mann, Gaeste/ Büro
2 OG: Kinderbereich mit 3 Schlafzimmer und Kinderbad
Büro: Familiennutzung oder Homeoffice: 2 mal Homeoffice
Schlafgäste pro Jahr: 10
offene oder geschlossene Architektur offen
konservativ oder moderne Bauweise: Mix,
offene Küche, Kochinsel
Anzahl Essplätze: 12
Kamin: ja, schwedischer Rundkachelofen.
Musik/Stereowand: nein , Fernsehzimmer im 1 OG (Gästezimmer)
Balkon, Dachterrasse: Dachterrasse auf Doppelgarage mit Blick in die Weinberge
Garage, Carport: Doppelgarage
Hausentwurf
Von wem stammt die Planung: Architekt
Was gefällt besonders? Warum? Abgeschlossener Eltern und Kinderbereich, Dachterrasse mit herrlichem Blick in die Weinberge auch aus dem Homeoffice, separates Fernsehzimmer, offene Küche mit grosszuegigem Wohn und Essbereich, Sitzbereich in der Galerie im 1 OG und DG
Was gefällt nicht? Warum? Fenstergroessen muessen im OG noch final geplant werden. Wahrscheinlich etwas groesser. Rundfenster gefallen uns nicht so. (Anbau und Nordansicht). Habt ihr hier alternative Ideen , die zum Haus passen?
Preisschätzung lt Architekt/Planer: erste Schaetzung ca 900k inkl Nebenkosten (ohne Garten)
Persönliches Preislimit fürs Haus, inkl Ausstattung: 900k
favorisierte Heiztechnik: Wärmepumpe mit Kuehlfunktion
[Wenn Ihr verzichten müsst, auf welche Details/Ausbauten: Vollkeller (Ist eine Preisfrage, da das derzeitige Haus einen Keller hat und abgerissen werden muss. ein Teilkeller ist geplant und je nach Kosten fuer die Auffuellung kommt auch ein Vollkeller in Frage.
-könnt Ihr verzichten: grosses Elternschlafzimmer, Kinderbad im DG kann noch kleiner sein
-könnt Ihr nicht verzichten: Kinderetage mit Kinderbad , Dachterrasse, grosse Ankleide,
,
Warum ist der Entwurf so geworden, wie er jetzt ist? Viele Gespraeche mit Architekten, Uns ist es wichtig, dass das Haus auch von außen nicht 0815 aussieht. Teurer, aber einkalkuliert. ZB. Fensterläden und Sandsteinelemente
Entsprechende/Welche Wünsche wurden vom Architekten umgesetzt? separate Eltern und Kinderetage
Was macht ihn in Euren Augen besonders gut oder schlecht?
Super: abgeschlossene Bereiche, grosszuegiges Wohn- und Esszimmer
Was ist die wichtigste/grundlegende Frage zum Grundriss in 130 Zeichen zusammengefasst?
Kinderbad mit separater Toilette , um den morgendlichen Stau der 3 Schulkinder zu entzerren?
Ideen zu den Außenansichten?
Viel Spass beim Angucken und vielen Dank fuer Eure Hilfe.
Oha. Der Stiehlmix aus fast schon jodelnd folkloristischen Fenstern mit und ohne Schlagläden, mit und ohne Kämpfer und mit und ohne Stichbogen sekundiert von einer "Bauhaus"garage, Reschpeckt da habt´s Ihr ja sauber was zsammbastelt. Gabat´s des a in scheh ?
Ich wußte gar nicht, daß es von einer McMansion Hell auch eine Saumagen Edition gibt *LOL*
https://www.instagram.com/11antgmxde/
https://www.linkedin.com/company/bauen-jetzt/
Ich wußte gar nicht, daß es von einer McMansion Hell auch eine Saumagen Edition gibt *LOL*
https://www.instagram.com/11antgmxde/
https://www.linkedin.com/company/bauen-jetzt/
Im übrigen hätte man den Thread https://www.hausbau-forum.de/threads/grundriss-efh-mit-keller-2-geschossig-doppelgarage-ca-290qm-nf.37060/ auch einfach fortsetzen können und sehe ich keine wesentliche Änderung - eigentlich nur den Querschnitt des Treppenlochs.
https://www.instagram.com/11antgmxde/
https://www.linkedin.com/company/bauen-jetzt/
https://www.instagram.com/11antgmxde/
https://www.linkedin.com/company/bauen-jetzt/
P
Pfalzpaulianer15.01.21 15:34Vielen Dank für deinen gewohnt sehr konstruktives Feedback. Bin ich schon gewohnt aus all deinen anderen Beiträgen.
Ohne den Grundriss anzuschauen.
Aufteilung liest sich super
Ansicht Mehrfamilienhaus 1990. Irgendwie hatte ich ein andres Haus vor Augen. Klare Linien, Rechteck, 2vG Satteldach. von Außen wirklich ehr alter Bauernhof und innen modern.
Egal ich schaue mir jetzt den Grundriss an. An 11ant’s Worten ist leider was Wahres.
Aufteilung liest sich super
Ansicht Mehrfamilienhaus 1990. Irgendwie hatte ich ein andres Haus vor Augen. Klare Linien, Rechteck, 2vG Satteldach. von Außen wirklich ehr alter Bauernhof und innen modern.
Egal ich schaue mir jetzt den Grundriss an. An 11ant’s Worten ist leider was Wahres.
EG
Bad nicht geeignet für pflegebedürftige Verwandte. Arbeitszimmer mit Einzelbett könnte funktionieren.
Küche Insel zu klein. Finde das L unergonomisch. Was soll in die Mini Speis?
Hauswirtschaftsraum oder Garderobe?
Braucht ihr keinen Schrank im Allraum für Spiele, CD‘s, Gläser, Bücher. Sofa‘s wirken recht klein. Bitte mal mit allen Möbeln einzeichnen.
Im DG würde ich die Größe der Kinderzimmer ausgleichen.
Budget könnte knapp werden.
Bad nicht geeignet für pflegebedürftige Verwandte. Arbeitszimmer mit Einzelbett könnte funktionieren.
Küche Insel zu klein. Finde das L unergonomisch. Was soll in die Mini Speis?
Hauswirtschaftsraum oder Garderobe?
Braucht ihr keinen Schrank im Allraum für Spiele, CD‘s, Gläser, Bücher. Sofa‘s wirken recht klein. Bitte mal mit allen Möbeln einzeichnen.
Im DG würde ich die Größe der Kinderzimmer ausgleichen.
Budget könnte knapp werden.
Ähnliche Themen