ᐅ Grundriss Einfamilienhaus mit Keller, 2 geschossig, Doppelgarage ca. 290qm + NF
Erstellt am: 11.11.20 19:48
P
PfalzpaulianerP
Pfalzpaulianer11.11.20 19:48Hallo zusammen,
Haben nun endlich einen Grundriss von userem Architekten bekommen und moechten diesen gerne zwecks Feedback mit euch teilen.
Anbei der Fragebogen und schon einmal vielen Dank im voraus fuer euer Feedback.
Bebauungsplan/Einschränkungen : Paragraph 34 , wie Nachbarbebauung
Größe des Grundstücks: 709 qm (derzeit mit Altbestand bebaut ( 2 geschossig, ca 155m2 mit Keller und Garage. Abriss unumgaenglich
Hang nein
Grundflächenzahl n.A
Geschossflächenzahl nA
Baufenster, Baulinie und -grenze: 3 m
Randbebauung
Anzahl Stellplatz 2
Geschossigkeit 2
Dachform Satteldach
Stilrichtung : modernes Haus im klassischen Pfaelzer Gewand ( Biberschwanzdach, Sandsteinelemente, Fensterläden)
Ausrichtung Sued
Maximale Höhen/Begrenzungen : ca 10 m
weitere Vorgaben
Anforderungen der Bauherren: Der traumhaften Blick in die Weinberge (Norden) sollte im Grundriss beruecksichtigt werden.
Stilrichtung, Dachform, Gebäudetyp: Da unser Grundstück in einem Weinort liegt, moechten wir gerne einen Neubau mit klassischen Pfaelzer Stilelementen, ohne jedoch kitschig oder altbacken zu wirken.
Keller, Geschosse (Voll oder Teilkeller, 2 Vollgeschosse plus DG
Anzahl der Personen, Alter: 5, (41,40 und 3 Kinder (13,9,9)
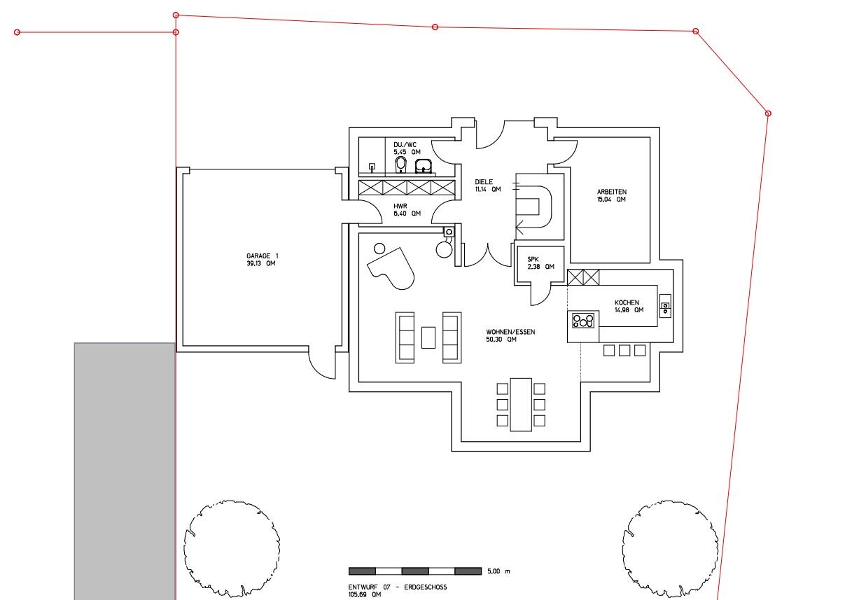
Raumbedarf im EG, OG: Grosser Wohn und Essbereich im EG (Platz fuer ein Klavier), Bad und Büro/ Schlafzimmer im EG im Alter/ eventueller Pflegebeduerftigkeit von Verwandten,
1 OG: Elternbereich inkl Ankleide und Bad, Homeoffice Mann, Gaeste und Fersehzimmer,
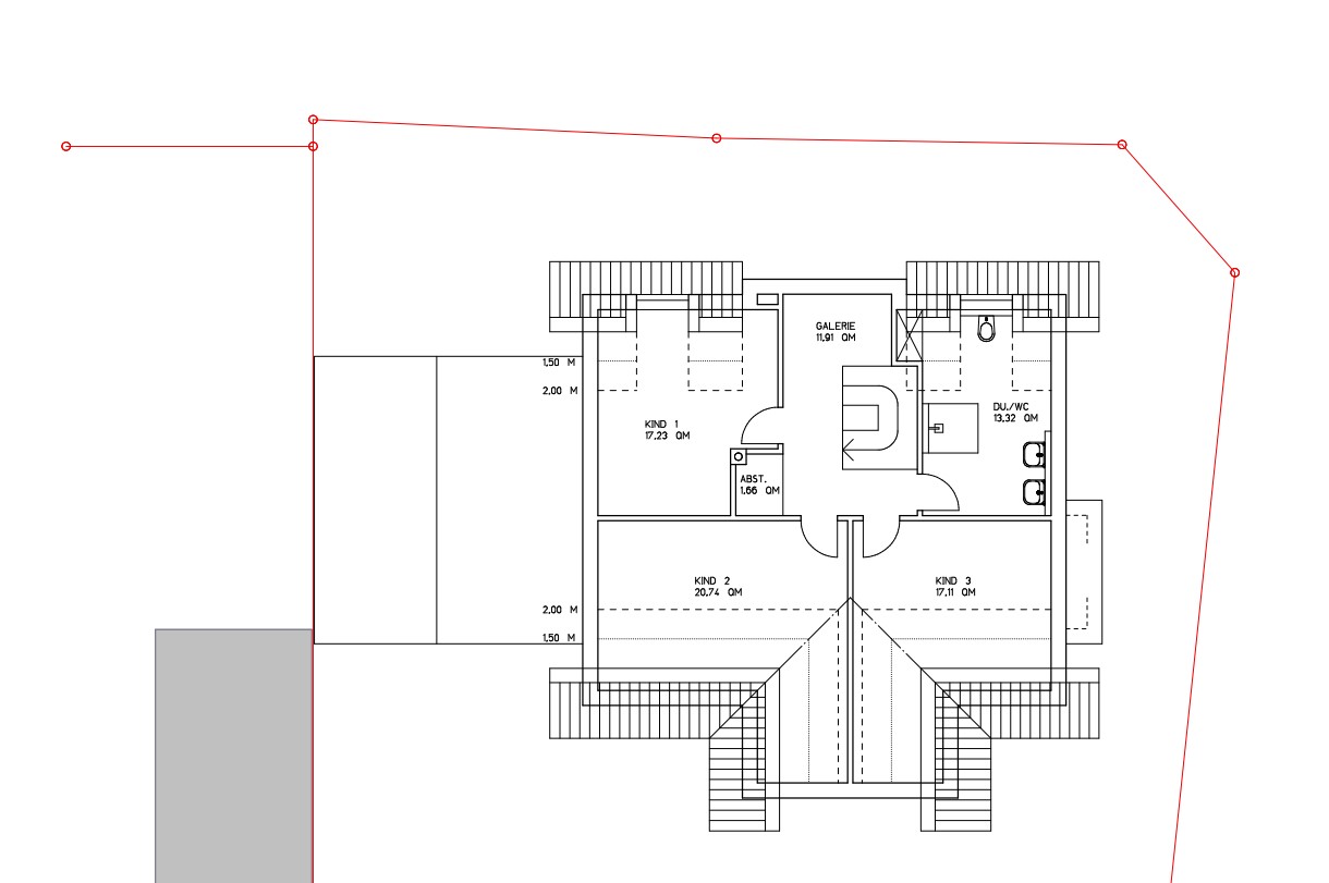
2 OG: Kinderbereich mit 3 Schlafzimmer und Kinderbad
Büro: Familiennutzung oder Homeoffice: 2 mal Homeoffice
Schlafgäste pro Jahr: 20
offene oder geschlossene Architektur offen
konservativ oder moderne Bauweise: Mix,
offene Küche, Kochinsel: offen mit Kochinsel
Anzahl Essplätze: 12
Kamin: ja, schwedischer Rundkachelofen. Kann aber nicht direkt neben dem Klavier stehen und daher suchen wir noch fuer einen alternativen Srtandort.
Musik/Stereowand: nein , Fernsehzimmer im 1 OG (Gästezimmer)
Balkon, Dachterrasse: Dachterrasse auf Doppelgarage mit Blick in die Weinberge
Garage, Carport: Doppelgarage
Nutzgarten, Treibhaus:
weitere Wünsche/Besonderheiten/Tagesablauf, gern auch Begründungen, warum dieses oder das nicht sein soll
Hausentwurf
Von wem stammt die Planung: Architekt
Was gefällt besonders? Warum? Abgeschlossener Eltern und Kinderbereich, Dachterrasse mit herrlichem Blick in die Weinberge auch aus dem Homeoffice, separates Fernsehzimmer, offene Küche mit grosszuegigem Wohn und Essbereich
Was gefällt nicht? Warum? Standort Ofen, da direkt neben dem Klavier
Preisschätzung lt Architekt/Planer: erste Schaetzung ca 850k
Persönliches Preislimit fürs Haus, inkl Ausstattung: 900k
favorisierte Heiztechnik: egal
[Wenn Ihr verzichten müsst, auf welche Details/Ausbauten: Vollkeller (Ist eine Preisfrage, da das derzeitige Haus einen Keller hat und abgerissen werden muss. ein Teilkeller ist geplant und je nach Kosten fuer die Auffuellung kommt auch ein Vollkeller in Frage. Keller muss noch geplant werden und wird mind Technik und Abstellraum, eventuell Werkstatt/Hobbyraum haben
-könnt Ihr verzichten: grosses Elternschlafzimmer,
-könnt Ihr nicht verzichten: Kinderetage mit Kinderbad , Dachterrasse, grosse Ankleide,
,
Warum ist der Entwurf so geworden, wie er jetzt ist? Viele Gespraeche mit Architekten, Uns ist es wichtig, dass das Haus auch von außen nicht 0815 aussieht. Demnach sollte es kein Kasten werden, sondern etwas verspielt. Teurer, aber einkalkuliert Außenansichten sind gerade in der Entwicklung und werden nachgereicht.
Entsprechende/Welche Wünsche wurden vom Architekten umgesetzt? , abgeschlossener Eltern und Kinderbereich, grosszuegiger Wohn, Koch und Essbereich, Dachterrasse, Zugang von der Garage, separates Fernseh/ Gästezimmer, 2 Homeoffices
Was macht ihn in Euren Augen besonders gut oder schlecht?
Super: abgeschlossene Bereiche, Elternbad und Ankleide.
Verbesserungswuerdig: Standort Klavier und Ofen,
Was ist die wichtigste/grundlegende Frage zum Grundriss in 130 Zeichen zusammengefasst?
Wo kommt der Ofen hin? Kinderbad mit separater Toilette , um den morgendlichen Stau der 3 Schulkinder zu entzerren? Kochinsel oder U Küche (wie im Entwurf)?
Viel Spass beim Angucken und vielen Dank fuer Eure Hilfe.



Haben nun endlich einen Grundriss von userem Architekten bekommen und moechten diesen gerne zwecks Feedback mit euch teilen.
Anbei der Fragebogen und schon einmal vielen Dank im voraus fuer euer Feedback.
Bebauungsplan/Einschränkungen : Paragraph 34 , wie Nachbarbebauung
Größe des Grundstücks: 709 qm (derzeit mit Altbestand bebaut ( 2 geschossig, ca 155m2 mit Keller und Garage. Abriss unumgaenglich
Hang nein
Grundflächenzahl n.A
Geschossflächenzahl nA
Baufenster, Baulinie und -grenze: 3 m
Randbebauung
Anzahl Stellplatz 2
Geschossigkeit 2
Dachform Satteldach
Stilrichtung : modernes Haus im klassischen Pfaelzer Gewand ( Biberschwanzdach, Sandsteinelemente, Fensterläden)
Ausrichtung Sued
Maximale Höhen/Begrenzungen : ca 10 m
weitere Vorgaben
Anforderungen der Bauherren: Der traumhaften Blick in die Weinberge (Norden) sollte im Grundriss beruecksichtigt werden.
Stilrichtung, Dachform, Gebäudetyp: Da unser Grundstück in einem Weinort liegt, moechten wir gerne einen Neubau mit klassischen Pfaelzer Stilelementen, ohne jedoch kitschig oder altbacken zu wirken.
Keller, Geschosse (Voll oder Teilkeller, 2 Vollgeschosse plus DG
Anzahl der Personen, Alter: 5, (41,40 und 3 Kinder (13,9,9)
Raumbedarf im EG, OG: Grosser Wohn und Essbereich im EG (Platz fuer ein Klavier), Bad und Büro/ Schlafzimmer im EG im Alter/ eventueller Pflegebeduerftigkeit von Verwandten,
1 OG: Elternbereich inkl Ankleide und Bad, Homeoffice Mann, Gaeste und Fersehzimmer,
2 OG: Kinderbereich mit 3 Schlafzimmer und Kinderbad
Büro: Familiennutzung oder Homeoffice: 2 mal Homeoffice
Schlafgäste pro Jahr: 20
offene oder geschlossene Architektur offen
konservativ oder moderne Bauweise: Mix,
offene Küche, Kochinsel: offen mit Kochinsel
Anzahl Essplätze: 12
Kamin: ja, schwedischer Rundkachelofen. Kann aber nicht direkt neben dem Klavier stehen und daher suchen wir noch fuer einen alternativen Srtandort.
Musik/Stereowand: nein , Fernsehzimmer im 1 OG (Gästezimmer)
Balkon, Dachterrasse: Dachterrasse auf Doppelgarage mit Blick in die Weinberge
Garage, Carport: Doppelgarage
Nutzgarten, Treibhaus:
weitere Wünsche/Besonderheiten/Tagesablauf, gern auch Begründungen, warum dieses oder das nicht sein soll
Hausentwurf
Von wem stammt die Planung: Architekt
Was gefällt besonders? Warum? Abgeschlossener Eltern und Kinderbereich, Dachterrasse mit herrlichem Blick in die Weinberge auch aus dem Homeoffice, separates Fernsehzimmer, offene Küche mit grosszuegigem Wohn und Essbereich
Was gefällt nicht? Warum? Standort Ofen, da direkt neben dem Klavier
Preisschätzung lt Architekt/Planer: erste Schaetzung ca 850k
Persönliches Preislimit fürs Haus, inkl Ausstattung: 900k
favorisierte Heiztechnik: egal
[Wenn Ihr verzichten müsst, auf welche Details/Ausbauten: Vollkeller (Ist eine Preisfrage, da das derzeitige Haus einen Keller hat und abgerissen werden muss. ein Teilkeller ist geplant und je nach Kosten fuer die Auffuellung kommt auch ein Vollkeller in Frage. Keller muss noch geplant werden und wird mind Technik und Abstellraum, eventuell Werkstatt/Hobbyraum haben
-könnt Ihr verzichten: grosses Elternschlafzimmer,
-könnt Ihr nicht verzichten: Kinderetage mit Kinderbad , Dachterrasse, grosse Ankleide,
,
Warum ist der Entwurf so geworden, wie er jetzt ist? Viele Gespraeche mit Architekten, Uns ist es wichtig, dass das Haus auch von außen nicht 0815 aussieht. Demnach sollte es kein Kasten werden, sondern etwas verspielt. Teurer, aber einkalkuliert Außenansichten sind gerade in der Entwicklung und werden nachgereicht.
Entsprechende/Welche Wünsche wurden vom Architekten umgesetzt? , abgeschlossener Eltern und Kinderbereich, grosszuegiger Wohn, Koch und Essbereich, Dachterrasse, Zugang von der Garage, separates Fernseh/ Gästezimmer, 2 Homeoffices
Was macht ihn in Euren Augen besonders gut oder schlecht?
Super: abgeschlossene Bereiche, Elternbad und Ankleide.
Verbesserungswuerdig: Standort Klavier und Ofen,
Was ist die wichtigste/grundlegende Frage zum Grundriss in 130 Zeichen zusammengefasst?
Wo kommt der Ofen hin? Kinderbad mit separater Toilette , um den morgendlichen Stau der 3 Schulkinder zu entzerren? Kochinsel oder U Küche (wie im Entwurf)?
Viel Spass beim Angucken und vielen Dank fuer Eure Hilfe.
Also ich finde es stimmig. Was mir weniger gefällt, ist diese L-Form von den zwei südlichen Kinderzimmern. Bei der Zimmergröße aber vermutlich verschmerzbar. Allraum: wenn euch Klavier- und Ofenposition nicht so gefallen. Wo wäre es euch denn lieber? Sofa und Klavier würde ich einfach tauschen, damit die Sofaecke gemütlicher steht. Oder gefällt euch an der Stelle einfach der Grundriss nicht?
P
Pfalzpaulianer11.11.20 20:06Vielen Dank fuer das Feedback. Das Klavier wollten wir gerne in die "dunkle Ecke" stellen und das Sofa dann Richtung Fenster. Aufgrund der Garage wird es hinten in der Ecke ansonsten ganz schoen dunkel.
Hast du eine alternative Idee fuer die L Form?
Hast du eine alternative Idee fuer die L Form?
P
Pinky030111.11.20 21:24Was sind denn die Küchenmaße? Der Zeilenabstand kommt mir zu gering vor. Wird dadurch verborgen, dass zwischen kochfeld und Spüle einfach mal die Arbeitsplatte weggelassen wurde... Ebenso der Schrankabstand in der Ankleide, wirkt etwas eng.
Pfalzpaulianer schrieb:
Entsprechende/Welche Wünsche wurden vom Architekten umgesetzt? , abgeschlossener Eltern und Kinderbereich, grosszuegiger Wohn, Koch und Essbereich, Dachterrasse, Zugang von der Garage, separates Fernseh/ Gästezimmer, 2 HomeofficesGenau so habe ich es befürchtet: daß alle Fragezeichen in meinem Blick keine bösen Zufälle sind, sondern ausgerechnet auf von den Architekten umgesetzte Wünsche zurückgehen. Versucht es ´mal ohne alle diese Wünsche, nur mit dem Raumprogramm pur. Ich wäre kurz gesagt "nicht überrascht", wenn sich dabei ein überzeugenderer Entwurf ergäbe.Pfalzpaulianer schrieb:
Das Klavier wollten wir gerne in die "dunkle Ecke" stellen und das Sofa dann Richtung Fenster.Den Fenstern in den Zeichnungen zufolge sind es ja alles dunkle Ecken ;-)Aber auch sonst kann ich nicht nachvollziehen, woher das Haus diese Grund(Riss)form hat. Ich würde doch eher den Gast ins EG packen und lieber mit meiner Frau die Arbeitszimmer auf derselben Ebene haben. Gab es ein Ausgangsmodell (ich vermute, mit einem Stockwerk - dem OG - weniger) ? - das OG scheint mir hier auf den Entwurfstechnikfehler (der Profis ja typischerweise nicht passiert) zurückzugehen, das OG nicht zuerst zu entwickeln - allein seine ineffiziente Größe und Aufteilung drängen diesen Verdacht geradezu auf.
Pfalzpaulianer schrieb:
Außenansichten sind gerade in der Entwicklung und werden nachgereicht.Gerade für unser Nachvollziehen der kreuzförmigen Hausgestalt wäre hilfreich, auch das Wie und Warum des Baukörpers zu verstehen.Pfalzpaulianer schrieb:
Keller muss noch geplant werden und wird mind Technik und Abstellraum, eventuell Werkstatt/Hobbyraum habenAuch das noch, Entwurfstechnikfehler Numero zwei: konkrete Geschosse zu planen, ehe das Raumprogramm und Bauvolumen festgelegt und "aufgeteilt" ist (also: Entwurf vor Vorentwurf). Aua. Das bestärkt mich in dem Verdacht, man habe einen Anderthalbgeschösser-Vorratsentwurf hergenommen und ihm eine Elternsuite-Etage eingeschoben.Pfalzpaulianer schrieb:
da das derzeitige Haus einen Keller hat und abgerissen werden muss. ein Teilkeller ist geplant und je nach Kosten fuer die Auffuellung kommt auch ein Vollkeller in Frage.Magst Du einmal näher ausführen, was für ein Objekt das ist und welchen Umständen es die Diagnose des unumgänglichen Tiefabrisses verdankt ?Im übrigen empfehle ich in der Forensuche "´Teilkeller´ / von: ´11ant´" einzugeben ;-)
https://www.instagram.com/11antgmxde/
https://www.linkedin.com/company/bauen-jetzt/
Ähnliche Themen