S
Stefan6742257816.12.22 19:27Hallo,
wir möchten für unsere Eltern einen Bungalow, altengerecht bauen. Unser Architekt hat bereits einen zweiten Entwurf gezeichnet, aber so richtig glücklich sind wir damit noch nicht. Dazu später mehr.
Bebauungsplan/Einschränkungen
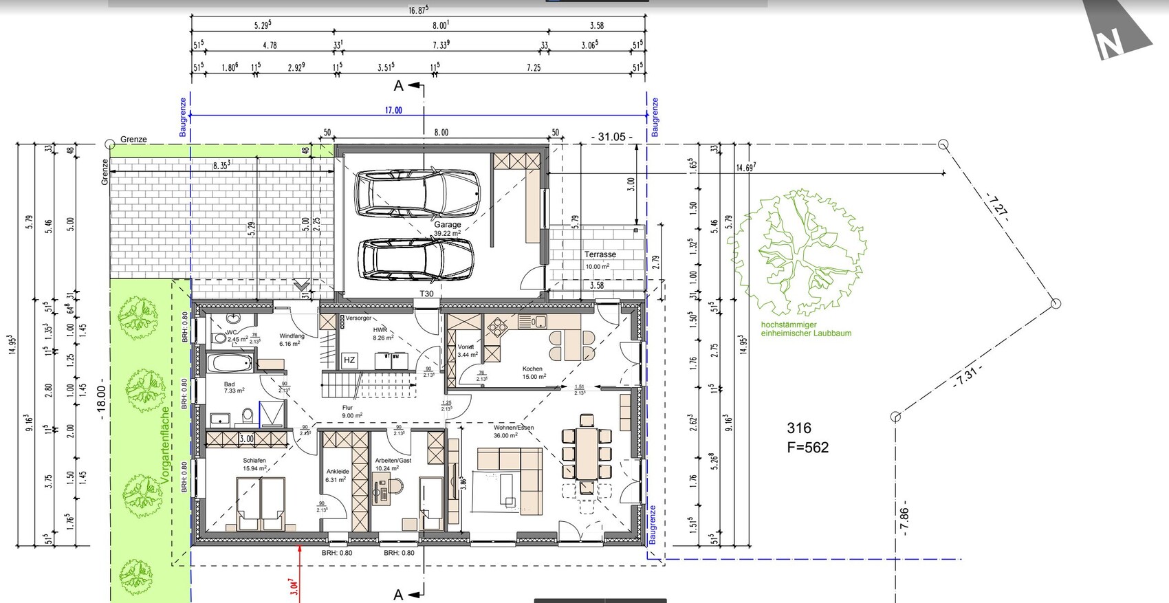
Größe des Grundstücks: 562
Hang nein
Grundflächenzahl 0,3
Geschossflächenzahl 0,6
Baufenster, Baulinie und -grenze siehe Lageplan
Randbebauung Wie in NRW.
Anzahl Stellplatz 2
Geschossigkeit 2
Dachform
Stilrichtung
Ausrichtung -
Maximale Höhen/Begrenzungen -
weitere Vorgaben -
Anforderungen der Bauherren
Stilrichtung, Dachform, Gebäudetyp Bungalow mit Walmdach und Doppelgarage
Keller, Geschosse -
Anzahl der Personen, Alter 2,65
Raumbedarf im EG, OG EG, aber mit fester Betontreppe zum Dachboden als Stauraum
Büro: Familiennutzung oder Homeoffice? Hobbyzimmer zum Basteln / Bügeln
Schlafgäste pro Jahr 0
offene oder geschlossene Architektur eher geschlossen
konservativ oder moderne Bauweise -
offene Küche, Kochinsel Getrennte Küche mit Tisch für 3 Personen
Anzahl Essplätze 6 im Esszimmer
Kamin nein
Musik/Stereowand nein
Balkon, Dachterrasse nein
Garage, Carport Doppelgarage
Nutzgarten, Treibhaus -
Hausentwurf
Von wem stammt die Planung:
-Architekt
Was gefällt besonders? Warum? -
Was gefällt nicht? Die Grundfläche mit 120qm ist eigentlich zu gering. Insbesondere das Wohnzimmer mit dem sofa im Raum ist nicht schön und nimmt viel Platz weg
Persönliches Preislimit fürs Haus, inkl Ausstattung: erstmal egal
favorisierte Heiztechnik: Wärmepumpe
Warum ist der Entwurf so geworden, wie er jetzt ist? ZB
Zweiter Entwurf vom Architekten
Was ist die wichtigste/grundlegende Frage zum Grundriss in 130 Zeichen zusammengefasst?
Gewünscht ist ein Bungalow mit Doppelgarage. Getrennter Küche mit ausreichend Arbeitsfläche, kleiner Speisekammer. Wohnzimmer und Esszimmer. Ein extra Raum zum Basteln / Bügeln. Oder man später als Schlafzimmer für eine Pflegekraft nutzen könnte. Bad welches Barrierefrei ist und mit Badewanne.(Die Badewanne muss nicht Barrierefrei sein, nur Dusche, Klo und Waschbecken.
Meinen Eltern ist es wichtig, eine Terrasse richtung Osten zu haben, um morgens die Sonne beim Frühstücken zu genießen, Mittags und Abends natürlichen Schatten durch das Haus wäre prima.
Ich habe mal den Lageplan und den jetzigen Grundriss angehängt.
Welche Ideen habt ihr, das Haus optimaler zu gestalten? Ich hatte auch schon überlegt, die Garage halb ins Haus zu integrieren, um damit ggf. mehr Platz zu erhalten. Oder im Plan zwei, die Küche quer setzen, das Wohnzimmer nach oben schieben. Dann ergibt sich unten etwas mehr Platz, die Frage ist nur, was man mit dem Platz anfangen soll. Zudem ist die Speisekammer dann nicht integriert.



wir möchten für unsere Eltern einen Bungalow, altengerecht bauen. Unser Architekt hat bereits einen zweiten Entwurf gezeichnet, aber so richtig glücklich sind wir damit noch nicht. Dazu später mehr.
Bebauungsplan/Einschränkungen
Größe des Grundstücks: 562
Hang nein
Grundflächenzahl 0,3
Geschossflächenzahl 0,6
Baufenster, Baulinie und -grenze siehe Lageplan
Randbebauung Wie in NRW.
Anzahl Stellplatz 2
Geschossigkeit 2
Dachform
Stilrichtung
Ausrichtung -
Maximale Höhen/Begrenzungen -
weitere Vorgaben -
Anforderungen der Bauherren
Stilrichtung, Dachform, Gebäudetyp Bungalow mit Walmdach und Doppelgarage
Keller, Geschosse -
Anzahl der Personen, Alter 2,65
Raumbedarf im EG, OG EG, aber mit fester Betontreppe zum Dachboden als Stauraum
Büro: Familiennutzung oder Homeoffice? Hobbyzimmer zum Basteln / Bügeln
Schlafgäste pro Jahr 0
offene oder geschlossene Architektur eher geschlossen
konservativ oder moderne Bauweise -
offene Küche, Kochinsel Getrennte Küche mit Tisch für 3 Personen
Anzahl Essplätze 6 im Esszimmer
Kamin nein
Musik/Stereowand nein
Balkon, Dachterrasse nein
Garage, Carport Doppelgarage
Nutzgarten, Treibhaus -
Hausentwurf
Von wem stammt die Planung:
-Architekt
Was gefällt besonders? Warum? -
Was gefällt nicht? Die Grundfläche mit 120qm ist eigentlich zu gering. Insbesondere das Wohnzimmer mit dem sofa im Raum ist nicht schön und nimmt viel Platz weg
Persönliches Preislimit fürs Haus, inkl Ausstattung: erstmal egal
favorisierte Heiztechnik: Wärmepumpe
Warum ist der Entwurf so geworden, wie er jetzt ist? ZB
Zweiter Entwurf vom Architekten
Was ist die wichtigste/grundlegende Frage zum Grundriss in 130 Zeichen zusammengefasst?
Gewünscht ist ein Bungalow mit Doppelgarage. Getrennter Küche mit ausreichend Arbeitsfläche, kleiner Speisekammer. Wohnzimmer und Esszimmer. Ein extra Raum zum Basteln / Bügeln. Oder man später als Schlafzimmer für eine Pflegekraft nutzen könnte. Bad welches Barrierefrei ist und mit Badewanne.(Die Badewanne muss nicht Barrierefrei sein, nur Dusche, Klo und Waschbecken.
Meinen Eltern ist es wichtig, eine Terrasse richtung Osten zu haben, um morgens die Sonne beim Frühstücken zu genießen, Mittags und Abends natürlichen Schatten durch das Haus wäre prima.
Ich habe mal den Lageplan und den jetzigen Grundriss angehängt.
Welche Ideen habt ihr, das Haus optimaler zu gestalten? Ich hatte auch schon überlegt, die Garage halb ins Haus zu integrieren, um damit ggf. mehr Platz zu erhalten. Oder im Plan zwei, die Küche quer setzen, das Wohnzimmer nach oben schieben. Dann ergibt sich unten etwas mehr Platz, die Frage ist nur, was man mit dem Platz anfangen soll. Zudem ist die Speisekammer dann nicht integriert.
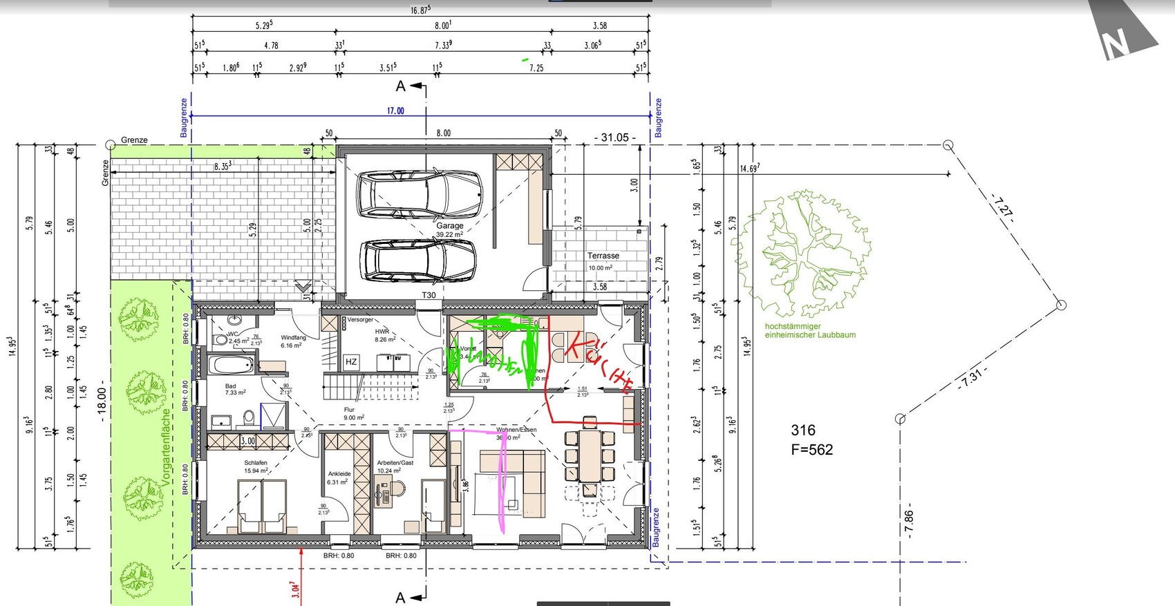
Deine Idee vom Verschieben der Bereiche verstehe ich zwar generell, passt aber nicht mehr, wenn ich mir anschaue, wie der Grundriss auf dem Grundstück platziert wird. Da ist er im Status Quo deutlich besser.
Im Übrigen halte ich 120m² für zwei Personen schon für sehr ausreichend. Denk immer dran, dass das auch zukünftig alles bewirtschaftet und geputzt werden will.
Im Übrigen halte ich 120m² für zwei Personen schon für sehr ausreichend. Denk immer dran, dass das auch zukünftig alles bewirtschaftet und geputzt werden will.
S
Stefan6742257816.12.22 20:48SoL schrieb:
Deine Idee vom Verschieben der Bereiche verstehe ich zwar generell, passt aber nicht mehr, wenn ich mir anschaue, wie der Grundriss auf dem Grundstück platziert wird. Da ist er im Status Quo deutlich besser.
Im Übrigen halte ich 120m² für zwei Personen schon für sehr ausreichend. Denk immer dran, dass das auch zukünftig alles bewirtschaftet und geputzt werden will.Hättest du einen alternativen Vorschlag für einen Grundriss auf dem Grundstück? Wir sind da für alle Vorschläge offen.Stefan67422578 schrieb:
Hättest du einen alternativen Vorschlag für einen Grundriss auf dem Grundstück? Wir sind da für alle Vorschläge offen.Ich bin mir sicher, dass da die Experten / Expertinnen wie @ypg Oder @K a t j a behilflich sein werden. Die können das deutlich besser, als meine Wenigkeit...Für einen Bungalow ein ganz schlechter Schnitt! Das ist kein Bungalowschnitt, dafür wird der „Nebentreppe“ eine viel zu große Bedeutung eingeräumt. Auch die Verbesserung ist keine Verbesserung. Ich denke, da hängen viele Laiengedanken an der verkruxten Lage der Räume, die daran Schuld sind, dass alles irgendwie nicht so ist wie angedacht.
Meiner Meinung ist auch das Grundstück nicht bungalowfreundlich.
Aber ok, wenn’s denn der Wunsch ist, dann würde ich
zumindest dafür sorgen, dass Wohn- und Aufenthaltsbereiche auch zum Süd oder West gehen. Mehr Offenheit (zu zweit … ü65… braucht man meist keine Flure), eine Doppelgarage bei einem schmalen Grundstück hinterfragen, wenn keiner morgens unbedingt eilig den Stellplatz verlassen muss.
Gedanke Tür TK/Garage erschließt sich nicht, weil Tor direkt bei Hauseingangstür ist. Schlafzimmer direkt ggü Eingangstür ergibt Unbehagen, Küche mit 15qm und sehr wenigen Laufmetern Arbeitsplatte ist weniger als so manche 10qm Küche.
Da auf dem Grundstück ist noch sehr viel Potential für einen Eingeschosser… aber nicht für diesen. Ich halte diesen Entwurf für minderwertig und nicht für eine Grundlage.
Meiner Meinung ist auch das Grundstück nicht bungalowfreundlich.
Aber ok, wenn’s denn der Wunsch ist, dann würde ich
zumindest dafür sorgen, dass Wohn- und Aufenthaltsbereiche auch zum Süd oder West gehen. Mehr Offenheit (zu zweit … ü65… braucht man meist keine Flure), eine Doppelgarage bei einem schmalen Grundstück hinterfragen, wenn keiner morgens unbedingt eilig den Stellplatz verlassen muss.
Gedanke Tür TK/Garage erschließt sich nicht, weil Tor direkt bei Hauseingangstür ist. Schlafzimmer direkt ggü Eingangstür ergibt Unbehagen, Küche mit 15qm und sehr wenigen Laufmetern Arbeitsplatte ist weniger als so manche 10qm Küche.
Da auf dem Grundstück ist noch sehr viel Potential für einen Eingeschosser… aber nicht für diesen. Ich halte diesen Entwurf für minderwertig und nicht für eine Grundlage.
Huuups, da wollte ich noch diesen Beitrag, letzteren ganz unten kommentieren, und da macht sich eine Folge von Zitaten auf,..
Entweder Ihr fragt zu einer Vermietsache, oder Eure Eltern fragen selbst…
Stefan67422578 schrieb:
unsere Eltern
Stefan67422578 schrieb:
Unser Architekt
Stefan67422578 schrieb:Positioniert Eure Rolle oder die Eurer Eltern! Ich wüsste jetzt nicht, warum Ihr die Bedürfnisse Eurer Eltern hier erfragt. Das kann nur schief gehen. Das gleiche ist bei dem Wohnraum-Thread für Schwiegermama vor ein paar Tagen passiert … guter Entwurf wird diskutiert und verbessert… und Schwiegermama wil, es so, wie der beeindruckende Herr Architekt es will 😉
glücklich sind wir
Entweder Ihr fragt zu einer Vermietsache, oder Eure Eltern fragen selbst…
SoL schrieb:Du hast es nicht nötig, tief zu stapeln: hau einfach mal Deine Gedanken raus… ich mag es gern, andere Gedanken aufzunehmen 🙂
Ich bin mir sicher, dass da die Experten / Expertinnen wie @ypg Oder @K a t j a behilflich sein werden. Die können das deutlich besser, als meine Wenigkeit...
Ähnliche Themen