ᐅ Grundrissplanung Neubau Einfamilienhaus mit Doppelgarage (Stadtvilla)
Erstellt am: 27.12.19 13:42
M
maxl229Hallo zusammen,
wir haben in der vergangenen Woche den ersten Entwurfsvorschlag unseres Architekten für den Neubau eines Einfamilienhaus mit Doppelgarage erhalten.
Nachfolgend die Beantwortung des Fragebogens soweit wie möglich.
Wenn ich den ein oder anderen Punkt falsch oder missverständlich ausgefüllt habe, bitte ich dies zu entschuldigen.
Bebauungsplan/Einschränkungen
Größe des Grundstücks: 1701qm (Front ca. 27m)
Hang: leicht ansteigend Richtung Norden, jedoch keine Auswirkungen auf Grundriss bzw. Gestaltung
Grundflächenzahl: NA
Geschossflächenzahl: NA
Baufenster, Baulinie und -grenze:
Randbebauung:
Anzahl Stellplatz:
Geschossigkeit:
Dachform: NA
Stilrichtung: NA
Ausrichtung: Norden
Maximale Höhen/Begrenzungen:
weitere Vorgaben: §34
Anforderungen der Bauherren
Stilrichtung, Dachform, Gebäudetyp: Stadtvilla mit Zeltdach / Garage mit Zeltdah
Keller, Geschosse: kein Keller, 2 Vollgeschosse
Anzahl der Personen, Alter: 2, 28
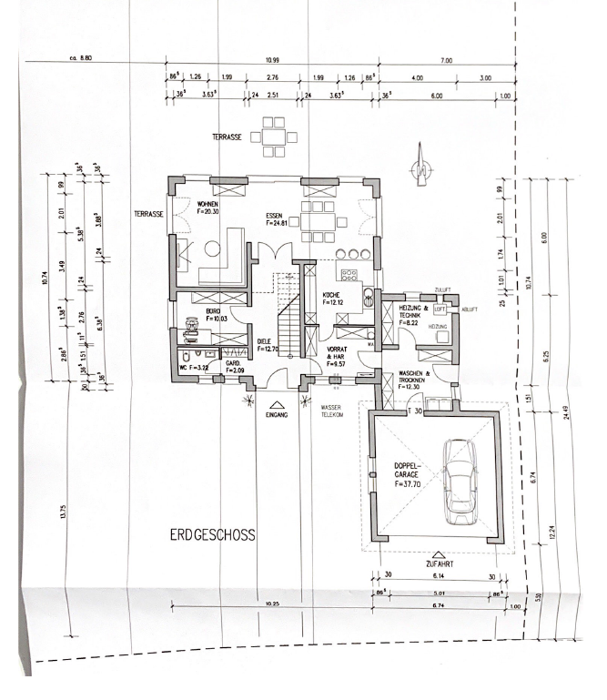
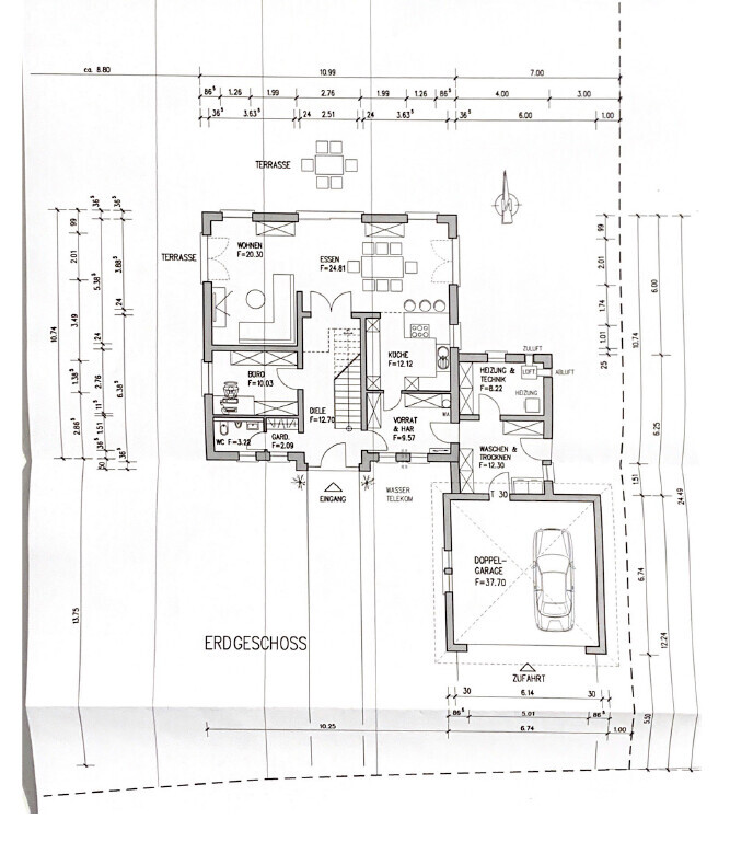
Raumbedarf im EG: Küche, Wohnen+Essen, Büro, Gäste-WC, Vorratsraum, Waschraum
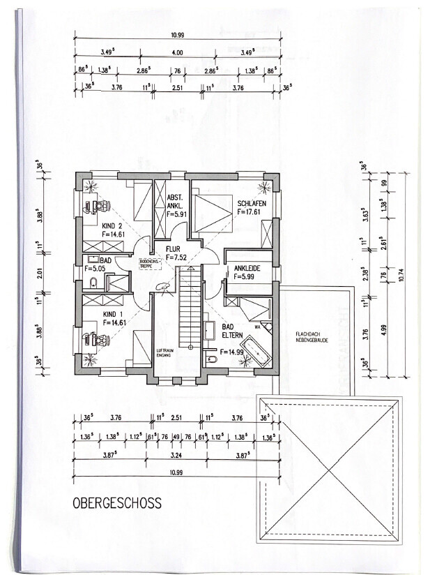
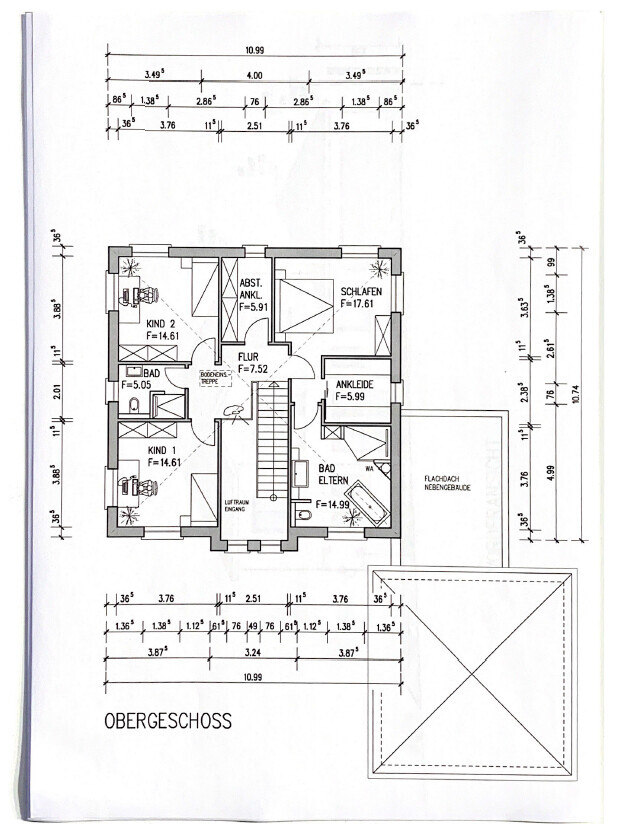
OG: 1 Elternschlafzimmer + Ankleide + Bad, 2 Kinderschlafzimmer + Bad, Abstellraum
Büro: Homeoffice
Schlafgäste pro Jahr: nicht relevant
offene oder geschlossene Architektur: offen
konservativ oder moderne Bauweise: modern
offene Küche, Kochinsel: ja
Anzahl Essplätze: 6
Kamin: nein
Musik/Stereowand: nein
Balkon, Dachterrasse: nein
Garage, Carport: Doppelgarage
Nutzgarten, Treibhaus
Hausentwurf
Von wem stammt die Planung:
-Architekt
Was gefällt besonders? Warum?
Raumaufteilung im OG wurde wie besprochen umgesetzt;
Luftraum im Eingangsbereich wurde von Architekt installiert und für gut befunden
Was gefällt nicht? Warum?
Da unsererseits kein Flachdach auf der Garage erwünscht ist, wurde eine Doppelgarage mit Zeltdach geplant mit anschl. Flachdachanbau, um den direkten Hauszugang zu ermöglichen.
Jedoch wirkt die Gestaltung der Räume Waschen+Trocknen, Heizung+Technik sowie Vorrat+HAR irgendwie unrund.
Wenn möglich würden wir gerne den Vorratsraum mit dem Waschraum tauschen und in die Küche eine Speisekammer installieren.
Dadurch könnte das Nebengebäude etwas verkleinert werden und das Fenster in der Küche vergrößert werden. Ich vermute jedoch, dass wir dann um eine Vergrößerung der Gesamtfläche nicht rum kommen.
Preisschätzung lt Architekt/Planer: ca. 390 TEUR inkl. Lüftungsanlage
Persönliches Preislimit fürs Haus, inkl Ausstattung: Preisschätzung liegt im Budget
favorisierte Heiztechnik: Gas + Solarthermie (im Entwurf wurde eine luftwärmepumpe installiert)
Wenn Ihr verzichten müsst, auf welche Details/Ausbauten
-könnt Ihr verzichten:
-könnt Ihr nicht verzichten:
Was ist die wichtigste/grundlegende Frage zum Grundriss in 130 Zeichen zusammengefasst?
Im Großen und Ganzen wurden unsere Wünsche hinsichtlich Raumaufteilung und Bauweise gut umgesetzt.
Einzig die oben beschriebene Raumaufteilung des Nebengebäude inkl. Vorratsraum wirkt nicht so rund.
Was haltet ihr von unseren Ideen bzw. welche Möglichkeiten der Umgestaltung würdet ihr vornehmen?
Vielen Dank im Voraus für den regen Austausch!
Liebe Grüße
Max







wir haben in der vergangenen Woche den ersten Entwurfsvorschlag unseres Architekten für den Neubau eines Einfamilienhaus mit Doppelgarage erhalten.
Nachfolgend die Beantwortung des Fragebogens soweit wie möglich.
Wenn ich den ein oder anderen Punkt falsch oder missverständlich ausgefüllt habe, bitte ich dies zu entschuldigen.
Bebauungsplan/Einschränkungen
Größe des Grundstücks: 1701qm (Front ca. 27m)
Hang: leicht ansteigend Richtung Norden, jedoch keine Auswirkungen auf Grundriss bzw. Gestaltung
Grundflächenzahl: NA
Geschossflächenzahl: NA
Baufenster, Baulinie und -grenze:
Randbebauung:
Anzahl Stellplatz:
Geschossigkeit:
Dachform: NA
Stilrichtung: NA
Ausrichtung: Norden
Maximale Höhen/Begrenzungen:
weitere Vorgaben: §34
Anforderungen der Bauherren
Stilrichtung, Dachform, Gebäudetyp: Stadtvilla mit Zeltdach / Garage mit Zeltdah
Keller, Geschosse: kein Keller, 2 Vollgeschosse
Anzahl der Personen, Alter: 2, 28
Raumbedarf im EG: Küche, Wohnen+Essen, Büro, Gäste-WC, Vorratsraum, Waschraum
OG: 1 Elternschlafzimmer + Ankleide + Bad, 2 Kinderschlafzimmer + Bad, Abstellraum
Büro: Homeoffice
Schlafgäste pro Jahr: nicht relevant
offene oder geschlossene Architektur: offen
konservativ oder moderne Bauweise: modern
offene Küche, Kochinsel: ja
Anzahl Essplätze: 6
Kamin: nein
Musik/Stereowand: nein
Balkon, Dachterrasse: nein
Garage, Carport: Doppelgarage
Nutzgarten, Treibhaus
Hausentwurf
Von wem stammt die Planung:
-Architekt
Was gefällt besonders? Warum?
Raumaufteilung im OG wurde wie besprochen umgesetzt;
Luftraum im Eingangsbereich wurde von Architekt installiert und für gut befunden
Was gefällt nicht? Warum?
Da unsererseits kein Flachdach auf der Garage erwünscht ist, wurde eine Doppelgarage mit Zeltdach geplant mit anschl. Flachdachanbau, um den direkten Hauszugang zu ermöglichen.
Jedoch wirkt die Gestaltung der Räume Waschen+Trocknen, Heizung+Technik sowie Vorrat+HAR irgendwie unrund.
Wenn möglich würden wir gerne den Vorratsraum mit dem Waschraum tauschen und in die Küche eine Speisekammer installieren.
Dadurch könnte das Nebengebäude etwas verkleinert werden und das Fenster in der Küche vergrößert werden. Ich vermute jedoch, dass wir dann um eine Vergrößerung der Gesamtfläche nicht rum kommen.
Preisschätzung lt Architekt/Planer: ca. 390 TEUR inkl. Lüftungsanlage
Persönliches Preislimit fürs Haus, inkl Ausstattung: Preisschätzung liegt im Budget
favorisierte Heiztechnik: Gas + Solarthermie (im Entwurf wurde eine luftwärmepumpe installiert)
Wenn Ihr verzichten müsst, auf welche Details/Ausbauten
-könnt Ihr verzichten:
-könnt Ihr nicht verzichten:
Was ist die wichtigste/grundlegende Frage zum Grundriss in 130 Zeichen zusammengefasst?
Im Großen und Ganzen wurden unsere Wünsche hinsichtlich Raumaufteilung und Bauweise gut umgesetzt.
Einzig die oben beschriebene Raumaufteilung des Nebengebäude inkl. Vorratsraum wirkt nicht so rund.
Was haltet ihr von unseren Ideen bzw. welche Möglichkeiten der Umgestaltung würdet ihr vornehmen?
Vielen Dank im Voraus für den regen Austausch!
Liebe Grüße
Max
Ich würde das EG um 90 Grad drehen um eine Westausrichtung zu bekommen.
Unbedingt die vorhandene bzw. Gewünschte Möblierung einzeichnen.
Budget ist ohne EL nicht ausreichend.
Wäsche ist soweit wie und so viele Türen wie möglich von den Räumen in denen sie anfällt weg.
Vorrat und Wäsche sind durch die vielen Türen schlecht zu nutzen.
Garderobe für 2 ok für 4 zu klein
Wohnen, Essen sind kuschelig, dafür dazwischen sehr viel Platz.
OG würde ich auch anders Anordnen.
Luftraum weg und Wäsche kann ins OG.
Vorrat weniger Türen und die Technik mit rein. Carport mit Abstellraum, statt Garage, dann könnte es mit dem Budget langsam hinkommen
Unbedingt die vorhandene bzw. Gewünschte Möblierung einzeichnen.
Budget ist ohne EL nicht ausreichend.
Wäsche ist soweit wie und so viele Türen wie möglich von den Räumen in denen sie anfällt weg.
Vorrat und Wäsche sind durch die vielen Türen schlecht zu nutzen.
Garderobe für 2 ok für 4 zu klein
Wohnen, Essen sind kuschelig, dafür dazwischen sehr viel Platz.
OG würde ich auch anders Anordnen.
Luftraum weg und Wäsche kann ins OG.
Vorrat weniger Türen und die Technik mit rein. Carport mit Abstellraum, statt Garage, dann könnte es mit dem Budget langsam hinkommen
Das schaut ja im Großen und Ganzen ganz nett aus. Die Dachbinder sind hoffentlich nur ein Dummy in der Zeichnung, deren Streben kann man gewiß praktischer legen. Mich erstaunt ein wenig die Abhängung der Decke. Ich bin zwar nicht so der Kontrollierte-Wohnraumlüftung-Fan, aber nach meiner Wahrnehmung legt man die doch öfter auf den Rohboden des nächsten Stockwerkes als sie unter die Decke zu tackern (?)
https://www.instagram.com/11antgmxde/
https://www.linkedin.com/company/bauen-jetzt/
https://www.instagram.com/11antgmxde/
https://www.linkedin.com/company/bauen-jetzt/
Mit Lufträumen konnte ich ja nie etwas anfangen, aber warum dann auch noch im Eingangsbereich? Was bringt das?
Treppenende genau an Türe zum Schlafzimmer ist suboptimal, spreche aus Erfahrung.
Eure Sitzecke halte ich für eine richtige Ecke, m.E. ist das bei einem Haus nicht angebracht. Passt aber zum Hausstil der Ecken und Türen ...
2. Dusche würde ich wo vorsehen.
überlegen, ob man aus Vorrat, Waschen und Heizen nicht EINEN Raum machen kann. Im Moment geht hier auch Platz verloren.
Treppenende genau an Türe zum Schlafzimmer ist suboptimal, spreche aus Erfahrung.
Eure Sitzecke halte ich für eine richtige Ecke, m.E. ist das bei einem Haus nicht angebracht. Passt aber zum Hausstil der Ecken und Türen ...
2. Dusche würde ich wo vorsehen.
überlegen, ob man aus Vorrat, Waschen und Heizen nicht EINEN Raum machen kann. Im Moment geht hier auch Platz verloren.
lastdrop schrieb:
Mit Lufträumen konnte ich ja nie etwas anfangen, aber warum dann auch noch im Eingangsbereich? Was bringt das?Nach Wahrnehmung vieler Häuslebauer macht es wohl die Stiege zur Showtreppe und/oder den Windfang zur Halle.Im übrigen bin ich angenehm überrascht. Ich sage ja sonst immer, das magische Dreieck Hausbreite unter 12 Metern - einläufige Gerade Treppe - Fassadensymmetrie bezahle man mit schmerzhaften Stellen im Grundriss, hier habe ich wohl meine regelbestätigende Ausnahme gefunden
Obwohl ich so wie es geplant ist in der Gesamtschau "zufrieden bin", würde ich mein Haus nicht so um einen elend langen Gang nach Canossa zwischen Gartenpforte und Haustür hinter die Garage zurück schieben und erinnere entsprechend an eines meiner Mantren, daß es der Planung einen entscheidenden Freiheitskick verschaffen kann, die Bindung zwischen Haus- und Garagenbaukörper zu "zerschlagen".
https://www.instagram.com/11antgmxde/
https://www.linkedin.com/company/bauen-jetzt/
haydee schrieb:
Ich würde das EG um 90 Grad drehen um eine Westausrichtung zu bekommen.
Unbedingt die vorhandene bzw. Gewünschte Möblierung einzeichnen.
Budget ist ohne EL nicht ausreichend.
Wäsche ist soweit wie und so viele Türen wie möglich von den Räumen in denen sie anfällt weg.
Vorrat und Wäsche sind durch die vielen Türen schlecht zu nutzen.
Garderobe für 2 ok für 4 zu klein
Wohnen, Essen sind kuschelig, dafür dazwischen sehr viel Platz.
OG würde ich auch anders Anordnen.
Luftraum weg und Wäsche kann ins OG.
Vorrat weniger Türen und die Technik mit rein. Carport mit Abstellraum, statt Garage, dann könnte es mit dem Budget langsam hinkommenVielen Dank für die Rückmeldung!
EG um 90 Grad zu drehen wäre eine Überlegung wert.
Ich versuche es mal selbst zu zeichnen, um mir eine bessere Vorstellung zu machen.
Beim Budget ist wohl ein Missverständnis entstanden. Die Kostenschätzung der Architektin liegt bei 390 TEUR inkl. Lüftungsanlage ohne irgendwelche Eigenleistungen. Das Budget ist unsererseits hierfür vorhanden. Auch Preissteigerungen könnten geleistet werden. Daher "müssen" wir denke ich nicht auf Garage etc. verzichten.
Den Waschraum würde ich gerne mit dem Vorratsraum tauschen, um direkt neben dem geplanten Wäscheabwurf Waschmaschine/Trockner zu platzieren. Zusätzlich würde ich gerne eine kleine Speisekammer in die Küche integrieren, um das Nebengebäude etwas zu verkleinern. Ob das mit der geplanten Grundfläche im Haus realisierbar ist, muss noch geklärt werden.
Ähnliche Themen