Hausbau - Ratgeber
Bauherrenhilfe
- Bauherrenhilfe vor Vertragsabschluss
-- Warum einen unabhängigen Baubetreuer?
-- Vertragsgrundlagen
-- Bausumme
-- Zahlungsplan zur Kostenkontrolle
-- Pflichten des Bauherren vor Vertragsabschluss
-- Unterlagen beim Hausbau vor Vertragsabschluss
- Bauherrenhilfe nach Vertragsabschluss
-- Bauantrag bei Behörden
-- Bau-Genehmigungsverfahren bei Baubehörden
-- Bauspezifische Versicherungen
-- Bauzeitenplan
-- Baubeginn - die Letzten Pflichten der Bauherrschaft
- Bauherrenhilfe während der Bauzeit
- Gewährleistungsansprüche
- Bauabnahme
Baufinanzierung
- Baufinanzierung - Allgemeine Fragen
- Kreditarten
- Kredit-Konditionen
- Bausparen
- Staatliche Förderungen
- Verkehrswert
- Haushaltsrechnung und Bonität
Hausbau Planung
- Haustypen
- Hausbau Vorbereitungsarbeiten
- Das Baugrundstück
- Baugrund beim Hausbau
- Baurecht
- Gebäudeschutz
- Erdarbeiten und Wasserhaltung
- Stützmauern
- Einfriedung
- Untergeschoss
- Kanalisation
- Tragende Elemente
- Nichttragende Innenwände
- Fundation / Fundament
- Deckenkonstruktionen
- Dächer
- Kaminanlagen
- Treppen Rampen Leitern
- Dachbeläge und Spengler
- Fenster
- Sonnen und Wetterschutz
- Aussenputze
- Einbauten, Küchen, Türen
- Bodenbeläge und Unterlagsböden
- Parkett
- Gips, Wand, Decke
Haustechnik und Energie
- Heiztechnik
- Lüftung und Klimatechnik
- Sanitärtechnik
- Elektrotechnik
- Erneuerbare Energie
Whirlpools / Jacuzzi
Hausbau Magazin
- Baufinanzierung trotz Krise?
- Das Blockhaus
- Moderne Dämmstoffe im Vergleich
- Erker Vor- und Nachteile
- Glasflächen beim Hausbau
- Günstig ein Haus Bauen
- Mediterraner Hausbaustil
- Mehrgenerationenhaus
- Moderne Architektur
- Gartengestaltung leicht gemacht
- Traditioneller Ziegelbau
- Villa als höchster Traum
- Im Eigenheim Ruhestand geniessen
- Altbau sanieren
- Kauf einer Holzgarage
- Immobilienmakler
- Arbeitshandschuhe für den Winter
- Zuhause verschönern
- Outdoor-Plissees
- Schlafzimmer planen
- Terrassenüberdachung
- Wohngebäudeversicherung
- Zaunarten und Eigenschaften
- Hauseingang gestalten
- Der perfekte Grundriss
- Sparsamer heizen im Altbau
- Einfamilienhaus smart finanzieren
- Planung einer PV-Anlage
- Neues Haus
- Immobilienfinanzierung
- Installation einer Photovoltaikanlage
- Asbest erkennen und entfernen
- Gartenpflege im Frühling – worauf achten
- Sauna im Fokus - Wellness zuhause
- Erfolgreich vermieten
- Die perfekte Winterbekleidung
- Das Niedrigenergiehaus
- Der April und seine Stürme
- Architektonische Vielfalt
- Ökologisch und nachhaltig bauen
- Das perfekte Schlafzimmer
- Nachhaltige Energieversorgung
- Zukunftsorientiert bauen
- Nachhaltigkeit beim Hausbau
- Tiny Houses
- Wärmepumpen als nachhaltige Heizvariante
- Maßgeschneiderten Kleiderschrank
- Der richtige Baukredit
- Ratgeber für erfolgreichen Hausbau
- Haus als Altersvorsorge
Do-it-yourself Anleitungen
- Verlegeanleitung für Bodenbeläge und Parkett
- Bodenbeläge und Parkett reinigen und pflegen
- Malerarbeiten am Haus
- Garten Tipps
- Umzug und Reinigung

ᐅ Grundriss Planung passt? - Vom Bungalow zum 2-geschossigen Einfamilienhaus

Erstellt am: 19.08.22 16:41
J
Janinashome
J
Janinashome
19.08.22 16:41
Hallo zusammen,
wir sind an der Realisierung unseres Traumhauses und freuen uns über Input.
Wir sanieren einen Bungalow, Bj. 1961 mit Aufstockung in Ständerbauweise. Im EG haben wir einige Wände entfernt und somit einen großen offenen Raum für Küche sowie Wohn- & Essbereich geschaffen. Unser Traum ist es, von allen Wohnräumen den Garten zu sehen und zu erreichen. Ebenso von der Küche aus direkten Zugang zur Terrasse zu haben. Unser Architekt hat uns in der Hinsicht sehr gut beraten. Eventuell ist uns aber irgendwas bei den Überlegungen durchgerutscht. Manchmal sieht man ja den Wald vor lauter Bäumen nicht mehr 🙂 Verzeiht mir, falls es irgendwelche Unklarheiten gibt, dann bin ich natürlich bereit Änderungen/ Ergänzungen vorzunehmen. Dies ist mein erster Beitrag in einem Forum. Aber wenn nicht jetzt, wann dann. In diesem Sinne, danke vorab für die Kritik 😉
Bebauungsplan/Einschränkungen
Größe des Grundstücks: ~1300qm
Hang: nein
Geschossflächenzahl: Orientierung an Nachbarbebauung
Baulinie und -grenze: Orientierung an Nachbarbebauung
Anzahl Stellplatz: 4
Geschossigkeit: 2 Vollgeschosse
Dachform: Satteldach
Stilrichtung: modern
Ausrichtung: Nord/ Süd
Maximale Höhen/Begrenzungen: Orientierung an Nachbarbebauung

Anforderungen der Bauherren
Stilrichtung: modern, Dachform: Satteldach
Keller: teilunterkellert (leicht feucht, daher Heizung in extra Raum vorgesehen) Geschosse: 2
Anzahl der Personen: 5, Alter: 2 erwachsene, Kinder: 5 Jahre, 3 Jahre, 1 Jahr
Raumbedarf im EG: Gästezimmer, Badezimmer, Technikraum, großer Wohn- Essbereich, offene Küche
OG: 3 Kinderzimmer, Elternschlafzimmer mit Bad und ankleide, Büro, Kinderbadezimmer, offener Spielbereich
Büro: Familiennutzung oder Homeoffice? beides
Schlafgäste pro Jahr: immer mal wieder Freunde mit Kindern
offene oder geschlossene Architektur: offen
konservativ oder moderne Bauweise: modern
offene Küche: ja mit Kochinsel
Anzahl Essplätze: 8 Plätze
Kamin: ja
Musik/Stereowand: nein
Balkon, Dachterrasse: nein
Garage, Carport: Garage
Nutzgarten, Treibhaus: nein
weitere Wünsche/Besonderheiten/Tagesablauf, gern auch Begründungen, warum dieses oder das nicht sein soll: -

Hausentwurf
Von wem stammt die Planung:
-Architekt
Was gefällt besonders? Warum?
Große, offene Räume im EG, freie offene Fläche im OG
Was gefällt nicht? Warum?
Preisschätzung lt Architekt/Planer:
Ca. 450k für Sanierung
Persönliches Preislimit fürs Haus, inkl Ausstattung: 550k

favorisierte Heiztechnik:
Wärmepumpe
Wenn Ihr verzichten müsst, auf welche Details/Ausbauten
-könnt Ihr verzichten:
-könnt Ihr nicht verzichten:

Warum ist der Entwurf so geworden, wie er jetzt ist? ZB
Standardentwurf vom Planer?
Nein
Entsprechende/Welche Wünsche wurden vom Architekten umgesetzt?
Fenster im Treppenbereich
Was macht ihn in Euren Augen besonders gut oder schlecht?: offene Räume, viel Südseite mit Glasfronten zum Garten

Was ist die wichtigste/grundlegende Frage zum Grundriss in 130 Zeichen zusammengefasst?
Wir freuen uns über ehrliches Feedback. Mit der schrägen Wand im linken Kinderzimmer im OG sind wir noch unsicher, gibt es alternativen? Wie hoch die Fensterhöhe/ Brüstungshöhe in den Kinderzimmern?

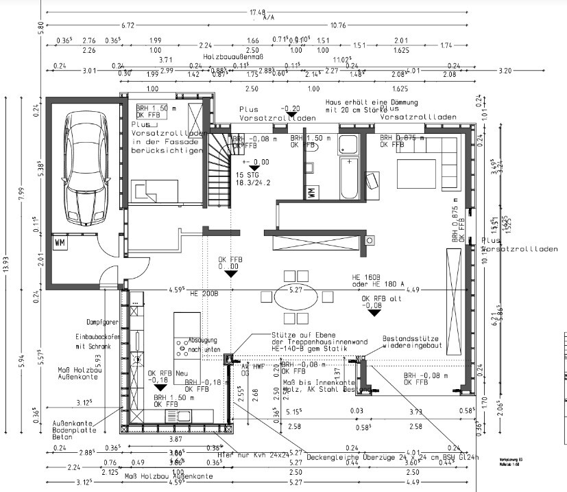
Grundriss eines Einfamilienhauses mit Garage, Wohn- und Essbereich, Küche, Bad und Treppenhaus.


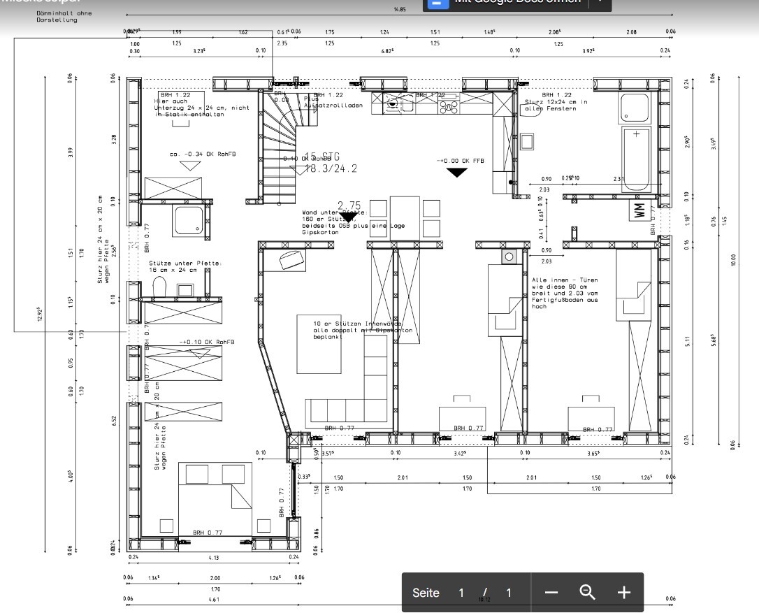
Grundriss eines Hauses: offenes Wohnzimmer mit Küche, Schlafzimmer, Bad und Treppe.


Architektonischer Grundriss eines Hauses mit Treppe, Küche, Bad und Möbeln, Maßlinien.
M
Myrna_Loy
19.08.22 17:28
Ich versteh den Plan nicht. Drei Vollbäder, davon 2 mit Badewanne? Zwei Wohnzimmer aber nur zwei Kinderzimmer im OG bei drei Kindern? Ein Kinderzimmer? Unten? Und was ist das für ein riesiger Raum im OG ab Treppe? Sind das um die 300 qm? Mir erscheint das extrem aufgeblasen mit viel Laufflächen. Und irgendwie große Räume.
K
K a t j a
19.08.22 18:37
Myrna_Loy schrieb:

Ich versteh den Plan nicht.
Ich habe die Eingangstür auch nicht gleich erkannt. 😉

Bei Umbau macht man üblicherweise:
- Bestandswände schwarz,
- Wände die neu sollen: rot
- Wände die weggerissen werden: gelb
sonst bleibt es ein Rätselraten, z.B. warum da so ein merkwürdiger Flur zwischen Bad und Allraum im EG ist?
D
driver55
19.08.22 18:40
K a t j a schrieb:

Ich habe die Eingangstür auch nicht gleich erkannt. 😉
Ich suche immer noch. 🙂
Soll das der 70 cm Zugang beim Dampfgarer sein? 🙄 😀

Zur Frage im Tiel. Nein.
M
Myrna_Loy
19.08.22 19:23
Und was ist das hier? Je mehr ich schaue, desto mehr denk ich: häh??? Und man wird in dem Haus locker seine 10.000 Schritte am Tag zusammenbekommen. 😀

Grundriss EG: Garage mit Auto links, Treppe rechts; roter Kreis markiert Möbelbereich.
M
Myrna_Loy
19.08.22 19:25
Und ist das ein Gästezimmer oder das Zimmer für den Chauffeur?
küchekinderzimmerwändearchitektnachbarbebauungessbereichgartendachformsatteldachgästezimmer