Mindestgröße für ein Hausanschlussraum.

4,20 Stern(e) 5 Votes
Zuletzt aktualisiert 16.10.2025
Sie befinden sich auf der Seite 5 der Diskussion zum Thema: Mindestgröße für ein Hausanschlussraum.
>> Zum 1. Beitrag <<

kaho674

kaho674

So ein Rohbau ist ja nicht völlig unflexibel. Nicht tragende Innenwände kann man ja auch noch mal raus reißen. Zum Beispiel die zum Gäste-WC. Dann wäre der Raum schon mal doppelt so groß. Das WC ließse sich eventuell anderswo unterbringen, wobei gerade das WC natürlich mit den Abflußrohren ein schlechtes Beispiel ist. Aber auch Durchbrüche durch die Außenwand sind noch denkbar, um Leitungen an einer anderen Stelle ins Haus zu führen. Deswegen wär es gut, den gesamten Plan zu sehen und die dazugehörige Verrohrung, Leitungen usw.

Habt Ihr keine Ausführungspläne erhalten?
 
Zuletzt bearbeitet:
Z

Zaba12

So ein Rohbau ist ja nicht völlig unflexibel. Nicht tragende Innenwände kann man ja auch noch mal raus reißen. Zum Beispiel die zum Gäste-WC. Dann wäre der Raum schon mal doppelt so groß. Das WC ließse sich eventuell anderswo unterbringen, wobei gerade das WC natürlich mit der den Abflußrohren ein schlechtes Beispiel ist. Aber auch Durchbrüche durch die Außenwand sind noch denkbar, um Leitungen an einer anderen Stelle ins Haus zu führen. Deswegen wär es gut, den gesamten Plan zu sehen und die dazugehörige Verrohrung, Leitungen usw.

Habt Ihr keine Ausführungspläne erhalten?
Worüber reden wir denn hier? Die Bodenplatte samt Abflussleitungen und Durchbrüchen nach außen ist doch schon fertig, das EG gemauert und die EG Decken gegossen!

Wozu willst Du den Gesamtplan haben? Soll das Gäste-WC auf die andere Seite der Bodenplatte samt Kernbohrung und Verlegung der Abflussrohre?

Das Ding ist doch durch! Es ist alles fertig geplant beim GU. Soll der TE jetzt 10k€ oder mehr in die Hand nehmen damit das WC Wohnraum wegnimmt.

Realistisch bleibt das so. Bis irgendjemand sagt das geht ok, wenn nicht dann muss der GU sich was überlegen, zur Not auf Kosten des TE, denn Er hat die Planung freigegeben.
 
Zuletzt bearbeitet:
M4rvin

M4rvin

Und ich habe gedacht, wir haben schon den kleinsten Hauswirtschaftsraum den es gibt. Zumindest verzweifeln Elektriker und Sanitärer ein kleines bisschen. Aber wir stellen ja die Waschmaschine noch mit rein!

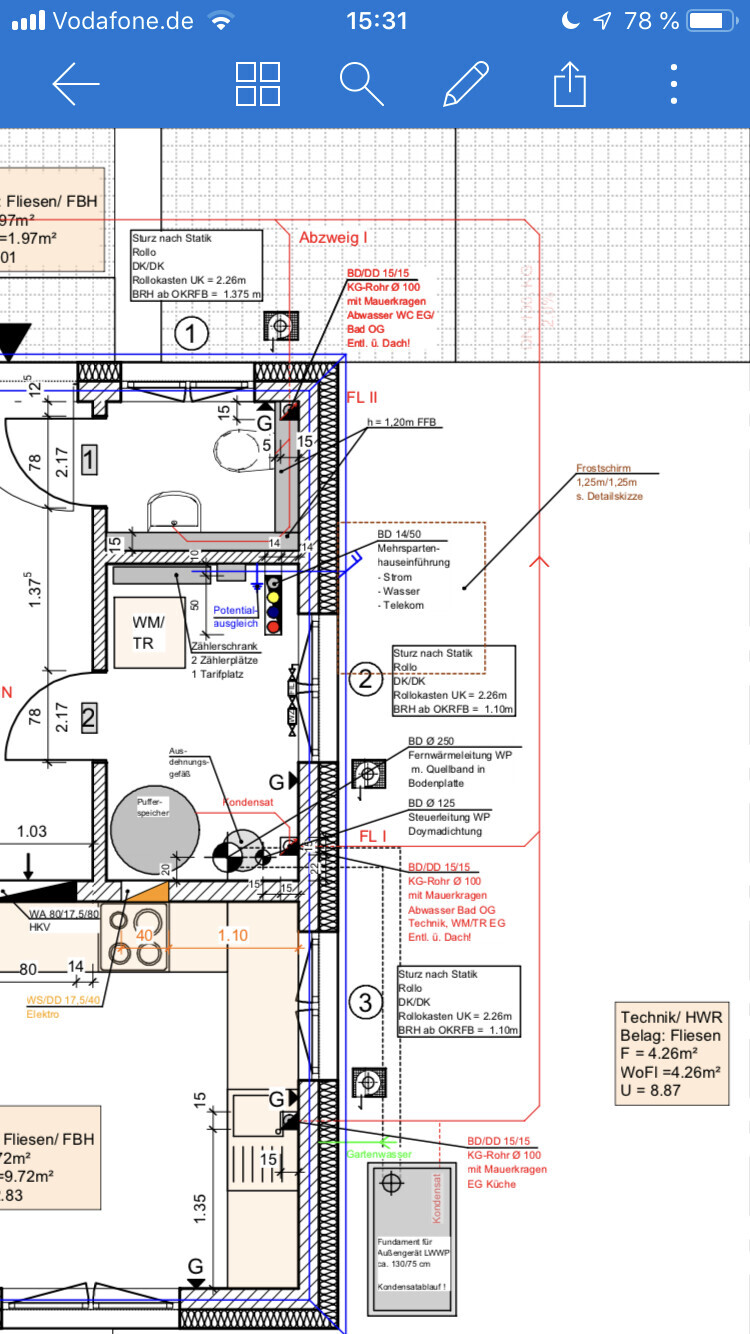
Detaillierter Baugrundriss mit Räumen, Leitungen, Maßen und Beschriftungen.
 
lastdrop

lastdrop

Hatten doch vor Kurzem erst den Fall bei jemand, dass die Haustechnik plötzlich doch nicht an den vorgesehenen Platz passte (war das unter der Treppe?) und dann vom GU/BT vorgeschlagen wurde, das Ganz unters Dach zu legen?
 
kaho674

kaho674

Worüber reden wir denn hier? Die Bodenplatte samt Abflussleitungen und Durchbrüchen nach außen ist doch schon fertig, das EG gemauert und die EG Decken gegossen!

Wozu willst Du den Gesamtplan haben? Soll das Gäste-WC auf die andere Seite der Bodenplatte samt Kernbohrung und Verlegung der Abflussrohre?

Das Ding ist doch durch! Es ist alles fertig geplant beim GU. Soll der TE jetzt 10k€ oder mehr in die Hand nehmen damit das WC Wohnraum wegnimmt.

Realistisch bleibt das so. Bis irgendjemand sagt das geht ok, wenn nicht dann muss der GU sich was überlegen, zur Not auf Kosten des TE, denn Er hat die Planung freigegeben.
Nunja, der TE fragt und ich hab geantwortet. Wenn da alles rein passt in den Wandschrank, würd ich auch nichts ändern.
Natürlich liegen die Rohre - hab ich ja auch angedeutet, dass das nicht ganz leicht würde. Wir hatten ein ähnliches Problem mit einem Abflussrohr, was dann einen anderen Weg nehmen sollte - hat auch noch geklappt. Und ja, irgendwo kommen vermutlich noch weitere Rohre aus dem OG runter, an die man sich bei einer geschickten Umplanung eventuell anschließen könnte, wenn das WC weichen muss.
 
Zuletzt aktualisiert 16.10.2025
Im Forum Bauland / Baurecht / Baugenehmigung / Verträge gibt es 3157 Themen mit insgesamt 42849 Beiträgen


Ähnliche Themen zu Mindestgröße für ein Hausanschlussraum.
Nr.ErgebnisBeiträge
1WC-Fenster Gäste-WC neben der Eingangstür - inzwischen nogo? 44
2Gäste-WC: Decke abhängen oder Rohr verkleiden? - Seite 216
3Lichtanschluss falsche Stelle Gäste-WC 29
4Beispiel Kaltwasserhahn für Gäste-WC 12
5Lage Gäste-WC - Eingangsbereich? 28
6Gäste-WC (1,65qm) und Bad (4,88qm) Sanierung 21
7Gäste-WC Anordnung - Tipps? 19
8Fenster im Gäste-WC/Gästezimmer trotz Garage möglich? - Seite 333
9Rollladen im Gäste-WC ja oder nein? 35
10Planung Gäste-WC, brauche eure Tipps 17
11Planung Gäste-WC im Neubau - Wie groß muss es sein? (DIN?) 107
12Entwürfe Gestaltung Fliesen Bad / Gäste-WC - Seite 319
13Fußbodenheizung in Bodenplatte - Vor- und Nachteile? - Seite 215
14Bodenplatte - Bewehrung Stahl schaut raus - Seite 212
15Alle Abwasserrohre in der Bodenplatte sind falsch 14
16Kreuzende Leitungen von verschiedenen Versorgungsleitungen - Seite 212
17Hauseinführung Bodenplatte für Wärmepumpen Außengerät 12
18Aufschütten für Bodenplatte - Seite 225
19Bodenplatte aufschneiden wegen falsch liegender Abflussrohre 20
20Wie Rohre bzw. gesamte Öffnung abdichten - Seite 211

Oben