Meinungen zur Grundrissplanung (Iso Ansichten, Grundrisse, Bebauungsplan)

4,30 Stern(e) 6 Votes
Zuletzt aktualisiert 24.11.2025
Sie befinden sich auf der Seite 3 der Diskussion zum Thema: Meinungen zur Grundrissplanung (Iso Ansichten, Grundrisse, Bebauungsplan)
>> Zum 1. Beitrag <<

D

Dopamin

Leider müssen wir nach Bebauungsplan das Dach >30° machen.
Lieber wären mir auch 22°.
Wir werden versuchen müssen die Dachneigung durch einen Antrag zu reduzieren.
 
Zuletzt bearbeitet:
kaho674

kaho674

Leider müssen wir nach Bebauungsplan das Dach >30° machen.
Lieber wären mir auch 22°.
Wir werden versuchen müssen die Nachneigung durch einen Antrag zu reduzieren.
Sowas find ich immer blöd. Da bist Du dann "Der mit dem anderen Dach". Alle anderen ringsum haben 30°, nur Mr. Nobelhobel brät ne Extrawurst.
Vielleicht macht man lieber ne normale Decke und für die Kinder 2 Kindertreppen ins DG als Zimmervergrößerung o.ä.
 
montessalet

montessalet

Wenn alle anderen sich an den BPL gehalten haben (und es keine Ausnahmen gibt), dann kannste das wohl vergessen. Das ist doch genau der Sinn des Bebauungsplan: Das "einschränken", was eingeschränkt werden soll, der Rest frei (oder gem. Landesbauordnung). Änderungen in Sachen Dachformen und -Neigungen können passieren - aber dann mit ordentlichen Änderungen des BPL. Einzelne "Ausnahmen" widersprechen dem Sinn und Zweck eines BPL.
 
O

Obstlerbaum

Ich persönlich würde im Eingangsbereich den Lagerraum und das WC tauschen. So muss man im Winter bzw. bei schlechtem Wetter nicht durch den reingeschleiften Schmodder, um auf die Toilette zu kommen. Alternative Lösung: Schuhschrank draußen unterm Vordach...
 
11ant

11ant

ja uns wir fahren zwei "Premiumschlitten" und ich würde mein Auto nie in einem Carport stehen lassen, besonders im Winter oder bei Regen.
Na ja, der X3 und der A3 in der Zeichnung sehen ja nicht mehr ganz frisch aus
Vielleicht läßt sich ja eine Ausnahme erreichen, in beide Bauwiche je eine Einzelgarage zu stellen. Ich finde jedenfalls, daß die Garage neben das Haus gehört und nicht das Haus neben die Garage. So heilig das Blechle auch sein mag, das Pastorenstück vom Braten gebührt ihm nicht.

Die wände haben diese Maße, weil Archicad den Putz mit rechnet. Also das sind ganz normale 36,5er Wände
Gerade Architekten cadden normalerweise die Eingabepläne als Rohbauten. Auch nach Putzabzug bleibt es hier bei Phantasiewerten für die Raummaße, die springen komplett aus dem Richtmaß.

Nach meiner Meinung ist der Raum dann zusehr nach oben gestreckt, was ihn unten wieder kleiner fühlen lässt.
Das sehe ich ebenso, und schließe mich dem Vorschlag an:
Vielleicht macht man lieber ne normale Decke und für die Kinder 2 Kindertreppen ins DG als Zimmervergrößerung o.ä.
 
D

Dopamin

So nun ist einiges an Zeit vergangen und wir haben noch etwas am Plan gefeilt.
Statt dem Büro im EG haben wir nun die Küche verlängert und damit den Wohnbereich deutlich vergrößert.
Das Büro muss dann wohl oder übel in den Keller (Tageslichschacht?)
Auch den Keller haben wir überarbeitet, damit das Büro dort reinpasst.

Ich bin über jede Anregung froh, also gerne auch kritisch

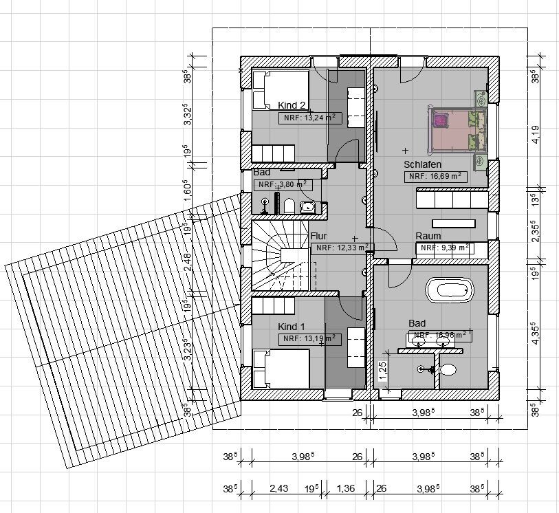
Grundriss eines Hauses mit Schlafzimmer, zwei Bädern, Flur und Kinderräumen


Grundriss eines Einfamilienhauses mit offener Wohnküche, Essbereich, Treppe, Garage mit zwei Autos.


Grundriss eines Gebäudeteils mit Büro/Gast, Hobbyraum, Waschraum, Betriebsraum und Flur/Treppenhaus.
 
Zuletzt aktualisiert 24.11.2025
Im Forum Grundrissplanung / Grundstücksplanung gibt es 2536 Themen mit insgesamt 88008 Beiträgen


Ähnliche Themen zu Meinungen zur Grundrissplanung (Iso Ansichten, Grundrisse, Bebauungsplan)
Nr.ErgebnisBeiträge
1Grundriss für Einfamilienhaus mit 200m² mit Einliegerwohnung 75 +Keller 140m² +Garage 56m² 59
2Bebauungsplan: Garage auf Grenze außerhalb Baufenster 53
3Nachbar baut Garage tiefer als Bebauungsplan vorgibt - Seite 210
4Position Garage auf Grundstück, Vorgabe im Bebauungsplan 22
5Einfamilienhaus (2Etagen+Wohn-Keller+ausgebautes Dach) etwa 200qm -Änderungen 162
6Erstes Angebot, 157m2 mit Keller, KFW 70, Garage 14
7Keller oder Garage, oder Keller mit integrierter Garage - Seite 214
8Einfamilienhaus mit >180qm / Keller / Garage 68
9Bauen ohne Keller - Carport, Garage? 18
10Hanghaus 235 qm mit Garage im Keller auf 3600 qm Grundstück 15
11Holzdecke und Teilisolierung für Keller mit Garage 15
12Grundriss Einfamilienhaus mit Keller und Garage - Seite 950
13Kostenschätzung m2 Wohnfläche Hanghaus mit Keller und Garage - Seite 387
14Grundriss Einfamilienhaus 136m² mit Garage & Keller 17
15Mit oder ohne Keller Bauen - Erfahrungen - Seite 449
16Lage von Haus & Garage im Baufenster planen *Vorplanung* 129
17Dach gestalten / Nutzung 2. Stockwerk bei 2 Vollstockwerken Pflicht - Seite 423
18Grundrissplanung Stadtvilla 180m² mit Keller 45
19Gebäudehöhe von 8,5 m mit Keller und 2 Vollgeschossen? - Seite 331
20Grundrissoptimierung Einfamilienhaus mit Keller auf kleinem Grundstück - Seite 25178

Oben