ᐅ Lage Stadtvilla oder Einfamilienhaus auf 500 m2 Grundstück-Rechteck
Erstellt am: 17.01.20 18:03
T
Tolentino17.01.20 18:03Liebe Alle,
nachdem ich euch im anderen Thread mit den Grundrissen meines möglichen Hamsterkäfigs gequält habe, folgt hier der nächste Thread (Vielen Dank übrigens noch mal für die vielen konstruktiven Anregungen dort).
Nur soviel, die Doppelhaushälfte ist noch nicht raus, denn dieses Grundstück ist heiß begehrt und ob es was wird ist nicht klar. Aber ich würde dieses hier schon favorisieren.
Nun also zu diesem Grundstück. Es geht mir hier erst mal nur darum, wo und wie ungefähr das Haus auf diesem Grundstück aufgestellt werden sollte.
Bebauungsplan/Einschränkungen
Größe des Grundstücks: 500 m²
Hang: nein
Grundflächenzahl: 0,2
Geschossflächenzahl: 0,4
Baufenster, Baulinie und -grenze: 5m zur Straße, 3m zu Nachbarn
Randbebauung: erlaubt für Garagen und Schuppen. nicht vorhanden auf dem Grundstück.
Anzahl Stellplatz: 1-2
Geschossigkeit: 1,5-2(,5)
Dachform: Egal
Stilrichtung: Egal
Ausrichtung: Flucht Parallel zur Str.
Maximale Höhen/Begrenzungen: Maximale Firsthöhe 9m
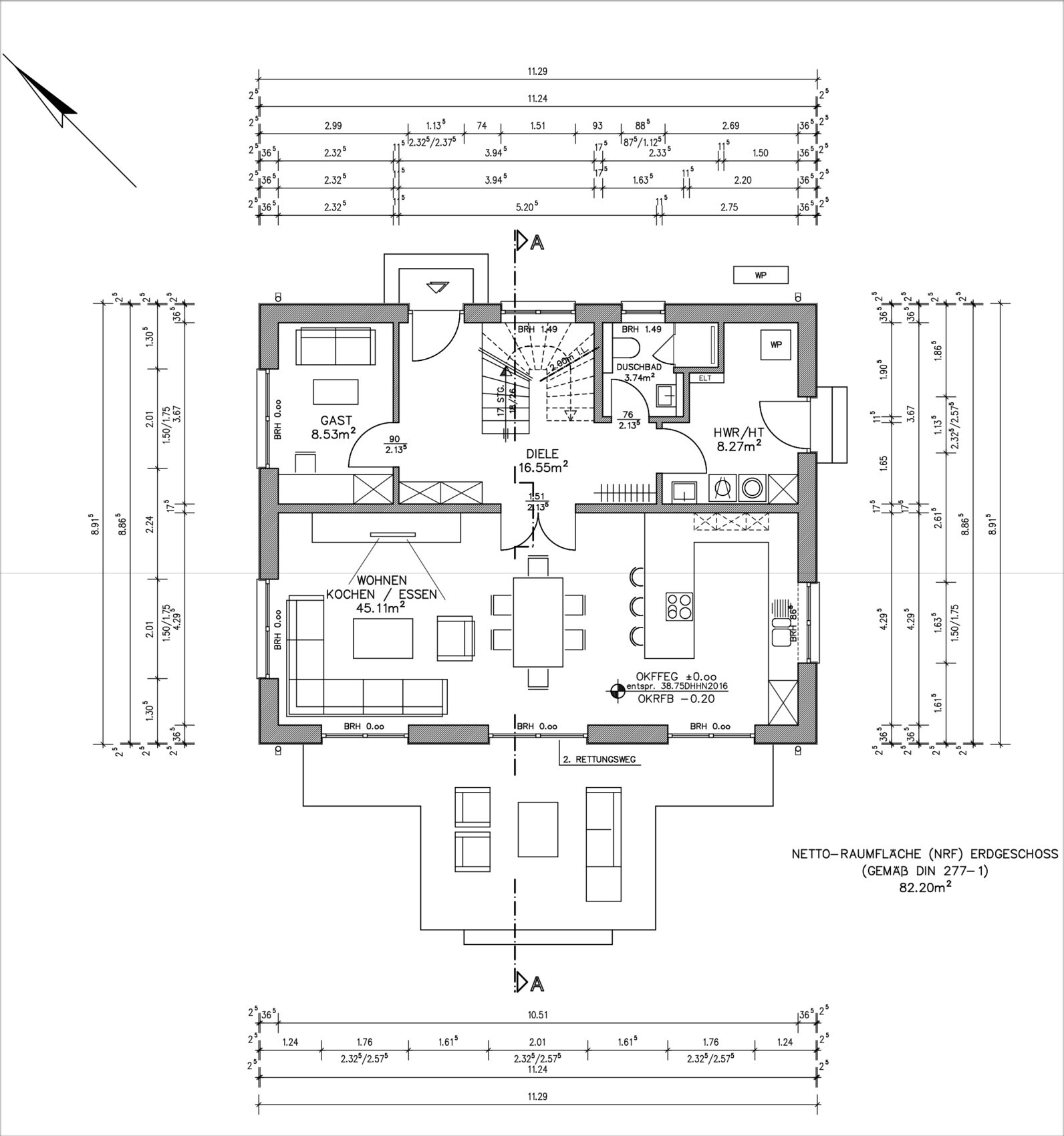
Es folgen die selbst angefertigten Lagepläne nach Angaben im Exposé.
So sieht das Grundstück grob aus mit den Baugrenzen und Maßen.

Meine Frage ist nun wohin mit dem Haus?
Der Vorschlag des Maklers ist nach hinten, da man vorne eh die 5m hat und so quasi 3m Garten "gewinnt". Meine Partnerin findet das nicht so toll, wegen Einsichtigkeit von der Straße aus. Ich sag: Sichtschutz! Aber denke auch, hm bei zu hohem Zaun droht Gefängnishofatmosphäre.
Aber selbst wenn man dem Vorschlag folgt. stellt sich die Frage für mich lieber quadratischer Grundriss (->Stadtvilla)?
So z.B.:

Dann wird der Stellplatz schwierig oder?
Oder hochkant?

Ich will ja eigentlich möglichst viel Westsicht und Garten. Bin eher ein Abendmensch und da ist weniger verbaut, durch die Straße. Kommt also mehr Licht, denke ich.
Aber der schmale Grundriss hat ja schon bei der Doppelhaushälfte so viel Probleme gemacht. Gut hier könnte man dafür länger bauen.
Was denkt ihr?
Viele Grüße
Tolentino
nachdem ich euch im anderen Thread mit den Grundrissen meines möglichen Hamsterkäfigs gequält habe, folgt hier der nächste Thread (Vielen Dank übrigens noch mal für die vielen konstruktiven Anregungen dort).
Nur soviel, die Doppelhaushälfte ist noch nicht raus, denn dieses Grundstück ist heiß begehrt und ob es was wird ist nicht klar. Aber ich würde dieses hier schon favorisieren.
Nun also zu diesem Grundstück. Es geht mir hier erst mal nur darum, wo und wie ungefähr das Haus auf diesem Grundstück aufgestellt werden sollte.
Bebauungsplan/Einschränkungen
Größe des Grundstücks: 500 m²
Hang: nein
Grundflächenzahl: 0,2
Geschossflächenzahl: 0,4
Baufenster, Baulinie und -grenze: 5m zur Straße, 3m zu Nachbarn
Randbebauung: erlaubt für Garagen und Schuppen. nicht vorhanden auf dem Grundstück.
Anzahl Stellplatz: 1-2
Geschossigkeit: 1,5-2(,5)
Dachform: Egal
Stilrichtung: Egal
Ausrichtung: Flucht Parallel zur Str.
Maximale Höhen/Begrenzungen: Maximale Firsthöhe 9m
Es folgen die selbst angefertigten Lagepläne nach Angaben im Exposé.
So sieht das Grundstück grob aus mit den Baugrenzen und Maßen.
Meine Frage ist nun wohin mit dem Haus?
Der Vorschlag des Maklers ist nach hinten, da man vorne eh die 5m hat und so quasi 3m Garten "gewinnt". Meine Partnerin findet das nicht so toll, wegen Einsichtigkeit von der Straße aus. Ich sag: Sichtschutz! Aber denke auch, hm bei zu hohem Zaun droht Gefängnishofatmosphäre.
Aber selbst wenn man dem Vorschlag folgt. stellt sich die Frage für mich lieber quadratischer Grundriss (->Stadtvilla)?
So z.B.:
Dann wird der Stellplatz schwierig oder?
Oder hochkant?
Ich will ja eigentlich möglichst viel Westsicht und Garten. Bin eher ein Abendmensch und da ist weniger verbaut, durch die Straße. Kommt also mehr Licht, denke ich.
Aber der schmale Grundriss hat ja schon bei der Doppelhaushälfte so viel Probleme gemacht. Gut hier könnte man dafür länger bauen.
Was denkt ihr?
Viele Grüße
Tolentino
T
Tolentino17.01.20 18:15T
Tolentino17.01.20 19:03also du meinst das mittlere Bild?
Oder die Mitte des Grundstücks (Baufensters)?
Oder die gedankliche Mitte zwischen den beiden Formen?
Die Stellplätze dürfte ich übrigens nicht offiziell auf die 5m packen...
Oder die Mitte des Grundstücks (Baufensters)?
Oder die gedankliche Mitte zwischen den beiden Formen?
Die Stellplätze dürfte ich übrigens nicht offiziell auf die 5m packen...
T
Tolentino17.01.20 19:14Ja, habe ich extra nachgefragt. Finde ich auch doof.
Ähnliche Themen