ᐅ Grundriss für 2 Doppelhaushälfte - breit und schmal bzw. quadratisch
Erstellt am: 01.02.22 23:26
S
smartsurfer85S
smartsurfer8501.02.22 23:26Derzeit steht auf dem Grundstück noch ein Einfamilienhaus mit BJ 1961. Der langjährige Mieter ist kürzlich verstorben. Da mir eine Kernsanierung des Einfamilienhaus zu teuer und aufwändig erscheint, möchte ich gern 1 komplettes Doppelhaus = 2 Doppelhaushälfte neu darauf bauen lassen. Dabei sollen beide Hälften gleich, also gespiegelt sein.
Eine Doppelhaushälfte behalte ich und vermiete ich dann, die zweite Doppelhaushälfte möchte ich entweder auch vermieten oder verkaufen (entweder direkt nach Fertigstellung, falls die Kosten des Projekts meine finanziellen Möglichkeiten übersteigen, oder später (z.B. nach 10 J.).
Das Grundstück ist eher lang und schmal, damit passen die Kataloggrundrisse nicht direkt. Die üblichen Doppelhaushälfte-Grundrisse sind eher „lang und schmal“ anstatt „breit und kurz“ oder „quadratisch“. Breiter erscheint mir für gut nutzbare Räume nicht unbedingt „besser“. Wieviel größer als 8,80m x 7,80m sollte es pro Doppelhaushälfte sein? (Maße mal rein vom Grundstück mit etwas Abstand für Gartenfläche zu den Nachbarn ein Gebäudekörper platziert, keine zwingende Notwendigkeit genau diese einzuhalten...ist einfach mal ein Anfang!)
Da ich von der notwendigen Mindestgröße noch keine Vorstellung habe ich mich an den Entwurf eines Grundrisses gemacht.
Zudem möchte ich den Entwurf dazu nutzen, die Preise bei verschiedenen GÜ vergleichen zu können.
Zwei verschiedene Varianten (für EG, OG, DG noch ausstehend) habe ich mal generiert.
Was kann man noch besser machen oder habt ihr noch ganz andere Ideen?
Lageskizze: Grundstück (dunkelblau) mit geplanten Parkplätzen, Weg und Gebäudekörper

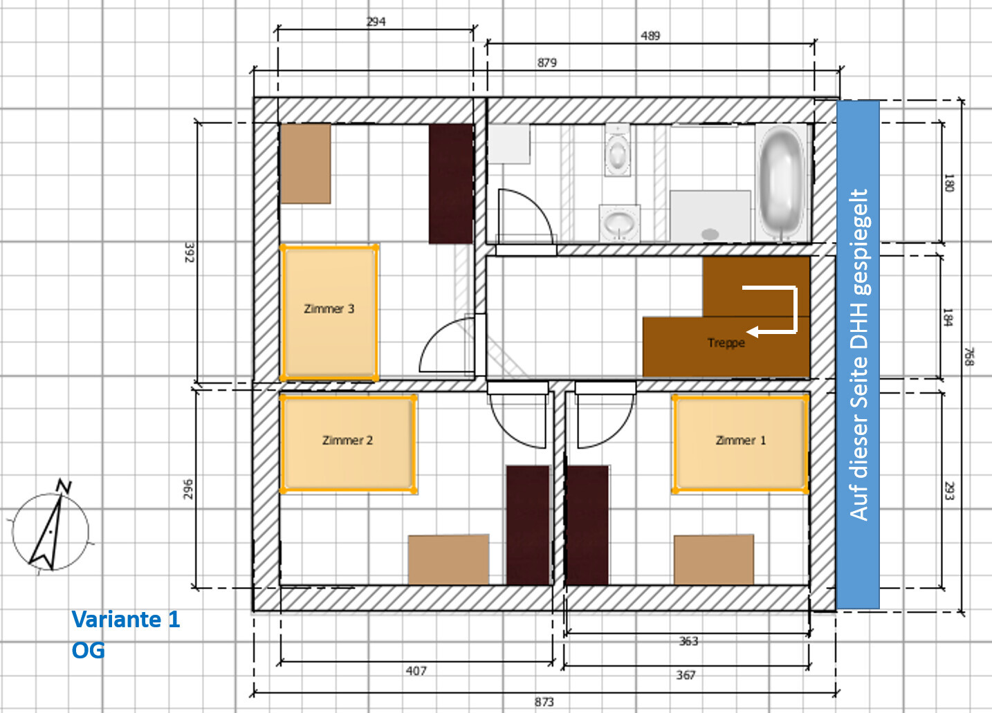
Variante 1:


Variante 2:


Größe des Grundstücks: 499m²
Hang: Nein
Grundflächenzahl: §34 Baugesetzbuch
Geschossflächenzahl: §34 Baugesetzbuch
Baufenster, Baulinie und -grenze
Randbebauung: 2,5m Grenzabstand
Anzahl Stellplatz: 2 je Doppelhaushälfte= 4 gesamt
Geschossigkeit: 2 geschossig
Dachform: Statteldach
Stilrichtung: Klassisch
Ausrichtung: Nord
Maximale Höhen/Begrenzungen
weitere Vorgaben
Anforderungen der Bauherren
Stilrichtung, Dachform, Gebäudetyp: Massivbauweise
Keller, Geschosse: Eher kein Keller aus Kostengründen, EG, OG und DG
Anzahl der Personen, Alter: Zielgruppe Familie mit 1-2-3 Kinder
Raumbedarf im EG, OG, DG: ca. 120-150m²
Büro: Familiennutzung oder Homeoffice? Homeoffice, 1-2 Büros
Schlafgäste pro Jahr:
offene oder geschlossene Architektur: Offen
konservativ oder moderne Bauweise: Konservativ
offene Küche, Kochinsel: Ja
Anzahl Essplätze: 6-8
Kamin: Nein
Musik/Stereowand: Nein
Balkon, Dachterrasse: Nein
Garage, Carport: ggf. Carport
Nutzgarten, Treibhaus: Nein
weitere Wünsche/Besonderheiten/Tagesablauf, gern auch Begründungen, warum dieses oder das nicht sein soll: Möglichst einfacher Grundriss zur Kostenreduktion, Gartenteil Richtung Süden gern 4,70m bis vielleicht minimal 4m (?) Abstand zum Nachbar, damit eine Terrasse gut nutzbar wird.
Hausentwurf
Von wem stammt die Planung:
-Do-it-Yourself: Ja
Was gefällt besonders? Warum? Variante 1: Wohnen/Essen im EG, da bessere Raumausnutzung, dagegen bei Variante 2: Zimmeraufteilung im OG, weil besser nutzbare Räume.
Was gefällt nicht? Warum? Variante 1: Technikraum im EG nur über Gäste-WC erreichbar
Preisschätzung lt Architekt/Planer: Noch unbekannt, Grundriss soll als Grundlage für Preisanfrage dienen
Persönliches Preislimit fürs Haus, inkl Ausstattung: -
favorisierte Heiztechnik: luftwärmepumpe
Wenn Ihr verzichten müsst, auf welche Details/Ausbauten
-könnt Ihr verzichten: Erker, Keller
-könnt Ihr nicht verzichten: Technikraum im EG
Warum ist der Entwurf so geworden, wie er jetzt ist?
Orientierung an Doppelhaushälfte-Beispielen, aber diese sind meist „lang und schmal“, während hier eher „kurz und breit“/“quadratisch“ notwendig ist. Zusätzliche Herausforderung ist es, die Technik unterzubringen, wenn auf den Keller verzichtet wird.
Was ist die wichtigste/grundlegende Frage zum Grundriss in 130 Zeichen zusammengefasst?
Optimierung Größe: Die derzeitigen 8,80m x 7,80m Außenmaße erscheinen echt knapp. Wieviel größer und mit welcher Grundriss-Variante (1, 2 oder komplett anders)?
Eine Doppelhaushälfte behalte ich und vermiete ich dann, die zweite Doppelhaushälfte möchte ich entweder auch vermieten oder verkaufen (entweder direkt nach Fertigstellung, falls die Kosten des Projekts meine finanziellen Möglichkeiten übersteigen, oder später (z.B. nach 10 J.).
Das Grundstück ist eher lang und schmal, damit passen die Kataloggrundrisse nicht direkt. Die üblichen Doppelhaushälfte-Grundrisse sind eher „lang und schmal“ anstatt „breit und kurz“ oder „quadratisch“. Breiter erscheint mir für gut nutzbare Räume nicht unbedingt „besser“. Wieviel größer als 8,80m x 7,80m sollte es pro Doppelhaushälfte sein? (Maße mal rein vom Grundstück mit etwas Abstand für Gartenfläche zu den Nachbarn ein Gebäudekörper platziert, keine zwingende Notwendigkeit genau diese einzuhalten...ist einfach mal ein Anfang!)
Da ich von der notwendigen Mindestgröße noch keine Vorstellung habe ich mich an den Entwurf eines Grundrisses gemacht.
Zudem möchte ich den Entwurf dazu nutzen, die Preise bei verschiedenen GÜ vergleichen zu können.
Zwei verschiedene Varianten (für EG, OG, DG noch ausstehend) habe ich mal generiert.
Was kann man noch besser machen oder habt ihr noch ganz andere Ideen?
Lageskizze: Grundstück (dunkelblau) mit geplanten Parkplätzen, Weg und Gebäudekörper
Variante 1:
Variante 2:
Größe des Grundstücks: 499m²
Hang: Nein
Grundflächenzahl: §34 Baugesetzbuch
Geschossflächenzahl: §34 Baugesetzbuch
Baufenster, Baulinie und -grenze
Randbebauung: 2,5m Grenzabstand
Anzahl Stellplatz: 2 je Doppelhaushälfte= 4 gesamt
Geschossigkeit: 2 geschossig
Dachform: Statteldach
Stilrichtung: Klassisch
Ausrichtung: Nord
Maximale Höhen/Begrenzungen
weitere Vorgaben
Anforderungen der Bauherren
Stilrichtung, Dachform, Gebäudetyp: Massivbauweise
Keller, Geschosse: Eher kein Keller aus Kostengründen, EG, OG und DG
Anzahl der Personen, Alter: Zielgruppe Familie mit 1-2-3 Kinder
Raumbedarf im EG, OG, DG: ca. 120-150m²
Büro: Familiennutzung oder Homeoffice? Homeoffice, 1-2 Büros
Schlafgäste pro Jahr:
offene oder geschlossene Architektur: Offen
konservativ oder moderne Bauweise: Konservativ
offene Küche, Kochinsel: Ja
Anzahl Essplätze: 6-8
Kamin: Nein
Musik/Stereowand: Nein
Balkon, Dachterrasse: Nein
Garage, Carport: ggf. Carport
Nutzgarten, Treibhaus: Nein
weitere Wünsche/Besonderheiten/Tagesablauf, gern auch Begründungen, warum dieses oder das nicht sein soll: Möglichst einfacher Grundriss zur Kostenreduktion, Gartenteil Richtung Süden gern 4,70m bis vielleicht minimal 4m (?) Abstand zum Nachbar, damit eine Terrasse gut nutzbar wird.
Hausentwurf
Von wem stammt die Planung:
-Do-it-Yourself: Ja
Was gefällt besonders? Warum? Variante 1: Wohnen/Essen im EG, da bessere Raumausnutzung, dagegen bei Variante 2: Zimmeraufteilung im OG, weil besser nutzbare Räume.
Was gefällt nicht? Warum? Variante 1: Technikraum im EG nur über Gäste-WC erreichbar
Preisschätzung lt Architekt/Planer: Noch unbekannt, Grundriss soll als Grundlage für Preisanfrage dienen
Persönliches Preislimit fürs Haus, inkl Ausstattung: -
favorisierte Heiztechnik: luftwärmepumpe
Wenn Ihr verzichten müsst, auf welche Details/Ausbauten
-könnt Ihr verzichten: Erker, Keller
-könnt Ihr nicht verzichten: Technikraum im EG
Warum ist der Entwurf so geworden, wie er jetzt ist?
Orientierung an Doppelhaushälfte-Beispielen, aber diese sind meist „lang und schmal“, während hier eher „kurz und breit“/“quadratisch“ notwendig ist. Zusätzliche Herausforderung ist es, die Technik unterzubringen, wenn auf den Keller verzichtet wird.
Was ist die wichtigste/grundlegende Frage zum Grundriss in 130 Zeichen zusammengefasst?
Optimierung Größe: Die derzeitigen 8,80m x 7,80m Außenmaße erscheinen echt knapp. Wieviel größer und mit welcher Grundriss-Variante (1, 2 oder komplett anders)?
Ich würde das Grundstück auf den 33 m mit dem Gebäude nahezu ausreizen, damit der Garten etwas größer wird.
Also tendenziell 10 x 7 mit Variante 2, dann bekommt man den Eingangsbereich etwas großzügiger und das Treppenhaus EG/OG belichtet.
(unabhängig davon, was tatsächlich gebaut werden darf).
Also tendenziell 10 x 7 mit Variante 2, dann bekommt man den Eingangsbereich etwas großzügiger und das Treppenhaus EG/OG belichtet.
(unabhängig davon, was tatsächlich gebaut werden darf).
N
Nice-Nofret02.02.22 08:27Beim Technikraum musst Du immer dran denken, dass die Technik auch durch die Türen passen muss.... Deshalb kann es Sinn machen, dem Technikraum eine Außentüre zu spendieren.
K
K a t j a02.02.22 11:04smartsurfer85 schrieb:
Grundflächenzahl: §34 Baugesetzbuch
Geschossflächenzahl: §34 Baugesetzbuch
Wie sind denn die Nachbargrundstücke diesbezüglich bebaut? Hast Du schon mal beim Bauamt nachgehakt, was maximal für Dein Grundstück möglich ist?Der Grundriss funktioniert fast nirgendwo, weder Bad, noch Wohnzimmer, Küche wie eingezeichnet. Würde ich mich allerdings erstmal nicht dran stören.
Hast du eine Skizze o.ä. wie die Nachbarbebauung im Süden ausschaut zur Einschätzung wo man eventuell Licht herbekommen kann? Würde bei dem Grundstück eher in der Mitte Teilen und die Gärten nach Ost und West orientieren, schafft auch gleich noch mal Privatsphäre.
Wäre eine große EG-Wohnung und OG/DG als eine oder zweit weitere Wohnungen eine denkbare Alternative?
Hast du eine Skizze o.ä. wie die Nachbarbebauung im Süden ausschaut zur Einschätzung wo man eventuell Licht herbekommen kann? Würde bei dem Grundstück eher in der Mitte Teilen und die Gärten nach Ost und West orientieren, schafft auch gleich noch mal Privatsphäre.
Wäre eine große EG-Wohnung und OG/DG als eine oder zweit weitere Wohnungen eine denkbare Alternative?
S
smartsurfer8504.02.22 00:35Nice-Nofret schrieb:
Beim Technikraum musst Du immer dran denken, dass die Technik auch durch die Türen passen muss.... Deshalb kann es Sinn machen, dem Technikraum eine Außentüre zu spendieren.Darüber habe ich auch schon nachgedacht, wenn der Grundriss soweit steht kommt die Außentüre noch rein. K a t j a schrieb:
Wie sind denn die Nachbargrundstücke diesbezüglich bebaut? Hast Du schon mal beim Bauamt nachgehakt, was maximal für Dein Grundstück möglich ist?Nein, noch nicht nachgefragt, aber es reicht vom Einfamilienhaus (2-geschossig auf anderer Straßenseite, derzeit steht ein 1-geschossiges Einfamilienhaus drauf) bis 4-Familienhaus. Aber es wird nach §34 hier in der Umgebung bei den Bauträgern gerade eigentlich alles genehmigt weil "Wohnraum schaffen" in die politische Agenda passt, da sollte Einfamilienhaus, Doppelhaus oder gar ein Mehrfamilienhaus gar kein Problem sein. borxx schrieb:
Hast du eine Skizze o.ä. wie die Nachbarbebauung im Süden ausschaut zur Einschätzung wo man eventuell Licht herbekommen kann? Würde bei dem Grundstück eher in der Mitte Teilen und die Gärten nach Ost und West orientieren, schafft auch gleich noch mal Privatsphäre.Im Süden steht ein 3-Familienhaus, im Norden ist ein alter Hof mit massig Abstand und im Osten Gartenfläche.borxx schrieb:
Wäre eine große EG-Wohnung und OG/DG als eine oder zweit weitere Wohnungen eine denkbare Alternative?Prinzipiell schon.
So ein 3- oder 4-Familienhaus wird gerechnet auf den qm eher günstiger sein.
Aber: Damit ist dann aber ein teilweiser Verkauf für mich ausgeschlossen. Sonst hat man nach dem Verkauf von einer Wohnung ja eine WEG und die damit eingehenden Pflichten und muss sich immer mit dem anderen abstimmen und einig sein (zukünftige Renovierungen etc.). Da ist der Ärger eigentlich schon vorprogrammiert.
Leider ist der Ort bzgl. Infrastruktur eher sehr schwach, was sich auch auf den Mietspreis auswirkt. Erst kürzlich wurde in dem Ort eine 4,5-Zi-Maisonette-Wohnung BJ2017 bei 122qm für 1060€ auf Immoscout zur Vermietung angeboten. Das finde ich für eine so neue Wohnung wenig.
Heißt für mich: Bei einem Mehrfamilienhaus darf damit eine einzelne Wohnung ca. 70qm haben um auch einen höheren Mietpreis durchsetzen zu können. Daher erscheint mir momentan der Gedanke mit dem DH etwas attraktiver: Hier ist meine Vermutung, dass für ein "eigenes Haus" mit 120qm ein höhrerer Mietpreis im Vergleich zur 122qm Wohnung möglich ist.
Zudem gibt es hier die Option mit dem Verkauf einer Hälte, nach Bau oder in Zukunft. So eine Doppelhaushälfte lässt sich gut abtrennen. Ausser dem gemeinsamen Weg, der dann mit Leitungsrecht und Wegerecht geregelt wird, hat jeder seine Haustüre, seinen Garten, sein Dach,...eben seinen Teil. Und für Eigentum sind die Preise hier gerade auch sehr hoch, v.a. im Vergleich zur Miete, weil die Leute eben "für ihr eigenes" bereit sind entsprechend zu zahlen.
Ähnliche Themen