Hausplanung 135m2 in Österreich

4,40 Stern(e) 5 Votes
Zuletzt aktualisiert 20.11.2025
Sie befinden sich auf der Seite 11 der Diskussion zum Thema: Hausplanung 135m2 in Österreich
>> Zum 1. Beitrag <<

L

Lumpi_LE

Ytong dämmt besser als der Rote, ist aber hellhöriger. Man kann mit 36,5 er Gasbeton ohne zusätzliche Dämmung rein verputzt ein Haus in D. durch die Energieeinsparverordnung kriegen. -Mit dem Roten geht das m.W. nicht.
Rot und Weiß gibt es mit den selben Dämmwerten (lambda), üblich 0,09 bis hin zu teuren 0,07. Mit beiden kann man mit 0,09 und 36,5 ein normales Energieeinsparverordnung-Haus bauen.
 
G

Gugelhupf

Prenbeton und Ziegel haben beide ihre Vor- und Nachteile. Beide haben eine Dasensberechtigung, genauso wie Holzriegel, Massivholz und was es sonst noch alles gibt...
Meiner Meinung nach ist da vieles dabei einfach eine Glaubensfrage...

Mich würden aktuell aber trotzdem Vorschläge / Kommentare / Verbesserungen zum Grundriss mehr interessieren als eine Materialdiskussion.
 
11ant

11ant

Ich tue mich schwer mit fensterlos dargestellten Grundrissen. Die Burgmauern finde ich im Flächenverbrauch unverhältnismäßig für diese Hausgröße, mindestens auf 42,5 cm würde ich da downgraden.

Im OG/DG wird die fette Badezimmerwand sportlich, wenn sie massiv sein soll. Wie hoch soll denn der Kniestock werden ? (> Stehhöhe u.a. in der Badewanne, an der Toilette, rund um´s Bett, ...). Zum unteren Bad sagte ich ja schon, daß es mich an Zugtoiletten oder Wohnmobilnaßzellen erinnnert.
 
G

Gugelhupf

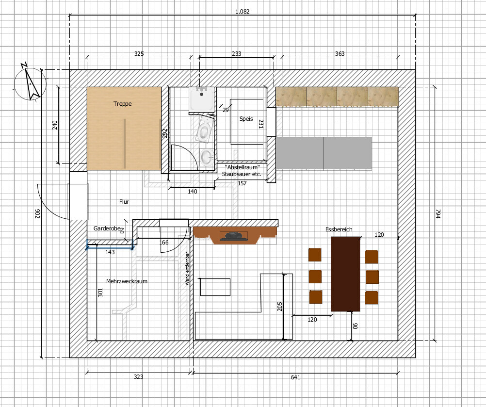
Ich hab da mal an einer alternativen Idee zum EG gebastelt, wo das GZ dem EG mit einer Schiebewand hinzugefügt werden könnte...

Ist nicht ausgereift, gibt auch kein OG dazu. Ist wirklich nur mal eine spontane Idee die ich zur Diskussion stellen möchte...

Grundriss EG mit Flur, Treppe, Mehrzweckraum, Speis, Küche, Essbereich und Garderobe.
 
Zuletzt aktualisiert 20.11.2025
Im Forum Grundrissplanung / Grundstücksplanung gibt es 2535 Themen mit insgesamt 87977 Beiträgen


Ähnliche Themen zu Hausplanung 135m2 in Österreich
Nr.ErgebnisBeiträge
1Gasbeton / Ziegel / Monolithische Bauweise - Wer kennt sich aus? 31

Oben