Haus-Bilder Plauderecke - Zeigt her eure Hausbilder!

5,00 Stern(e) 306 Votes
Zuletzt aktualisiert 22.11.2025
Sie befinden sich auf der Seite 442 der Diskussion zum Thema: Haus-Bilder Plauderecke - Zeigt her eure Hausbilder!
>> Zum 1. Beitrag <<

D

DanielaS

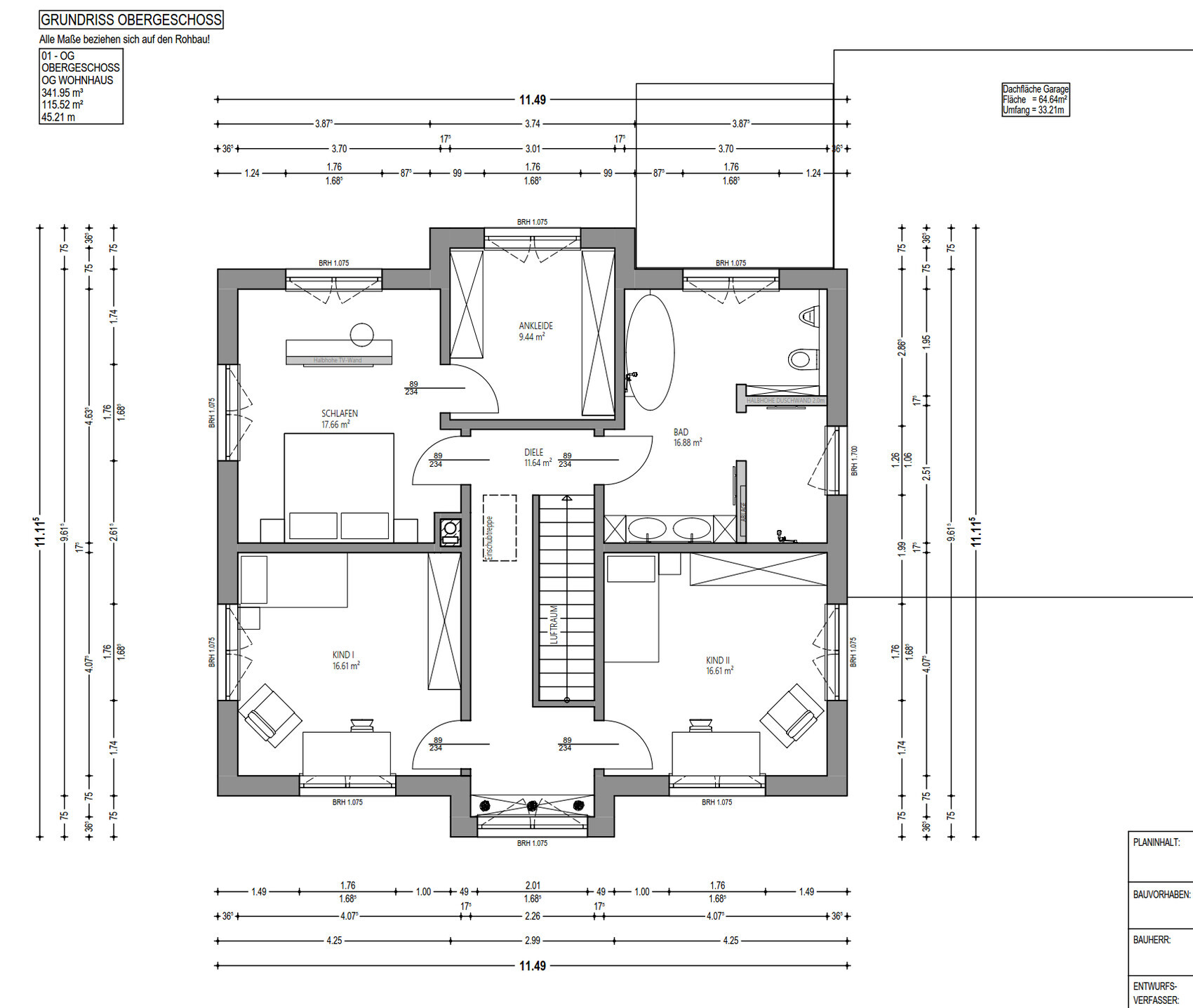
Jetzt bin ich auch mal mit ein paar Bildern dran. Bei uns entsteht eine Stadtvilla mit 2 Erkern, knapp 180 qm Wohnfläche, Großraumgarage mit 6 x 10 m und Kellerersatzraum. Momentan sind die Gewerke an den Rohbauarbeiten der Elektrik, Sanitär- und Heizungsanlage, das Dach ist fertig eingedeckt, es fehlt nur das Garagendach. Danach geht es weiter mit Fenstern am 6.6. und Innenputz am 11.6. Voraussichtlicher Einzugstermin ist irgendwann im Oktober wenn wir mit unseren Eigenleistungen fertig sind und die Küche geliefert werden kann.

Mehrstöckiges Haus im Rohbau mit Gerüst, Baustellenzaun und Schutt am Grundstück.


Baustelle: pinkfarbene Toilettenkabine vor Gerüstbau, Absperrband, Häuser im Hintergrund.
 
L

Loads

Ich habe auch mal wieder ein paar Bilder zum zeigen.
Heute wurde der Dachstuhl aufgeschlagen.
Ich weiß nicht - irgendwie kommt mir der Abstand der Sparren so weit vor (ist ca. 1m). Bei den Nachbarn sind die alle enger zusammen. Ich habe mich vor kurzem noch dazu entschlossen eine Photovoltaikanlage aufs Dach zu machen - hoffentlich klappt das.
Baustelle mit Holz-Dachstuhl, gelben YTONG-Blocks und Bauholz.

Baustelle: Haus mit offenem Holz-Dachstuhl, eingerüstet, im Wohngebiet.

Zweistöckiges Rohbauhaus mit Gerüst und sichtbarem Dachstuhl aus Holz.

Haus im Rohbau mit Gerüst und Betonfundament, Baugeräte auf einer Baustelle.

Rohbau eines Hauses mit Gerüst, sichtbarer Dachkonstruktion, orange Container und gelbem Dämmstoff.

Rohbau eines Hauses mit Gerüsten und Holz-Dachstuhl, ländliche Umgebung im Hintergrund.

Rohbau eines Hauses mit sichtbarem Holz-Dachstuhl, Gerüst rundum auf der Baustelle.
 
Zuletzt aktualisiert 22.11.2025
Im Forum Bauplanung gibt es 5073 Themen mit insgesamt 100819 Beiträgen


Ähnliche Themen zu Haus-Bilder Plauderecke - Zeigt her eure Hausbilder!
Nr.ErgebnisBeiträge
1Dunstabzug / Dach oder Wand 14
2KfW 55 mit Holzhaus - U-Werte: Wand 0,18 - Dach 0,16 17
3Dach dämmen: Flocken, Platten oder Wolle 17
4Mauern über Dach hinaus ziehen!? - Seite 443
5Dach gestalten / Nutzung 2. Stockwerk bei 2 Vollstockwerken Pflicht - Seite 423
6Dach mit Photovoltaik oder anders investieren Erfahrungen? 19
7Dach zu flach ausgeführt - Baufirma anerkennt den Mangel nicht - Seite 212
8Abdichtung Bodenplatte bevor das Dach darauf ist 19
9Dach mit falschen Ziegeln gedeckt - Haus abgenommen. 12
10Dach, Flachdach, Satteldach, Pultdach - Was kostet wie viel? 22
11Dach auf einmal zu klein für Kontrollierte-Wohnraumlüftung! 54
12Gauben Abstand Außenwand oder Dach - Seite 216
13Einfamilienhaus (2Etagen+Wohn-Keller+ausgebautes Dach) etwa 200qm -Änderungen 162
14Bankbürgschaft vom Dachdecker wegen Mängeln am Dach 16
15Dampfsperre am Dach diffusionsoffen? Ja? Nein! 16
16Regenwasser vom Dach - Drainage im Erdreich zum abführen? 12
17Dach neu eindecken, Dachziegel nicht möglich - Seite 445
18Vollsparrendämmung Dach oder Dämmung auf Betondecke 40
19Holzfaserplatte unter Dach notwendig? 12
20Marder im Dach in der Dämmung was kann ich da tun??? - Seite 427

Oben