ᐅ Grundriss Einfamilienhaus Hanggrundstück mit Terrasse / Dachterrasse
Erstellt am: 03.10.22 23:49
E
einbeckerE
einbecker03.10.22 23:49Hallo!
Vielen Dank vorab schon für Eure Unterstützung!
Bebauungsplan/Einschränkungen
NRW, Bebauungsplan von 1964, wenig festlegungen (z.B. keine Höhe, keine Beschreibung Dachgeschoss), 10 Grad Dachneigung max
Größe des Grundstücks: 509 qm
Hang: Ja, abfallend von Strasse nach hinten, ca 2.5m Hoehnenunterschied, größtenteils gleich am Anfang
Grundflächenzahl: 0,4
Geschossflächenzahl: 0,7
Baufenster, Baulinie und -grenze: siehe Lageplan. Unteres + oberes Rechteck mit dickem Roten Rahmen: Gartengeschoss inkl. Keller, nur oberes Rechteck: Vollgeschoss Erdgeschoss (von Strasse), Garage rechts daneben
Randbebauung: siehe Lageplan
Anzahl Stellplatz: 1 Garage (fuer die Fahrräder, 1 Stellplatz davor mit Ladestation
Geschossigkeit: 1 Gartenschoss + 1 Vollgeschoss (EG von Strasse) + Dachgeschoss (nach Bauordnung von 62 - daher reicht es, dass 1/3 des Geschosses unter 2,50 lichte Höhe haben
Dachform: Satteldach mit 10 Grad Neigung, Photovoltaik
Stilrichtung: Modern
Ausrichtung: Garten nach Westen
Maximale Höhen/Begrenzungen: keine
weitere Vorgaben: keine
Grundstück liegt insgesamt am Hang, so dass auch von weiter oben ein Blick auf Tal / Bäume / Stadt möglich ist
Anforderungen der Bauherren
Stilrichtung, Dachform, Gebäudetyp: einfaches, modernes Einfamilienhaus, was aber nicht nach "Neubauklotz" aussieht
Keller, Geschosse: drei (Garten/KG, EG, OG)
Anzahl der Personen, Alter: 4: 41, 40, 6, 3
Raumbedarf im EG: Offen Wohnen / Essen / Kochen, Abstellkammer, Gaeste-WC
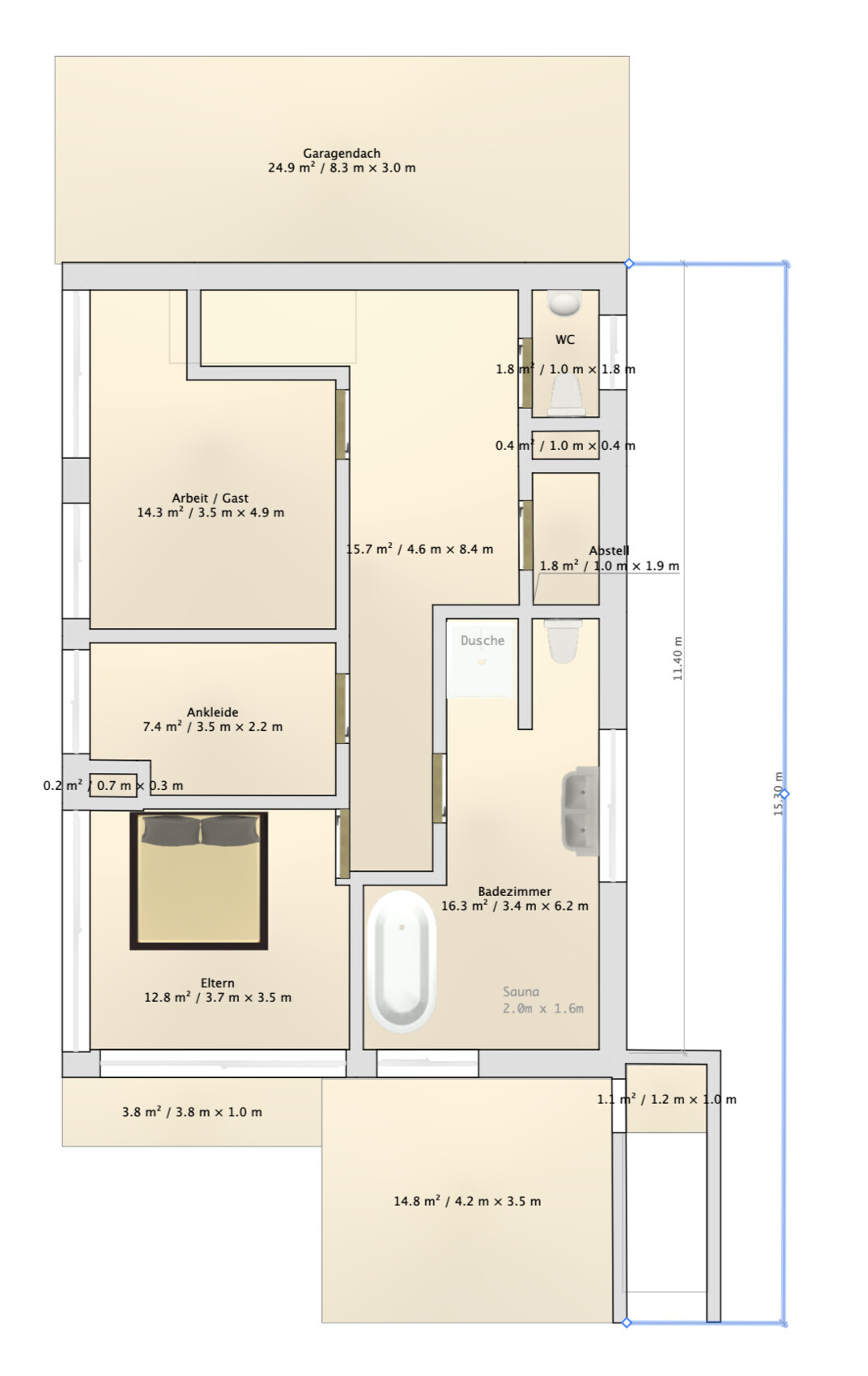
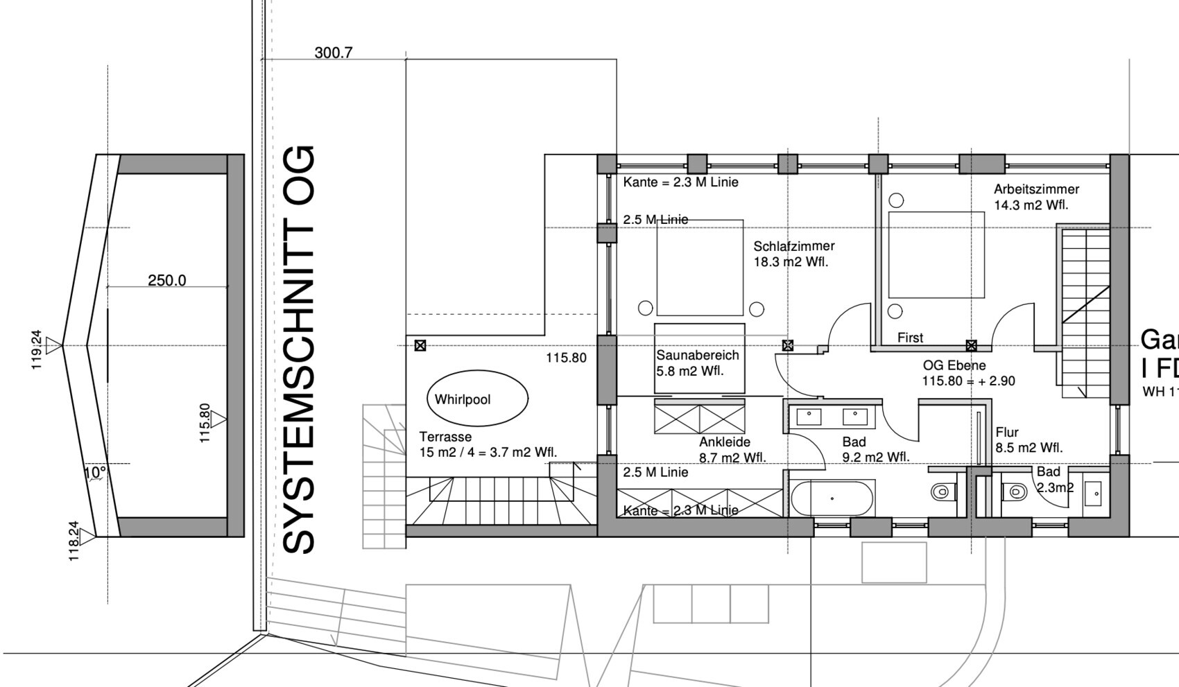
Raumbedarf im OG: Arbeits/Gästezimmer, Gäste-WC, Bad (mit Sauna), Ankleide, Elternschlafzimmer
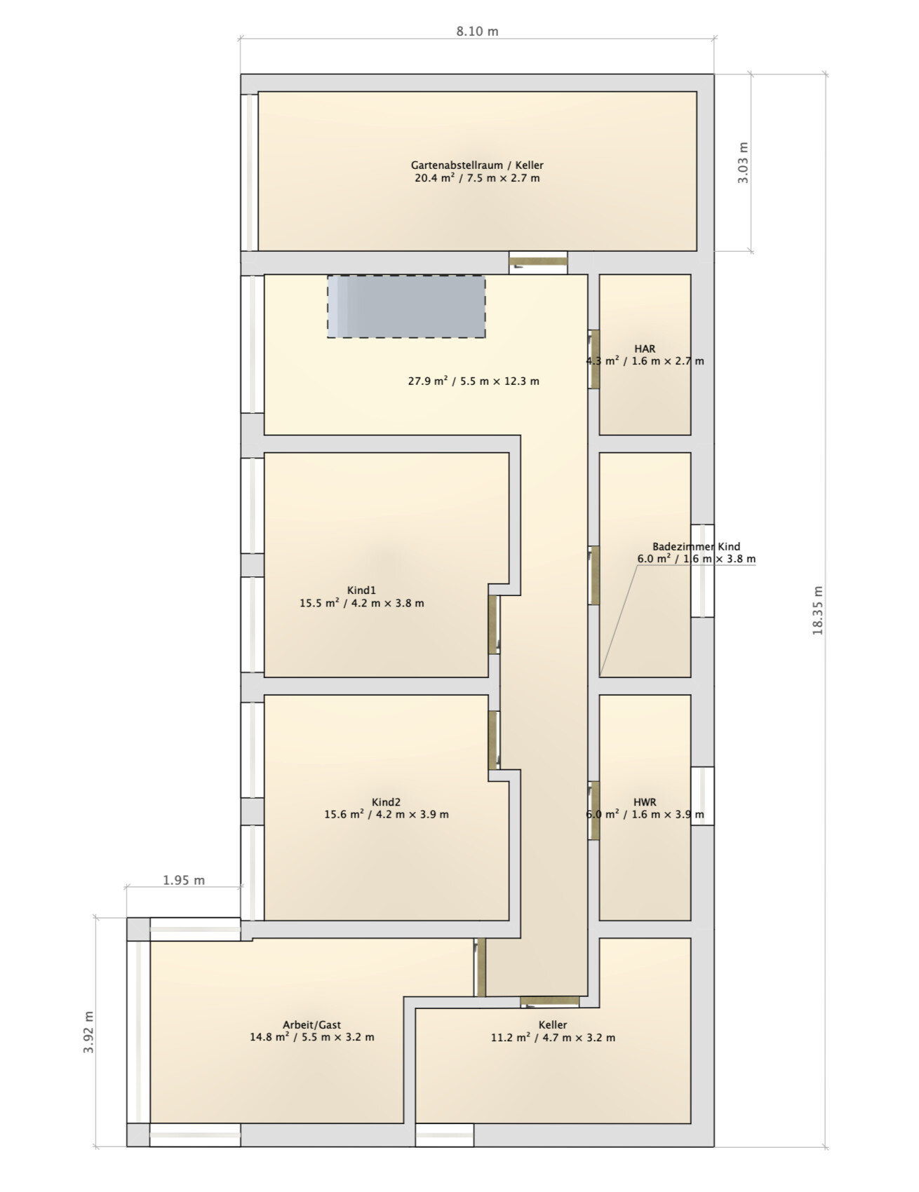
Raumbedarf im KG: 2 Kinderzimmer, ein Arbeits/Gästezimmer, HAR, Hauswirtschaftsraum, Keller, Kinderbad
Büro: Familiennutzung oder Homeoffice?: Ja, beide von uns arbeiten regelmässig im Homeoffice und telefonieren auch recht viel
Schlafgäste pro Jahr: Eltern/Schwiegereltern ca. 10x pro Jahr 3-4 Tage, andere Gäste (meistens mit Kindern) ca. 10x Jahr 2-3 Tage
offene oder geschlossene Architektur: semi-offen
konservativ oder moderne Bauweise: modern, aber warm
offene Küche, Kochinsel: offene Küche, Kochhalbinsel aus der Wand von der Terrasse kommend
Anzahl Essplätze: Tisch 90 cm x 200 cm, normalerweise 6 Stühle, passen aber auch 10-12
Kamin: ja, in der Mitte vom Wohn/Essbereich
Musik/Stereowand - kein grosser Platzbedarf, einzig ein Plattenspieler irgendwo. Kein Fernseher, aber rausfahrbare Leinwand
Balkon, Dachterrasse: Balkonartige Terrasse im EG (da zum Garten ca. 2.5m abfallen), Aussentreppenaufgang zur Dachterrasse
Garage, Carport: Eine Garage fuer die Fahrräder, ein Stellplatz mit vorne erster Meter von Garage überdacht fuer Elektro-Laden
Nutzgarten, Treibhaus: nein, höchstens Gemüse / Kräuter
weitere Wünsche/Besonderheiten/Tagesablauf, gern auch Begründungen, warum dieses oder das nicht sein soll
Hausentwurf
Von wem stammt die Planung: Architekt, aber von mir abgezeichnet, weil der letzte Plan einige Änderungen bekommen soll, die noch nicht eingearbeitet sind (aber ich gerne Feedback hätte)
Was gefällt besonders? Warum?
- Eingang: Grosszuegig, gleich mit Weitblick durch das Haus
- Wohnzimmer: viel außen nach innen geholt, Terrasse erlaubt viel draußen sein
- Obergeschoss: Wellnessoase mit Dachterrasse (und das man draußen bequem ueberall hoch und runter kann)
Was gefällt nicht? Warum?
- ggf. Langer Flur im Keller?
- ggf. Raumzuschnitt im OG, insbesondere Elternschlafzimmer
- ggf. Stellfläche im Wohnzimmer (k
Preisschätzung lt Architekt/Planer: noch nicht diskutiert
Persönliches Preislimit fürs Haus, inkl Ausstattung: 1-1.2 M EUR
favorisierte Heiztechnik: Wärmepumpe
Wenn Ihr verzichten müsst, auf welche Details/Ausbauten
-könnt Ihr verzichten: Außentreppe?
-könnt Ihr nicht verzichten:
Warum ist der Entwurf so geworden, wie er jetzt ist? Mehrere Runden mit Architekt - Bebauungsplan schränkt stark ein. Wir wollten bei recht kleinem Grundstück möglichst viel vom Garten haben
Entsprechende/Welche Wünsche wurden vom Architekten umgesetzt? Ein Baum (Linde) wird erhalten, Grund vor dem Haus und links vorne wird angechuettet, und dann eine Erdrampe runter in den Garten von der linken Seite aus
Was macht ihn in Euren Augen besonders gut oder schlecht?
Was ist die wichtigste/grundlegende Frage zum Grundriss in 130 Zeichen zusammengefasst? Antwort: Gibt es von Euch Verbesserungsvorschläge? Was gefällt, was sollten wir nochmal ueberdenken? Was kostet viel Geld, was kann gespart werden?
Danke fuer das offene Feedback und entschuldigt die Bilder - kommen so aus meinem lightweight-CAD tool raus...
Vielen Dank fuer Eure Hilfe - ich bin gespannt!
Danke und liebe Grüße,
Tobias
Lageplan

Obergeschoss

EG:

KG:

Vielen Dank vorab schon für Eure Unterstützung!
Bebauungsplan/Einschränkungen
NRW, Bebauungsplan von 1964, wenig festlegungen (z.B. keine Höhe, keine Beschreibung Dachgeschoss), 10 Grad Dachneigung max
Größe des Grundstücks: 509 qm
Hang: Ja, abfallend von Strasse nach hinten, ca 2.5m Hoehnenunterschied, größtenteils gleich am Anfang
Grundflächenzahl: 0,4
Geschossflächenzahl: 0,7
Baufenster, Baulinie und -grenze: siehe Lageplan. Unteres + oberes Rechteck mit dickem Roten Rahmen: Gartengeschoss inkl. Keller, nur oberes Rechteck: Vollgeschoss Erdgeschoss (von Strasse), Garage rechts daneben
Randbebauung: siehe Lageplan
Anzahl Stellplatz: 1 Garage (fuer die Fahrräder, 1 Stellplatz davor mit Ladestation
Geschossigkeit: 1 Gartenschoss + 1 Vollgeschoss (EG von Strasse) + Dachgeschoss (nach Bauordnung von 62 - daher reicht es, dass 1/3 des Geschosses unter 2,50 lichte Höhe haben
Dachform: Satteldach mit 10 Grad Neigung, Photovoltaik
Stilrichtung: Modern
Ausrichtung: Garten nach Westen
Maximale Höhen/Begrenzungen: keine
weitere Vorgaben: keine
Grundstück liegt insgesamt am Hang, so dass auch von weiter oben ein Blick auf Tal / Bäume / Stadt möglich ist
Anforderungen der Bauherren
Stilrichtung, Dachform, Gebäudetyp: einfaches, modernes Einfamilienhaus, was aber nicht nach "Neubauklotz" aussieht
Keller, Geschosse: drei (Garten/KG, EG, OG)
Anzahl der Personen, Alter: 4: 41, 40, 6, 3
Raumbedarf im EG: Offen Wohnen / Essen / Kochen, Abstellkammer, Gaeste-WC
Raumbedarf im OG: Arbeits/Gästezimmer, Gäste-WC, Bad (mit Sauna), Ankleide, Elternschlafzimmer
Raumbedarf im KG: 2 Kinderzimmer, ein Arbeits/Gästezimmer, HAR, Hauswirtschaftsraum, Keller, Kinderbad
Büro: Familiennutzung oder Homeoffice?: Ja, beide von uns arbeiten regelmässig im Homeoffice und telefonieren auch recht viel
Schlafgäste pro Jahr: Eltern/Schwiegereltern ca. 10x pro Jahr 3-4 Tage, andere Gäste (meistens mit Kindern) ca. 10x Jahr 2-3 Tage
offene oder geschlossene Architektur: semi-offen
konservativ oder moderne Bauweise: modern, aber warm
offene Küche, Kochinsel: offene Küche, Kochhalbinsel aus der Wand von der Terrasse kommend
Anzahl Essplätze: Tisch 90 cm x 200 cm, normalerweise 6 Stühle, passen aber auch 10-12
Kamin: ja, in der Mitte vom Wohn/Essbereich
Musik/Stereowand - kein grosser Platzbedarf, einzig ein Plattenspieler irgendwo. Kein Fernseher, aber rausfahrbare Leinwand
Balkon, Dachterrasse: Balkonartige Terrasse im EG (da zum Garten ca. 2.5m abfallen), Aussentreppenaufgang zur Dachterrasse
Garage, Carport: Eine Garage fuer die Fahrräder, ein Stellplatz mit vorne erster Meter von Garage überdacht fuer Elektro-Laden
Nutzgarten, Treibhaus: nein, höchstens Gemüse / Kräuter
weitere Wünsche/Besonderheiten/Tagesablauf, gern auch Begründungen, warum dieses oder das nicht sein soll
Hausentwurf
Von wem stammt die Planung: Architekt, aber von mir abgezeichnet, weil der letzte Plan einige Änderungen bekommen soll, die noch nicht eingearbeitet sind (aber ich gerne Feedback hätte)
Was gefällt besonders? Warum?
- Eingang: Grosszuegig, gleich mit Weitblick durch das Haus
- Wohnzimmer: viel außen nach innen geholt, Terrasse erlaubt viel draußen sein
- Obergeschoss: Wellnessoase mit Dachterrasse (und das man draußen bequem ueberall hoch und runter kann)
Was gefällt nicht? Warum?
- ggf. Langer Flur im Keller?
- ggf. Raumzuschnitt im OG, insbesondere Elternschlafzimmer
- ggf. Stellfläche im Wohnzimmer (k
Preisschätzung lt Architekt/Planer: noch nicht diskutiert
Persönliches Preislimit fürs Haus, inkl Ausstattung: 1-1.2 M EUR
favorisierte Heiztechnik: Wärmepumpe
Wenn Ihr verzichten müsst, auf welche Details/Ausbauten
-könnt Ihr verzichten: Außentreppe?
-könnt Ihr nicht verzichten:
Warum ist der Entwurf so geworden, wie er jetzt ist? Mehrere Runden mit Architekt - Bebauungsplan schränkt stark ein. Wir wollten bei recht kleinem Grundstück möglichst viel vom Garten haben
Entsprechende/Welche Wünsche wurden vom Architekten umgesetzt? Ein Baum (Linde) wird erhalten, Grund vor dem Haus und links vorne wird angechuettet, und dann eine Erdrampe runter in den Garten von der linken Seite aus
Was macht ihn in Euren Augen besonders gut oder schlecht?
Was ist die wichtigste/grundlegende Frage zum Grundriss in 130 Zeichen zusammengefasst? Antwort: Gibt es von Euch Verbesserungsvorschläge? Was gefällt, was sollten wir nochmal ueberdenken? Was kostet viel Geld, was kann gespart werden?
Danke fuer das offene Feedback und entschuldigt die Bilder - kommen so aus meinem lightweight-CAD tool raus...
Vielen Dank fuer Eure Hilfe - ich bin gespannt!
Danke und liebe Grüße,
Tobias
Lageplan
Obergeschoss
EG:
KG:
Ich finde den Entwurf völlig ungelungen. Ich habe bestimmt 10 Minuten gescrollt, geschaut und den Fragekatalog dazu abgeglichen. Aber es bringt nichts. Ich finde den Entwurf gefühlt als den ungelungensten Entwurf in dieser genannten Phase in diesem Jahr. Sorry!
Ein paar Punkte:
- zu kurze Treppe
- Stütze im Wohnbereich ist störend und muss bei einem Neubau nicht sein
- Wohngeschoss zwischen Eltern und Kind verhindert Betreuung.
- lange dunkle Flure, vergeudete Wohnfläche in Flure
- Mini-Maße der planlinken Räume werden schon in Rohbaumaßen nicht funktionieren
- unnütz verwinkelt
Mein Rat: Architekt wechseln! Neuanfang!
Ein paar Punkte:
- zu kurze Treppe
- Stütze im Wohnbereich ist störend und muss bei einem Neubau nicht sein
- Wohngeschoss zwischen Eltern und Kind verhindert Betreuung.
- lange dunkle Flure, vergeudete Wohnfläche in Flure
- Mini-Maße der planlinken Räume werden schon in Rohbaumaßen nicht funktionieren
- unnütz verwinkelt
einbecker schrieb:Ich kann es nicht glauben!
Mehrere Runden mit Architekt
Mein Rat: Architekt wechseln! Neuanfang!
Dein Talent für zeichnerische Darstellungen möchte ich mal wie folgt zusammenfassen:
Lageplan: man sieht viel und erkennt wenig;
Grundrisse: das annähernd perfekte Gegenteil von "selbsterklärend".
Der Effekt ist: ich werde geradezu mustergültig wenig daraus schlau, und kann mir trotz vier Jahrzehnten des Plänelesens Dein Hausprojekt kaum vorstellen.
https://www.instagram.com/11antgmxde/
https://www.linkedin.com/company/bauen-jetzt/
Lageplan: man sieht viel und erkennt wenig;
Grundrisse: das annähernd perfekte Gegenteil von "selbsterklärend".
Der Effekt ist: ich werde geradezu mustergültig wenig daraus schlau, und kann mir trotz vier Jahrzehnten des Plänelesens Dein Hausprojekt kaum vorstellen.
einbecker schrieb:Du hättest besser (mindestens: auch) den Originalplan gezeigt, so kann man dazu kaum Feedback geben. Der "Lageplan" ist ich sachma "nicht stimmig", die Vorgabe der Dachform und -neigung wird vom planrechten Nachbarhaus Lügen gestraft. An eine Architektenplanung glaube ich hier nicht für fünf Pfennig. Mich dünkt, Du hast einen Zahlendreher, und willst uns am 04.10. statt wie üblich am 01.04. veräppeln.
Von wem stammt die Planung: Architekt, aber von mir abgezeichnet, weil der letzte Plan einige Änderungen bekommen soll, die noch nicht eingearbeitet sind (aber ich gerne Feedback hätte)
https://www.instagram.com/11antgmxde/
https://www.linkedin.com/company/bauen-jetzt/
Aus meiner Sicht gibt es hier zwei Möglichkeiten:
Entweder seid Ihr hier mit so vielen vorgegebenen Punkten (und vermutlich einem selbstgezeichneten Plan) zum Architekt gegangen, dass er nur noch abzeichnen könnte, oder der Kollege sollte seinen Titel zurückgeben.
Egal welche von beiden Varianten: Das Ergebnis gehört in die Mülltonne, siehe Kommentare von @ypg .
Zusätzliche Punkte:
Katastrophale Raumnutzung
Räume unpraktisch geschnitten
Riesig lange Laufwege
Treppe komplett ungünstig geplant (und auch nicht funktionierend)
Dusterflur im OG ohne Tageslicht
In Anlehnung an Abba: Ecken, Ecken, Ecken
Verabschiedet Euch von einem raschen Start, schmeißt den Entwurf weg und lasst den Architekt nur anhand Eurer Bedürfnisse planen.
Oder versenkt halt die 1.2 Mio in ein unpraktisches, nerviges Haus...
Entweder seid Ihr hier mit so vielen vorgegebenen Punkten (und vermutlich einem selbstgezeichneten Plan) zum Architekt gegangen, dass er nur noch abzeichnen könnte, oder der Kollege sollte seinen Titel zurückgeben.
Egal welche von beiden Varianten: Das Ergebnis gehört in die Mülltonne, siehe Kommentare von @ypg .
Zusätzliche Punkte:
Katastrophale Raumnutzung
Räume unpraktisch geschnitten
Riesig lange Laufwege
Treppe komplett ungünstig geplant (und auch nicht funktionierend)
Dusterflur im OG ohne Tageslicht
In Anlehnung an Abba: Ecken, Ecken, Ecken
Verabschiedet Euch von einem raschen Start, schmeißt den Entwurf weg und lasst den Architekt nur anhand Eurer Bedürfnisse planen.
Oder versenkt halt die 1.2 Mio in ein unpraktisches, nerviges Haus...
E
einbecker04.10.22 07:57ypg schrieb:
Ich finde den Entwurf völlig ungelungen. Ich habe bestimmt 10 Minuten gescrollt, geschaut und den Fragekatalog dazu abgeglichen. Aber es bringt nichts. Ich finde den Entwurf gefühlt als den ungelungensten Entwurf in dieser genannten Phase in diesem Jahr. Sorry!Danke für das offene und ehrliche Feedback - und ja, auch wenn es nicht dass ist, was man hören möchte - besser jetzt als später ärgern!
ypg schrieb:
Ein paar Punkte:
- zu kurze Treppe
- Stütze im Wohnbereich ist störend und muss bei einem Neubau nicht sein
- Wohngeschoss zwischen Eltern und Kind verhindert Betreuung.
- lange dunkle Flure, vergeudete Wohnfläche in Flure
- Mini-Maße der planlinken Räume werden schon in Rohbaumaßen nicht funktionieren
- unnütz verwinkelt
Ich kann es nicht glauben!
Mein Rat: Architekt wechseln! Neuanfang!Die Treppe liegt an meinem unzureichenden CAD-Programm (und meinem fehlenden Talent) - ist im Original länger. Die Stütze versucht unser Architekt noch wegzubekommen. Die Trennung Kind/Eltern ist am Anfang sicher gewöhnungsbedürftig, bring aber später mehr Freiheit usw. (die Kinder werden bei Einzug 8 / 5 Jahre alt sein und am Anfang kann auch das Arbeitszimmer oben zu einem Zwischenkinderzimmer werden.
Die Flure sind auch einer der größten Bedenken unsererseits. Liegt natürlich auch an den 8m Vorgabe laut Bebauungsplan und dem daraus resultierenden "Schlauch" - aber wahrscheinlich doch mit andereren Treppen mehr mittig angeordnet besser umsetzbar? Habt ihr hierzu Tipps oder Beispiele, die ich mir anschauen kann? Die Kombination Hanglage / breite Vorgabe hab ich bisher wenig gefunden...
Eine Frage zu "planlinke Räume werden schon in Rohbaumaßen nicht funktionieren" - welche Räume sind gemeint?
11ant schrieb:
Dein Talent für zeichnerische Darstellungen möchte ich mal wie folgt zusammenfassen:
Lageplan: man sieht viel und erkennt wenig;
Grundrisse: das annähernd perfekte Gegenteil von "selbsterklärend".
Der Effekt ist: ich werde geradezu mustergültig wenig daraus schlau, und kann mir trotz vier Jahrzehnten des Plänelesens Dein Hausprojekt kaum vorstellen.
Du hättest besser (mindestens: auch) den Originalplan gezeigt, so kann man dazu kaum Feedback geben. Der "Lageplan" ist ich sachma "nicht stimmig", die Vorgabe der Dachform und -neigung wird vom planrechten Nachbarhaus Lügen gestraft. An eine Architektenplanung glaube ich hier nicht für fünf Pfennig. Mich dünkt, Du hast einen Zahlendreher, und willst uns am 04.10. statt wie üblich am 01.04. veräppeln.Nein, veräppeln will ich hier keinen. Originalpläne siehe unten. Bzgl. Dachform-Vorgabe: nur die max. 10 Grad ist vorgegeben, Satteldach bei uns selbst gewählt.
kbt09 schrieb:
Ich kann Yvonne in allen Punkten nur zustimmen. Und .. warum überhaupt das Konzept mit den Kindern im UG?
Künstliche Flurstücke ... und überhaupt, wie soll das Haus im Gelände stehen? Wird da noch weiter ausgekoffert?Konzept mit Kinderzimmern im UG: Weil es vom Platz nicht ins OG geht und weil das UG später mal mehr Privatsphäre für alle beteiligten erlaubt (eigener Eingang, mehr Abstand, ...). Die Kinder haben so erdbodengleichen Zugang zum Garten... Bzgl. Auskoffern - ja. Das EG soll auf 112.50m NN, das UG auf 109.70m NN.
SoL schrieb:
Aus meiner Sicht gibt es hier zwei Möglichkeiten:
Entweder seid Ihr hier mit so vielen vorgegebenen Punkten (und vermutlich einem selbstgezeichneten Plan) zum Architekt gegangen, dass er nur noch abzeichnen könnte, oder der Kollege sollte seinen Titel zurückgeben.
Egal welche von beiden Varianten: Das Ergebnis gehört in die Mülltonne, siehe Kommentare von @ypg .
Zusätzliche Punkte:
Katastrophale Raumnutzung
Räume unpraktisch geschnitten
Riesig lange Laufwege
Treppe komplett ungünstig geplant (und auch nicht funktionierend)
Dusterflur im OG ohne Tageslicht
In Anlehnung an Abba: Ecken, Ecken, Ecken
Verabschiedet Euch von einem raschen Start, schmeißt den Entwurf weg und lasst den Architekt nur anhand Eurer Bedürfnisse planen.
Oder versenkt halt die 1.2 Mio in ein unpraktisches, nerviges Haus...Ein paar Themen haben wir schon mitgebracht, aber wir sind nicht mit fertigem Plan zum Architekten gelaufen. Vielleicht liegt auch einiges an meinen Fähigkeiten (ich weiss schon, warum ich nicht Architekt geworden bin) und dem Programm, was ich genutzt habe...
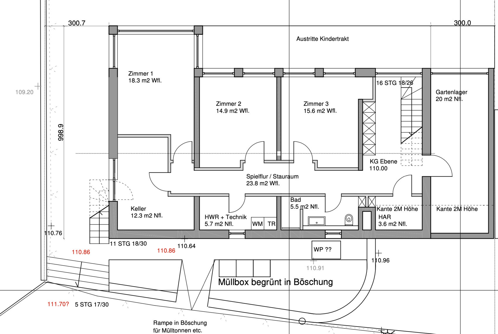
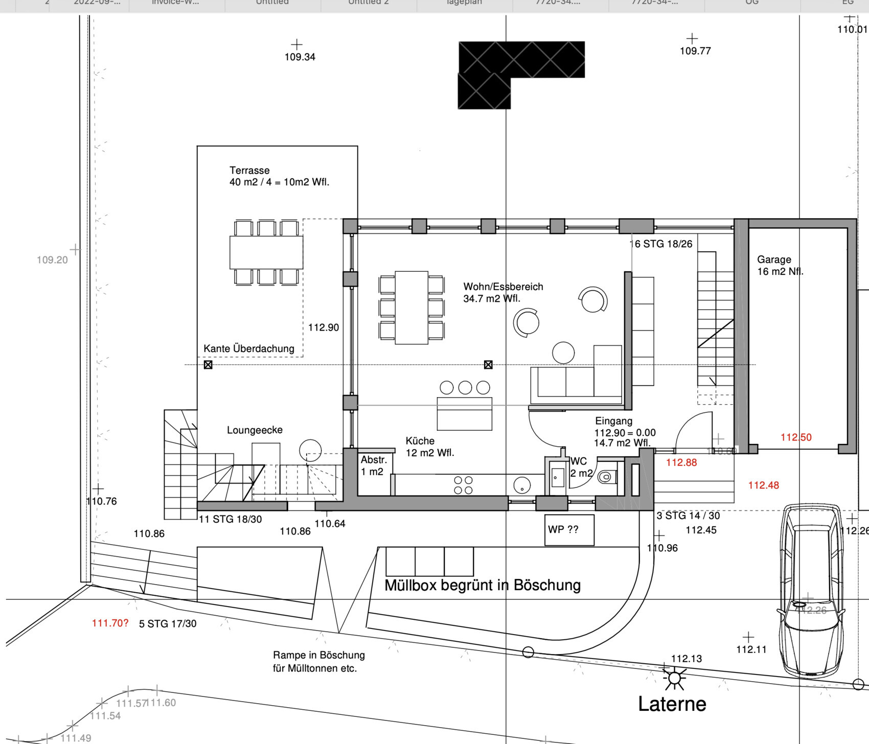
Anbei die letztdiskutierten Architektenentwürfe, die wir aber geändert haben:
- Terrasse schmaler (damit Wohnzimmer größer)
- Außentreppe an die Frontseite (weil so schöne Sitzecke entsteht
- Vorratsraum an Toilette (damit Küche an Terrasse ranrückt)
- OG komplett geändert (Ankleide am Balkon macht fuer uns wenig sinn, da sollte das Bad hin... Sauna nicht im Schlafzimmer, sondern im Bad)
- UG nur anders wegen schmalerer Terrasse
- Gestaltung vor dem Haus und links verändert: Das Haus wird tiefer eingegraben, damit man links vorne ebenerdigen Gartenzugang hat und dann über eine Erdrampe runter in den Garten kann.
Ich hoffe, einige Konzepte werden dank "richtiger" Pläne klarer. Aber: das wird an einigen wichtigen Kritikpunkten, die ihr genannt habt, nicht wirklich etwas ändern. Da müssen wir wohl nochmal ran... Wenn ihr Ideen habt bzgl. Treppenplatzierung (ich denke, die hat die grössten Auswirkungen auf alles, was im OG/UG nicht so passt... aber das EG gefällt uns eigentlich ziemlich gut so...) - dann immer her damit ;-)
Danke nochmals für die konstruktive Kritik!
EG
OG
UG
Ähnliche Themen