ᐅ Grundrissvorschläge - Was geht was fällt durch?
Erstellt am: 11.05.17 20:04
E
Ev-Marie8611.05.17 20:04Hallo ihr alle...
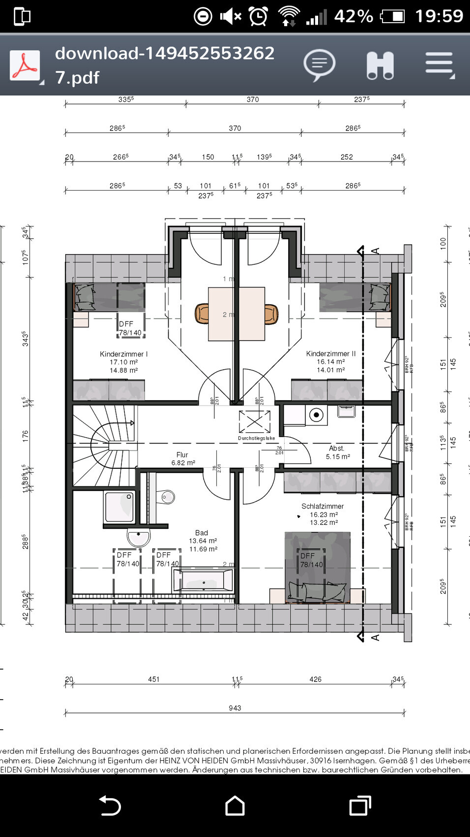
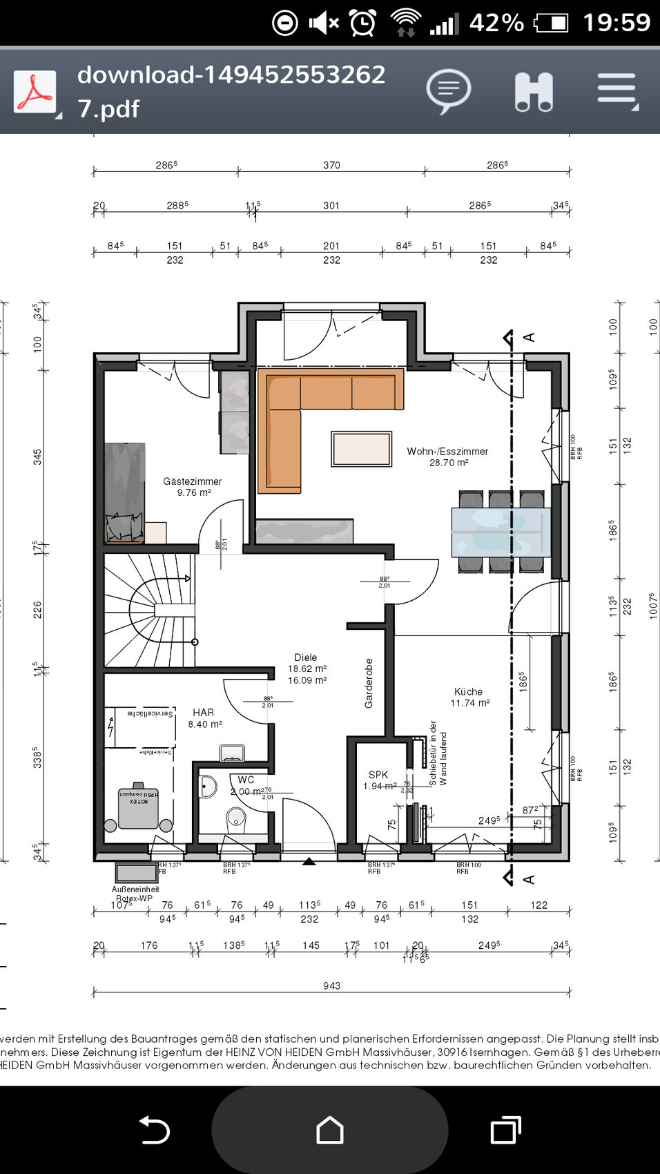
Nachdem der erste Versuch unseres Grundrisses gnadenlos durchgefallen ist, haben wir zusammen mit der Architektin noch zwei weitere Versuche EG und einen Versuch OG "erarbeitet"... ich würde gerne wissen welchen ihr gut und schlecht... bzw was an den Grundrissen allgemein gut oder schlecht ist.. ?! Und die Türe der Speisekammer ist etwas komisch gezeichnet die wird nicht so...
Bebauungsplan/Einschränkungen
Größe des Grundstücks ca 480qm
Hang Nein
Grundflächenzahl nein
Geschossflächenzahl Nein
Baufenster, Baulinie und -grenze 19m
Randbebauung Nein
Anzahl Stellplatz
Geschossigkeit 1,5
Dachform satteldach
Stilrichtung modern
Ausrichtung Terrasse im Westen Erker im Süden
Maximale Höhen/Begrenzungen
weitere Vorgaben
Anforderungen der Bauherren
Stilrichtung, Dachform, Gebäudetyp
Keller, Geschosse kein Keller
Anzahl der Personen, Alter 2
Raumbedarf im EG, OG
Büro: Familiennutzung oder Homeoffice?
Schlafgäste pro Jahr Familie ab und zu
offene oder geschlossene Architektur offen
konservativ oder moderne Bauweise
offene Küche, Kochinsel. offene Küche
Anzahl Essplätze
Kamin nein
Musik/Stereowand nein
Balkon, Dachterrasse
Garage, Carport
Nutzgarten, Treibhaus
weitere Wünsche/Besonderheiten/Tagesablauf, gern auch Begründungen, warum dieses oder das nicht sein soll
Hausentwurf
Von wem stammt die Planung:
-Planer eines Bauunternehmens
-Architekt ja
-Do-it-Yourself
Was gefällt besonders? Warum?
Was gefällt nicht? Warum?
Preisschätzung lt Architekt/Planer:
Persönliches Preislimit fürs Haus, inkl Ausstattung:
favorisierte Heiztechnik:
Wårmepumpe
Wenn Ihr verzichten müsst, auf welche Details/Ausbauten
-könnt Ihr verzicht
-könnt Ihr nicht verzichten:
Offene Küche Gästezimmer Fenster in jedem Raum


Nachdem der erste Versuch unseres Grundrisses gnadenlos durchgefallen ist, haben wir zusammen mit der Architektin noch zwei weitere Versuche EG und einen Versuch OG "erarbeitet"... ich würde gerne wissen welchen ihr gut und schlecht... bzw was an den Grundrissen allgemein gut oder schlecht ist.. ?! Und die Türe der Speisekammer ist etwas komisch gezeichnet die wird nicht so...
Bebauungsplan/Einschränkungen
Größe des Grundstücks ca 480qm
Hang Nein
Grundflächenzahl nein
Geschossflächenzahl Nein
Baufenster, Baulinie und -grenze 19m
Randbebauung Nein
Anzahl Stellplatz
Geschossigkeit 1,5
Dachform satteldach
Stilrichtung modern
Ausrichtung Terrasse im Westen Erker im Süden
Maximale Höhen/Begrenzungen
weitere Vorgaben
Anforderungen der Bauherren
Stilrichtung, Dachform, Gebäudetyp
Keller, Geschosse kein Keller
Anzahl der Personen, Alter 2
Raumbedarf im EG, OG
Büro: Familiennutzung oder Homeoffice?
Schlafgäste pro Jahr Familie ab und zu
offene oder geschlossene Architektur offen
konservativ oder moderne Bauweise
offene Küche, Kochinsel. offene Küche
Anzahl Essplätze
Kamin nein
Musik/Stereowand nein
Balkon, Dachterrasse
Garage, Carport
Nutzgarten, Treibhaus
weitere Wünsche/Besonderheiten/Tagesablauf, gern auch Begründungen, warum dieses oder das nicht sein soll
Hausentwurf
Von wem stammt die Planung:
-Planer eines Bauunternehmens
-Architekt ja
-Do-it-Yourself
Was gefällt besonders? Warum?
Was gefällt nicht? Warum?
Preisschätzung lt Architekt/Planer:
Persönliches Preislimit fürs Haus, inkl Ausstattung:
favorisierte Heiztechnik:
Wårmepumpe
Wenn Ihr verzichten müsst, auf welche Details/Ausbauten
-könnt Ihr verzicht
-könnt Ihr nicht verzichten:
Offene Küche Gästezimmer Fenster in jedem Raum
M
Marvinius11.05.17 20:12Eure Einkäufe haben einen ziemlich weiten Weg in die Küche bzw. Speis.
M
MIA_SAN_MIA__11.05.17 20:31Ihr stellt mit der Couch den Ausgang beim Erker zu. Wieso? Ich würde Küche und Gästezimmer drehen und den Esstisch am Erker platzieren
Das WZ muss man ja nicht so möblieren, nicht wahr. Ansonsten praktikabel. Die Einkaufstasche kriegt man schon bis zur Speisekammer, die Kisten und Kartons reicht man durchs Fenster.
By the way, warum wollen hier eigentlich gefühlte 95% diese offene Küchen? Da käme bei mir ne Wand, wenigstens Dreiviertelwand hin mit ner Ecke für so einen kleinen Frühstückstisch für den Alltagstoast. Karsten
By the way, warum wollen hier eigentlich gefühlte 95% diese offene Küchen? Da käme bei mir ne Wand, wenigstens Dreiviertelwand hin mit ner Ecke für so einen kleinen Frühstückstisch für den Alltagstoast. Karsten
M
Marvinius11.05.17 20:37Mit Lüftungsanlage sollte eine offene Küche doch ok sein, oder?
E
Ev-Marie8611.05.17 21:00Haben Wärmepumpe mit Ruckgewinnung und Lüftung
Ähnliche Themen