Hallo zusammen,
sind aktuell in der Neubauplanung und favorisieren aktuell folgende Grundrisse:
Freue mich über Meinungen und Anregungen
Bebauungsplan/Einschränkungen: keine relevante Einschränkungen für unser Vorhaben
Größe des Grundstücks 638qm
Stadtvilla mit Walmdach: 2 Vollgeschosse und Keller, Terrassenseite mit Erker
Anzahl der Personen: 2 plus zukünftig 1 - 2
Büro im Keller: Homeoffice + gelegentlicher Kundenempfang
Schlafgäste pro Jahr:ca. 5 - 10
offene Architektur
moderne Bauweise
offene Küche
Kamin: gemauerter Kaminofen, Überlegung wassergeführten Kamin einzusetzen
Garage: Doppelgarage mit Dach in Walmoptik direkt am Haus
Eingangsseite = Straßenseite, Eingang mit Vordach in Walmoptik
Massivbauweise ohne Lüftungsanlage
Von wem stammt die Planung:
-Planer eines Bauunternehmens mit unseren Wünschen
Was gefällt besonders? großes Wohn-/Esszimmer und große Schlafräume
Was gefällt nicht? das kleine Büro (/Abstellraum) im EG ohne Fenster,
favorisierte Heiztechnik: Luft-Wasser-Wärmepumpe + Fußbodenheizung + Kamin,
auch Überlegung doch eher eine Gasheizung einzusetzen.
Zusätzlich sind wir auch noch etwas unsicher, ob 36,5cm Ziegel mit (U-Wert 0,23) oder 36,5cm Ziegel mit integrierter Dämmung (U-Wert 0,18) eingesetzt werden sollen - lohnen sich die Mehrkosten?
Lohnt es sich einen wasserführenden Kamin einzusetzen?

sind aktuell in der Neubauplanung und favorisieren aktuell folgende Grundrisse:
Freue mich über Meinungen und Anregungen
Bebauungsplan/Einschränkungen: keine relevante Einschränkungen für unser Vorhaben
Größe des Grundstücks 638qm
Stadtvilla mit Walmdach: 2 Vollgeschosse und Keller, Terrassenseite mit Erker
Anzahl der Personen: 2 plus zukünftig 1 - 2
Büro im Keller: Homeoffice + gelegentlicher Kundenempfang
Schlafgäste pro Jahr:ca. 5 - 10
offene Architektur
moderne Bauweise
offene Küche
Kamin: gemauerter Kaminofen, Überlegung wassergeführten Kamin einzusetzen
Garage: Doppelgarage mit Dach in Walmoptik direkt am Haus
Eingangsseite = Straßenseite, Eingang mit Vordach in Walmoptik
Massivbauweise ohne Lüftungsanlage
Von wem stammt die Planung:
-Planer eines Bauunternehmens mit unseren Wünschen
Was gefällt besonders? großes Wohn-/Esszimmer und große Schlafräume
Was gefällt nicht? das kleine Büro (/Abstellraum) im EG ohne Fenster,
favorisierte Heiztechnik: Luft-Wasser-Wärmepumpe + Fußbodenheizung + Kamin,
auch Überlegung doch eher eine Gasheizung einzusetzen.
Zusätzlich sind wir auch noch etwas unsicher, ob 36,5cm Ziegel mit (U-Wert 0,23) oder 36,5cm Ziegel mit integrierter Dämmung (U-Wert 0,18) eingesetzt werden sollen - lohnen sich die Mehrkosten?
Lohnt es sich einen wasserführenden Kamin einzusetzen?
Für was nutzt ihr den großen Kellerraum.
Zum Büro
Ich habe meine Zweifel ob es trotz Lichthof hell und freundlich wird
Kundenbesuch muss durch den kompletten Flur oben und die Toilette oben nutzen.
Fände es wie beim Rensch-Haus Orando besser gelöst.
Zum Grundriss EG
Treppe direkt neben der Eingangstüre. Hat was von Siedlungshaus und nichts von modernen großzügigem Wohnen
Das Büro ist ein Abfallraum - Abstellfläche gibt es unten im Keller genug. Speisekammer genauso. Ihr lauft
Haustüre
Wohnzimmer
Küche
Speisekammer
Genauso weit wie Keller
Es fehlt eine Garderobe
Küche ist praktischer an der Terrasse
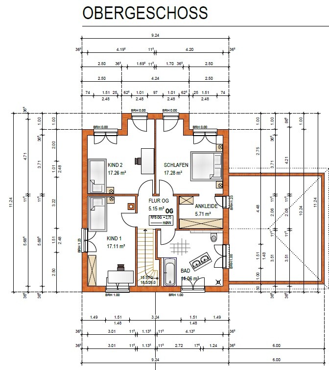
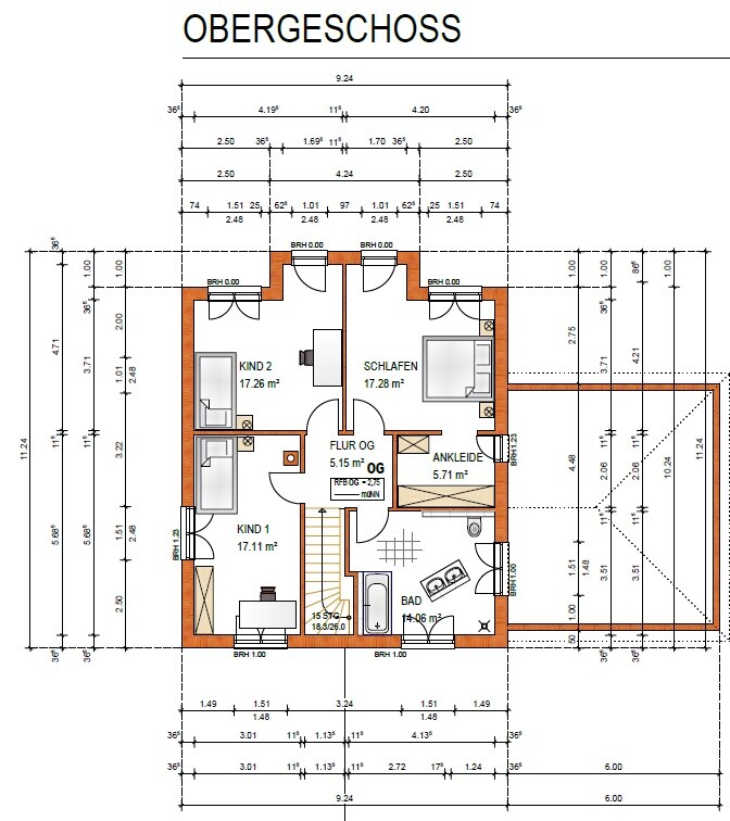
OG das Bad ist interessant
Ankleide/Schlafen besser durch die Ankleide zugängich. So stört man den Partner nicht
Zum Büro
Ich habe meine Zweifel ob es trotz Lichthof hell und freundlich wird
Kundenbesuch muss durch den kompletten Flur oben und die Toilette oben nutzen.
Fände es wie beim Rensch-Haus Orando besser gelöst.
Zum Grundriss EG
Treppe direkt neben der Eingangstüre. Hat was von Siedlungshaus und nichts von modernen großzügigem Wohnen
Das Büro ist ein Abfallraum - Abstellfläche gibt es unten im Keller genug. Speisekammer genauso. Ihr lauft
Haustüre
Wohnzimmer
Küche
Speisekammer
Genauso weit wie Keller
Es fehlt eine Garderobe
Küche ist praktischer an der Terrasse
OG das Bad ist interessant
Ankleide/Schlafen besser durch die Ankleide zugängich. So stört man den Partner nicht
Und warum ist die Garage im Westen und nicht im Osten? Man gewinnt sehr viel Fensterflächen auf der schönen Westseite, wenn man es wechselt.
Bei der Hausgröße ist mehr drin. Das Büro im EG ist noch nicht einmal ein Aufenthaltsraum... habe ich es richtig gelesen, dass der Planer Euren Entwurf abgezeichnet hat?
Das Bad finde ich richtig pfiffig !
Bei der Hausgröße ist mehr drin. Das Büro im EG ist noch nicht einmal ein Aufenthaltsraum... habe ich es richtig gelesen, dass der Planer Euren Entwurf abgezeichnet hat?
Das Bad finde ich richtig pfiffig !
Keller, Garage, zwei Büros, Erker als wertloser Mehrpreisfaktor: da scheinen mir Wünsche vor der Einarbeitung nicht priorisiert worden zu sein. So ordentlich die Zeichnungen aussehen, so mangelt es andererseits am Konzept dahinter. Nee, also für mich reißt ein schräggestellter waschtisch das nicht raus.
https://www.instagram.com/11antgmxde/
https://www.linkedin.com/company/bauen-jetzt/
https://www.instagram.com/11antgmxde/
https://www.linkedin.com/company/bauen-jetzt/
Ähnliche Themen