ᐅ Grundrissplanung und Überdachung Garage
Erstellt am: 24.11.24 07:53
Hallo zusammen,
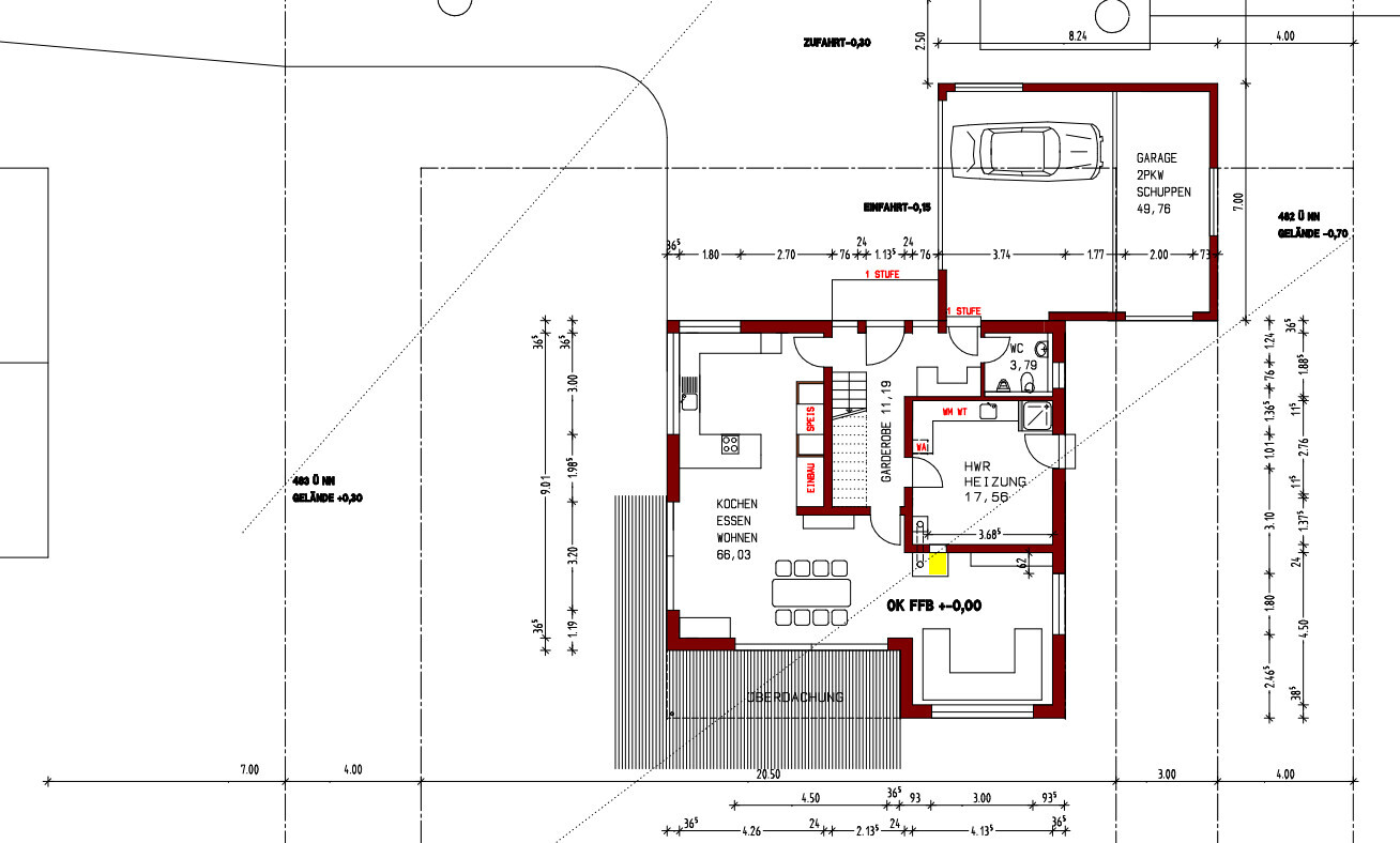
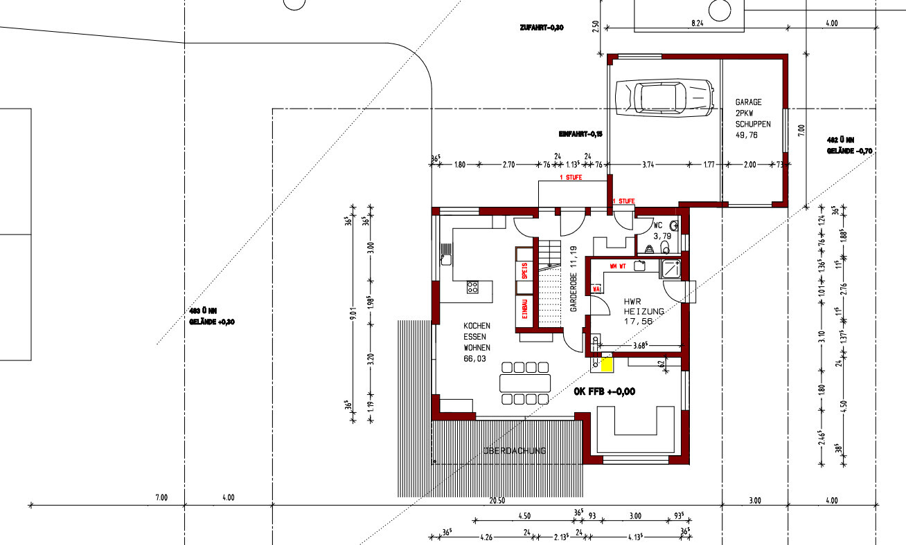
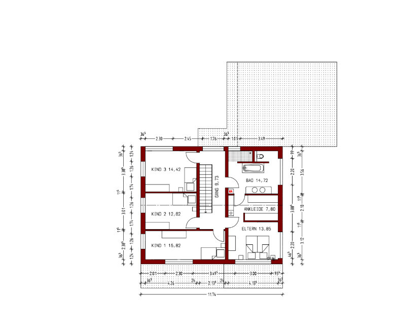
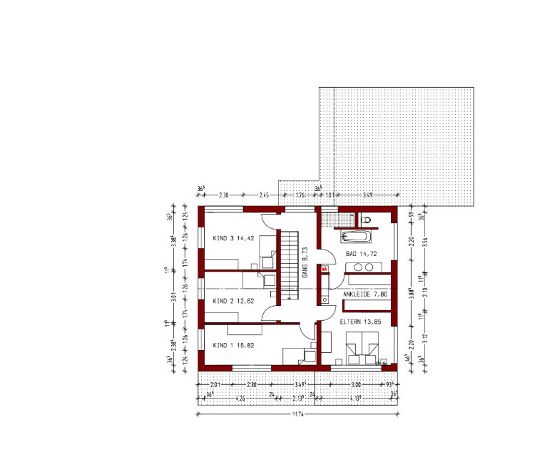
hier habe ich mal unseren Grundriss,
Wünsche unsererseits sind eigentlich nur,
- gerade Treppe
- 3 Kinderzimmer
- ohne Keller
- offener Wohnbereich + Küche
- direkter Zugang vom Schlafzimmer zum Bad
Was haltet ihr von diesem Plan?
Eine zweite Frage wäre noch,
ob es nicht Sinnvoll wäre, oder es Ideen gibt, das Flachdach der Garage als Ausbauoption zu nutzen, und hier vielleicht ein direkten Zugang von OG auf das Flachdach zu machen, um dieses eventuell mal mit Satteldach aufzustocken (Abstand zum Nebengrundstück ist gegeben), wäre das möglich, was denkt ihr was dies zusätzlich kosten würde, um dieses als Hobbyraum und Büro zu nutzen, denn das fehlt mir leider aktuell alles in der Planung?
Danke.


hier habe ich mal unseren Grundriss,
Wünsche unsererseits sind eigentlich nur,
- gerade Treppe
- 3 Kinderzimmer
- ohne Keller
- offener Wohnbereich + Küche
- direkter Zugang vom Schlafzimmer zum Bad
Was haltet ihr von diesem Plan?
Eine zweite Frage wäre noch,
ob es nicht Sinnvoll wäre, oder es Ideen gibt, das Flachdach der Garage als Ausbauoption zu nutzen, und hier vielleicht ein direkten Zugang von OG auf das Flachdach zu machen, um dieses eventuell mal mit Satteldach aufzustocken (Abstand zum Nebengrundstück ist gegeben), wäre das möglich, was denkt ihr was dies zusätzlich kosten würde, um dieses als Hobbyraum und Büro zu nutzen, denn das fehlt mir leider aktuell alles in der Planung?
Danke.
. . Und vermutlich handelt es sich hier um eine Stadtvilla mit Walmdach, dass auch keine Abstellfläche für Koffer und co vorhanden ist?!
bitte den Fragebogen ausfüllen.
https://www.hausbau-forum.de/threads/grundriss-planung-unbedingt-vor-beitrag-erstellung-lesen.11714/
Oben ist Norden?
markus.stetter schrieb:
denn das fehlt mir leider aktuell alles in der Planung ?
markus.stetter schrieb:Dann ist es wohl nicht das richtige Haus, wenn zumindest ein Raum davon gebraucht wird.
Hobbyraum + Büro
bitte den Fragebogen ausfüllen.
https://www.hausbau-forum.de/threads/grundriss-planung-unbedingt-vor-beitrag-erstellung-lesen.11714/
Oben ist Norden?
Bebauungsplan/Einschränkungen
Größe des Grundstücks: 800qm
Geschossflächenzahl: 2
Randbebauung: ja
Dachform: Satteldach
Anforderungen der Bauherren
Einfamilienhaus
Geschosse: 2
Anzahl der Personen, 5 / 3 Kleinkinder
eventuell Homeoffice
offene Küche, Kochinsel
Anzahl Essplätze : 6
Kamin
Garage,
Hausentwurf
-Architekt

Größe des Grundstücks: 800qm
Geschossflächenzahl: 2
Randbebauung: ja
Dachform: Satteldach
Anforderungen der Bauherren
Einfamilienhaus
Geschosse: 2
Anzahl der Personen, 5 / 3 Kleinkinder
eventuell Homeoffice
offene Küche, Kochinsel
Anzahl Essplätze : 6
Kamin
Garage,
Hausentwurf
-Architekt
Ähnliche Themen