Hallo liebe Bau-Community!
Wir sind in der Planung unseres Einfamilienhauses in einem Bebauungsplan-Gebiet und möchten gerne unseren Grundriss eurem kritischen Feedback aussetzen. Danke schon jetzt für eure Zeit und Feedbacks - natürlich gerne einfach gerade raus!
Bebauungsplan/Einschränkungen
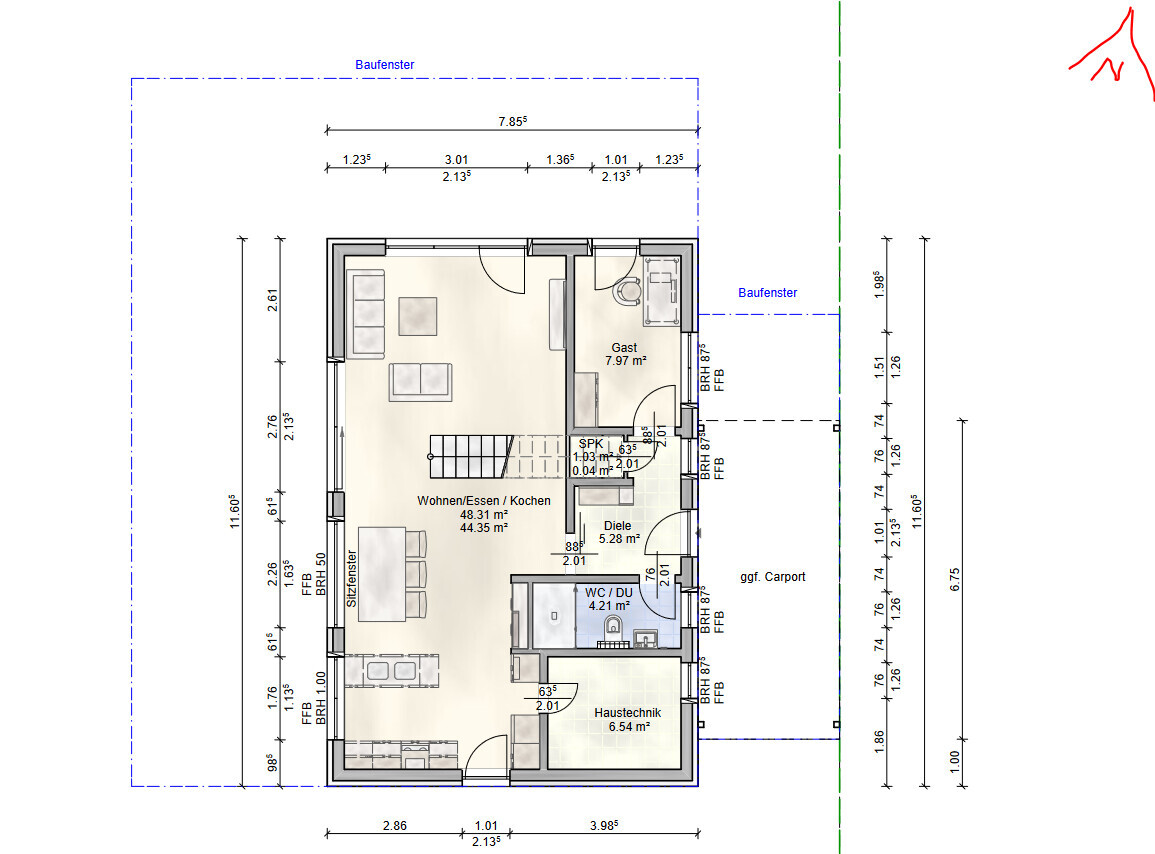
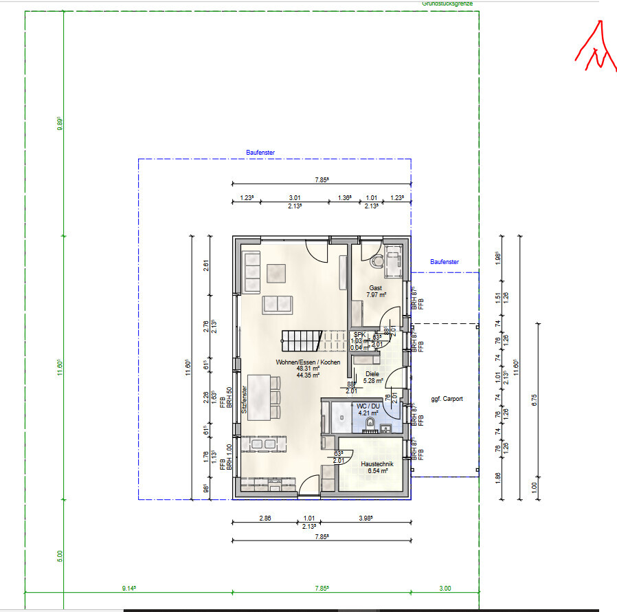
Größe des Grundstücks: 530 qm
Hang: nein
Grundflächenzahl: 0,3
Geschossflächenzahl: 0,6
Baufenster, Baulinie und -grenze
Randbebauung: nein
Anzahl Stellplatz: 1
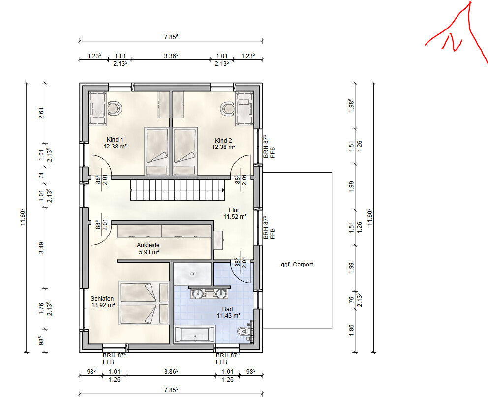
Geschossigkeit: 2
Dachform: Flachdach extensiv begrünt
Stilrichtung: Bauhaus
Ausrichtung: Straße im Süden
Maximale Höhen/Begrenzungen: 7,50 maximale Höhe Attika Flachdach; Ein Überschreiten von Baugrenzen durch untergeordnete Gebäudeteile ist bis zu einer Breite von maximal 5,0 m und einer Tiefe von maximal 1,5 m für Windfänge, Treppenhäuser, Eingangsüberdachungen, Luftwärmepumpen sowie Balkone ausnahmsweise zulässig
weitere Vorgaben:
- Sockelhöhe von maximal 0,50 m zulässig
- Garagen und Carports sind nur innerhalb des Baufensters oder des Fensters für Garagen und Stellplätze zulässig
- Zufahrt von der Straße aus darf max. 4 m breit sein
- extensiv oder intensive Dachbegrünung
- Kamin ist nicht erlaubt
Anforderungen der Bauherren
Stilrichtung, Dachform, Gebäudetyp: Bauhaus, Flachdach, Massivbauweise, Vollgeschosse, gerade Betontreppe
Keller nein, Geschosse 2
Anzahl der Personen, Alter: 3 Personen; 30 Jahre, 30 Jahre, 6 Monate
Raumbedarf im EG: offener Wohn-Essbereich, Arbeitszimmer, Hauswirtschaftsraum, Speise, Dusch-WC
OG: Elternschlafzimmer + Ankleide, 2 Kinderzimmer, Bad mit Wanne und Dusche und 2 Waschbecken
Büro: Familiennutzung oder Homeoffice?: Homeoffice/Gästezimmer
Schlafgäste pro Jahr: 10-20
offene oder geschlossene Architektur: offen
konservativ oder moderne Bauweise: modern
offene Küche, Kochinsel: ja, ggfs Insel oder U-Form
Anzahl Essplätze: 6
Kamin: nein
Musik/Stereowand: nein
Balkon, Dachterrasse: nein
Garage, Carport: vermutlich Carport
Nutzgarten, Treibhaus: vielleicht
weitere Wünsche/Besonderheiten/Tagesablauf, gern auch Begründungen, warum dieses oder das nicht sein soll
Hausentwurf
Von wem stammt die Planung:
-Planer eines Bauunternehmens
-in Anlehnung an einen Grundriss eines Satteldachhauses einer süddeutschen Öko-Holzfertigbaufirma
Was gefällt besonders? Warum? Sitzfenster und die raumteilende Treppe im Wohn-Ess-Bereich, EG offen, OG diskret
Was gefällt nicht? Warum?: Stauraum könnte knapp werden, Hauswirtschaftsraum evtl zu klein
Preisschätzung lt Architekt/Planer: noch nicht bekannt
Persönliches Preislimit fürs Haus, inkl Ausstattung: -
favorisierte Heiztechnik: Luft-Wasser-Wärme-Pumpe
Wenn Ihr verzichten müsst, auf welche Details/Ausbauten
-könnt Ihr verzichten: KFW 55, T-Lösung im Bad, Kücheninsel, bei guten Argumenten: die gerade Treppe evtl drehen wir sie um 180 Grad und begehen von der Diele aus
-könnt Ihr nicht verzichten: unserer Meinung nach spiegelt der Entwurf schon keine übertriebenen Ansprüche wieder
Warum ist der Entwurf so geworden, wie er jetzt ist? ZB
Was macht ihn in Euren Augen besonders gut oder schlecht? Garten ist uns wichtig. Die rechteckige Grundfläche ist unserer Meinung nach besser als eine quadratische Grundfläche geeignet, um das Optimum für das Grundstück herauszuholen (Sonne auf der Westterrasse). Das bodentiefe Fenster an der Südseite in der Küche.
Was ist die wichtigste/grundlegende Frage zum Grundriss in 130 Zeichen zusammengefasst?
EG ist schön offen und gemütlich und holt unseren Garten und Terrasse ins Haus, demgegenüber bietet unser OG genug Privatsphäre sowohl für uns Innen als auch geschützt vor Blicken von Außen. Wir haben lange nach dem optimalen Grundstück für uns gesucht und wollen das Grundstück als den Garten optimal nutzen als Rückzugsort mit später mal Schwimmteich/Pool und ein wenig Nutzgarten.









Wir sind in der Planung unseres Einfamilienhauses in einem Bebauungsplan-Gebiet und möchten gerne unseren Grundriss eurem kritischen Feedback aussetzen. Danke schon jetzt für eure Zeit und Feedbacks - natürlich gerne einfach gerade raus!
Bebauungsplan/Einschränkungen
Größe des Grundstücks: 530 qm
Hang: nein
Grundflächenzahl: 0,3
Geschossflächenzahl: 0,6
Baufenster, Baulinie und -grenze
Randbebauung: nein
Anzahl Stellplatz: 1
Geschossigkeit: 2
Dachform: Flachdach extensiv begrünt
Stilrichtung: Bauhaus
Ausrichtung: Straße im Süden
Maximale Höhen/Begrenzungen: 7,50 maximale Höhe Attika Flachdach; Ein Überschreiten von Baugrenzen durch untergeordnete Gebäudeteile ist bis zu einer Breite von maximal 5,0 m und einer Tiefe von maximal 1,5 m für Windfänge, Treppenhäuser, Eingangsüberdachungen, Luftwärmepumpen sowie Balkone ausnahmsweise zulässig
weitere Vorgaben:
- Sockelhöhe von maximal 0,50 m zulässig
- Garagen und Carports sind nur innerhalb des Baufensters oder des Fensters für Garagen und Stellplätze zulässig
- Zufahrt von der Straße aus darf max. 4 m breit sein
- extensiv oder intensive Dachbegrünung
- Kamin ist nicht erlaubt
Anforderungen der Bauherren
Stilrichtung, Dachform, Gebäudetyp: Bauhaus, Flachdach, Massivbauweise, Vollgeschosse, gerade Betontreppe
Keller nein, Geschosse 2
Anzahl der Personen, Alter: 3 Personen; 30 Jahre, 30 Jahre, 6 Monate
Raumbedarf im EG: offener Wohn-Essbereich, Arbeitszimmer, Hauswirtschaftsraum, Speise, Dusch-WC
OG: Elternschlafzimmer + Ankleide, 2 Kinderzimmer, Bad mit Wanne und Dusche und 2 Waschbecken
Büro: Familiennutzung oder Homeoffice?: Homeoffice/Gästezimmer
Schlafgäste pro Jahr: 10-20
offene oder geschlossene Architektur: offen
konservativ oder moderne Bauweise: modern
offene Küche, Kochinsel: ja, ggfs Insel oder U-Form
Anzahl Essplätze: 6
Kamin: nein
Musik/Stereowand: nein
Balkon, Dachterrasse: nein
Garage, Carport: vermutlich Carport
Nutzgarten, Treibhaus: vielleicht
weitere Wünsche/Besonderheiten/Tagesablauf, gern auch Begründungen, warum dieses oder das nicht sein soll
Hausentwurf
Von wem stammt die Planung:
-Planer eines Bauunternehmens
-in Anlehnung an einen Grundriss eines Satteldachhauses einer süddeutschen Öko-Holzfertigbaufirma
Was gefällt besonders? Warum? Sitzfenster und die raumteilende Treppe im Wohn-Ess-Bereich, EG offen, OG diskret
Was gefällt nicht? Warum?: Stauraum könnte knapp werden, Hauswirtschaftsraum evtl zu klein
Preisschätzung lt Architekt/Planer: noch nicht bekannt
Persönliches Preislimit fürs Haus, inkl Ausstattung: -
favorisierte Heiztechnik: Luft-Wasser-Wärme-Pumpe
Wenn Ihr verzichten müsst, auf welche Details/Ausbauten
-könnt Ihr verzichten: KFW 55, T-Lösung im Bad, Kücheninsel, bei guten Argumenten: die gerade Treppe evtl drehen wir sie um 180 Grad und begehen von der Diele aus
-könnt Ihr nicht verzichten: unserer Meinung nach spiegelt der Entwurf schon keine übertriebenen Ansprüche wieder
Warum ist der Entwurf so geworden, wie er jetzt ist? ZB
Was macht ihn in Euren Augen besonders gut oder schlecht? Garten ist uns wichtig. Die rechteckige Grundfläche ist unserer Meinung nach besser als eine quadratische Grundfläche geeignet, um das Optimum für das Grundstück herauszuholen (Sonne auf der Westterrasse). Das bodentiefe Fenster an der Südseite in der Küche.
Was ist die wichtigste/grundlegende Frage zum Grundriss in 130 Zeichen zusammengefasst?
EG ist schön offen und gemütlich und holt unseren Garten und Terrasse ins Haus, demgegenüber bietet unser OG genug Privatsphäre sowohl für uns Innen als auch geschützt vor Blicken von Außen. Wir haben lange nach dem optimalen Grundstück für uns gesucht und wollen das Grundstück als den Garten optimal nutzen als Rückzugsort mit später mal Schwimmteich/Pool und ein wenig Nutzgarten.
Man kann es mit dem Schuhkarton-Design auch übertreiben. Die Treppe liegt quer, die wird man vor der Geburt noch drehen müssen. So sperrt sie den ganzen Grundriss. Der Kessel geht nicht durch die Tür ;-)
https://www.instagram.com/11antgmxde/
https://www.linkedin.com/company/bauen-jetzt/
https://www.instagram.com/11antgmxde/
https://www.linkedin.com/company/bauen-jetzt/
S
saralina8716.12.21 07:07Wir haben eine ganz ähnliche Hausgröße, aber irgendwie kommt es mir bei euch sehr beengt vor... Vermutlich liegt das zu einem großen Teil tatsächlich an der Treppe.
Die würde ich aber nicht nur aus diesem Grund überdenken. Seid ihr euch sicher, dass ihr wollt dass zukünftiger Besuch eurer Kinder jedes Mal durch euren Wohnbereich latscht? Ich persönlich mag Abends meine Ruhe, im Schlafi auf dem Sofa, diese Treppe würde mich wahnsinnig machen.
Die Sitzfenster-Idee finde ich schön, würde das im Nachhinein vielleicht sogar auch so machen, allerdings kommt es mir doch sehr gedrängt vor bei euch.
Der Flur oben ist viel zu groß im Vergleich, was eben auch wieder an der Treppe liegt.
Leider wird auch eure Garderobe so nicht funktionieren, die ist viel zu klein.
Die würde ich aber nicht nur aus diesem Grund überdenken. Seid ihr euch sicher, dass ihr wollt dass zukünftiger Besuch eurer Kinder jedes Mal durch euren Wohnbereich latscht? Ich persönlich mag Abends meine Ruhe, im Schlafi auf dem Sofa, diese Treppe würde mich wahnsinnig machen.
Die Sitzfenster-Idee finde ich schön, würde das im Nachhinein vielleicht sogar auch so machen, allerdings kommt es mir doch sehr gedrängt vor bei euch.
Der Flur oben ist viel zu groß im Vergleich, was eben auch wieder an der Treppe liegt.
Leider wird auch eure Garderobe so nicht funktionieren, die ist viel zu klein.
Ähnliche Themen