Grundrissplanung Neubau Einfamilienhaus mit Doppelgarage (Stadtvilla)

4,00 Stern(e) 24 Votes
Zuletzt aktualisiert 23.11.2025
Sie befinden sich auf der Seite 8 der Diskussion zum Thema: Grundrissplanung Neubau Einfamilienhaus mit Doppelgarage (Stadtvilla)
>> Zum 1. Beitrag <<

H

haydee

Ne ich liebe bunte, etwas wilde Gärten auch in der Höhe und ich liebe Symmetrie und 90 Grad Winkel. Ein symmetrisch gegliederte Bauerngarten ist schön, ein symmetrischer Lustgarten wirkt tot.
 
M

maxl229

Nach dem ich die letzten Tage im Urlaub verweilt habe, habe ich mir die Vorschläge sorgfältig durchgelesen und einige Ideen gesammelt.
Da ich nicht mit künstlerischen Talenten gesegnet bin, benötigt es etwas Vorstellungskraft, um die aktuellen Ideen nachzuvollziehen:

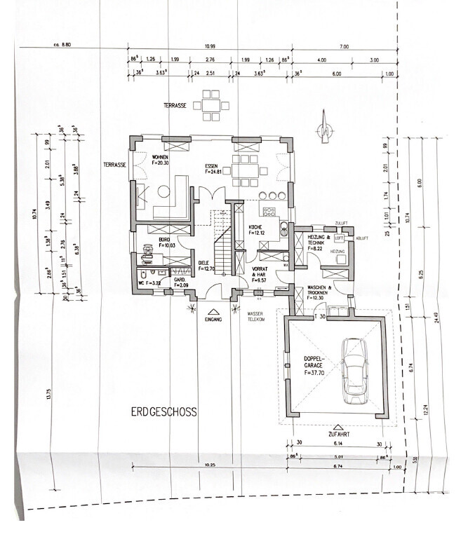
Grundriss Erdgeschoss: Wohnen, Essen, Küche, Diele, Bad, Garderobe, Waschen, Doppelgarage, Terrasse.


- Vorrat & HAR soll mit Waschen+Trocknen getauscht werden und es soll ein Waschbecken integriert werden; Tür zu ehem. Küche soll entfernt werden
- Küche in Nord/Ostecke
- Wohn-/Esszimmer geht zukünftig bis Büro
- Büro kommt an die Stelle der Küche
- Diele um 1m verkürzen, um zusätzlichen Wohnfläche in Wohn-/Esszimmer zu gewinnen
- Tür von Vorratsraum nach außen soll entfernt werden und hierfür eine Tür aus der Garage nach außen installiert werden; ggf. kann dann auch der Heizung+Technikraum etwas nach unten geschoben werden bzw. über Eck integriert werden, um den Flachdachanteil zu reduzieren

Ob sich die Ideen so umsetzen lassen weiß ich jedoch nicht.

- Hierfür wäre es erforderlich die aktuell eingezeichnete Wand zwischen Büro und Wohnzimmer zu entfernen, um die offene Raumgestaltung zu erhalten. Die Wand könnte jedoch gespiegelt werden, um dann Küche und Büro zu trennen.
- Die Treppe müsste so hoch sein, dass eine Tür in den zukünftigen Büroraum passt
- Wände in der Diele müssten verkürzt werden und Flügeltür 1m zurückgezogen werden

Oder seht ihr andere Lösungen?

In diesem Zusammenhang müssten natürlich auch die jeweiligen Fenster versetzt werden, aber das ist dann Aufgabe der Architektin.


OG sehen wir aktuell wenig Veränderungsbedarf, sofern durch die Umgestaltung im EG nicht Zwangsanpassungen notwendig sind.



Grundriss des Obergeschosses: Flur, Schlafzimmer, Ankleide, Bad, zwei Kinderzimmer, Treppenhaus.
 
Zuletzt bearbeitet:
Y

ypg

Vorrat & HAR soll mit Waschen+Trocknen getauscht werden und es soll ein Waschbecken integriert werden;
Es ist egal, wie Du die Räume nennst: sie liegen zur Zeit alle in der thermischen Hülle und verbrauchen (derzeit) 6 Türen, wovon 3 unnötig sind und eher einen Raum zum Flur degradieren (jetziger Waschraum)
Tür von Vorratsraum nach außen soll entfernt werden und hierfür eine Tür aus der Garage nach außen installiert werden; ggf. kann dann auch der Heizung+Technikraum etwas nach unten geschoben werden bzw. über Eck integriert werden, um den Flachdachanteil zu reduzieren
?
Die Treppe müsste so hoch sein, dass eine Tür in den zukünftigen Büroraum passt
Das sehe ich nicht, zumal Du den Flur einkürzen willst. Ggf sollte die Treppe auf die andere Seite, dann hast Du Platz ohne Ende, eine Tür zu setzen. Allerdings wird sich das OG ändern.
OG sehen wir aktuell wenig Veränderungsbedarf,
S.o.
 
M

maxl229

Es ist egal, wie Du die Räume nennst: sie liegen zur Zeit alle in der thermischen Hülle und verbrauchen (derzeit) 6 Türen, wovon 3 unnötig sind und eher einen Raum zum Flur degradieren (jetziger Waschraum)
Wie kommst du auf 6 Türen?
Wenn der Waschraum in den derzeitigen Vorratsraum kommt, gibt es noch 1 Tür von Diele in Waschraum und 1 Tür in das Nebengebäude. Zusätzlich noch 1 Tür von Garage in den Vorrats- und 1 Tür in den Heizungsraum.
Also in Summe 4 Türen.

Das sehe ich nicht, zumal Du den Flur einkürzen willst. Ggf sollte die Treppe auf die andere Seite, dann hast Du Platz ohne Ende, eine Tür zu setzen. Allerdings wird sich das OG ändern.
Wäre eine Überlegung wert. Müsste ich dann auf dem Papier sehen, wie sich das OG anordnen würde.
 
Zuletzt bearbeitet:
Zuletzt aktualisiert 23.11.2025
Im Forum Grundrissplanung / Grundstücksplanung gibt es 2535 Themen mit insgesamt 87992 Beiträgen


Ähnliche Themen zu Grundrissplanung Neubau Einfamilienhaus mit Doppelgarage (Stadtvilla)
Nr.ErgebnisBeiträge
1 2 Vollgeschosse, Durchgang Garage, Hauswirtschaftsraum unter Treppe 25
2Haus ohne Garage und Keller? Ausbau Dachboden? Fresswarze? - Seite 585
3Grundrissplanungen Einfamilienhaus und Garage - Seite 332
4Grundrissplanung Einfamilienhaus (190 qm) mit Garage 18
5Grundriss - was sagt Ihr? - Seite 325
6Wohin mit der Treppe? Dachausbau Walmdachbungalow - Seite 219
7Einfamilienhaus mit Einliegerwohnung & Garage 14
8Stadtvilla mit gerader Treppe, offene moderne Bauweise, 140m² 18
9Grundriss Einfamilienhaus / Garage im EG? 10
10Grundriss Einfamilienhaus 240 m² mit teilüberbauter Garage - Seite 296
11Grundriss Einfamilienhaus 136m² mit Garage & Keller 17
12Grundriss Einfamilienhaus (ca. 170 qm) mit Garage - Hanglage - Seite 335
13Beleuchtung in Diele und Küche: Deckeneinbau-Strahler benötigt? 19
14Decken-Spots Diele oder Küche und Bad 10
15Fliesen oder Vinyl in Küche und Flur 19
16Treppe im Flur, Grundriss steht eigentlich schon :o( - Seite 320
17Fenster / Türen / Garderobe 13
18Stumpfeinschlagende Türen - Anschlag links oder rechts!? 32
19Treppe im Wohnzimmer als Hype - Pro & Contra? - Seite 426
20Korrekte Ausführung thermische Trennung Haus/Garage - Seite 216

Oben