Grundrissplanung kurz vor Bauantragstellung

4,50 Stern(e) 17 Votes
Zuletzt aktualisiert 11.12.2025
Sie befinden sich auf der Seite 24 der Diskussion zum Thema: Grundrissplanung kurz vor Bauantragstellung
>> Zum 1. Beitrag <<

R

R.Hotzenplotz

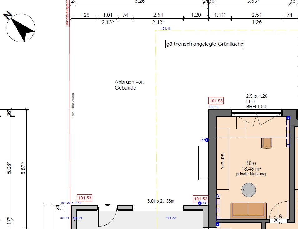
Anbei noch mal kurz ein Ausschnitt des Büros samt Nordpfeil.

Die Brüstungshöhe stimmt nicht mehr, wurde leider noch nicht geändert; sind jetzt 90cm.

Ich hatte mir überlegt, den Schreibtisch eher nach rechts zu drehen so dass er oben in der Ecke mit Blickrichtung planrechts steht. So hat man noch Licht von draußen aber kann auch mit leichtem Rechtsblick den Raum oder Leute an der Tür im Auge behalten anstatt sich immer umdrehen zu müssen. Finde den Gedanken mit Blick zum Fenster und dem Rücken zum gesamten Raum zu sitzen irgendwie nicht so gut. Wie seht ihr das?

Was wir mit dem derzeit dort eingezeichneten Versorgungsschacht machen, müssen wir sehen....
 
M

matte

Da es mir iwie keine älteren Anhänge mehr anzeigt:

Was habt ihr für eine fertige Raumhöhe?

Ich frage wegen der Fenstergröße.
Du schreibst, dass die Brüstungshöhe nicht mehr stimmt, es mittlerweile 90cm wären.
Ich nehme mal an, DU meinst damit von Fertigfußboden gemessen.
In unseren Plänen wurde die Brüstungshöhe aber in Relation zum Rohboden angegeben, da das Maß ja für den Rohbauer wichtig ist und den das erst mal nicht interessiert, wie hoch der Bodenaufbau ist. Mir ist dabei klar, dass es sich bei deinen Plänen noch um Entwürfe und nicht um Ausführungspläne handelt, trotzdem ein gefährliches Spiel.

Außerdem meine ich mal gelesen zu haben, dass ihr höhere Raumhöhen als 2,50m plant, was ja bei einem Haus dieser Größe auch Sinn ergibt. Da ich nicht weiß, wie hoch, gehe ich jetzt mal von 2,75 aus.
ABER:
Seid ihr euch dessen bewusst, dass ihr zwar die Raumhöhe erhöht habt, die Fenster und Türen aber nicht?!?

Ihr habt laut deinem Büro-Bild überm Fenster nen Sturz von ~49cm(!!!) Höhe. 2,75m - 1,00m Brüstung - 1,26m Fensterhöhe = 0,49m.
Das sieht zum Schluss aus, als hättet ihr die Fenster zu tief gesetzt. Bei den Innentüren das Gleiche Spiel.

Mal abgesehen davon, dass mir selbst die obligatorischen 30cm Stürze nicht gefallen wollen, wäre das für mich ein echtes NoGo...
 
Zuletzt aktualisiert 11.12.2025
Im Forum Grundrissplanung / Grundstücksplanung gibt es 2550 Themen mit insgesamt 88436 Beiträgen


Ähnliche Themen zu Grundrissplanung kurz vor Bauantragstellung
Nr.ErgebnisBeiträge
1Brüstungshöhe Fenster, Balkon & Geländer – Was beachten? 15
2Badewanne vor Fenster - Brüstungshöhe? 14
3Problem Berechnung Brüstungshöhe bei ins Fenster laufender Arbeitsplatte - Seite 324
4Neubau Fenster Brüstungshöhe für Gäste-WC 30
5Fenster Brüstungshöhe 130 im Schlafzimmer / Arbeitszimmer? 93
6Fenster Brüstungshöhe 25 oder 50 - Höhe Absturzsicherung - Seite 228
7Meinungen zu Brüstungshöhe Fenster gesucht 30
8Lichte Raumhöhe planen - Erfahrungen? - Seite 294
9Gutachter Mängelfeststellung, Feststellung Einbau Fenster 10
10Fenster Anordnung 10
11Fehlende Brüstungshöhe mit Styrodurplatten ausgleichen - Seite 218
12Lichte Raumhöhe und Fensterhöhe. Standard des Anbieters 262.50cm - Seite 326
13Fenster & Fenstergröße was wählen? Zweiflügelige Fenster? - Seite 346
14Bodentiefe Fenster - Warum bodentiefe Fenster? Vor- Nachteile? - Seite 8112
15Passen hohe Türen zu einer „normalen“ Raumhöhe? - Seite 220
16Bungalow 135qm: Grundriss + Fenster - Seite 9104
17Grenzbebauung Garage, Fenster möglich 19
18Fenster sind kleiner als im Bauantrag/Werkplan - Seite 540
19Mehrkosten / Aufpreis Höhere Fenster 48
20Bodentiefe Fenster im OG ohne Brüstung - Seite 565

Oben