ᐅ Grundrissplanung freistehendes Einfamilienhaus 9x16 m - erbitte Vorschläge
Erstellt am: 03.01.20 10:32
K
Klaus23Bebauungsplan/Einschränkungen
Größe des Grundstücks = 1700 m² (15m Breite - Straßenfront)
Geschossigkeit = 2
Vollunterkellerung
Dachform = Flachdach
Anforderungen der Bauherren
2 Kinderzimmer
1 Büro / Gäste Zimmer
1 Ankleide
1 Schlafzimmer
Kinder Bad
Eltern Bad
Gäste-WC inkl. Bad
Offene Wohn Küche inkl. separater Abstellraum
1 Hauswirtschaftsraum im Keller
Doppelgarage (3x 11 m)
offener Bereich im Eingangsbereich
Heizung mittels Photovoltaik, Fußbodenheizung und Wärmepumpe
Hausentwurf
Eigen
Warum ist der Entwurf so geworden, wie er jetzt ist? ZB
Wir möchten tendenziell ein großes Haus (großer Wohnbereich mit Sicht auf den Garten - Pool vorgesehen)
Gäste Zimmer / Büro muss nicht sehr groß werden, aber sollte im Erdgeschoss sein.
Keller ggf. ohne Fußbodenheizung, sondern elektrische Heizkörper. Keller soll als Abstellfläche, Party Raum und Fitnessraum genutzt werden, daher keine dauerhafte Heizung notwendig
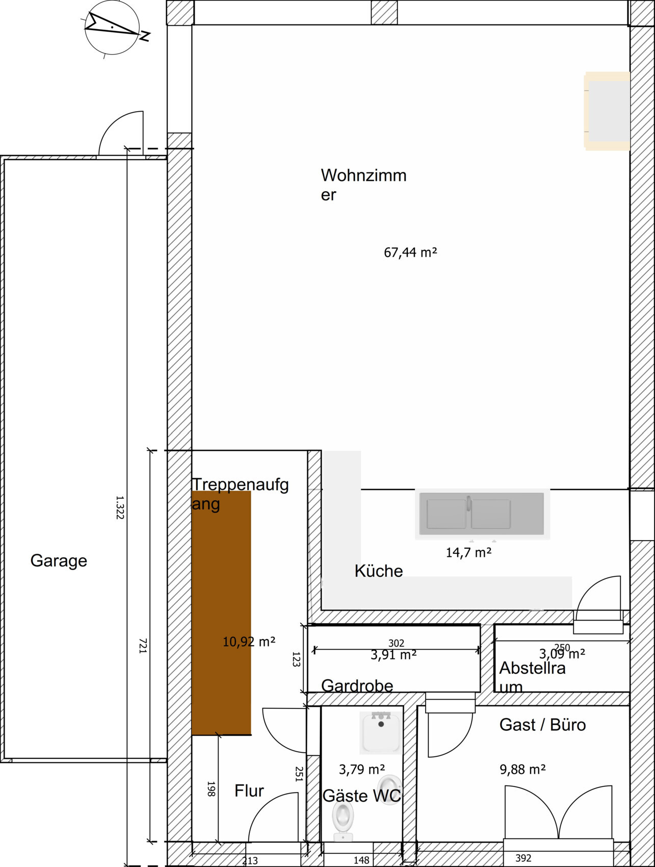
Was nicht gefällt ist der lange Flur und die verwinkelten Eintritte zum Kinderzimmer im 1 Stock
Was ist die wichtigste/grundlegende Frage zum Grundriss?
Elegantere Lösungen mit weniger Flurverlust?
Wohnzimmer irgendwie noch vergrößern?
Wo kann der Kamin stehen?


Größe des Grundstücks = 1700 m² (15m Breite - Straßenfront)
Geschossigkeit = 2
Vollunterkellerung
Dachform = Flachdach
Anforderungen der Bauherren
2 Kinderzimmer
1 Büro / Gäste Zimmer
1 Ankleide
1 Schlafzimmer
Kinder Bad
Eltern Bad
Gäste-WC inkl. Bad
Offene Wohn Küche inkl. separater Abstellraum
1 Hauswirtschaftsraum im Keller
Doppelgarage (3x 11 m)
offener Bereich im Eingangsbereich
Heizung mittels Photovoltaik, Fußbodenheizung und Wärmepumpe
Hausentwurf
Eigen
Warum ist der Entwurf so geworden, wie er jetzt ist? ZB
Wir möchten tendenziell ein großes Haus (großer Wohnbereich mit Sicht auf den Garten - Pool vorgesehen)
Gäste Zimmer / Büro muss nicht sehr groß werden, aber sollte im Erdgeschoss sein.
Keller ggf. ohne Fußbodenheizung, sondern elektrische Heizkörper. Keller soll als Abstellfläche, Party Raum und Fitnessraum genutzt werden, daher keine dauerhafte Heizung notwendig
Was nicht gefällt ist der lange Flur und die verwinkelten Eintritte zum Kinderzimmer im 1 Stock
Was ist die wichtigste/grundlegende Frage zum Grundriss?
Elegantere Lösungen mit weniger Flurverlust?
Wohnzimmer irgendwie noch vergrößern?
Wo kann der Kamin stehen?
Wo ist der Plan vom Grundstück? Maße von den Grundrissen sind auch nur zu erahnen.
Bei 15 m Straßenfront und 1700 qm müßte das Grundstück ja rund 113 m lang sein. Wg. .. Garage ... https://www.hausbau-forum.de/threads/10-5-m-lange-Garage-als-Grenzbebauung.33232/ 11 m Länge?
wäre ja z. B. auch vorstellbar, die Garagen nebeneinander vorne zu machen, dann eine Art "Innenhof" und dann erst das Haus. D. h. zum Grundstückslageplan gehört auch die Kennzeichnung des möglichen Baufensters.
Zum Grundriss .. Garderobe mit 123 cm Rohbautiefe .. wer soll denn da ordentlichen Stauraum haben und sich auch noch gescheit bewegen können?
OG .. Schlafen, Ankleiden, Waschen ... für alles muss man immer rund ums Bett laufen, stört den Schlafenen. Ankleide und Fenster .. da passt kein schrank.
EG ... mehr oder weniger quadratische Ess/Wohnräume lassen sich in aller Regel sehr schwer möblieren ... also, mal geplante möbel einzeichnen.
Bei 15 m Straßenfront und 1700 qm müßte das Grundstück ja rund 113 m lang sein. Wg. .. Garage ... https://www.hausbau-forum.de/threads/10-5-m-lange-Garage-als-Grenzbebauung.33232/ 11 m Länge?
wäre ja z. B. auch vorstellbar, die Garagen nebeneinander vorne zu machen, dann eine Art "Innenhof" und dann erst das Haus. D. h. zum Grundstückslageplan gehört auch die Kennzeichnung des möglichen Baufensters.
Zum Grundriss .. Garderobe mit 123 cm Rohbautiefe .. wer soll denn da ordentlichen Stauraum haben und sich auch noch gescheit bewegen können?
OG .. Schlafen, Ankleiden, Waschen ... für alles muss man immer rund ums Bett laufen, stört den Schlafenen. Ankleide und Fenster .. da passt kein schrank.
EG ... mehr oder weniger quadratische Ess/Wohnräume lassen sich in aller Regel sehr schwer möblieren ... also, mal geplante möbel einzeichnen.
Flurbreite bei 1 m (wie in einem winzigen Reihenhaus) und dann ein Allraum mit über 80 m2, der bei der Möblierung riesige unbenutzte Flächen hinterlässt...ich weiss nicht. Das Problem bei euch ist die Treppe, an dieseer hängt alles.hast du schon mal eine U-Form mit Podest mittig probiert?
Was gar nicht gehen dürfte ist eine Grenzbebauung der Garage mit 11 m- bei 9 m ist eigentlich immer Schluss- oder was sagt der BPL?
Was gar nicht gehen dürfte ist eine Grenzbebauung der Garage mit 11 m- bei 9 m ist eigentlich immer Schluss- oder was sagt der BPL?
Das sieht aus wie das ERH meiner damaligen Großeltern aus den 50er Nachkriegsjahren, nachdem es 3 mal für mehrere Generationen umgebaut wurde Nein, wirklich! Nur das Grössenwunder WZ müsste noch einmal unterteilt werden...
-> Enge Flure und gefangene Räume sowie Ecken, die keiner braucht.
-> Enge Flure und gefangene Räume sowie Ecken, die keiner braucht.
Eventuell hilfreich: Wir haben die gleiche Grundstücksbreite und die gleiche Hausgrundfläche: https://www.hausbau-forum.de/threads/grundrissplanung-für-unser-Einfamilienhaus-efh-in-sh.28569/
Ähnliche Themen