Guten Tag zusammen,
nachdem wir unser Grundstück reserviert bekommen haben, haben wir mit einigen Bauunternehmen gesprochen. Einige bieten nur das Volumen an und möchten einen Grundriss erst nach Vertragsunterzeichnung zeichnen. Das hat für uns ein bisschen was von "die Katze im Sack kaufen".
Ein Bauunternehmen geht die Sache anders an und hat uns nach einem mehrstündigen Gespräch ein Konzept vorgestellt, welches wir hier gerne mit Euch diskutieren möchten.
Hier nun erst einmal der Fragebogen:
Bebauungsplan/Einschränkungen
Grundstück: F 1.6
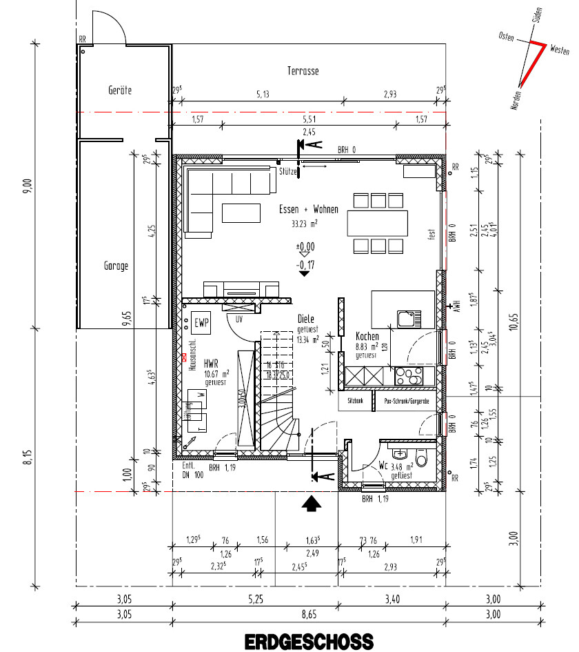
Grundstücksgröße: 394 m² (14,7 x 26,8 Meter), kein Hang
Baufenster: 8,7 x 12,0 Meter (11,7 x 12,0 Meter abzgl.. 3 Meter Grenzabstand in Richtung Osten)
Ausrichtung: Süd-Ost bis Süd
Grundflächenzahl / Geschossflächenzahl: 0,4 / 0,8
Anzahl Stellplätze: 2
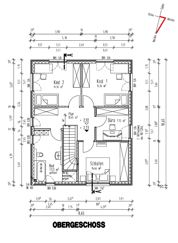
Geschossigkeit: 2 Vollgeschosse (zusätzliches Staffelgeschoss ist zulässig)
Dachform: Flachdach
Energiestandard: mind. KFW 55
Energieträger: Photovoltaikanlage und Luft-Wasser-Wärmepumpe oder Sole-Wasser-Wärmepumpe
Anforderungen der Bauherren
Die Stilrichtung, Dachform bzw. Gebäudetyp sind quasi durch den Bebauungsplan vorgegeben und für uns so in Ordnung (sonst hätten wir uns nicht auf das Grundstück beworben).
Wir (2 Erwachsene, 2 Grundschulkinder) planen ohne Keller, mit 2 Vollgeschosse und mit einer 9 Meter Garage zu bauen. Als Energieträger planen wir mit einer Sole-Wasser-Wärmepumpe.
Wir benötigen 1 Schlafzimmer, 2 Kinderzimmer, 1 Büro (für Homeoffice), Küche, Wohn- und Esszimmer, Gäste-WC (ohne Dusche), Bad (mit Dusche und Badewanne), Garderobe als Einbauschrank und natürlich einen Hauswirtschaftsraum. Zusätzlich benötigen Abstellflächen. Schlafgäste haben und erwarten wir keine.
Wir planen (eher moderne Bauweise) mit einer offenen Küche (mit einer Halbinsel) und einem Wohn- und Essbereich (6 Essplätze, ohne Kamin) in L-Form.
Da wir als Eingangsüberdachung kein „normales“ Vordach haben möchten, wünschen wir uns eine „moderne“ Lösung.
Hausentwurf
Der Entwurf stammt von einem mittelständischen Bauunternehmen (GU) aus der Region, welcher eigene Projektzeichner und einen Architekten hat.
Besonders gut gefällt uns, dass all unsere Anforderungen bereits mit dem 1. Entwurf vollständig umgesetzt wurden. Selbst Gimmicks wie eine Sitzbank und ein innenliegender Lichtausschnitt, welche wir nur nebenbei erwähnt haben, wurden berücksichtigt. Auch die Eingangsüberdachung wurde aus unserer Sicht gut umgesetzt, auch wenn es ein paar m² Wohnfläche kostet.
Insbesondere die Abstellflächen (und die Garderobe) wurden aus unserer Sicht sehr gut umgesetzt. Im 1. Entwurf war das Bad mal 2,5 m² kleiner und davor ein Abstellraum. Statt des fest verbauten Abstellraums gibt es nun im Flur entsprechend Platz, um dort optional einen (Einbau)-schrank hinzustellen bzw. wenn die Kinder nicht mehr zu Hause wohnen wieder zurückzubauen. Durch diese Umplanung wurde es möglich noch ein weiteres Fenster im Bad einzuplanen. Ob man dieses nun wirklich braucht, ist noch ein offener Punkt.
Auch die Küche und der Wohn- und Essbereich sind trotz 42 m² aus unserer Sicht sehr effektiv umgesetzt worden
Das WC ist vielleicht ein bisschen überdimensioniert, aber es gibt Schlimmeres .
Das Fenster im Büro wäre vielleicht in der Mitte des Raums schöner. Durch das darunter liegende Fenster in der Küche gestaltet sich die Umsetzung jedoch etwas schwieriger.
Das Fenster im Schlafzimmer hinter/über dem Bett ist vielleicht auch nicht perfekt. Hier sind wir schon ein paar Varianten und kommen zum Ergebnis, dass es so die beste Lösung ist.
Das Haus hat mit 16 Fenster gefühlt recht viele Fenster. Wir wüssten aber auch nicht, auf welches wir verzichten wollen, außer vielleicht das zweite Fenster im Bad. Bei dem großen Fenster im Essbereich fragen wir uns auch noch, ob es wirklich so groß sein muss.
Was ist die wichtigste/grundlegende Frage zum Grundriss in 130 Zeichen zusammengefasst?
Gibt es Anregungen, was wir im Grundriss noch anders lösen könnten?
Vielleicht habt ihr noch die ein oder andere Idee bzgl. der Fenster (großes im Essbereich, 2 bodentiefe im Bad, im Büro mittig und im Schlafzimmer hinter/über dem Bett)?
Vielleicht können wir später noch hier oder in einem separaten Thread auf die Küchenplanung eingehen.








nachdem wir unser Grundstück reserviert bekommen haben, haben wir mit einigen Bauunternehmen gesprochen. Einige bieten nur das Volumen an und möchten einen Grundriss erst nach Vertragsunterzeichnung zeichnen. Das hat für uns ein bisschen was von "die Katze im Sack kaufen".
Ein Bauunternehmen geht die Sache anders an und hat uns nach einem mehrstündigen Gespräch ein Konzept vorgestellt, welches wir hier gerne mit Euch diskutieren möchten.
Hier nun erst einmal der Fragebogen:
Bebauungsplan/Einschränkungen
Grundstück: F 1.6
Grundstücksgröße: 394 m² (14,7 x 26,8 Meter), kein Hang
Baufenster: 8,7 x 12,0 Meter (11,7 x 12,0 Meter abzgl.. 3 Meter Grenzabstand in Richtung Osten)
Ausrichtung: Süd-Ost bis Süd
Grundflächenzahl / Geschossflächenzahl: 0,4 / 0,8
Anzahl Stellplätze: 2
Geschossigkeit: 2 Vollgeschosse (zusätzliches Staffelgeschoss ist zulässig)
Dachform: Flachdach
Energiestandard: mind. KFW 55
Energieträger: Photovoltaikanlage und Luft-Wasser-Wärmepumpe oder Sole-Wasser-Wärmepumpe
Anforderungen der Bauherren
Die Stilrichtung, Dachform bzw. Gebäudetyp sind quasi durch den Bebauungsplan vorgegeben und für uns so in Ordnung (sonst hätten wir uns nicht auf das Grundstück beworben).
Wir (2 Erwachsene, 2 Grundschulkinder) planen ohne Keller, mit 2 Vollgeschosse und mit einer 9 Meter Garage zu bauen. Als Energieträger planen wir mit einer Sole-Wasser-Wärmepumpe.
Wir benötigen 1 Schlafzimmer, 2 Kinderzimmer, 1 Büro (für Homeoffice), Küche, Wohn- und Esszimmer, Gäste-WC (ohne Dusche), Bad (mit Dusche und Badewanne), Garderobe als Einbauschrank und natürlich einen Hauswirtschaftsraum. Zusätzlich benötigen Abstellflächen. Schlafgäste haben und erwarten wir keine.
Wir planen (eher moderne Bauweise) mit einer offenen Küche (mit einer Halbinsel) und einem Wohn- und Essbereich (6 Essplätze, ohne Kamin) in L-Form.
Da wir als Eingangsüberdachung kein „normales“ Vordach haben möchten, wünschen wir uns eine „moderne“ Lösung.
Hausentwurf
Der Entwurf stammt von einem mittelständischen Bauunternehmen (GU) aus der Region, welcher eigene Projektzeichner und einen Architekten hat.
Besonders gut gefällt uns, dass all unsere Anforderungen bereits mit dem 1. Entwurf vollständig umgesetzt wurden. Selbst Gimmicks wie eine Sitzbank und ein innenliegender Lichtausschnitt, welche wir nur nebenbei erwähnt haben, wurden berücksichtigt. Auch die Eingangsüberdachung wurde aus unserer Sicht gut umgesetzt, auch wenn es ein paar m² Wohnfläche kostet.
Insbesondere die Abstellflächen (und die Garderobe) wurden aus unserer Sicht sehr gut umgesetzt. Im 1. Entwurf war das Bad mal 2,5 m² kleiner und davor ein Abstellraum. Statt des fest verbauten Abstellraums gibt es nun im Flur entsprechend Platz, um dort optional einen (Einbau)-schrank hinzustellen bzw. wenn die Kinder nicht mehr zu Hause wohnen wieder zurückzubauen. Durch diese Umplanung wurde es möglich noch ein weiteres Fenster im Bad einzuplanen. Ob man dieses nun wirklich braucht, ist noch ein offener Punkt.
Auch die Küche und der Wohn- und Essbereich sind trotz 42 m² aus unserer Sicht sehr effektiv umgesetzt worden
Das WC ist vielleicht ein bisschen überdimensioniert, aber es gibt Schlimmeres .
Das Fenster im Büro wäre vielleicht in der Mitte des Raums schöner. Durch das darunter liegende Fenster in der Küche gestaltet sich die Umsetzung jedoch etwas schwieriger.
Das Fenster im Schlafzimmer hinter/über dem Bett ist vielleicht auch nicht perfekt. Hier sind wir schon ein paar Varianten und kommen zum Ergebnis, dass es so die beste Lösung ist.
Das Haus hat mit 16 Fenster gefühlt recht viele Fenster. Wir wüssten aber auch nicht, auf welches wir verzichten wollen, außer vielleicht das zweite Fenster im Bad. Bei dem großen Fenster im Essbereich fragen wir uns auch noch, ob es wirklich so groß sein muss.
Was ist die wichtigste/grundlegende Frage zum Grundriss in 130 Zeichen zusammengefasst?
Gibt es Anregungen, was wir im Grundriss noch anders lösen könnten?
Vielleicht habt ihr noch die ein oder andere Idee bzgl. der Fenster (großes im Essbereich, 2 bodentiefe im Bad, im Büro mittig und im Schlafzimmer hinter/über dem Bett)?
Vielleicht können wir später noch hier oder in einem separaten Thread auf die Küchenplanung eingehen.
Mir gefällts.
Die Küche ist klein aber schnuckelig. Wenn Ihr jetzt nicht gerade nen Bewirtungsservice aufmachen wollt, find ich das noch ok. Das Fenster hinterm Bett im Schlafzimmer ist auch eine Art Notlösung, würde mich aber jetzt nicht sehr stören.
Mit 2 Kindern würde ich überlegen, doch eine Tür zwischen Diele und WZ einzuplanen für mehr Ruhe.
Die Küche ist klein aber schnuckelig. Wenn Ihr jetzt nicht gerade nen Bewirtungsservice aufmachen wollt, find ich das noch ok. Das Fenster hinterm Bett im Schlafzimmer ist auch eine Art Notlösung, würde mich aber jetzt nicht sehr stören.
Mit 2 Kindern würde ich überlegen, doch eine Tür zwischen Diele und WZ einzuplanen für mehr Ruhe.
Ich finde den Entwurf auch nicht schlecht. Nur ein paar kleine Anmerkungen:
- Küche ist nicht groß. Evtl die Tür zu einem Fenster ändern und dann die Arbeitsfläche ums Eck machen.
- Wollt ihr die Garage so weit nach hinten versetzt haben? Es reichen auch 5-6m vor der Garage.
- Bodentiefe Fenster im Bad finde ich suboptimal. Vor allem das bodentiefe Fenster zur Straße hin.
- Mir persönlich würde allgemein etwas Stauraum fehlen.
- Küche ist nicht groß. Evtl die Tür zu einem Fenster ändern und dann die Arbeitsfläche ums Eck machen.
- Wollt ihr die Garage so weit nach hinten versetzt haben? Es reichen auch 5-6m vor der Garage.
- Bodentiefe Fenster im Bad finde ich suboptimal. Vor allem das bodentiefe Fenster zur Straße hin.
- Mir persönlich würde allgemein etwas Stauraum fehlen.
Mir gefällt das OG nicht wirklich.
Messt mal nach ob das Büro tief genug ist. Es funktioniert ist nur nicht üppig
Schlafzimmer geht mit dem Fenster nicht anders. Jede andere Lösung kostet Schrankfläche.
Der Schrank im Flur gefällt mir nicht. Wirkt wie ein Reststück.
Zeichnet eure richtige Möblierung im Maßstab ein. Da entdeckt ihr Fehler. Bedenkt dabei eure Besonderheiten Bücher, Bauernschrank von Oma etc
Messt mal nach ob das Büro tief genug ist. Es funktioniert ist nur nicht üppig
Schlafzimmer geht mit dem Fenster nicht anders. Jede andere Lösung kostet Schrankfläche.
Der Schrank im Flur gefällt mir nicht. Wirkt wie ein Reststück.
Zeichnet eure richtige Möblierung im Maßstab ein. Da entdeckt ihr Fehler. Bedenkt dabei eure Besonderheiten Bücher, Bauernschrank von Oma etc
Leiden mag ich es auch. Auf die besagten Fenster würde ich nicht verzichten, das Schlafzimmer-Fenster sollte man wegen der Optik und mangelnder Alternative tolerieren.
Badfenster zur Straße würde ich einkürzen.
Aber: die Küche ist mM nach viel zu klein.
Wir haben für Kaffeevollautomat, Bretter, Messer und angebrochene Wasserflaschen usw. ca. 60/70cm der Arbeitsplatte in Gebrauch. Sodastream on top.
Wasserkocher scheint wohl heutzutage out zu sein, aber mit Kindern hat man dann ja noch einen Obstkorb, eventuell ein E-Küchenhelfer (oder zwei), das nimmt ja alles Platz weg. Wo also wollt ihr Sachen hinstellen oder lagern (Geschirr?, Gläser?) Hängeschränke sind auch nicht geplant, oder?
Also , wir sind zu zweit, haben mehr, aber reicht nicht. Wie soll jetzt das für Euch reichen?
Badfenster zur Straße würde ich einkürzen.
Aber: die Küche ist mM nach viel zu klein.
Wir haben für Kaffeevollautomat, Bretter, Messer und angebrochene Wasserflaschen usw. ca. 60/70cm der Arbeitsplatte in Gebrauch. Sodastream on top.
Wasserkocher scheint wohl heutzutage out zu sein, aber mit Kindern hat man dann ja noch einen Obstkorb, eventuell ein E-Küchenhelfer (oder zwei), das nimmt ja alles Platz weg. Wo also wollt ihr Sachen hinstellen oder lagern (Geschirr?, Gläser?) Hängeschränke sind auch nicht geplant, oder?
Also , wir sind zu zweit, haben mehr, aber reicht nicht. Wie soll jetzt das für Euch reichen?
Der TE hat gerade den Erstentwurf in der Hand und hier wird über Hängeschränke gesprochen?
Dann kann es um den Grundriss ja nicht so schlecht bestellt sein
Platzierung der Garage überdenken und am Grundriss Details schleifen zB oben der Flur am Treppenaufgang. Ob da ein Schrank steht oder nicht sei euch überlassen. Der Planer wollte da wohl nur den unnötigen Raum „sinnvoll“ füllen
Haus für vier plus Büro auf 140qm ist nicht so einfach, wo alle „think big“ zu üben scheinen. Das ist hier gut gelungen.
Aber, Flachdach, keinen Keller und keine zusätzlichen Abstellräume. Wo bleibt da ein Koffer oder andere große Dinge, die in keinen Schrank passen? Auf dem Grundstück ist dafür ja auch kein weiterer Platz, sofern in der Garage auch mal ein Auto stehen soll.
Würde zumindest unter der Treppe zu machen und eine Tapetentür oder dergleichen vorsehen, um da mal was drunter zu stellen.
Dann kann es um den Grundriss ja nicht so schlecht bestellt sein
Platzierung der Garage überdenken und am Grundriss Details schleifen zB oben der Flur am Treppenaufgang. Ob da ein Schrank steht oder nicht sei euch überlassen. Der Planer wollte da wohl nur den unnötigen Raum „sinnvoll“ füllen
Haus für vier plus Büro auf 140qm ist nicht so einfach, wo alle „think big“ zu üben scheinen. Das ist hier gut gelungen.
Aber, Flachdach, keinen Keller und keine zusätzlichen Abstellräume. Wo bleibt da ein Koffer oder andere große Dinge, die in keinen Schrank passen? Auf dem Grundstück ist dafür ja auch kein weiterer Platz, sofern in der Garage auch mal ein Auto stehen soll.
Würde zumindest unter der Treppe zu machen und eine Tapetentür oder dergleichen vorsehen, um da mal was drunter zu stellen.
Ähnliche Themen