ᐅ Ausrichtung der Räume bei Nord-Ost Grundstück
Erstellt am: 23.08.15 12:56
W
Watcher7823.08.15 12:56Hallo zusammen,
wir stellen uns gerade die Frage der optimalen Ausrichtung der Räume im EG für unser Grundstück.
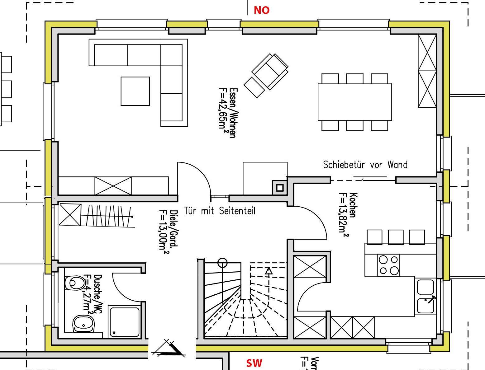
Folgende Situation das Grundstück hat seinen großen Garten Richtung NO mit Gefälle. Das EG wird Richtung NO einen Balkon bekommen und darunter ist noch KG. Der schöne Blick geht auch eindeutig Richtung NO. Keine Häuser in unmittelbarer Nähe und weiter Blick. Zum SW - Strasse ist noch eine kleine Terrasse für den Abend geplant.
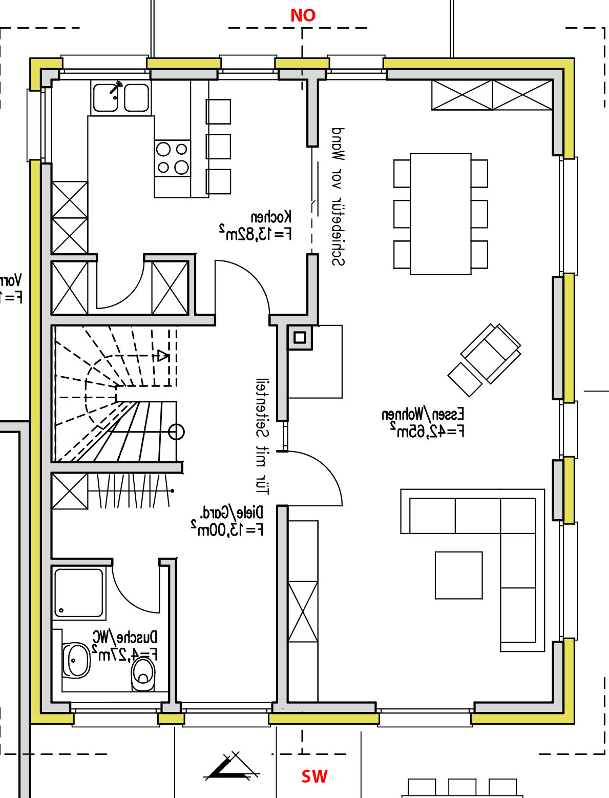
Nun stellt sich die Frage ob wir das WHZ. nach hinten ausrichtigen kombiniert mit Essbereich zum schönen Blick oder das WHZ. nach vorne SW planen, sodaß von dort über ein grosses Fenster aus SW Licht / Sonne ins Haus kommt. Ich stelle mal die beiden Ideen der Grundrisse (11x9 und 9x11 - Grundstücksbreite 20 m) und die Raumanordnungen ein. Würde mich über eure Tipps / Ausrichtungen freuen. Ich persönlich finde WHZ und Essbereich nach hinten schöner habe nur Angst das zu wenig Licht einfällt


wir stellen uns gerade die Frage der optimalen Ausrichtung der Räume im EG für unser Grundstück.
Folgende Situation das Grundstück hat seinen großen Garten Richtung NO mit Gefälle. Das EG wird Richtung NO einen Balkon bekommen und darunter ist noch KG. Der schöne Blick geht auch eindeutig Richtung NO. Keine Häuser in unmittelbarer Nähe und weiter Blick. Zum SW - Strasse ist noch eine kleine Terrasse für den Abend geplant.
Nun stellt sich die Frage ob wir das WHZ. nach hinten ausrichtigen kombiniert mit Essbereich zum schönen Blick oder das WHZ. nach vorne SW planen, sodaß von dort über ein grosses Fenster aus SW Licht / Sonne ins Haus kommt. Ich stelle mal die beiden Ideen der Grundrisse (11x9 und 9x11 - Grundstücksbreite 20 m) und die Raumanordnungen ein. Würde mich über eure Tipps / Ausrichtungen freuen. Ich persönlich finde WHZ und Essbereich nach hinten schöner habe nur Angst das zu wenig Licht einfällt
Den Grundriss finde ich gut Aber ihr solltet euch wirklich dessen bewusst sein, dass es im Nordosten dunkel ist. Wir sehen das grad an unserem Rohbau. Das Schlafzimmer ist im Nor-Osten. Dort ist es merklich kühler und deutlichen dunkler (hätten wir so nicht gedacht vorher).
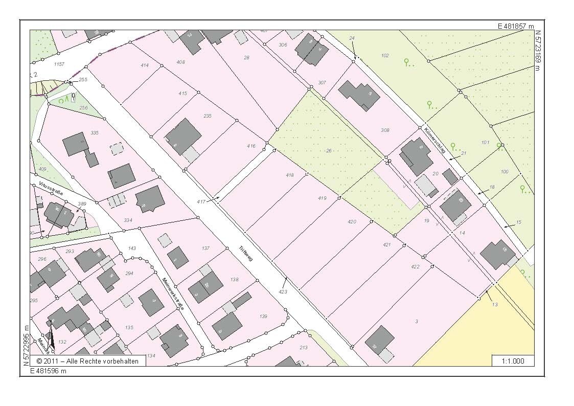
Kannst du mal einen Plan vom Grundstück einstellen?
Schöner Blick ist natürlich auch viel Wert
Kannst du mal einen Plan vom Grundstück einstellen?
Schöner Blick ist natürlich auch viel Wert
W
Watcher7823.08.15 13:18Ich würde den unteren Entwurf noch mal in der horizontalen Mitte kontern und den Eingang Plan links, also Nordwest legen.
Mir wäre Licht wichtiger als Ausblick. Ausblick hätte man im WZ, am Abend Grillterrasse an der Küche.
Eventuell würde ich aber auch anders entscheiden, wenn ich das Grundstück und die Grenzen kennen würde
Mir wäre Licht wichtiger als Ausblick. Ausblick hätte man im WZ, am Abend Grillterrasse an der Küche.
Eventuell würde ich aber auch anders entscheiden, wenn ich das Grundstück und die Grenzen kennen würde
W
Watcher7823.08.15 14:25Den unteren Entwurf wäre der 9x 11 ?. Du meinst dann Küche / Essbereich nach vorne und WHZ nach hinten ? Bei einem Eingang von der Seite bekommen wir ein Problem mit der Garage. Weil man kann die Garage leider nicht komplett neben das Gebäude bzw. dahinter setzen wg. dem Hang. Das wäre nur mit hohen Kosten verbunden.
Hab ich das so richtig mit dem horizontalen Mitte kontern verstanden ?
Hab ich das so richtig mit dem horizontalen Mitte kontern verstanden ?
Ähnliche Themen