ᐅ Grundrissplanung Stadtvilla 140-150qm 2 Kinder Feedback
Erstellt am: 28.12.22 21:46
D
dupsischnupsi28.12.22 21:46Bebauungsplan/Einschränkungen
Größe des Grundstücks 580qm
Hang nein
Grundflächenzahl
Geschossflächenzahl
Baufenster, Baulinie und -grenze
Randbebauung
Anzahl Stellplatz 1
Geschossigkeit 2 Vollgeschosse
Dachform Walmdach
Stilrichtung Stadtvilla
Ausrichtung Süden
Maximale Höhen/Begrenzungen keine
weitere Vorgaben keine
Anforderungen der Bauherren
Stilrichtung, Dachform, Gebäudetyp Stadtvilla, Walmdach
Keller, Geschosse kein Keller, 2 Geschosse
Anzahl der Personen, Alter 4 Personen 37,33,4,1
Raumbedarf im EG, OG siehe Grundriss
Büro: Familiennutzung oder Homeoffice? Selten Homeoffice, eher Abstellraum
Schlafgäste pro Jahr 0
offene oder geschlossene Architektur offen
konservativ oder moderne Bauweise modern
offene Küche, Kochinsel
Anzahl Essplätze 6
Kamin nein
Musik/Stereowand nein
Balkon, Dachterrasse nein
Garage, Carport gerne Garage direkt am Hauswirtschaftsraum, evtl aber eher Carport aus finanziellen Gründen
Nutzgarten, Treibhaus nein
weitere Wünsche/Besonderheiten/Tagesablauf, gern auch Begründungen, warum dieses oder das nicht sein soll
Kinderzimmer sollen gerne auf der Südseite bleiben, Bad und Schlafzimmer werden wir oben tauschen, damit man im Bad das Tageslicht mehr nutzen kann
Hausentwurf
Von wem stammt die Planung:
-1. Entwurf der Architektin
Was gefällt besonders? Warum?
die Größe der Räume
Was gefällt nicht? Warum?
Bad und Schlafzimmer werden getauscht
Mehr und größere Fenster würden wir uns wünschen
Tür zur Speisekammer von der Küche aus
Preisschätzung lt Architekt/Planer:
Persönliches Preislimit fürs Haus, inkl Ausstattung:
favorisierte Heiztechnik: Luft Wärme Pumpe
Wenn Ihr verzichten müsst, auf welche Details/Ausbauten
-könnt Ihr verzichten: Garage
-könnt Ihr nicht verzichten: große Fenster
Warum ist der Entwurf so geworden, wie er jetzt ist? ZB
Standardentwurf vom Planer? Dies ist der 1. Entwurf von der Architektin
Entsprechende/Welche Wünsche wurden vom Architekten umgesetzt?
Fast alle
Was macht ihn in Euren Augen besonders gut oder schlecht?
Was ist die wichtigste/grundlegende Frage zum Grundriss in 130 Zeichen zusammengefasst?
Uns interessiert die Meinung erfahrener Bauherren zu unserem Grundriss, wir haben selber schon Änderungswünsche notiert aber möchten sehr gerne diese Expertise nutzen für unsere Hausbauplanung.
Außerdem sind wir uns noch nicht sicher, ob wir über einen GU bauen oder in Eigenregie die Gewerke selber vergeben, gibt es da Erfahrungswerte, ob man dabei wirklich sparen kann und wenn ja, in welcher Höhe?
Ich bedanke mich schon mal vorab ganz herzlich für den Austausch!
LG dupsischnupsi


Größe des Grundstücks 580qm
Hang nein
Grundflächenzahl
Geschossflächenzahl
Baufenster, Baulinie und -grenze
Randbebauung
Anzahl Stellplatz 1
Geschossigkeit 2 Vollgeschosse
Dachform Walmdach
Stilrichtung Stadtvilla
Ausrichtung Süden
Maximale Höhen/Begrenzungen keine
weitere Vorgaben keine
Anforderungen der Bauherren
Stilrichtung, Dachform, Gebäudetyp Stadtvilla, Walmdach
Keller, Geschosse kein Keller, 2 Geschosse
Anzahl der Personen, Alter 4 Personen 37,33,4,1
Raumbedarf im EG, OG siehe Grundriss
Büro: Familiennutzung oder Homeoffice? Selten Homeoffice, eher Abstellraum
Schlafgäste pro Jahr 0
offene oder geschlossene Architektur offen
konservativ oder moderne Bauweise modern
offene Küche, Kochinsel
Anzahl Essplätze 6
Kamin nein
Musik/Stereowand nein
Balkon, Dachterrasse nein
Garage, Carport gerne Garage direkt am Hauswirtschaftsraum, evtl aber eher Carport aus finanziellen Gründen
Nutzgarten, Treibhaus nein
weitere Wünsche/Besonderheiten/Tagesablauf, gern auch Begründungen, warum dieses oder das nicht sein soll
Kinderzimmer sollen gerne auf der Südseite bleiben, Bad und Schlafzimmer werden wir oben tauschen, damit man im Bad das Tageslicht mehr nutzen kann
Hausentwurf
Von wem stammt die Planung:
-1. Entwurf der Architektin
Was gefällt besonders? Warum?
die Größe der Räume
Was gefällt nicht? Warum?
Bad und Schlafzimmer werden getauscht
Mehr und größere Fenster würden wir uns wünschen
Tür zur Speisekammer von der Küche aus
Preisschätzung lt Architekt/Planer:
Persönliches Preislimit fürs Haus, inkl Ausstattung:
favorisierte Heiztechnik: Luft Wärme Pumpe
Wenn Ihr verzichten müsst, auf welche Details/Ausbauten
-könnt Ihr verzichten: Garage
-könnt Ihr nicht verzichten: große Fenster
Warum ist der Entwurf so geworden, wie er jetzt ist? ZB
Standardentwurf vom Planer? Dies ist der 1. Entwurf von der Architektin
Entsprechende/Welche Wünsche wurden vom Architekten umgesetzt?
Fast alle
Was macht ihn in Euren Augen besonders gut oder schlecht?
Was ist die wichtigste/grundlegende Frage zum Grundriss in 130 Zeichen zusammengefasst?
Uns interessiert die Meinung erfahrener Bauherren zu unserem Grundriss, wir haben selber schon Änderungswünsche notiert aber möchten sehr gerne diese Expertise nutzen für unsere Hausbauplanung.
Außerdem sind wir uns noch nicht sicher, ob wir über einen GU bauen oder in Eigenregie die Gewerke selber vergeben, gibt es da Erfahrungswerte, ob man dabei wirklich sparen kann und wenn ja, in welcher Höhe?
Ich bedanke mich schon mal vorab ganz herzlich für den Austausch!
LG dupsischnupsi
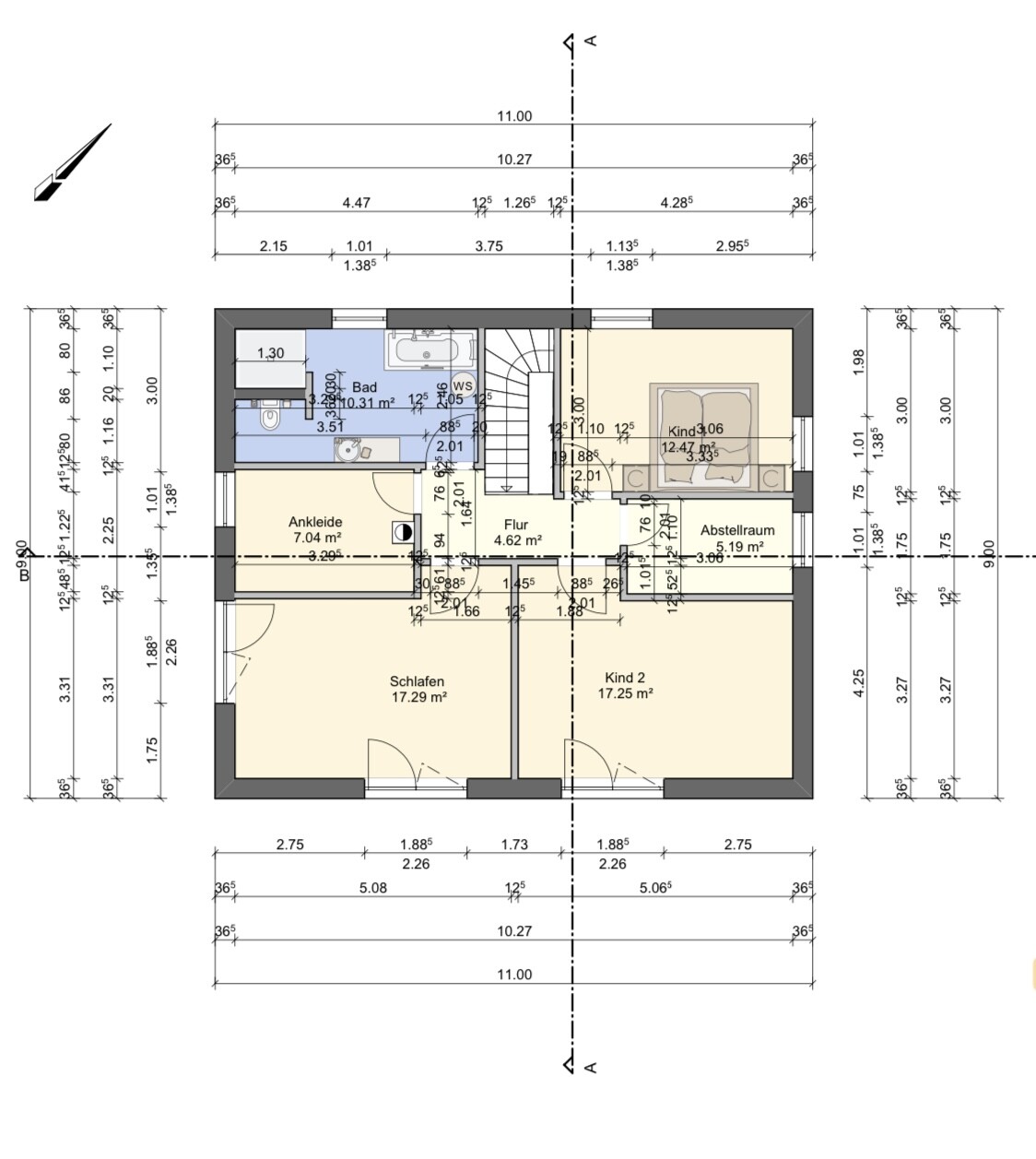
dupsischnupsi schrieb:
Standardentwurf vom Planer? Dies ist der 1. Entwurf von der ArchitektinUups… der erste Entwurf der Architektin überhaupt nach Studium?Sorry, aber ich sehe da keine Glanzleistung. Eher im Gegenteil. Das ist eine Planerin eines GUS, oder?
Kannst Du mal bitte den Grundstückplan mit Straße zeigen? Interessant wäre auch die Möblierung, wie sie angedacht ist.
Warum hat die Zeichnerin Süd und West nicht bedacht?
Für mich sind die Fenster im Verhältnis zu den Außenwänden viel zu schmal bzw. zu wenig.
Treppenansatz ist im Schmutzbereich und recht altbacken,
Kinderzimmer sind nicht schön ausgerichtet
Garderoben fehlt völlig
Flur dunkel ohne Fenster
Wie ist das Budget?
dupsischnupsi schrieb:
Bad und Schlafzimmer werden getauschtWelches Schlafzimmer?C
Costruttrice28.12.22 22:18dupsischnupsi schrieb:
Kinderzimmer sollen gerne auf der Südseite bleiben, Bad und Schlafzimmer werden wir oben tauschenDas Zimmer von Kind1 ist aber nicht im Süden. Oder wird das noch mit Schlafzimmer getauscht? Dann verstehe ich das allerdings mit dem Bad nicht.D
dupsischnupsi28.12.22 22:46ypg schrieb:
Uups… der erste Entwurf der Architektin überhaupt nach Studium?
Sorry, aber ich sehe da keine Glanzleistung. Eher im Gegenteil. Das ist eine Planerin eines GUS, oder?Oh je, ich hoffe nicht. Sie ist schon etwas älter aber kein GU. Vielleicht liegt es daran. Umso besser, dass ich es hier nochmal teile. Danke dafür!
ypg schrieb:
Kannst Du mal bitte den Grundstückplan mit Straße zeigen? Interessant wäre auch die Möblierung, wie sie angedacht ist.
Warum hat die Zeichnerin Süd und West nicht bedacht?
Für mich sind die Fenster im Verhältnis zu den Außenwänden viel zu schmal bzw. zu wenig.Ich habe leider nur die spärliche Abbildung im Anhang. Links vom Grundstück ist noch ein Nachbargrundstück, oben und rechts eine Straße, rechts eine Sackgasse, wo es evtl. irgendwann mal eine Erweiterung des Wohngebietes geben wird.
Tatsächlich ist uns jetzt erst aufgefallen dass die Planerin die Ausrichtung auf dem Grundriss falsch eingezeichnet hat. Norden ist quasi links oben und nicht rechts oben, ist das verständlich?
Möblierung, soweit sind wir leider noch nicht
Ja Fenster sehe ich ganz genauso, viel zu klein und wenig!
ypg schrieb:
Treppenansatz ist im Schmutzbereich und recht altbacken,
Kinderzimmer sind nicht schön ausgerichtet
Garderoben fehlt völlig
Flur dunkel ohne Fenster
Wie ist das Budget?
Welches Schlafzimmer?Die Treppen Lösung gefällt uns auch nicht, wie könnten uns auch die Treppe aus dem Wohn Essbereich heraus vorstellen wir möchten gerne eine Tür mit einem Seitenteil, sodass wir dadurch etwas Licht bekommen.
Die Tür der Speisekammer im Flur entfällt ja, dann könnten wir dort eine Garderobennische einplanen.
Das Schlafzimmer ist quasi Kind 1, das wurde falsch betitelt.
Das Budget liegt bei 350.000-400.000
Oh je…
D
dupsischnupsi28.12.22 22:49Costruttrice schrieb:
Das Zimmer von Kind1 ist aber nicht im Süden. Oder wird das noch mit Schlafzimmer getauscht? Dann verstehe ich das allerdings mit dem Bad nicht.Danke für das Feedback.
Tatsächlich ist Kind 1 das Schlafzimmer und das Schlafzimmer Kind 1. die Ausrichtung wurde von der Planerin falsch eingezeichnet. Der Pfeil der Planerin zeigt jetzt sozusagen auf den Osten.
Das ist uns bisher gar nicht aufgefallen.
dupsischnupsi schrieb:
Oh je, ich hoffe nicht. Sie ist schon etwas älter aber kein GU. Vielleicht liegt es daranIch bin auch „etwas älter“, aber der Grundriss sieht wie ein altes Siedlungshaus aus den 50er Jahren, und es wundert mich nicht, wenn die Architektin nicht in _modern_ oder zeitgemäß kann.dupsischnupsi schrieb:
Tatsächlich ist uns jetzt erst aufgefallen dass die Planerin die Ausrichtung auf dem Grundriss falsch eingezeichnet hat.uups…dupsischnupsi schrieb:
Das Schlafzimmer ist quasi Kind 1, das wurde falsch betitelt.ups…dupsischnupsi schrieb:
Möblierung, soweit sind wir leider noch nichtAber das ist wichtig, wie ihr Küche etc. stellen und haben wollt. Gerade die Küche prägt den Allraum. Das kleine Fenster und die Trennwand ist mir nicht geheuer… zeichnet mal Euer möbel maßstabsgetreu ein.dupsischnupsi schrieb:
Ich habe leider nur die spärliche Abbildung im Anhang.Auch hier wird es Zeit, dass Ihr Euch mit dem Grundstück beschäftigt und mal alles nachzeichnet Inkl Sonnenstand, Schatten und Terrasse.So beschäftigt man sich mit dem Grundstück und lernt es kennen, auch die Längen und Maß, ohne dass man hinfahren muss.
dupsischnupsi schrieb:
Die Treppen Lösung gefällt uns auch nicht, wie könnten uns auch die Treppe aus dem Wohn Essbereich heraus vorstellen wir möchten gerne eine Tür mit einem Seitenteil, sodass wir dadurch etwas Licht bekommen.Das bedeutet ein anderes Haus.Macht Euch bewusst, dass ihr etwas kleiner bauen müsst. Euer Budget ist nicht das größte, Küche/ Allraum kann strukturierter und kleiner, Kinder auch.
Ähnliche Themen