Grundrissplanung Einfamilienhaus 180m2 Süd-Zufahrt - Chaos-Grundrisse

4,70 Stern(e) 11 Votes
Zuletzt aktualisiert 21.11.2025
Sie befinden sich auf der Seite 17 der Diskussion zum Thema: Grundrissplanung Einfamilienhaus 180m2 Süd-Zufahrt - Chaos-Grundrisse
>> Zum 1. Beitrag <<

Y

ypg

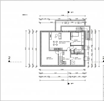
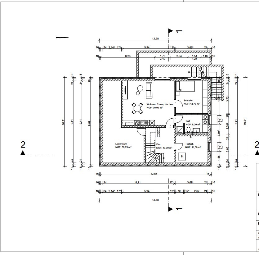
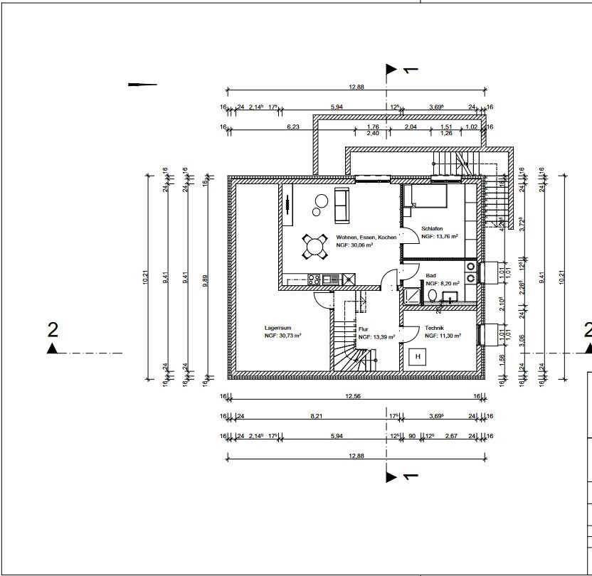
Mir ist das Schlafzimmer auch zu rummelig. Durchgangszimmer Par excellence! Ne richtige Rummelbude, zum Ausruhen nicht geeignet.
Bals sind alle Alternativen für OGs durch…
 
C

Cubus3f

Also Variante 2 ist raus mangels Büro.
Zu Variante 1 - ich finde es unter den Vorgaben ganz gelungen. Mir persönlich gefällt nur der Elternbereich nicht so gut. Erstens finde ich Schiebetüren im Bad total daneben. Da muss man erst mal eine finden, die richtig dicht schließt. Außerdem schaut man vom Bett aus in die Ankleide, auf die Tür, dieses Stück Wand und rechts geht's ins Bad. Das alles wirkt so offen, unruhig und ungemütlich - da kommt man gar nicht zur Ruhe. Aber sonst - warum nicht?
Ja, wir finden das Schlafzimmer tatsächlich auch als etwas unruhig, weil man das Bad und das Ankleidezimmer von dort aus betritt. Werden wir am Freitag mit dem Architekten aufnehmen. Hättest du vielleicht nochmal eine Idee, wie man das anders lösen kann?
 
Zuletzt aktualisiert 21.11.2025
Im Forum Grundrissplanung / Grundstücksplanung gibt es 2535 Themen mit insgesamt 87979 Beiträgen


Ähnliche Themen zu Grundrissplanung Einfamilienhaus 180m2 Süd-Zufahrt - Chaos-Grundrisse
Nr.ErgebnisBeiträge
1Schlafzimmer im Keller 13
2Grundriss Einfamilienhaus mit Keller - Eure Meinungen bitte - Seite 316
3Häuser ohne Keller: Stauraum Hobby-Keller? - Seite 349
4Büro in den Keller verlegen? - Seite 320
5Ohne Keller gebaut & bereut? - Seite 1277
6Grundriss 180qm plus Keller - 12,40mx9,04m - Seite 321
7Jetzt der finale Grundriss - 189qm ohne Keller; Stadtvilla - Seite 424
8Grundrisse für Einfamilienhaus, ca. 140m², ohne Keller - Seite 1378
9Einfamilienhaus 200qm mit Keller+Doppelgarage Eure Meinungen? 33
10Baukosten in BW für Einfamilienhaus mit 200m2 Keller und Doppelgarage - Seite 438
11Hausplan von Architekt 2 Geschosse mit Keller 18
12Werkplanung Einfamilienhaus 180qm Flachdach mit Keller & Doppelgarage 142
13Einfamilienhaus ohne Keller - Diskussion Grundriss 19
14Einfamilienhaus mit Keller und Doppelgarage 9,2x11m Grundriss-Plan optimieren 20
15160m2 Einfamilienhaus in Holzständerbauweise am Nordhang mit Keller - Seite 2100
16Feuchtigkeit im Schlafzimmer an Außenwand - Woher kommt die? 10
17200m2 Einfamilienhaus für 4-5 Personen ohne Keller auf schmalem Grundstück - Seite 1067
18Grundrissoptimierung Einfamilienhaus mit Keller auf kleinem Grundstück - Seite 3178
19Einfamilienhaus (2Etagen+Wohn-Keller+ausgebautes Dach) etwa 200qm -Änderungen - Seite 6162
20Einfamilienhaus bauen mit/ohne Keller bei kleinem Grundstück - Seite 965

Oben