Grundrissplanung Einfamilienhaus 180m2 Süd-Zufahrt - Chaos-Grundrisse

4,70 Stern(e) 11 Votes
Zuletzt aktualisiert 09.01.2026
Sie befinden sich auf der Seite 6 der Diskussion zum Thema: Grundrissplanung Einfamilienhaus 180m2 Süd-Zufahrt - Chaos-Grundrisse
>> Zum 1. Beitrag <<

kbt09

kbt09

Also, das sind auf jeden Fall erhöhte lichte Raumhöhen, von daher ist die Größe der Podesttreppe (was ja weiter vorne schon mal angezweifelt wurde) auf jeden Fall mindestens erforderlich.

Das Problem ist, man muss sich vom aktuellen Grundriss lösen und quasi gedanklich neu starten.

Und ja, ich finde den Eingang viel zu versteckt und würde versuchen eine andere Lösung zu finden.

Und ja, für Fahrräder sollte man einen geschützten Bereich andenken (E-Bikes, Sattel, etc.)

Und ja, ich würde die Auflockerung eines Kubus-Gebäudes eher durch Außenwandmaterialien bestimmen und nicht Erker und Rücksprünge schaffen.

Und ja, ich würde die Küche mit Essen eher Richtung Terrasse orientieren und Wohnbereich (Sofa/TV/Lesen) ruhiger bzw. sogar trennen.

Und ja, ich würde einen Elternbereich, wenn er denn sein soll, immer nicht so verschachteln, darauf achten, dass Raumzugänge nicht neben dem Kopfteil des Bettes sind.

Ansonsten .. auch mal ein oder zwei positive Aspekte.
- Hauswirtschaftsraum im OG
- Versuch an den passenden Stellen Stauraum zu schaffen (nicht immer gelungen, siehe Diele)
- auch an Fahrräder gedacht (finde ich auch nicht gelungen, aber dran gedacht)
- auch an Hobby, Werkstatt, evtl. auch einfach nur Platz für Rasenmäher und Gartenwerkzeug gedacht
- Garage über 3 m breit
- 2. Stellplatz, den ich gar nicht so doof finde.
 
S

Schorsch_baut

Ich bin gerade zu faul, alles zu lesen. Hat schon jemand angemerkt, dass Ihr zu viele Wünsche für das OG bei 80 qm habt? Rechne einfach mal zusammen, was die einzelnen Räume an qm brauchen. Das sprengt die 80 qm um einige qm.
 
11ant

11ant

Und ja, ich würde die Auflockerung eines Kubus-Gebäudes eher durch Außenwandmaterialien bestimmen und nicht Erker und Rücksprünge schaffen.
Das sage ich ja auch immer: das Finish kommt beim Schminken.
- Hauswirtschaftsraum im OG
Wie gesagt, am besten auch der Technikraum hier.
Das Problem ist, man muss sich vom aktuellen Grundriss lösen und quasi gedanklich neu starten.
Um das auch noch mal ganz klar zu betonen: was ich hier sage, ist in keinstem Fall im Sinne von "wenn man dieses Detail ändert, ist einer der beiden Vorschläge schon brauchbar" gemeint. Das muß neu, im Sinne von "alles auf Anfang", in der Nachsynchronisation kann man da nichts retten. Deshalb bin ich hier auch nicht im Detail darauf eingegangen, wo in diesen beiden Bauvorschlägen die sauteuren Statikdetails stecken. Und was ich zu den Planungsschlampigkeiten bereits sagte ...
Pfuschertaschen, die der Planer vorsieht, wird der Maurer auch ausführen.
... gilt sinngemäß auch für die Treppe / Geschosshöhe: wenn man den planlesenden Bauarbeitern die freie Wahl der Interpretation läßt, dann nutzen sie die auch. Vorn der Hans und hinten der Jürgen jeweils auf ihre Weise, und am Bindestrich paßt der Hans-Jürgen dann mit einer Handbreit Höhenunterschied nicht mehr zusammen. Das kriegt der Putzer nicht kaschiert. Es gibt Fälle, da muß Maria auch Protestanten helfen.
 
K a t j a

K a t j a

Wir haben gerade in den Schnitten nachgeschaut. 2,85m im EG und 2,60m im OG ohne Boden.
Über Treppentiefe und Höhe haben wir uns überhaupt nocht gar keine Gedanken gemacht.
Na dann habt Ihr ja noch was, womit Ihr Euch mal befassen solltet. Einfach mal ein paar Treppen probe gehen und schauen, was Eure Mindestmaße sind. Außerdem die Maße im Plan erfragen (inkl. Steigungshöhe und Auftrittstiefe) und gleich mit über die Geschosshöhe nachdenken.
 
C

Cubus3f

Hallo alle zusammen,
Vielen Dank für eure Anmerkungen und Tipps. Diese wurden heute an den Architekten weitergegeben. Wir werden berichten!
 
C

Cubus3f

Guten Abend liebe Hausbau Forum Mitglieder,
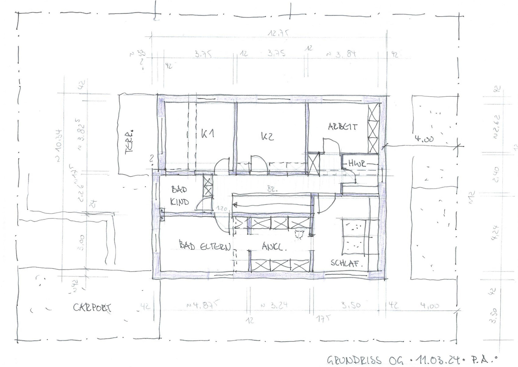
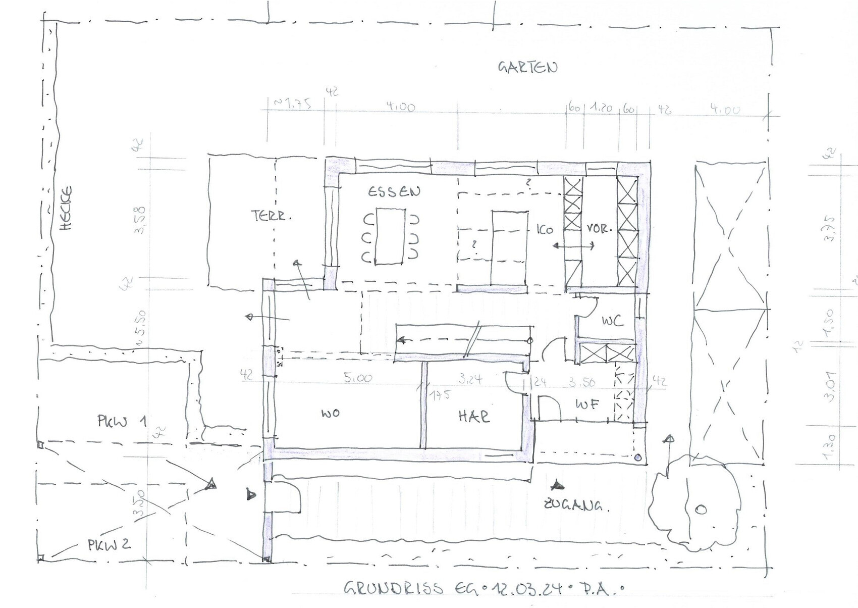
nachdem wir mit dem Architekten unsere Wünsche nochmals geteilt hatte, haben einen kompletten Neuentwurf erhalten. Dieser sagt uns sehr zu :)
Wir haben den Garten in den Süden verlegt und Wohnzimmer mit Küche getauscht und vieles mehr.

Seht ihr noch Verbesserungspotenzial?
Vielen Dank schon mal für Euer Feedback.
LG
Cubus3f
Handgezeichnete Haus-Grundriss-Skizze mit Esszimmer, Terrasse, WC und Garten.

Grundriss OG: K1, K2, Arbeitszimmer, Bad Kind, Bad Eltern, Ankleide, Schlafraum.
 
Zuletzt aktualisiert 09.01.2026
Im Forum Grundrissplanung / Grundstücksplanung gibt es 2565 Themen mit insgesamt 88791 Beiträgen


Ähnliche Themen zu Grundrissplanung Einfamilienhaus 180m2 Süd-Zufahrt - Chaos-Grundrisse
Nr.ErgebnisBeiträge
1Vorplanung mit dem Architekten - eigener Grundriss sinnvoll? 18
2Kosten Umbauter Raum. Erstentwurf mit Architekten besprochen - Seite 327
3Decken-Spots Diele oder Küche und Bad 10
4Architekten oder Fertighaus Kostenkalkulation und weitere Schritte 27
5Wunschliste für den Architekten 32
6Baukosten bei Bau mit Architekten. Was sagt eure Erfahrung? - Seite 218
7Geschlossene oder offene Küche ? 11
8Grundriss, Ideen zur räumlichen Trennung innerhalb der Küche 23
9Varianten für eine Ecklösung in der Küche 18
10Wohnen/Essen/Küche: Wie wohnt ihr oder werdet ihr wohnen? 52
11Planung Wohnraum & Küche eines Doppelhaushälfte in Nürnberg 13
12Probleme bei der aufteilung Küche, Essen , Wohnen 16
13Grundriss Halboffene Küche mit großem Essbereich - Detailfragen 12
14Beleuchtung in Diele und Küche: Deckeneinbau-Strahler benötigt? 19
15Feedback zur Ikea-Küche - Seite 4167
16Next 125 Küche Erfahrungen / Preiseinschätzung 39
17Heizkreise/Thermostate für Wohnen/Essen/Küche bei Fußbodenheizung/Wärmepumpe 35
18Küche über ein Jahr vor Fertigstellung kaufen? - Seite 254
19Frage zur Entwässerung / Verrohrung Küche 16
20Grundriss Einfamilienhaus - Problemfall Küche 20

Oben