Grundrissplanung Einfamilienhaus 180m2 Süd-Zufahrt - Chaos-Grundrisse

4,70 Stern(e) 11 Votes
Zuletzt aktualisiert 09.01.2026
Sie befinden sich auf der Seite 21 der Diskussion zum Thema: Grundrissplanung Einfamilienhaus 180m2 Süd-Zufahrt - Chaos-Grundrisse
>> Zum 1. Beitrag <<

K a t j a

K a t j a

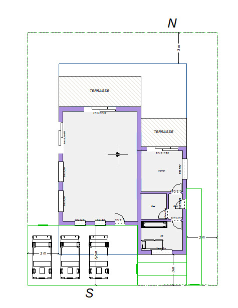
Die Omi in den Keller zu sperren, finde ich immer wieder furchtbar. Ich vermute, Ihr wollt einfach die liebe Verwandte gern um Euch haben - nur es mangelt an Ideen. Deswegen hier ein Gegenvorschlag.

Es geht erstmal nur um die Aufteilung hinsichtlich Lageplan, Stellplätze, Terrassen und Wege. Ich würde in diese Richtung denken:


Grundriss eines Gebäudes mit Terrassen, Eingängen, Garage und Außenflächen; Norden oben



3D-Hausmodell mit großem Hauptgebäude, Nebengebäude, Zaun und drei roten Autos vor der Einfahrt


Modernes zweistöckiges Haus mit grauer Fassade, großen Fenstern, Terrassen und Holzzaun um das Grundstück.


Falls der Platz nicht reicht, wäre zusätzlich eine Teilüberbauung von Omis Einliegerwohnung denkbar.
 
C

Cubus3f

Liebe Katja, WOW. Vielen, vielen Dank für deine Mühe und Arbeit. Das wissen wir sehr zu schätzen.
Wir haben heute nochmal mit dem Architekten gesprochen und haben das bodentiefe Fenster im KG von 1,60 auf 2,30 verbreitert. Der linke schmale Bereich, der im Plan noch zum Lagerraum gehörte, wird zu einer Abstellkammer für die Einliegerwohnung werden. Da könnte man auch die Waschmaschine hinstellen und somit das Bad "freier" machen.


Was haltet ihr denn vom Eingangsbereich im EG?? Ich mache mir Sorgen, dass es zu eng sein könnte. Was meint ihr?
 
K a t j a

K a t j a

Was haltet ihr denn vom Eingangsbereich im EG?? Ich mache mir Sorgen, dass es zu eng sein könnte. Was meint ihr?
Sorry, ich finde Deinen Plan besonders im Außenbereich einfach gruselig. Da ist nicht eine Stelle auf dem Grundstück, wo man sich gerne aufhalten möchte. Wo sollen eigentlich die Mülltonnen stehen? Direkt neben der Terrasse?
Ich finde Deine Sorgen um den Eingangsbereich auch völlig deplatziert, wenn grundlegende Fragen, welche möglicherweise eine Genehmigung verhindern, noch nicht gelöst sind.
Auch muss ich gestehen, dass ich den Schimu-Keller unsozial finde und nicht unterstützen kann.
 
Y

ypg

haben das bodentiefe Fenster im KG von 1,60 auf 2,30 verbreitert.
Aber es bleibt ja doch mehr Keller als Wohnung.
Sorry, ich finde Deinen Plan besonders im Außenbereich einfach gruselig
Ich denke mal, dass die Wünsche nicht gerade mit Deiner Idee konform gehen.
Wohn-Essbereich so viel wie möglich im Süden
So verstehe ich es, dass unbedingt ein Südgarten gewünscht ist. Mir war auch so, als wenn ich es irgendwo explizit gelesen habe.
Durch die Grundstücksausrichtung entstehen komplizierte lange Wege, die einen schönen Gartenbereich fast unmöglich machen, sofern man sich eben genau dort den Garten/Terrasse wünscht, wo eigentlich der Eingang hin müsste bzw. die Autos stehen.
Ich hänge mal eine andere Grundrissdiskussion zum Thema Gartenausrichtung an.
 
K a t j a

K a t j a

Ich denke mal, dass die Wünsche nicht gerade mit Deiner Idee konform gehen.
Ja, offenbar hat man die Winzigkeit des Grundstückes im Verhältnis zur Bebauung noch nicht verinnerlicht.
...Wir wollten einen größeren, zusammenhängenden Garten haben. Das hat sich nur auf der Südseite ergeben, weil wir keinen Nordgarten oder schmalen Streifen westlich wollten.
Wenn man die unbebaubare Abstandsfläche an der Straße nicht als Stellflächen und für Wege nutzt, verliert man zwangsweise zusammenhängende Fläche, da alles mit Wegen und Zufahrten an die Nordseite versiegelt wird. Dazu die Außentreppe in den Keller und der eh noch viel zu kleine Fahrradschuppen. Am Ende bleibt eine winzige Fläche für die Südterrasse zwischen Autos und Straße, auf der man im Sommer gebraten wird. Ich wette, da sitzt so gut wie nie jemand, denn es ist laut und viel zu heiß.

Wurde schon was zur maximalen Höhe gesagt?
 
Zuletzt aktualisiert 09.01.2026
Im Forum Grundrissplanung / Grundstücksplanung gibt es 2565 Themen mit insgesamt 88791 Beiträgen


Ähnliche Themen zu Grundrissplanung Einfamilienhaus 180m2 Süd-Zufahrt - Chaos-Grundrisse
Nr.ErgebnisBeiträge
1Grundriss, Hausanordnung EFW 150m2, Keller + Einliegerwohnung - Feedback erwünscht - Seite 567
2Detailplanung Grundriss Einfamilienhaus mit Keller und Einliegerwohnung 28
3Grundriss für Einfamilienhaus mit 200m² mit Einliegerwohnung 75 +Keller 140m² +Garage 56m² 59
4Sinnvolles Wohnkonzept für Keller-Einliegerwohnung 17
5Einfamilienhaus - Bayern 150m² inkl Keller, Terrasse - Kostenaufstellung 11
6Werkplanung Einfamilienhaus 180qm Flachdach mit Keller & Doppelgarage - Seite 2142
7Grundrissplanung Stadtvilla Doppelgarage | Keller | KFW40+ | 205m² - Seite 226
8Erste Planung Einfamilienhaus mit Einliegerwohnung auf 600 m2 14
9Grundrisse Einfamilienhaus mit Einliegerwohnung bitte Tipps und Feedback - Seite 462
10Grundriss Bungalow 160-170qm mit Keller 175
11Grundriss Einfamilienhaus ~165m² plus Keller - Seite 8165
12Erster Grundriss L-Form-Haus (190m²) mit Einlieger (80m²), Keller - Seite 215
13Kosten für ein Einfamilienhaus Neubau, 2 Vollgeschosse, ohne Keller 18
14Einfamilienhaus mit Einliegerwohnung wie viel habt ihr bezahlt? 23
15Grundriss Einfamilienhaus mit Keller 19
16Grundrissplanung Keller, EG + DG 12
17Baukosten 200m² + 30m² Dachterrasse + Keller (inkl. Garage) 20
18Grundriss Einfamilienhaus mit Einliegerwohnung - Seite 1277
19Wann ist ein Hang ein Hang? Keller vs. Bodenplatte - Seite 319
20Grundrissplanung Bungalow mit Keller an leichter Hanglage - Seite 426

Oben