Grundrissplanung Einfamilienhaus 180m2 Süd-Zufahrt - Chaos-Grundrisse

4,70 Stern(e) 11 Votes
Zuletzt aktualisiert 06.01.2026
Sie befinden sich auf der Seite 18 der Diskussion zum Thema: Grundrissplanung Einfamilienhaus 180m2 Süd-Zufahrt - Chaos-Grundrisse
>> Zum 1. Beitrag <<

C

Cubus3f

Jap, wir mussten quasi komplett bei Null anfangen, weil die Einliegerwohnung noch dazu gekommen ist.
Welche Infos brauchst du zum Ursprungsgelände? Es ist sehr eben.

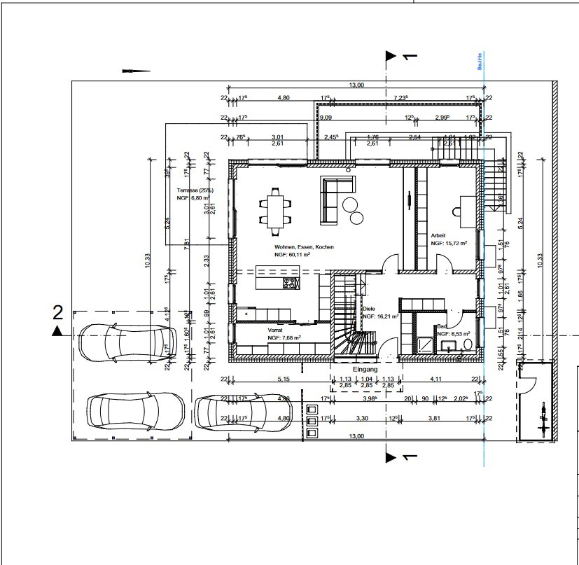
Wie findest du den Grundriss?
 
kbt09

kbt09

Zur Einliegerwohnung ... ich würde da nicht dauerhaft wohnen wollen ... Es ist Westausrichtung und das mit Lichthof. Das wird eine recht dunkle Wohnung, insbesondere auch im Winter.
 
Y

ypg

Puuh, das ist aber eine Transformation…
Ich gestehe: ich bin nicht nur kein Freund, sondern ein Feind von Zugängen zwischen PKWs. Da geht es nicht nur um den Post- und Paketboten, die sich zwischen Fahrzeugen zwängen müssen, sondern auch Bewohner selbst, wenn sie kein Auto nutzen.

Einliegerwohnung ohne Terrasse… wie alt ist denn die Schwiemu? Zahlt sie den Keller, dafür bekommt sie ein dunkles Loch im Keller ohne Terrasse, muss aber eine recht langen Hausumwanderung in Kauf nehmen? Durch das Fenster der Einliegerwohnung kommt durch die Lage zu gut wie nix an Tageslicht rein. Und das, was reinkommt, erreicht die Mitte des Raumes nicht.
Im Süden ist eine Einliegerwohnung im „Souterrain“ besser aufgehoben.
Die Idee mit dem Zugang im Westen nimmt Euch quasi den ganzen Westgarten. Euch bleibt da ja gerade mal ein Meter, um das Haus umrunden zu können.
Ihr solltet Euch Gedanken machen, wie Ihr Eure Außenanlagen begehen, nutzen, pflegen und zugänglich machen wollt. Ich sehe da keine Alltagstauglichkeit.

Ich finde auch den Technikraum recht unlogisch von der Lage: warum nimmt man denn die lange Leitung in Kauf, wenn man doch die vordere Hausecke für den TK nehmen könnte? Spontan würde ich TK sowie Einliegerwohnung nach vorne setzen. Weisst Du, was sich der Planer da gedacht hat, dass man für die Einliegerwohnung einen ewig langen Weg um das Haus rum bewältigen muss?
 
11ant

11ant

Das muß schon eine ziemlich böse Schwiegermutter sein, die man als Kellerkind in einer Katakombe mit Zugang über den Lichtschacht parkt. Der Architekt hat insgesamt ein Faible für Schlauchräume, wie mir scheint - jedenfalls wenig wohnliche Architektur im Sinn. Mir fehlt gerade die Zeit, den Thread herauszusuchen, aber wir hatten hier mal einen Fall, wo der TE den Planer eines Geschoßwohnungsbaues mitbenutzen mußte, weil der Bauträger neben einem oder mehreren Mehrfamilienhaus auch noch wenn ich recht erinnere ein Einzel- und ein Doppelhaus errichtete. So richtig s*xy finde ich hier nichts.
Ich finde auch den Technikraum recht unlogisch von der Lage: warum nimmt man denn die lange Leitung in Kauf, wenn man doch die vordere Hausecke für den TK nehmen könnte?
Der Frage kann ich mich nur anschließen. Wo kommt eigentlich die lange Pause her: hattet Ihr wenig Zeit, oder hat der Planer ewig für diesen Geniestreich gebraucht ?
 
Zuletzt aktualisiert 06.01.2026
Im Forum Grundrissplanung / Grundstücksplanung gibt es 2565 Themen mit insgesamt 88756 Beiträgen


Ähnliche Themen zu Grundrissplanung Einfamilienhaus 180m2 Süd-Zufahrt - Chaos-Grundrisse
Nr.ErgebnisBeiträge
1Grundriss, Hausanordnung EFW 150m2, Keller + Einliegerwohnung - Feedback erwünscht - Seite 567
2Detailplanung Grundriss Einfamilienhaus mit Keller und Einliegerwohnung 28
3Grundriss für Einfamilienhaus mit 200m² mit Einliegerwohnung 75 +Keller 140m² +Garage 56m² 59
4Sinnvolles Wohnkonzept für Keller-Einliegerwohnung 17
5Einfamilienhaus - Bayern 150m² inkl Keller, Terrasse - Kostenaufstellung 11
6Werkplanung Einfamilienhaus 180qm Flachdach mit Keller & Doppelgarage - Seite 2142
7Grundrissplanung EFH mit 4 Kinderzimmer und Einliegerwohnung 17
8Erste Planung Einfamilienhaus mit Einliegerwohnung auf 600 m2 14
9Grundrisse Einfamilienhaus mit Einliegerwohnung bitte Tipps und Feedback - Seite 462
10Erster Grundriss L-Form-Haus (190m²) mit Einlieger (80m²), Keller - Seite 215
11Grundriss-Entwurf Einfamilienhaus in Hanglage, Einliegerwohnung, Doppelgarage - Seite 271
12Grundriss Bungalow 160-170qm mit Keller - Seite 2175
13Kosten für ein Einfamilienhaus Neubau, 2 Vollgeschosse, ohne Keller 18
14Einfamilienhaus mit Einliegerwohnung wie viel habt ihr bezahlt? 23
15Neubau Stadtvilla mit Einliegerwohnung und Doppelgarage - Seite 572
16Baukosten 200m² + 30m² Dachterrasse + Keller (inkl. Garage) 20
17Feedback Vorentwurf Hang KG/KG/EG/DG mit Einliegerwohnung 18
18Grundriss Einfamilienhaus mit Einliegerwohnung - Seite 1277
19Preisdifferenz Bodenplatte zu Keller. Kann man das abschätzen? - Seite 432
20Einfamilienhaus mit Einliegerwohnung - Mit welcher Firma bauen? - Seite 218

Oben