Grundrissplanung Einfamilienhaus 164qm / 2 Vollgeschosse Optimierung

4,30 Stern(e) 6 Votes
Zuletzt aktualisiert 23.11.2025
Sie befinden sich auf der Seite 3 der Diskussion zum Thema: Grundrissplanung Einfamilienhaus 164qm / 2 Vollgeschosse Optimierung
>> Zum 1. Beitrag <<

H

holm667

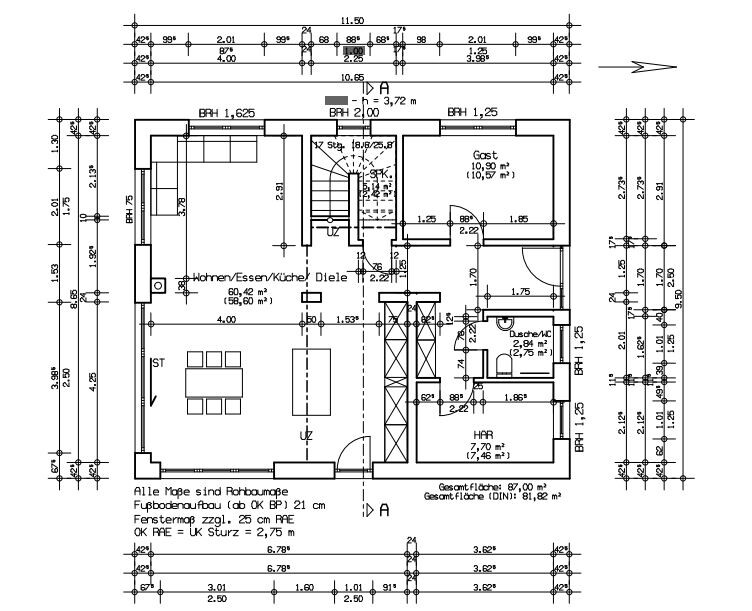
Hallo zusammen,

vielen Dank schon einmal für den zahlreichen Input. Anbei noch einmal die Zeichnungen in größerer Auflösung und ein Ausschnitt der Flurkarte sowie unsere Gedanken zu euren Anmerkungen. HInweis;: Wir haben sowohl Grundstück HNr. 11 als auch 13 gekauft. Diese wurden zusammengelegt.

  • Küche
    • Ist noch nicht final geplant ob Insel oder Tresen der an eine Wand anschließt
  • Arbeitszimmer/Flur
    • War ursprünglich schmaler geplant (ca. 9,5qm). Das war uns aber zu klein, falls man da später auch mal ein Bett stellen möchten, daher haben wir den Flur etwas nach Osten geschoben und die Wand zw. HTR und Küche etwas weiter nach Süden. Ob der Flurbereich jetzt ausreichend groß ist müssen wir uns viell. noch einmal in Realgröße auf dem Boden aufzeichnen.
  • Gäste-WC/Tür
    • Durch die Veränderungen Flur/AZ ist das ziemlich klein geworden. Geplant ist einen ebenerdige Dusche. Der jetzt geplante Größe ist für mich aus dem Grundriss auch nicht richtig ersichtlich. Hier müssen wir aber nochmal mit dem Planer sprechen ob man eventuell noch etwas vom HTR zugeben kann, damit es etwas luftiger wird.
  • Bad
    • Die Durchgänge an Toilette und Dusche kommen mir auch sehr schmal vor. Was ursprünlich anders geplant, wir hatten uns aber eine T-Wand Lösung gewünscht. Da habt ihr ja einige Ideen zum optimieren angebracht
  • Ankleide/Schlafzimmer
    • Das Verschieben der Wand um die Ankleide zu verbreitern finde ich eine gute Idee. Allgemein war noch die Fragen wenn man das Bett so stehen lässt (2m Breite) die 50cm rechts und links zu knapp werden.
  • Offener Wohn-/Koch-/Essbereich
    • Das ist halt persönlicher Geschmack. Wir haben so ein offenes Konzept auch in unserer jetzigen Wohnung und möchten das sehr gerne beibehalten. Falls dadurch die Lautstärke im OG ein Problem wird haben wir uns gedacht, dass man den Treppenaufgang oder die 2 Durchgänge vom Flur zu WZ/Küche noch mit eine Glasgittertür (Industriestyle) schließen könnte um das offene zu erhalten. Gegen die Gerüche helfen hoffentlich Lüftungsanlage und ein Kochfeld mit Direktabzug.
  • Fenster
    • Die Planung ist noch nicht final. Folgende Änderungswünsche haben wir aber schon im gegenwärtigen Entwurf identifiziert
    • -Fenster 2x1,77m in Kinderzimmer beide nach Süden / Kinderzimmer nach Westen und Osten Fenster in 2x1,50m
    • Ankleide auch 1,50m Fensterhöhe
    • Schlafzimmer nach Osten auch 1,50 Fensterhöhe
    • Fenster Wohnraum über Sofa Richtung Süden nur 0,88m hoch
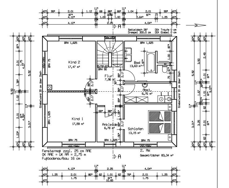
  • Hauswirtschaftsraum im OG
    • Der soll als Abstell und Waschraum dienen. Das Waschbecken hat der Planer eingezeichnet. Das würden wir nicht benötigen. Hier sollen Waschgerät und eventuell mal ein Wäscheständer Platz finden.

Lageplan: zwei benachbarte Grundstücke HsNr. 11 und HsNr. 13, blau umrandet.


Grundriss Obergeschoss: Schlafen, Kind 1, Kind 2, Ankleide, Flur, Bad, Treppe.


Grundriss eines Hauses: Wohnen/Essen/Küche, Diele, Gast, HAR, Bad, Treppe
 
H

holm667

Ein weitere Frage habe ich auch noch. Seht ihr die Chance wenn man der Treppe noch etwas mehr Raum Richtung Ost gibt eine Podesttreppe unterzubringen (lichte Raumhöhe 279cm). Eventuell könnte man ja die Wand zw. Küche und HTR sowie die kleine Wand zw. Treppe und Küche noch etwas nach Osten schieben.
 
M

Myrna_Loy

  • Hauswirtschaftsraum im OG
    • Der soll als Abstell und Waschraum dienen. Das Waschbecken hat der Planer eingezeichnet. Das würden wir nicht benötigen. Hier sollen Waschgerät und eventuell mal ein Wäscheständer Platz finden.
Also eine Rumpelkammer. Ich würde eher diesen Schlauch aufteilen auf einen wandfüllenden Wandschrank im Bad, etwas mehr Breite im Schlafzimmer und einen Wandschrank vom Flur aus. Dafür das Schlafzimmer einkürzen und den Platz der Ankleide zuschlagen.

Dachgeschoss Grundriss: Flur, Schlafen, Kind 1, Kind 2, Bad; Wandschränke und Waschmaschine.
 
gutentag

gutentag

Ein weitere Frage habe ich auch noch. Seht ihr die Chance wenn man der Treppe noch etwas mehr Raum Richtung Ost gibt eine Podesttreppe unterzubringen (lichte Raumhöhe 279cm). Eventuell könnte man ja die Wand zw. Küche und HTR sowie die kleine Wand zw. Treppe und Küche noch etwas nach Osten schieben.
Nein das geht nicht. Das Problem ist die Tür im OG ins Bad.
 
K a t j a

K a t j a

Ein weitere Frage habe ich auch noch. Seht ihr die Chance wenn man der Treppe noch etwas mehr Raum Richtung Ost gibt eine Podesttreppe unterzubringen (lichte Raumhöhe 279cm). Eventuell könnte man ja die Wand zw. Küche und HTR sowie die kleine Wand zw. Treppe und Küche noch etwas nach Osten schieben.
Das wird Murks. Passt ja auch oben nicht und zerhackt unten alles. Wenn es Dir so wichtig ist, dann wäre ein Erker für die Treppe vermutlich die einfachste Lösung. Kostet natürlich. Oder man plan komplett neu da ...

Wenn Ihr beide Grundstücke habt, wieso ist das Haus dann so platziert? Der Durchschnitts-Bauherr bevorzugt die Westterrasse - Osten ist eher unbeliebt.
 
H

holm667

Nein das geht nicht. Das Problem ist die Tür im OG ins Bad.
Und wenn man den Abstellraum wie vorgeschlagen weglassen würde?
Das wird Murks. Passt ja auch oben nicht und zerhackt unten alles. Wenn es Dir so wichtig ist, dann wäre ein Erker für die Treppe vermutlich die einfachste Lösung. Kostet natürlich. Oder man plan komplett neu da ...

Wenn Ihr beide Grundstücke habt, wieso ist das Haus dann so platziert? Der Durchschnitts-Bauherr bevorzugt die Westterrasse - Osten ist eher unbeliebt.
War nur eine Idee. Ich habe keine richtige Vorstellung wie weit eine Podesttreppe noch in den Wohnbereich ragen würde. Wenn oben der Hauswirtschaftsraum entfallen und Schlafzimmer und Bad zugeschlagen würde, könnte man die Tür viell. noch schieben. Die halbgewendelte Treppe ist für uns ok. Podesttreppe wäre halt besser begehbar. Einen Erker wollen wir außen aus Kosten- und Optikgründen nicht.

Es ist ein Eckgrundstück und an West und Nordseite führt eine Strasse vorbei. Wir haben das Haus daher so angeordnet, dass es sich zum Grundstücksinneren Süden und Osten öffnet. West und Nordseite sollen eher "blickgeschützt" sein. Im Osten soll auch noch eine Doppelgarage platziert werden.
Geplant ist eine Eckterrasse um entlang der bodentiefen Fenster an Ost und Südseite. So hätte man Abends dort ja auch noch Sonne und Licht von Westen.

Anbei auch noch einmal ein Auszug aus Google-Maps. In der Flurkarte kommen die Strassen und Nachbarhäuser nicht klar hervor glaube ich.

Luftbild eines unbebauten Grundstücks mit Baumbestand und blauem Umriss neben einer Straße.
 
Zuletzt bearbeitet:
Zuletzt aktualisiert 23.11.2025
Im Forum Grundrissplanung / Grundstücksplanung gibt es 2535 Themen mit insgesamt 87992 Beiträgen


Ähnliche Themen zu Grundrissplanung Einfamilienhaus 164qm / 2 Vollgeschosse Optimierung
Nr.ErgebnisBeiträge
1Grundrissplanung: Badezimmer Dusche 47
2Grundriss Schlafzimmer, Ankleide und Bad en Suite - Seite 536
3Idee Schlafzimmer - Bett / Schrank Anordnung 32
4Pfiffige Schlafzimmer Idee mit Ankleide gesucht 19
5Grundriss Bungalow 150qm geschlossene Küche, überdachte Terrasse 40
6Grundrissplanung - Wie Schlafzimmers & Ankleide anordnen? 11
7Erstes Konzept, Grundriss Einfamilienhaus / Meinungen - Seite 322
8Grundriss Schlafzimmer mit Bad und Ankleide 62
9Walk-In Dusche, Spritzwasser, brauche ich eine Tür? 35
10Ankleide/Schlafzimmer Problem - Grundrissdiskussion 25
11Grundriss Einfamilienhaus ohne Keller/Schlafzimmer und Bad im EG - Seite 427
12Einrichtung Ankleidezimmer Tür zum Badezimmer - Seite 334
13Kinderzimmer und Schlafzimmer - Welche Größe ist zu empfehlen? - Seite 256
14Verbindung Schlafzimmer / Ankleidezimmer / Bad - Seite 316
15Extra-Bad vom Schlafzimmer oder doch Abstellraum? - Seite 329
16Gestaltung Schlafzimmer 35
17Lichte Raumhöhe und Fensterhöhe. Standard des Anbieters 262.50cm - Seite 226
18Wohnen/Essen/Küche: Wie wohnt ihr oder werdet ihr wohnen? - Seite 552
19Heizung in Küche "notwendig"? - Seite 535
20Grundriss Zugang von Küche in Speis / Abstellraum - Seite 229

Oben