ᐅ Grundrissoptimierung Stadtvilla ca. 180qm mit Keller in Berlin
Erstellt am: 18.06.20 00:15
Hallo zusammen,
nach viel Mitlesen und Anregungen & Ideen sammeln möchte ich unser Bauvorhaben vorstellen und erhoffe mir Hinweise auf Fallstricke + Anregungen, wo noch optimiert werden sollte oder Änderungen sinnvoll sind.
Bebauungsplan/Einschränkungen
Größe des Grundstücks: 710qm, 19m Breit, ca. 37m Lang
Hang: Komplett eben
Grundflächenzahl: 0,2
Geschossflächenzahl: 0,4
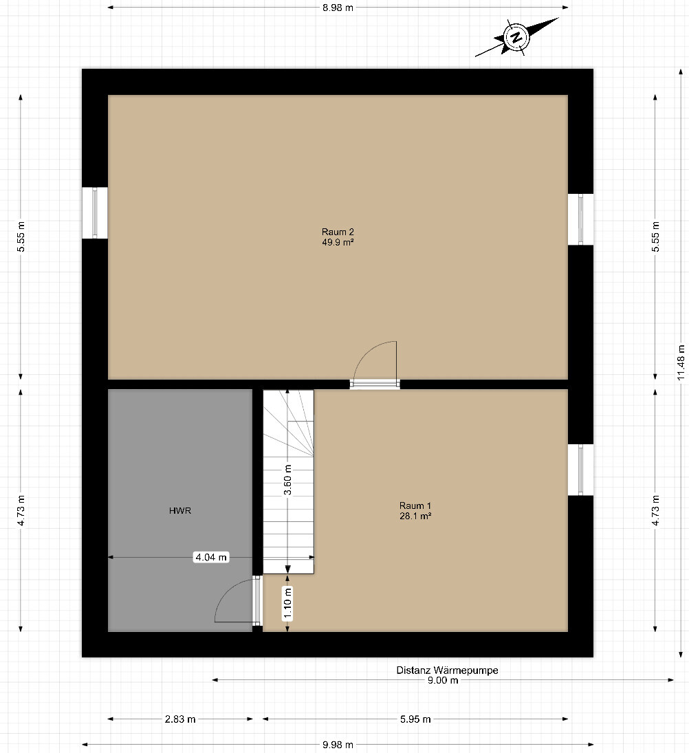
Baufenster, Baulinie und -grenze: Fluchtlinien 5m von der Straße und 5m Rechte Grundstücksseite. Wegen Sackgasse muss die Auffahrt links neben das Haus, es bleiben also für Haus + Auffahrt 14m Grundstücksbreite. Deswegen hat der Grundriss eine Breite von ca. 10m.
Randbebauung: Nein
Anzahl Stellplatz: Keine Vorgabe
Geschossigkeit: bis zu 2
Dachform: -
Stilrichtung: §34 - In der Straße gibt es nahezu alle Bauformen
Ausrichtung: -
Maximale Höhen/Begrenzungen: 2 Geschossig, offene Bebauung, ansonsten §34 Baugesetzbuch
weitere Vorgaben: -
Anforderungen der Bauherren
Stilrichtung, Dachform, Gebäudetyp: Stadtvilla verklinkert, Fenster/Hauptausrichtung der Räume nach hinten zum Garten
Keller, Geschosse: Keller + 2 Geschosse
Anzahl der Personen, Alter: 2 Große 2 Kleine (1 + 4 Jahre)
Raumbedarf im EG: Wohnzimmer, Küche, Gästezimmer, Gäste/Ausweich-Bad. OG: Schlafzimmer, 2 Kinderzimmer
Büro: Aktuell teilw. Home Office, könnte aber auch 100% werden
Schlafgäste pro Jahr: >50 Nächte
offene Küche, Kochinsel: Küche halboffen
Anzahl Essplätze: 8
Kamin: Nein
Garage, Carport: Auffahrt mit 1-2 Stellplätzen reicht.
Hausentwurf
Von wem stammt die Planung: Mischung aus Planer (Erstentwurf) und DIY viele Anpassungen
Uns gefällt besonders: Fenster im EG und OG zum Garten (nach hinten) bodentief, offene Küche, kurze Wege Küche<->Keller und Wohnzimmer<->OG
Was gefällt nicht: Großer Flur im OG - Ist der Richtung der Treppe im EG und der ungünstigen Hausform durch das Grundstück geschuldet.
Angebot GU: 410.000 + ca. 120.000 Nebenkosten/Einrichtung/Bodenbeläge/Malern/Abriss Altbestand (Da werden wir viel selbst machen und haben keine abgehobenen Ansprüche)
Persönliches Preislimit fürs Haus, inkl Ausstattung: 550.000
favorisierte Heiztechnik: Luft-Wasser Wärmepumpe (Gas zu weit entfernt, Bohrung ist unwirtschaftlich. Evtl. Ringgrabenkollektor wenn der Platz nach der Heizlastberechnung ausreicht, im Garten sind aber einige Bäume und Anlagen die nicht entfernt werden können/sollen)
Wenn Ihr verzichten müsst, auf welche Details/Ausbauten
-könnt Ihr verzichten: Zusätzliches WC im OG, fehlt aber in unserer Wohnung aktuell tatsächlich weil oft Gäste da sind.
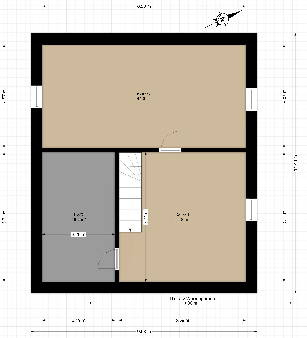
-könnt Ihr nicht verzichten: Große Fenster zum Garten/Terrasse & Keller (Auf dem Grundstück steht noch ein (viel zu kleines) Haus mit Keller, Bei Bau ohne Keller müsste man fast genausoviel Erde tauschen). Kellerausbau machen wir erstmal nicht (nur Fliesen in Hauswirtschaftsraum und vorderem Keller geplant)
Warum ist der Entwurf so geworden, wie er jetzt ist?
Gemisch aus Standardentwurf und vielen Anpassungen. Das Grundstück gibt die Hausform relativ genau vor, vergrößert werden kann nur nach Hinten.
Die grundlegende Frage zum Grundriss in 130 Zeichen zusammengefasst:
Funktioniert der Grundriss aus Eurer Sicht so? Sollte die Treppe doch gedreht werden (Mit dem Nachteil, dass der Aufgang zum OG durch den "Dreckbereich" geht)?
Haben wir irgendetwas komplett übersehen?
Ich Danke euch vielmals!



nach viel Mitlesen und Anregungen & Ideen sammeln möchte ich unser Bauvorhaben vorstellen und erhoffe mir Hinweise auf Fallstricke + Anregungen, wo noch optimiert werden sollte oder Änderungen sinnvoll sind.
Bebauungsplan/Einschränkungen
Größe des Grundstücks: 710qm, 19m Breit, ca. 37m Lang
Hang: Komplett eben
Grundflächenzahl: 0,2
Geschossflächenzahl: 0,4
Baufenster, Baulinie und -grenze: Fluchtlinien 5m von der Straße und 5m Rechte Grundstücksseite. Wegen Sackgasse muss die Auffahrt links neben das Haus, es bleiben also für Haus + Auffahrt 14m Grundstücksbreite. Deswegen hat der Grundriss eine Breite von ca. 10m.
Randbebauung: Nein
Anzahl Stellplatz: Keine Vorgabe
Geschossigkeit: bis zu 2
Dachform: -
Stilrichtung: §34 - In der Straße gibt es nahezu alle Bauformen
Ausrichtung: -
Maximale Höhen/Begrenzungen: 2 Geschossig, offene Bebauung, ansonsten §34 Baugesetzbuch
weitere Vorgaben: -
Anforderungen der Bauherren
Stilrichtung, Dachform, Gebäudetyp: Stadtvilla verklinkert, Fenster/Hauptausrichtung der Räume nach hinten zum Garten
Keller, Geschosse: Keller + 2 Geschosse
Anzahl der Personen, Alter: 2 Große 2 Kleine (1 + 4 Jahre)
Raumbedarf im EG: Wohnzimmer, Küche, Gästezimmer, Gäste/Ausweich-Bad. OG: Schlafzimmer, 2 Kinderzimmer
Büro: Aktuell teilw. Home Office, könnte aber auch 100% werden
Schlafgäste pro Jahr: >50 Nächte
offene Küche, Kochinsel: Küche halboffen
Anzahl Essplätze: 8
Kamin: Nein
Garage, Carport: Auffahrt mit 1-2 Stellplätzen reicht.
Hausentwurf
Von wem stammt die Planung: Mischung aus Planer (Erstentwurf) und DIY viele Anpassungen
Uns gefällt besonders: Fenster im EG und OG zum Garten (nach hinten) bodentief, offene Küche, kurze Wege Küche<->Keller und Wohnzimmer<->OG
Was gefällt nicht: Großer Flur im OG - Ist der Richtung der Treppe im EG und der ungünstigen Hausform durch das Grundstück geschuldet.
Angebot GU: 410.000 + ca. 120.000 Nebenkosten/Einrichtung/Bodenbeläge/Malern/Abriss Altbestand (Da werden wir viel selbst machen und haben keine abgehobenen Ansprüche)
Persönliches Preislimit fürs Haus, inkl Ausstattung: 550.000
favorisierte Heiztechnik: Luft-Wasser Wärmepumpe (Gas zu weit entfernt, Bohrung ist unwirtschaftlich. Evtl. Ringgrabenkollektor wenn der Platz nach der Heizlastberechnung ausreicht, im Garten sind aber einige Bäume und Anlagen die nicht entfernt werden können/sollen)
Wenn Ihr verzichten müsst, auf welche Details/Ausbauten
-könnt Ihr verzichten: Zusätzliches WC im OG, fehlt aber in unserer Wohnung aktuell tatsächlich weil oft Gäste da sind.
-könnt Ihr nicht verzichten: Große Fenster zum Garten/Terrasse & Keller (Auf dem Grundstück steht noch ein (viel zu kleines) Haus mit Keller, Bei Bau ohne Keller müsste man fast genausoviel Erde tauschen). Kellerausbau machen wir erstmal nicht (nur Fliesen in Hauswirtschaftsraum und vorderem Keller geplant)
Warum ist der Entwurf so geworden, wie er jetzt ist?
Gemisch aus Standardentwurf und vielen Anpassungen. Das Grundstück gibt die Hausform relativ genau vor, vergrößert werden kann nur nach Hinten.
Die grundlegende Frage zum Grundriss in 130 Zeichen zusammengefasst:
Funktioniert der Grundriss aus Eurer Sicht so? Sollte die Treppe doch gedreht werden (Mit dem Nachteil, dass der Aufgang zum OG durch den "Dreckbereich" geht)?
Haben wir irgendetwas komplett übersehen?
Ich Danke euch vielmals!
S
saralina8718.06.20 07:12Hallo
Die Küche soll so breit sein? 1,20m reichen eigentlich zwischen den beiden Zeilen - wäre eine Überlegung ob man stattdessen nicht lieber eine größere Garderobe oder eine Speis hinter der Treppe gestaltet.
Im OG ist irgendwie sehr viel Flur... Reicht euch denn ein Kleiderschrank? Und braucht ihr oben wirklich zwei Toiletten? Ich muss zugeben, das OG gefällt mir so gar nicht.
Die Küche soll so breit sein? 1,20m reichen eigentlich zwischen den beiden Zeilen - wäre eine Überlegung ob man stattdessen nicht lieber eine größere Garderobe oder eine Speis hinter der Treppe gestaltet.
Im OG ist irgendwie sehr viel Flur... Reicht euch denn ein Kleiderschrank? Und braucht ihr oben wirklich zwei Toiletten? Ich muss zugeben, das OG gefällt mir so gar nicht.
habt ihr euch mal die Antrittsstufen eurer Treppe angesehen, wie soll man denn so auf die Treppe treten, kann mir nicht vorstellen, dass das funktioniert. Wo soll denn eure ganze Kleidung/Bettwäsche aufbewahrt werden, ins Schlafzimmer passt nur ein 1m Schrank. Ich würde das Haus wenigstens um 50cm verbreitern, finde die Zimmer zu schlauchig.
LG
Sabine
LG
Sabine
P
Pinky030118.06.20 08:24Braucht ihr denn die ganzen Zimmer, wenn ihr mit Keller baut? Also Gästezimmer und Büro jeweils extra? 3 Toiletten?
Wenn im Keller gewaschen werden soll, würde ich versuchen, einen Wäscheschacht einzuplanen, dass man die Wäsche wenigstens nur in eine Richtung transportieren muss.
@Curly hat ja schon die Treppe erwähnt. Finde auch den Abgang in den Keller etwas eng, nur 80cm als Durchgang? Stelle es mir auch schwer vor, da mit größeren Dingen zu rangieren.
Wenn im Keller gewaschen werden soll, würde ich versuchen, einen Wäscheschacht einzuplanen, dass man die Wäsche wenigstens nur in eine Richtung transportieren muss.
@Curly hat ja schon die Treppe erwähnt. Finde auch den Abgang in den Keller etwas eng, nur 80cm als Durchgang? Stelle es mir auch schwer vor, da mit größeren Dingen zu rangieren.
Vielen Dank für Eure Anregungen Kritik/Anregungen!
Wir haben uns die sehr genau angeschaut und das zum Anlass genommen, nochmal nach einer anderen Lösung mit der Treppe zu suchen.
@saralina87 Das mit der Küche ist absolut richtig, wobei wir jetzt in unserer Wohnung 1,60m zwischen den Schränken haben und ich das schon eine gute Breite finde. Ich habe aber keine Lösung gefunden, noch ein Zimmer/Kammer zwischen Küche und Treppe zu quetschen, und wenn die Treppe weiter nach Links rutscht hat das unschöne Auswirkungen im OG, deswegen wird die Küche jetzt noch breiter (Damit die Räume im OG auch größer werden).
@Curly Gut das mit 1m Schrank ist etwas übertrieben, der Treppenabgang hatte auch nur oben die 80, zum Keller waren 110cm geplant - wie auch immer, jetzt ist es besser gelöst denke ich!
Haus verbreitern wäre teuer, da dann die Kellerböschung nicht mehr ohne Verbau gemacht werden kann (Nachbar-Garage auf der Grenze) und die knapp 4m Auffahrts-Breite / Abstand zum Nachbarn die wir mit dem 10m breiten Haus haben würden wir gerne behalten.
@Pinky0301 Ja, über die Anzahl der Zimmer haben wir uns auch schon Gedanken gemacht...aber falls Kind #3 noch passieren sollte wäre die Wohnsituation sonst nicht mehr so, wie wir sie uns vorgestellt haben (So können wir dann einfach nur das Gästezimmer in den Keller verlagern).
Vielen Dank euch allen und vielleicht hat ja noch jemand ein paar Anmerkungen zu den neuen Grundriss Skizzen!



Wir haben uns die sehr genau angeschaut und das zum Anlass genommen, nochmal nach einer anderen Lösung mit der Treppe zu suchen.
@saralina87 Das mit der Küche ist absolut richtig, wobei wir jetzt in unserer Wohnung 1,60m zwischen den Schränken haben und ich das schon eine gute Breite finde. Ich habe aber keine Lösung gefunden, noch ein Zimmer/Kammer zwischen Küche und Treppe zu quetschen, und wenn die Treppe weiter nach Links rutscht hat das unschöne Auswirkungen im OG, deswegen wird die Küche jetzt noch breiter (Damit die Räume im OG auch größer werden).
@Curly Gut das mit 1m Schrank ist etwas übertrieben, der Treppenabgang hatte auch nur oben die 80, zum Keller waren 110cm geplant - wie auch immer, jetzt ist es besser gelöst denke ich!
Haus verbreitern wäre teuer, da dann die Kellerböschung nicht mehr ohne Verbau gemacht werden kann (Nachbar-Garage auf der Grenze) und die knapp 4m Auffahrts-Breite / Abstand zum Nachbarn die wir mit dem 10m breiten Haus haben würden wir gerne behalten.
@Pinky0301 Ja, über die Anzahl der Zimmer haben wir uns auch schon Gedanken gemacht...aber falls Kind #3 noch passieren sollte wäre die Wohnsituation sonst nicht mehr so, wie wir sie uns vorgestellt haben (So können wir dann einfach nur das Gästezimmer in den Keller verlagern).
Vielen Dank euch allen und vielleicht hat ja noch jemand ein paar Anmerkungen zu den neuen Grundriss Skizzen!
Ähnliche Themen