Hallo werte Forumgemeinde,
da ich schon seit einiger Zeit stiller Mitleser bin und wir gerade in der Planung sind, würde ich euch gerne unseren derzeitigen Grundriss zeigen und hoffe auf ein Feedback!
Das Grundstück ist riesig und hat eine Größe von 50 x 75m. Die Straße, mit etwas Verkehr, befindet sich im Süden. Von der Straße weg hat das Grundstück ein Gefälle (auf 15m ca. 3m Gefälle) Richtung Norden, dann wird es wieder gerade. Links und rechts vom Grundstück stehen bereits Häuser. Hinter dem Gründland befinden sich Ackerfelder.
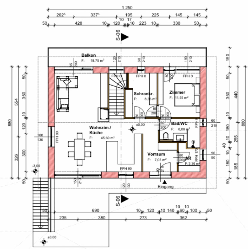
Der derzeitige Plan hat eine Gesamtwohnfläche von ca.170m². Da sich die Straße im Süden befindet, wollen wir im Süden einen kleinen Garten und den größeren Richtung Norden hinaus, da sich da auch das Grünland befindet.
Die Idee bei dem Grundriss war es vom Wohnbereich in beiden Gärnten zu gelangen, damit alles quasi zu einer Einheit wird. Uns war wichtig, dass es einen offenen Wohn-, Essbereich gibt und auf der selben Etage der Elternbereich befindet. Somit haben die Kinder (1-2 geplant) im Untergeschoss ihren eigenen Bereich - am Anfang nicht ideal aber später werden vermutlich alle glücklich darüber sein 😉.
Weiters wollten wir unbedingt einen direkten Zugang vom Schlafzimmer ins WC.
Mit der Anordnung der Fenster bin ich noch nicht ganz zufrieden (zwecks Fassadenansicht), aber ich wüsste nicht was man ändern könnte.
Zwecks Stauraum wäre noch ein Dachboden angedacht.
Das Bad im Untergeschoss bekommt noch ein "Kellerfenster" und eine Badewanne.
Der Eingang im Grundriss befindet sich im Süden.
Die tragenden Wände im Untergeschoss sind noch nicht eingezeichnet.
Plan wäre es auch belagsfertig nicht über 400k zu kommen... machbar?
Ich freu mich schon auf eure Meinungen und hoffe auf hilfreiche Tipps!
da ich schon seit einiger Zeit stiller Mitleser bin und wir gerade in der Planung sind, würde ich euch gerne unseren derzeitigen Grundriss zeigen und hoffe auf ein Feedback!
Das Grundstück ist riesig und hat eine Größe von 50 x 75m. Die Straße, mit etwas Verkehr, befindet sich im Süden. Von der Straße weg hat das Grundstück ein Gefälle (auf 15m ca. 3m Gefälle) Richtung Norden, dann wird es wieder gerade. Links und rechts vom Grundstück stehen bereits Häuser. Hinter dem Gründland befinden sich Ackerfelder.
Der derzeitige Plan hat eine Gesamtwohnfläche von ca.170m². Da sich die Straße im Süden befindet, wollen wir im Süden einen kleinen Garten und den größeren Richtung Norden hinaus, da sich da auch das Grünland befindet.
Die Idee bei dem Grundriss war es vom Wohnbereich in beiden Gärnten zu gelangen, damit alles quasi zu einer Einheit wird. Uns war wichtig, dass es einen offenen Wohn-, Essbereich gibt und auf der selben Etage der Elternbereich befindet. Somit haben die Kinder (1-2 geplant) im Untergeschoss ihren eigenen Bereich - am Anfang nicht ideal aber später werden vermutlich alle glücklich darüber sein 😉.
Weiters wollten wir unbedingt einen direkten Zugang vom Schlafzimmer ins WC.
Mit der Anordnung der Fenster bin ich noch nicht ganz zufrieden (zwecks Fassadenansicht), aber ich wüsste nicht was man ändern könnte.
Zwecks Stauraum wäre noch ein Dachboden angedacht.
Das Bad im Untergeschoss bekommt noch ein "Kellerfenster" und eine Badewanne.
Der Eingang im Grundriss befindet sich im Süden.
Die tragenden Wände im Untergeschoss sind noch nicht eingezeichnet.
Plan wäre es auch belagsfertig nicht über 400k zu kommen... machbar?
Ich freu mich schon auf eure Meinungen und hoffe auf hilfreiche Tipps!
Kannst du bitte den Fragebogen ausfüllen.
Ich würde die Stockwerke tauschen.
Allraum nach unten zum Garten gerade mit Kindern
Schlafen nach oben für die ganze Familie.
Was mir beim jetzigen Grundriss auffällt. Wollt ihr wirklich das Gäste euer privates Bad nutzen?
Schrankraum viel Fläche wenig Stellraum. Würde den Elternteil, egal ob unten oder oben, durch die Ankleide erschließen. Auf der einen Seite geht es ins Schlafzimmer auf der anderen ins Bad.
Plant nicht nur die Treppe in der Außenanlage. Schubkarren, Rasenmäher, Grüngut, Sand, Erde etc muss immer wieder von unten nach oben
Ich würde die Stockwerke tauschen.
Allraum nach unten zum Garten gerade mit Kindern
Schlafen nach oben für die ganze Familie.
Was mir beim jetzigen Grundriss auffällt. Wollt ihr wirklich das Gäste euer privates Bad nutzen?
Schrankraum viel Fläche wenig Stellraum. Würde den Elternteil, egal ob unten oder oben, durch die Ankleide erschließen. Auf der einen Seite geht es ins Schlafzimmer auf der anderen ins Bad.
Plant nicht nur die Treppe in der Außenanlage. Schubkarren, Rasenmäher, Grüngut, Sand, Erde etc muss immer wieder von unten nach oben
Ergänzung!
Bebauungsplan/Einschränkungen
Größe des Grundstücks 50x70m
Hang: ja aber klein
Anzahl Stellplatz 2
Geschossigkeit UG, EG
Dachform Satteldach
Stilrichtung einfach modern
Anforderungen der Bauherren
Stilrichtung, Dachform, Gebäudetyp: einfache Bauweise
Keller, Geschosse: UG (Keller) EG
Anzahl der Personen, Eltern 26,26) 2 Kinder geplant
Büro: nicht benötigt
Schlafgäste pro Jahr: eher wenige
offene oder geschlossene Architektur: offen
konservativ oder moderne Bauweise: modern
offene Küche, Kochinsel offen
Anzahl Essplätze 6
Kamin ja
Musik/Stereowand nein
Balkon, Dachterrasse: Balkon
Carport
Hausentwurf
Von wem stammt die Planung:
-Do-it-Yourself
Was gefällt besonders?
Das beide Gärten genutzt werden können vom Wohnzimmer aus!
Was gefällt nicht? Die Anordnung der Fenster (Fassadenansicht)
Preisschätzung lt Architekt/Planer: gibt es keine
Persönliches Preislimit fürs Haus, inkl Ausstattung: 400k
favorisierte Heiztechnik: Erdwärme
Bebauungsplan/Einschränkungen
Größe des Grundstücks 50x70m
Hang: ja aber klein
Anzahl Stellplatz 2
Geschossigkeit UG, EG
Dachform Satteldach
Stilrichtung einfach modern
Anforderungen der Bauherren
Stilrichtung, Dachform, Gebäudetyp: einfache Bauweise
Keller, Geschosse: UG (Keller) EG
Anzahl der Personen, Eltern 26,26) 2 Kinder geplant
Büro: nicht benötigt
Schlafgäste pro Jahr: eher wenige
offene oder geschlossene Architektur: offen
konservativ oder moderne Bauweise: modern
offene Küche, Kochinsel offen
Anzahl Essplätze 6
Kamin ja
Musik/Stereowand nein
Balkon, Dachterrasse: Balkon
Carport
Hausentwurf
Von wem stammt die Planung:
-Do-it-Yourself
Was gefällt besonders?
Das beide Gärten genutzt werden können vom Wohnzimmer aus!
Was gefällt nicht? Die Anordnung der Fenster (Fassadenansicht)
Preisschätzung lt Architekt/Planer: gibt es keine
Persönliches Preislimit fürs Haus, inkl Ausstattung: 400k
favorisierte Heiztechnik: Erdwärme
Hallo Haydee
Danke für deine Inputs!
Zum Thema oben schlafen unten wohnen: das war natürlich auch angedacht, jedoch hätten wir dann überhaupt keine südlichen Fenster und die meisten im Norden... weiters ist bereits links und rechts schon vor Jahren gebaut worden und die haben Keller-EG-OG. Und wenn wir unten wohnen würden, würde das glaube ich sehr erdrückend wirken wenn ich aus dem Fenster schaue und ein 3. Stöckiges Haus sehe
und zum Thema Gäste ins eigene Bad: wir hatten auch angedacht statt dem Abstellraum ein separates Klo zu machen aber das erschien uns auch unnötig, da würden wir lieber unser „Bad en Suite“ dafür „opfern“
und das mit der Außenanlage geb ich dir recht und kommt in Planung danke!
Danke für deine Inputs!
Zum Thema oben schlafen unten wohnen: das war natürlich auch angedacht, jedoch hätten wir dann überhaupt keine südlichen Fenster und die meisten im Norden... weiters ist bereits links und rechts schon vor Jahren gebaut worden und die haben Keller-EG-OG. Und wenn wir unten wohnen würden, würde das glaube ich sehr erdrückend wirken wenn ich aus dem Fenster schaue und ein 3. Stöckiges Haus sehe
und zum Thema Gäste ins eigene Bad: wir hatten auch angedacht statt dem Abstellraum ein separates Klo zu machen aber das erschien uns auch unnötig, da würden wir lieber unser „Bad en Suite“ dafür „opfern“
und das mit der Außenanlage geb ich dir recht und kommt in Planung danke!
Nitram94 schrieb:
Die tragenden Wände im Untergeschoss sind noch nicht eingezeichnet.Ich sehe überhaupt keinen Plan, kein Fitzelchen.Nitram94 schrieb:
Das Grundstück ist riesig und hat eine Größe von 50 x 75m. Die Straße, mit etwas Verkehr, befindet sich im Süden. Von der Straße weg hat das Grundstück ein Gefälle (auf 15m ca. 3m Gefälle) Richtung Norden, dann wird es wieder gerade. Links und rechts vom Grundstück stehen bereits Häuser. Hinter dem Gründland befinden sich Ackerfelder.Ohne Bilder bin ich unschlüssig, ob Du nun einen Außenbereich mit Baugrundstücken in der Nachbarschaft beschreibst, oder selbst ein Baugrundstück. Der Größe nach sollte Dein Haus jedenfalls mit dem Teil der Länderei bezahlt sein, die Du selber nicht brauchst.https://www.instagram.com/11antgmxde/
https://www.linkedin.com/company/bauen-jetzt/
Ähnliche Themen