ᐅ Gnadenlose Kritik gesucht! Grundriss 160 qm
Erstellt am: 30.01.19 01:33
J
Jule-250130.01.19 01:33Hallo zusammen!
Bei unserer Grundrissgestaltung drehen wir uns im Kreis!
Mir wird langsam schwindelig- der Nachwuchs wird größer und freut sich eher auf ein Karussell im Garten... Obwohl unsere Vorstellungen ziemlich konkret sind- finden wir nicht die optimale Lösung.
Wir freuen uns deshalb über euer Feedback im Allgemeinen und vielleicht finden sich ein paar Lösungsvorschläge auf unsere u.s. Fragen
Bebauungsplan/Einschränkungen
Größe des Grundstücks: 670 m2
Hang: ja, maximaler Höhenunterschied 3,5m
Grundflächenzahl: 0,4
Geschossflächenzahl: 0,5
Anzahl Stellplatz: 2
Geschossigkeit: 1,5
Dachform: Satteldach 30-40 Grad
Stilrichtung: modern
Ausrichtung: frei
Maximale Höhen/Begrenzungen 10,5m
Anforderungen der Bauherren
Stilrichtung, Dachform, Gebäudetyp: modernes Satteldach
Keller, Geschosse: Keller plus 1,5 Geschosse
Anzahl der Personen, Alter: Er 38, Sie 37, Er 1, eine weitere Sie geplant
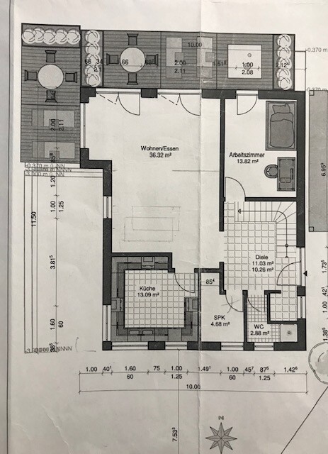
Raumbedarf im EG: Küche (halboffen oder um Ecke), Abstellkammer, kleines Duschbad, Garderobennische, Gästezimmer (min 12qm), Wohn/Esszimmer (min 40 qm)
Raumbedarf im OG: 2 Kinderzimmer min 15 qm, Elternschlafzimmer mit Ankleide, wenn möglich mit Verbindung zum Bad, Schlafzimmer durch Flur oder Bad von Kinderzimmern getrennt
Büro: Als Familienzimmer / Gästezimmer
Schlafgäste pro Jahr: Gästezimmer ist ein musst have J
offene oder geschlossene Architektur: eher geschlossen (Küche aber mit Schiebetür/ oder durch halbe Wand getrennt?), Treppenhaus auf jeden Fall abgetrennt vom Wohnraum
konservativ oder moderne Bauweise: klassisch aber mit modernen Elementen (Fenster? Lichtbänder, flache Dachneigung kein zu großer Dachüberstand, Farbgestaltung grau/weiß)
offene Küche, Kochinsel: halboffen, eine kleine Theke ist musst have
Anzahl Essplätze: Tisch für 6 Personen dauerhaft, bei Feierlichkeiten sind wir 17 J
Kamin: ja
Balkon, Dachterrasse: in Richtung Norden wegen tollem Ausblick
Garage, Carport: Carport mit 2 Stellplätzen
weitere Wünsche/Besonderheiten
- Überdachung der Haustür (L Form), Haustür mit schmalen Seitenteil,
- Podesttreppe mit Setzstufen,
- Der Eingang soll auf der Ostseite sein
- Die größten Fensterflächen (bodentief, ggf Schiebetür) im EG stellen wir uns an der Nord-West-Ecke des Hauses vor (trotz Sonneneinstrahlung, wegen der Aussicht)
Hausentwurf
Von wem stammt die Planung: Planer eines Bauunternehmens
Was gefällt besonders? Warum?: Alle Räume wurden im Grundriss untergebracht
Was gefällt nicht? Warum?:
Im EG : Die Lösung mit Speisekammer, Gästebad und Garderobennische.
Außerdem ist uns das Wohnzimmer ist etwas zu klein
Im OG : Denken wir das Schlaf- und Ankleide etwas zu groß geraten sind und dafür das Bad etwas zu klein (wir wünschen uns eine T-Lösung)
Wenn Ihr verzichten müsst, auf welche Details/Ausbauten
-könnt Ihr verzichten: Erker, Podesttreppe
-könnt Ihr nicht verzichten: Gästebad mit Dusche im EG und Gästezimmer im Erdgeschoss
Warum ist der Entwurf so geworden, wie er jetzt ist?
Wir haben aus vielen Entwürfen (Fertighäuser im Internet) gemischt
Entsprechende/Welche Wünsche wurden vom Architekten umgesetzt?
Eingang von der Ostseite, große Fenster in Richtung Norden bzw NW, Alle Räume wurden im Grundriss untergebracht
Was ist die wichtigste/grundlegende Frage zum Grundriss in 130 Zeichen zusammengefasst?
Ist die Belichtung im OG ausreichend? Wären eurer Meinung nach „Schießscharten“ möglich? Oder Dachflächenfenster nötig? Ist das Badezimmer für eine T-Lösung zu klein? Findet ihr den Schlaf Ankleidebereich wesentlich zu groß?
Vor dem Haus hätten wir gerne eine kleine Terrasse um auch mal etwas Sonne zu tanken. Denkt Ihr ein Ausgang aus der Küche macht Sinn bzw. wäre umsetzbar? (Der Hang ist nicht so steil wie auf dem Bild angenommen)
Wie würdet Ihr den Bereich des Gästebads, Garderobenecke und Speisekammer lösen? Das Duschbad ist zu klein Speisekammer zu groß? (Toll hätten wir eigentlich gefunden wenn Gästezimmer, Gästebad und Garderobennische zusammen in einer „Ecke des Hauses“ wären. Muss aber nicht)
Wie würdet Ihr das Wohnzimmer vergrößern? Den Erker nach Nordwesten würden wir eventuell entfallen lassen. Dafür einen Erker nach Norden? Was denkt Ihr?
Wie würdet Ihr die Haustür überdachen? Anbau? L Lösung? Carport folgt vermutlich erst in ein paar Jahren...


Wir danken Euch!


Bei unserer Grundrissgestaltung drehen wir uns im Kreis!
Mir wird langsam schwindelig- der Nachwuchs wird größer und freut sich eher auf ein Karussell im Garten... Obwohl unsere Vorstellungen ziemlich konkret sind- finden wir nicht die optimale Lösung.
Wir freuen uns deshalb über euer Feedback im Allgemeinen und vielleicht finden sich ein paar Lösungsvorschläge auf unsere u.s. Fragen
Bebauungsplan/Einschränkungen
Größe des Grundstücks: 670 m2
Hang: ja, maximaler Höhenunterschied 3,5m
Grundflächenzahl: 0,4
Geschossflächenzahl: 0,5
Anzahl Stellplatz: 2
Geschossigkeit: 1,5
Dachform: Satteldach 30-40 Grad
Stilrichtung: modern
Ausrichtung: frei
Maximale Höhen/Begrenzungen 10,5m
Anforderungen der Bauherren
Stilrichtung, Dachform, Gebäudetyp: modernes Satteldach
Keller, Geschosse: Keller plus 1,5 Geschosse
Anzahl der Personen, Alter: Er 38, Sie 37, Er 1, eine weitere Sie geplant
Raumbedarf im EG: Küche (halboffen oder um Ecke), Abstellkammer, kleines Duschbad, Garderobennische, Gästezimmer (min 12qm), Wohn/Esszimmer (min 40 qm)
Raumbedarf im OG: 2 Kinderzimmer min 15 qm, Elternschlafzimmer mit Ankleide, wenn möglich mit Verbindung zum Bad, Schlafzimmer durch Flur oder Bad von Kinderzimmern getrennt
Büro: Als Familienzimmer / Gästezimmer
Schlafgäste pro Jahr: Gästezimmer ist ein musst have J
offene oder geschlossene Architektur: eher geschlossen (Küche aber mit Schiebetür/ oder durch halbe Wand getrennt?), Treppenhaus auf jeden Fall abgetrennt vom Wohnraum
konservativ oder moderne Bauweise: klassisch aber mit modernen Elementen (Fenster? Lichtbänder, flache Dachneigung kein zu großer Dachüberstand, Farbgestaltung grau/weiß)
offene Küche, Kochinsel: halboffen, eine kleine Theke ist musst have
Anzahl Essplätze: Tisch für 6 Personen dauerhaft, bei Feierlichkeiten sind wir 17 J
Kamin: ja
Balkon, Dachterrasse: in Richtung Norden wegen tollem Ausblick
Garage, Carport: Carport mit 2 Stellplätzen
weitere Wünsche/Besonderheiten
- Überdachung der Haustür (L Form), Haustür mit schmalen Seitenteil,
- Podesttreppe mit Setzstufen,
- Der Eingang soll auf der Ostseite sein
- Die größten Fensterflächen (bodentief, ggf Schiebetür) im EG stellen wir uns an der Nord-West-Ecke des Hauses vor (trotz Sonneneinstrahlung, wegen der Aussicht)
Hausentwurf
Von wem stammt die Planung: Planer eines Bauunternehmens
Was gefällt besonders? Warum?: Alle Räume wurden im Grundriss untergebracht
Was gefällt nicht? Warum?:
Im EG : Die Lösung mit Speisekammer, Gästebad und Garderobennische.
Außerdem ist uns das Wohnzimmer ist etwas zu klein
Im OG : Denken wir das Schlaf- und Ankleide etwas zu groß geraten sind und dafür das Bad etwas zu klein (wir wünschen uns eine T-Lösung)
Wenn Ihr verzichten müsst, auf welche Details/Ausbauten
-könnt Ihr verzichten: Erker, Podesttreppe
-könnt Ihr nicht verzichten: Gästebad mit Dusche im EG und Gästezimmer im Erdgeschoss
Warum ist der Entwurf so geworden, wie er jetzt ist?
Wir haben aus vielen Entwürfen (Fertighäuser im Internet) gemischt
Entsprechende/Welche Wünsche wurden vom Architekten umgesetzt?
Eingang von der Ostseite, große Fenster in Richtung Norden bzw NW, Alle Räume wurden im Grundriss untergebracht
Was ist die wichtigste/grundlegende Frage zum Grundriss in 130 Zeichen zusammengefasst?
Ist die Belichtung im OG ausreichend? Wären eurer Meinung nach „Schießscharten“ möglich? Oder Dachflächenfenster nötig? Ist das Badezimmer für eine T-Lösung zu klein? Findet ihr den Schlaf Ankleidebereich wesentlich zu groß?
Vor dem Haus hätten wir gerne eine kleine Terrasse um auch mal etwas Sonne zu tanken. Denkt Ihr ein Ausgang aus der Küche macht Sinn bzw. wäre umsetzbar? (Der Hang ist nicht so steil wie auf dem Bild angenommen)
Wie würdet Ihr den Bereich des Gästebads, Garderobenecke und Speisekammer lösen? Das Duschbad ist zu klein Speisekammer zu groß? (Toll hätten wir eigentlich gefunden wenn Gästezimmer, Gästebad und Garderobennische zusammen in einer „Ecke des Hauses“ wären. Muss aber nicht)
Wie würdet Ihr das Wohnzimmer vergrößern? Den Erker nach Nordwesten würden wir eventuell entfallen lassen. Dafür einen Erker nach Norden? Was denkt Ihr?
Wie würdet Ihr die Haustür überdachen? Anbau? L Lösung? Carport folgt vermutlich erst in ein paar Jahren...
Wir danken Euch!
Uiuiuiuiui. Da ist das Gnadenlosigkeitspotential aber wirklich gewaltig. Spätestens beim Schlafzimmer wird es auch laien-offensichtlich, aber auch sonst ist das kein Grundriss, sondern ein höchstgradig liebloser Wändesalat.
Die geschwärzte Fläche im Lageplan läßt einen Vorgänger-Grundrissentwurf vermuten. Magst Du den mal zeigen ? - ich "fürchte", der war zumindest relativ gelungener.
Gerade, wenn man viele Traumhäuser gleichzeitig "unterbringen" will, braucht man einen verständigen - und widersprechenden ! - Architekten. Kommt man mit der gleichen Ausgangslage zu einem GU-Zeichenknecht, wird eben maximal so ein mißratener Wolpertinger daraus.
https://www.instagram.com/11antgmxde/
https://www.linkedin.com/company/bauen-jetzt/
Jule-2501 schrieb:... hätte ich daher auch selbst erkannt
Von wem stammt die Planung: Planer eines Bauunternehmens
Jule-2501 schrieb:... frankensteinös kombiniert, würde ich nach dem Ergebnis sagen.
Wir haben aus vielen Entwürfen (Fertighäuser im Internet) gemischt
Jule-2501 schrieb:... lautet dem zufolge euphemistisch zusammengefaßt die Diagnose. War das bis hierhin gnadenlos genug ?
Alle Räume wurden im Grundriss untergebracht
Jule-2501 schrieb:Warum gerade da ?
große Fenster in Richtung Norden bzw NW
Die geschwärzte Fläche im Lageplan läßt einen Vorgänger-Grundrissentwurf vermuten. Magst Du den mal zeigen ? - ich "fürchte", der war zumindest relativ gelungener.
Gerade, wenn man viele Traumhäuser gleichzeitig "unterbringen" will, braucht man einen verständigen - und widersprechenden ! - Architekten. Kommt man mit der gleichen Ausgangslage zu einem GU-Zeichenknecht, wird eben maximal so ein mißratener Wolpertinger daraus.
https://www.instagram.com/11antgmxde/
https://www.linkedin.com/company/bauen-jetzt/
Drei Dinge, die mir direkt auffallen:
1) 4 Fenster bzw. lichtdurchlässige Türen im Schlafzimmer. Wäre mir zu nervig, diese immer vor dem Schlafen zu schließen.
2) Die Dusche im EG ist ein Verbrechen.
3) Auf dem Bild vom Haus sieht man so viele unterschiedlichen Türen und Fenster, dass die Kombination einfach durcheinander wirkt.
1) 4 Fenster bzw. lichtdurchlässige Türen im Schlafzimmer. Wäre mir zu nervig, diese immer vor dem Schlafen zu schließen.
2) Die Dusche im EG ist ein Verbrechen.
3) Auf dem Bild vom Haus sieht man so viele unterschiedlichen Türen und Fenster, dass die Kombination einfach durcheinander wirkt.
Was mir direkt aufgefallen ist:
Das Bad im EG funktioniert doch so nicht? Wo soll da WC und Waschbecken hin?
Eine Speisekammer ohne direkten Küchenzugang ist für mich keine Speisekammer, sondern ein Abstellraum.
Wollt ihr die Küche wirklich so haben? Ich sehe weite Laufwege und tote Ecken.
Wie soll die Garderobennische möbliert werden? Glaube nicht, dass die funktioniert.
Das Schlafzimmer ist riesig, aber das Bett in eine Ecke gequetscht. Passt das mit realen Maßen? Der Linksschläfer muss sich ganz schön vorbeiquetschen. Wie sollen die Schränke stehen?
Das Bad im EG funktioniert doch so nicht? Wo soll da WC und Waschbecken hin?
Eine Speisekammer ohne direkten Küchenzugang ist für mich keine Speisekammer, sondern ein Abstellraum.
Wollt ihr die Küche wirklich so haben? Ich sehe weite Laufwege und tote Ecken.
Wie soll die Garderobennische möbliert werden? Glaube nicht, dass die funktioniert.
Das Schlafzimmer ist riesig, aber das Bett in eine Ecke gequetscht. Passt das mit realen Maßen? Der Linksschläfer muss sich ganz schön vorbeiquetschen. Wie sollen die Schränke stehen?
Ähnliche Themen