ᐅ Grundrissoptimierung Stadtvilla ca. 180qm mit Keller in Berlin
Erstellt am: 18.06.20 00:15
J
julimos
Hallo zusammen,
nach viel Mitlesen und Anregungen & Ideen sammeln möchte ich unser Bauvorhaben vorstellen und erhoffe mir Hinweise auf Fallstricke + Anregungen, wo noch optimiert werden sollte oder Änderungen sinnvoll sind.
Bebauungsplan/Einschränkungen
Größe des Grundstücks: 710qm, 19m Breit, ca. 37m Lang
Hang: Komplett eben
Grundflächenzahl: 0,2
Geschossflächenzahl: 0,4
Baufenster, Baulinie und -grenze: Fluchtlinien 5m von der Straße und 5m Rechte Grundstücksseite. Wegen Sackgasse muss die Auffahrt links neben das Haus, es bleiben also für Haus + Auffahrt 14m Grundstücksbreite. Deswegen hat der Grundriss eine Breite von ca. 10m.
Randbebauung: Nein
Anzahl Stellplatz: Keine Vorgabe
Geschossigkeit: bis zu 2
Dachform: -
Stilrichtung: §34 - In der Straße gibt es nahezu alle Bauformen
Ausrichtung: -
Maximale Höhen/Begrenzungen: 2 Geschossig, offene Bebauung, ansonsten §34 Baugesetzbuch
weitere Vorgaben: -
Anforderungen der Bauherren
Stilrichtung, Dachform, Gebäudetyp: Stadtvilla verklinkert, Fenster/Hauptausrichtung der Räume nach hinten zum Garten
Keller, Geschosse: Keller + 2 Geschosse
Anzahl der Personen, Alter: 2 Große 2 Kleine (1 + 4 Jahre)
Raumbedarf im EG: Wohnzimmer, Küche, Gästezimmer, Gäste/Ausweich-Bad. OG: Schlafzimmer, 2 Kinderzimmer
Büro: Aktuell teilw. Home Office, könnte aber auch 100% werden
Schlafgäste pro Jahr: >50 Nächte
offene Küche, Kochinsel: Küche halboffen
Anzahl Essplätze: 8
Kamin: Nein
Garage, Carport: Auffahrt mit 1-2 Stellplätzen reicht.
Hausentwurf
Von wem stammt die Planung: Mischung aus Planer (Erstentwurf) und DIY viele Anpassungen
Uns gefällt besonders: Fenster im EG und OG zum Garten (nach hinten) bodentief, offene Küche, kurze Wege Küche<->Keller und Wohnzimmer<->OG
Was gefällt nicht: Großer Flur im OG - Ist der Richtung der Treppe im EG und der ungünstigen Hausform durch das Grundstück geschuldet.
Angebot GU: 410.000 + ca. 120.000 Nebenkosten/Einrichtung/Bodenbeläge/Malern/Abriss Altbestand (Da werden wir viel selbst machen und haben keine abgehobenen Ansprüche)
Persönliches Preislimit fürs Haus, inkl Ausstattung: 550.000
favorisierte Heiztechnik: Luft-Wasser Wärmepumpe (Gas zu weit entfernt, Bohrung ist unwirtschaftlich. Evtl. Ringgrabenkollektor wenn der Platz nach der Heizlastberechnung ausreicht, im Garten sind aber einige Bäume und Anlagen die nicht entfernt werden können/sollen)
Wenn Ihr verzichten müsst, auf welche Details/Ausbauten
-könnt Ihr verzichten: Zusätzliches WC im OG, fehlt aber in unserer Wohnung aktuell tatsächlich weil oft Gäste da sind.
-könnt Ihr nicht verzichten: Große Fenster zum Garten/Terrasse & Keller (Auf dem Grundstück steht noch ein (viel zu kleines) Haus mit Keller, Bei Bau ohne Keller müsste man fast genausoviel Erde tauschen). Kellerausbau machen wir erstmal nicht (nur Fliesen in Hauswirtschaftsraum und vorderem Keller geplant)
Warum ist der Entwurf so geworden, wie er jetzt ist?
Gemisch aus Standardentwurf und vielen Anpassungen. Das Grundstück gibt die Hausform relativ genau vor, vergrößert werden kann nur nach Hinten.
Die grundlegende Frage zum Grundriss in 130 Zeichen zusammengefasst:
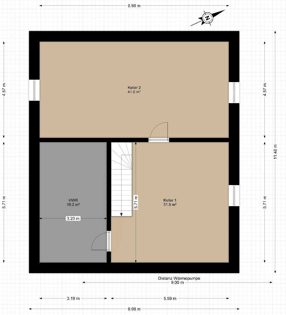
Funktioniert der Grundriss aus Eurer Sicht so? Sollte die Treppe doch gedreht werden (Mit dem Nachteil, dass der Aufgang zum OG durch den "Dreckbereich" geht)?
Haben wir irgendetwas komplett übersehen?
Ich Danke euch vielmals!


nach viel Mitlesen und Anregungen & Ideen sammeln möchte ich unser Bauvorhaben vorstellen und erhoffe mir Hinweise auf Fallstricke + Anregungen, wo noch optimiert werden sollte oder Änderungen sinnvoll sind.
Bebauungsplan/Einschränkungen
Größe des Grundstücks: 710qm, 19m Breit, ca. 37m Lang
Hang: Komplett eben
Grundflächenzahl: 0,2
Geschossflächenzahl: 0,4
Baufenster, Baulinie und -grenze: Fluchtlinien 5m von der Straße und 5m Rechte Grundstücksseite. Wegen Sackgasse muss die Auffahrt links neben das Haus, es bleiben also für Haus + Auffahrt 14m Grundstücksbreite. Deswegen hat der Grundriss eine Breite von ca. 10m.
Randbebauung: Nein
Anzahl Stellplatz: Keine Vorgabe
Geschossigkeit: bis zu 2
Dachform: -
Stilrichtung: §34 - In der Straße gibt es nahezu alle Bauformen
Ausrichtung: -
Maximale Höhen/Begrenzungen: 2 Geschossig, offene Bebauung, ansonsten §34 Baugesetzbuch
weitere Vorgaben: -
Anforderungen der Bauherren
Stilrichtung, Dachform, Gebäudetyp: Stadtvilla verklinkert, Fenster/Hauptausrichtung der Räume nach hinten zum Garten
Keller, Geschosse: Keller + 2 Geschosse
Anzahl der Personen, Alter: 2 Große 2 Kleine (1 + 4 Jahre)
Raumbedarf im EG: Wohnzimmer, Küche, Gästezimmer, Gäste/Ausweich-Bad. OG: Schlafzimmer, 2 Kinderzimmer
Büro: Aktuell teilw. Home Office, könnte aber auch 100% werden
Schlafgäste pro Jahr: >50 Nächte
offene Küche, Kochinsel: Küche halboffen
Anzahl Essplätze: 8
Kamin: Nein
Garage, Carport: Auffahrt mit 1-2 Stellplätzen reicht.
Hausentwurf
Von wem stammt die Planung: Mischung aus Planer (Erstentwurf) und DIY viele Anpassungen
Uns gefällt besonders: Fenster im EG und OG zum Garten (nach hinten) bodentief, offene Küche, kurze Wege Küche<->Keller und Wohnzimmer<->OG
Was gefällt nicht: Großer Flur im OG - Ist der Richtung der Treppe im EG und der ungünstigen Hausform durch das Grundstück geschuldet.
Angebot GU: 410.000 + ca. 120.000 Nebenkosten/Einrichtung/Bodenbeläge/Malern/Abriss Altbestand (Da werden wir viel selbst machen und haben keine abgehobenen Ansprüche)
Persönliches Preislimit fürs Haus, inkl Ausstattung: 550.000
favorisierte Heiztechnik: Luft-Wasser Wärmepumpe (Gas zu weit entfernt, Bohrung ist unwirtschaftlich. Evtl. Ringgrabenkollektor wenn der Platz nach der Heizlastberechnung ausreicht, im Garten sind aber einige Bäume und Anlagen die nicht entfernt werden können/sollen)
Wenn Ihr verzichten müsst, auf welche Details/Ausbauten
-könnt Ihr verzichten: Zusätzliches WC im OG, fehlt aber in unserer Wohnung aktuell tatsächlich weil oft Gäste da sind.
-könnt Ihr nicht verzichten: Große Fenster zum Garten/Terrasse & Keller (Auf dem Grundstück steht noch ein (viel zu kleines) Haus mit Keller, Bei Bau ohne Keller müsste man fast genausoviel Erde tauschen). Kellerausbau machen wir erstmal nicht (nur Fliesen in Hauswirtschaftsraum und vorderem Keller geplant)
Warum ist der Entwurf so geworden, wie er jetzt ist?
Gemisch aus Standardentwurf und vielen Anpassungen. Das Grundstück gibt die Hausform relativ genau vor, vergrößert werden kann nur nach Hinten.
Die grundlegende Frage zum Grundriss in 130 Zeichen zusammengefasst:
Funktioniert der Grundriss aus Eurer Sicht so? Sollte die Treppe doch gedreht werden (Mit dem Nachteil, dass der Aufgang zum OG durch den "Dreckbereich" geht)?
Haben wir irgendetwas komplett übersehen?
Ich Danke euch vielmals!
Danke. Ich denke, (jetzt sehe ich auch die Außenmaße), dass dieser typische Standardgrundriss nicht auf diese 10 x 12 gezerrt werden sollte, weil eben die Räume langgezogen werden.
Fangen wir mal im Detail Treppe an: wenn Du genau hinschaust, hast Du die Küchentür mit der Kellertreppe zugebaut
Wenn Du mal in den angepinnten Beiträgen schaust: da sind Treppenmasze eingestellt. 3,55 sind zu kurz. Die Küchentür ist so nicht gut positioniert, dass man beim Eintreten gg möbel läuft. Das sind allgemeine Planungsfehler, die man vermeiden kann, wenn man etwas Ahnung hat, Architekt ist oder anderweitig mit Planung zu tun hat.
Das gilt auch für zu große Flure. Ich sag immer: wenn im Schlafzimmer noch nicht einmal der 3 Meter Familienschrank Platz hat, dann stimmt der Entwurf nicht. Letztendlich ist hier nicht viel geplant.
Stellplatz bzw Doppelcarport geht sicher nicht nach planrechts? hm... noch mal nachfragen!!!
Wenn das tatsächlich nicht geht, aber nicht nur dann, sehe ich ein anderes Haus, etwas schmaler und länger und nicht symmetrisch und auch keinen mittigen Eingang.
Aber egal, was ich sehe: es ist Euer Haus, deshalb lasst das schwierige Grundstück mal vom Fachmann planen. Für dieses GrundrissSkelett eignet sich das Grundstück schlecht.
Und dann würde ich den Gedanken mal aufgreifen, und die vielen Gäste ein Séparée gönnen, zb könnte man im Keller einen Bereich mit Bad zurechtmachen, das würde die Hausgröße etwas entspannen.
Achte auf die Grundflächenzahl! Terrasse gehört zum Haus.
Fangen wir mal im Detail Treppe an: wenn Du genau hinschaust, hast Du die Küchentür mit der Kellertreppe zugebaut
Wenn Du mal in den angepinnten Beiträgen schaust: da sind Treppenmasze eingestellt. 3,55 sind zu kurz. Die Küchentür ist so nicht gut positioniert, dass man beim Eintreten gg möbel läuft. Das sind allgemeine Planungsfehler, die man vermeiden kann, wenn man etwas Ahnung hat, Architekt ist oder anderweitig mit Planung zu tun hat.
Das gilt auch für zu große Flure. Ich sag immer: wenn im Schlafzimmer noch nicht einmal der 3 Meter Familienschrank Platz hat, dann stimmt der Entwurf nicht. Letztendlich ist hier nicht viel geplant.
julimos schrieb:Ich sehe keine kurzen Wege, sind sind sehr lang wegen der langen Hausform.
kurze Wege Küche<->Keller und Wohnzimmer<->OG
julimos schrieb:Ich würde mir die Südseite für einen Sitzplatz freihalten. Auch die Wohnräume mehr zur SW und die Küche zur Terrasse nach hinten (planoben), wo sie hingehört.
Wegen Sackgasse muss die Auffahrt links neben das Haus
Stellplatz bzw Doppelcarport geht sicher nicht nach planrechts? hm... noch mal nachfragen!!!
Wenn das tatsächlich nicht geht, aber nicht nur dann, sehe ich ein anderes Haus, etwas schmaler und länger und nicht symmetrisch und auch keinen mittigen Eingang.
Aber egal, was ich sehe: es ist Euer Haus, deshalb lasst das schwierige Grundstück mal vom Fachmann planen. Für dieses GrundrissSkelett eignet sich das Grundstück schlecht.
Und dann würde ich den Gedanken mal aufgreifen, und die vielen Gäste ein Séparée gönnen, zb könnte man im Keller einen Bereich mit Bad zurechtmachen, das würde die Hausgröße etwas entspannen.
Achte auf die Grundflächenzahl! Terrasse gehört zum Haus.
Hey,
vielen Dank schonmal für deine Anmerkungen. Ich glaube die beziehen sich auf den ersten Entwurf von Vorgestern, ich hatte gestern nochmal einen neuen gemacht weiter unten auf Seite 1, ich hänge den hier noch mal an.
Thema Auffahrt: andere Hausseite geht absolut nicht, dafür müsste die Auffahrt einmal durch den kompletten Vorgarten gehen, weil am Ende der Sackgasse (also "vor" unserem Grundstück auf der rechten Seite) ein Weg bzw. Park ist. Außerdem darf hinter der Fluchtlinie absolut nichts gebaut werden.
Terrasse auf der Südseite fänden wir auch schön, leider ist dort die Garage der Nachbarn in Grenzbebauung bis ca. 2/3 unseres geplanten Hauses. Dahinter steht direkt das relativ hohe Haus der Nachbarn, d.h. wenn auf der Südseite des Hauses Sonne ist, ist auch hinter dem Haus auf der Terrasse Sonne, und wir planen noch einen Sitzplatz weiter hinten im Garten der früher Sonne bekommt. Die Terrasse hinter dem Haus ziehen wir evtl. auch etwas um die plan-linke Hausecke herum.
Gästezimmer/-bereich im Keller haben wir auch schon mal überlegt, das würde aber nur das Gästezimmer im EG einsparen, und da ist eigentlich reichlich Platz (Büro im OG zum Garten ist Pflicht - und als Abstand zwischen Schlafzimmer und Kinderzimmer willkommen ).
Terrasse zählt glücklicherweise nicht zur Grundflächenzahl, sonst wäre die Größe tatsächlich problematisch (Bereich ist in den 60er Jahren "abschließend geplant", damit gilt die alte Baunutzungsverordnung - sagt auch das Bauamt)
Danke fürs anschauen



vielen Dank schonmal für deine Anmerkungen. Ich glaube die beziehen sich auf den ersten Entwurf von Vorgestern, ich hatte gestern nochmal einen neuen gemacht weiter unten auf Seite 1, ich hänge den hier noch mal an.
Thema Auffahrt: andere Hausseite geht absolut nicht, dafür müsste die Auffahrt einmal durch den kompletten Vorgarten gehen, weil am Ende der Sackgasse (also "vor" unserem Grundstück auf der rechten Seite) ein Weg bzw. Park ist. Außerdem darf hinter der Fluchtlinie absolut nichts gebaut werden.
Terrasse auf der Südseite fänden wir auch schön, leider ist dort die Garage der Nachbarn in Grenzbebauung bis ca. 2/3 unseres geplanten Hauses. Dahinter steht direkt das relativ hohe Haus der Nachbarn, d.h. wenn auf der Südseite des Hauses Sonne ist, ist auch hinter dem Haus auf der Terrasse Sonne, und wir planen noch einen Sitzplatz weiter hinten im Garten der früher Sonne bekommt. Die Terrasse hinter dem Haus ziehen wir evtl. auch etwas um die plan-linke Hausecke herum.
Gästezimmer/-bereich im Keller haben wir auch schon mal überlegt, das würde aber nur das Gästezimmer im EG einsparen, und da ist eigentlich reichlich Platz (Büro im OG zum Garten ist Pflicht - und als Abstand zwischen Schlafzimmer und Kinderzimmer willkommen ).
Terrasse zählt glücklicherweise nicht zur Grundflächenzahl, sonst wäre die Größe tatsächlich problematisch (Bereich ist in den 60er Jahren "abschließend geplant", damit gilt die alte Baunutzungsverordnung - sagt auch das Bauamt)
Danke fürs anschauen
julimos schrieb:
Ich glaube die beziehen sich auf den ersten Entwurf von Vorgestern,Stimmt, die hatte ich auf dem Handy noch auf.Der jetzige ist weitaus stimmiger, wenn auch das OG immer noch ne kleine Katastrophe.
julimos schrieb:
Thema Auffahrt: andere Hausseite geht absolut nicht, dafür müsste die Auffahrt einmal durch den kompletten Vorgarten gehen, weil am Ende der Sackgasse (also "vor" unserem Grundstück auf der rechten Seite) ein Weg bzw. Park ist.Ich glaube, wir reden aneinander vorbei: Du kannst doch den „Vorgarten“ als Beete links und rechts von einem Vorhof planen. Das gibt es doch oft, auch wir haben das, dass man auf seinem Vorhof das Lenkrad nach rechts betätigt und dann auch rechts seinen Stellplatz hat. Du brauchst doch eh mehr Stellfläche bei 2 Kindern plus Besucher. Ich würde das an deiner Stelle nicht ausschließen.julimos schrieb:
Außerdem darf hinter der Fluchtlinie absolut nichts gebaut werden.Fluchtlinie? Meinst Du den Grenzabstand?
julimos schrieb:
Büro im OG zum Garten ist PflichtWarum?Ich denke, Deine Treppenposition ist falsch.
Versuch mal, sie a) zu drehen, sodass ihr oben mittig rauskommt: dann die Räume neu anordnen
b) setze das Kind 1 dort, wo jetzt das Bad ist. Rest wieder neu anordnen und den Flur dadurch extrem verkleinern.
Die Kleinigkeiten wie Gästebad-Dusche wegen falscher Kloposition nicht begehbar erwähne ich jetzt mal nicht, da kann man später ran. Und auch die Küche..., sowas erinnert mich an Frühere Landhausküchen...
ypg schrieb:
Ich glaube, wir reden aneinander vorbei: Du kannst doch den „Vorgarten“ als Beete links und rechts von einem Vorhof planen. Das gibt es doch oft, auch wir haben das, dass man auf seinem Vorhof das Lenkrad nach rechts betätigt und dann auch rechts seinen Stellplatz hat. Du brauchst doch eh mehr Stellfläche bei 2 Kindern plus Besucher. Ich würde das an deiner Stelle nicht ausschließen.Guter Punkt, da hast du natürlich recht. Ich werde es mir mal anschauen. Zum Glück "brauchen" wir nicht unbedingt für alle Besucher Stellplätze, in der Straße ist eigentlich immer genug frei. Aber das kann sich natürlich ändern.
ypg schrieb:
Fluchtlinie?
Meinst Du den Grenzabstand?Das ist tatsächlich eine "Förmlich festgestellte Fluchtlinie", gibt es glaube ich nur in (West?-)Berlin und kommt durch irgendwelches preussisches Baurecht das Übergeleitet wurde. Ohne die Fluchtlinie könnten wir schön breit bauen...dadurch fehlen leider 2 Meter. ypg schrieb:
Warum?
Ich denke, Deine Treppenposition ist falsch.
Versuch mal, sie a) zu drehen, sodass ihr oben mittig rauskommt: dann die Räume neu anordnen
b) setze das Kind 1 dort, wo jetzt das Bad ist. Rest wieder neu anordnen und den Flur dadurch extrem verkleinern.
Die Kleinigkeiten wie Gästebad-Dusche wegen falscher Kloposition nicht begehbar erwähne ich jetzt mal nicht, da kann man später ran. Und auch die Küche..., sowas erinnert mich an Frühere Landhausküchen...Hast recht, die Möbel in den Badezimmern sind erstmal nur drin um sich Größe besser vorstellen zu können.
Ich werde deinen Hinweis mal aufgreifen und probiere das heute Abend zu zeichnen, dann könnte auch die Küche weniger breit sein wenn die Treppe etwas verschoben wird. Danke!!
Ähnliche Themen