Hallo liebes Forum,
ich möchte gerne konstruktive Kritik von euch für unseren Grundriss einholen. Bitte nicht mit Kritik sparen, jetzt kann noch alles geändert werden!
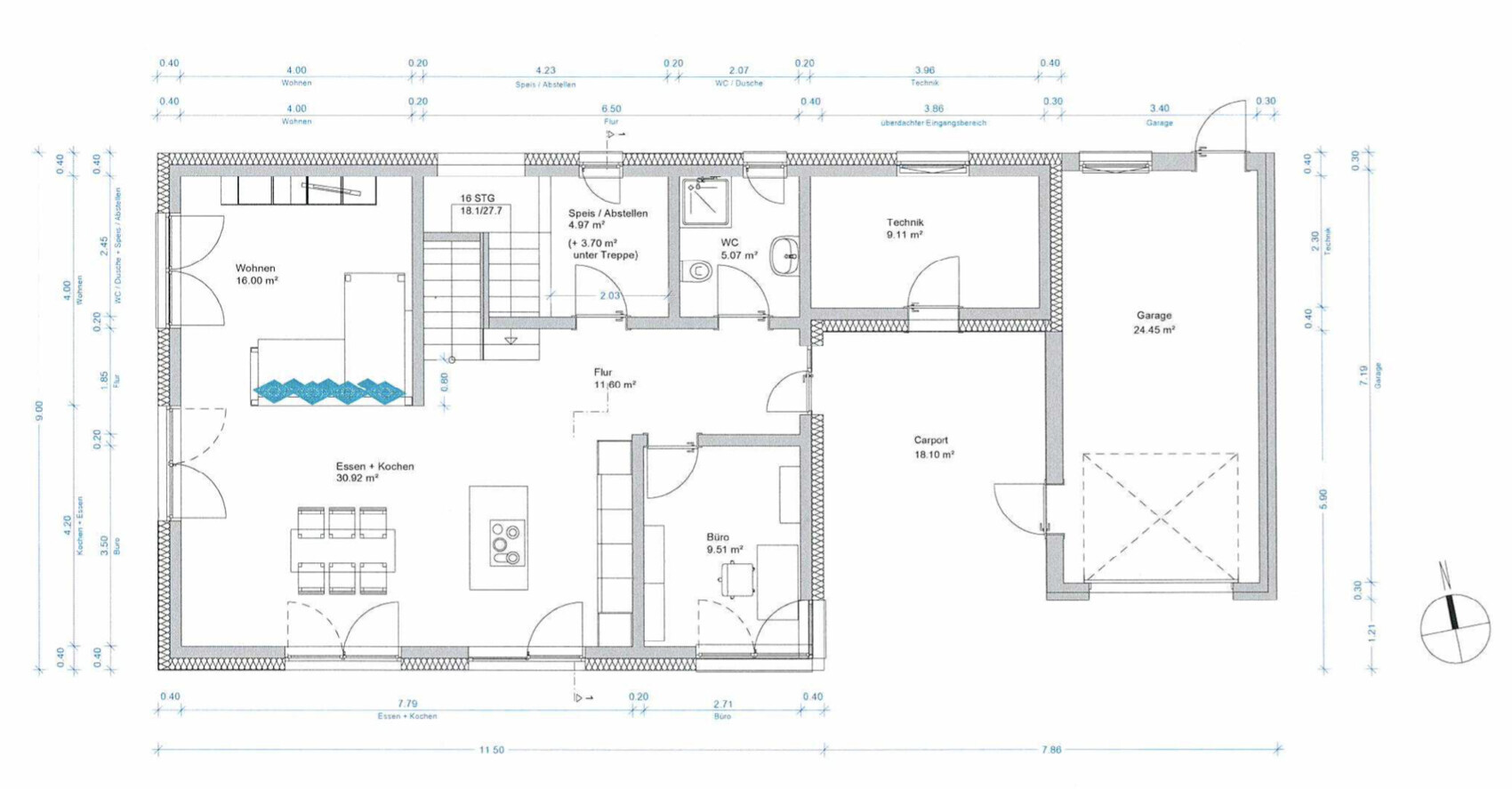
EG

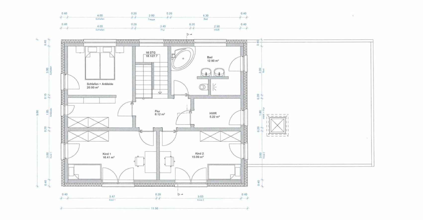
DG

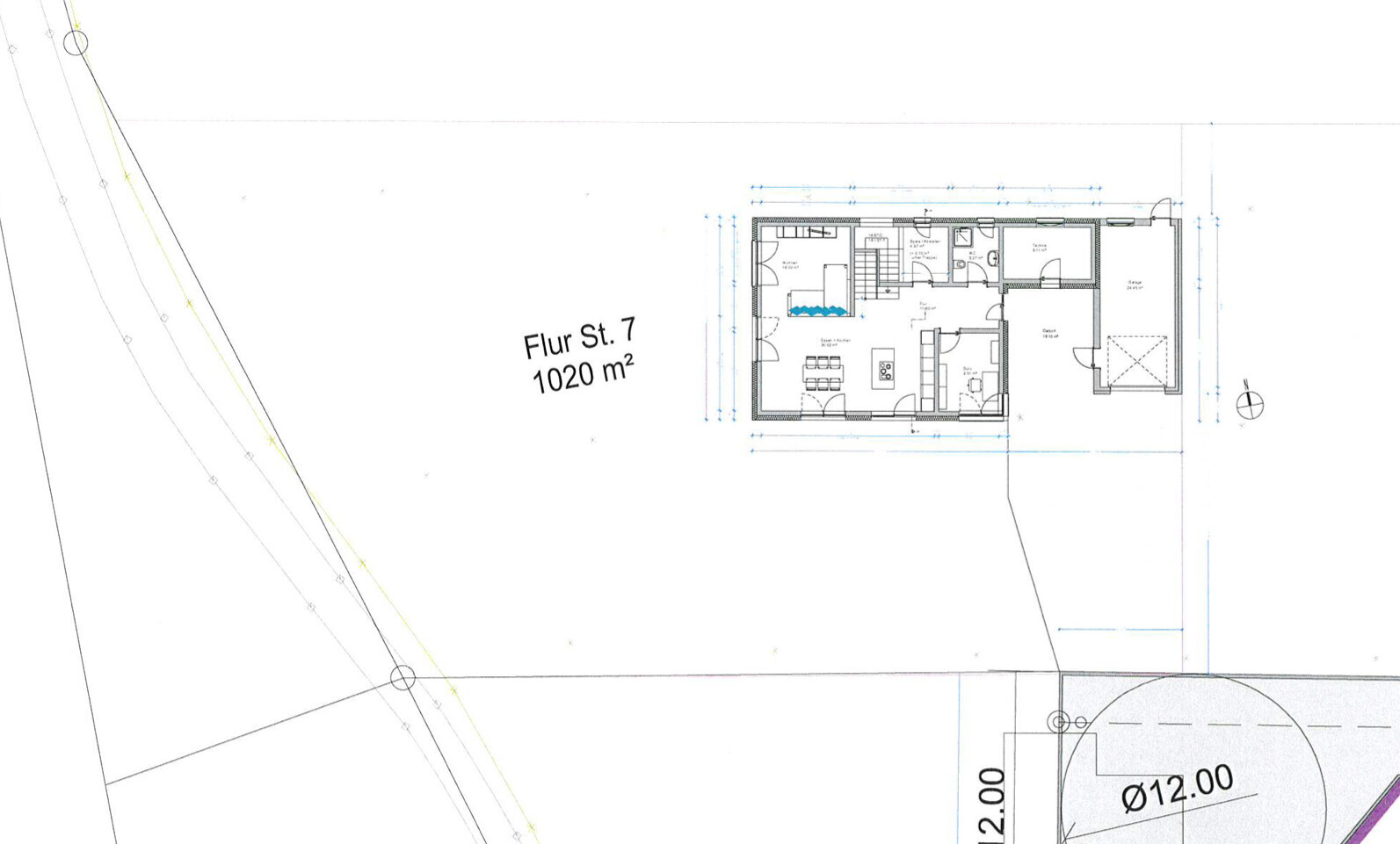
Lageplan im Grundstück. Grundstück liegt am Ende der Stichstraße am Waldrand (Wald westlich).

Schnitt

Bebauungsplan/Einschränkungen
Größe des Grundstücks: 1020 qm
Hang: Leichter Hang, auf 25 Meter 1Meter Höhenunterschied.
Randbebauung: Ja, die Garage nach Osten
Anzahl Stellplatz: 2
Geschossigkeit: 2
Dachform: Satteldach
Stilrichtung: Modern?
Ausrichtung: Wohnbereich nach Süden, Grundrisse sind beinahe genordet.
Maximale Höhen/Begrenzungen: 9 Meter
Anforderungen der Bauherren
Stilrichtung, Dachform, Gebäudetyp: Einfamilienwohnhaus, Satteldach, Kfw40 Plus
Keller, Geschosse: Kein Keller, 2 Vollgeschosse
Anzahl der Personen, Alter: Noch zu zweit, zwei Kinder geplant.
Raumbedarf im EG, OG: 160 qm Wohnfläche.
Büro: Familiennutzung oder Homeoffice? Frau macht 3 von 5 Tagen Homeoffice, daher auch ein Büro.
Schlafgäste pro Jahr: Eher selten, geschätzt 6x/ Jahr
offene oder geschlossene Architektur: Im EG sehr offen, oben eher geschlossen.
offene Küche, Kochinsel: Ist geplant. Kochinsel soll größer als in den Plänen sein. Ggf. rückt die Kochinsel an die südliche Wand, damit sie länger werden kann.
Anzahl Essplätze: 6
Kamin: Nicht geplant.
Balkon, Dachterrasse: Nicht geplant.
Garage, Carport: Wurde momentan mitgeplant, wegen größten Preissteigerungen werden wir Garage und Carport vermutlich weglassen und später in Eigenleistung bauen. Sinnvoll?
Nutzgarten, Treibhaus: Kein Nutzgarten geplant, aber Gartenhaus für Geräte.
Hausentwurf
Von wem stammt die Planung: Architekt vom Generalunternehmer
- Offene Wohn-, Ess-, Kochbereich im EG war Pflicht
- zwei Vollgeschosse
- Technikraum ausgegliedert in eigenem Anbau
- Hauswirtschaftsraum oben
- 6000l Zisterne
- Sitzfenster im Wohnbereich
- umlaufende Terrasse von Süden nach Westen (später in Eigenleistung, durch Unternehmer nur Frostschutz)
Preisschätzung lt Architekt/Planer: Mit Garage und Carport 550.000 Euro in Massivholzbauweise aus Brettsperrholz. Dazu 10kwh Photovoltaik + 10 kwp Speicher. Erdbauarbeiten enthalten.
Persönliches Preislimit fürs Haus, inkl Ausstattung: Eigentlich 520.000, daher wird eine kostengünstige Alternative zur Garage und Carport gesucht
favorisierte Heiztechnik: Wärmepumpe
Wenn Ihr verzichten müsst, auf welche Details/Ausbauten
-könnt Ihr verzichten: ggf. Garage (siehe unten); Aluminium-Haustüre; Zisterne
-könnt Ihr nicht verzichten: offene Küche; Technikanbau, sonst funktioniert der Grundriss gar nicht
Warum ist der Entwurf so geworden, wie er jetzt ist?
Ein Gemisch aus vielen Beispielen aus div. Magazinen. Ich habe dann in einem Architekturprogramm einen Entwurf gezeichnet und bin damit zum Hausbauer gegangen. Der hat es dann umgesetzt wie hier zu sehen.
Was ist die wichtigste/grundlegende Frage zum Grundriss in 130 Zeichen zusammengefasst?
Wie sollte ich die Garage/ Carport am besten planen, um später in Eigenleistung selbst einen Carport errichten zu können? Jetzt bereits die Bodenplatte gießen lassen und später einen Carport-Bausatz kaufen?
Da wir ohne Keller bauen, plane ich ein Gartenhaus. Brauche ich für das Gartenhaus auch eine gegossene Bodenplatte? Dann wäre es vermutlich sinnvoll, es gleich den den Hausbauer erledigen zu lassen.
Lohnt sich der Aufpreis zur Aluminium-Haustür? (Plastik 2500 Euro, Aluminium 5000 Euro).
Bin für jeden Tipp dankbar!
Vielen Dank!
Liebe Grüße
ich möchte gerne konstruktive Kritik von euch für unseren Grundriss einholen. Bitte nicht mit Kritik sparen, jetzt kann noch alles geändert werden!
EG
DG
Lageplan im Grundstück. Grundstück liegt am Ende der Stichstraße am Waldrand (Wald westlich).
Schnitt
Bebauungsplan/Einschränkungen
Größe des Grundstücks: 1020 qm
Hang: Leichter Hang, auf 25 Meter 1Meter Höhenunterschied.
Randbebauung: Ja, die Garage nach Osten
Anzahl Stellplatz: 2
Geschossigkeit: 2
Dachform: Satteldach
Stilrichtung: Modern?
Ausrichtung: Wohnbereich nach Süden, Grundrisse sind beinahe genordet.
Maximale Höhen/Begrenzungen: 9 Meter
Anforderungen der Bauherren
Stilrichtung, Dachform, Gebäudetyp: Einfamilienwohnhaus, Satteldach, Kfw40 Plus
Keller, Geschosse: Kein Keller, 2 Vollgeschosse
Anzahl der Personen, Alter: Noch zu zweit, zwei Kinder geplant.
Raumbedarf im EG, OG: 160 qm Wohnfläche.
Büro: Familiennutzung oder Homeoffice? Frau macht 3 von 5 Tagen Homeoffice, daher auch ein Büro.
Schlafgäste pro Jahr: Eher selten, geschätzt 6x/ Jahr
offene oder geschlossene Architektur: Im EG sehr offen, oben eher geschlossen.
offene Küche, Kochinsel: Ist geplant. Kochinsel soll größer als in den Plänen sein. Ggf. rückt die Kochinsel an die südliche Wand, damit sie länger werden kann.
Anzahl Essplätze: 6
Kamin: Nicht geplant.
Balkon, Dachterrasse: Nicht geplant.
Garage, Carport: Wurde momentan mitgeplant, wegen größten Preissteigerungen werden wir Garage und Carport vermutlich weglassen und später in Eigenleistung bauen. Sinnvoll?
Nutzgarten, Treibhaus: Kein Nutzgarten geplant, aber Gartenhaus für Geräte.
Hausentwurf
Von wem stammt die Planung: Architekt vom Generalunternehmer
- Offene Wohn-, Ess-, Kochbereich im EG war Pflicht
- zwei Vollgeschosse
- Technikraum ausgegliedert in eigenem Anbau
- Hauswirtschaftsraum oben
- 6000l Zisterne
- Sitzfenster im Wohnbereich
- umlaufende Terrasse von Süden nach Westen (später in Eigenleistung, durch Unternehmer nur Frostschutz)
Preisschätzung lt Architekt/Planer: Mit Garage und Carport 550.000 Euro in Massivholzbauweise aus Brettsperrholz. Dazu 10kwh Photovoltaik + 10 kwp Speicher. Erdbauarbeiten enthalten.
Persönliches Preislimit fürs Haus, inkl Ausstattung: Eigentlich 520.000, daher wird eine kostengünstige Alternative zur Garage und Carport gesucht
favorisierte Heiztechnik: Wärmepumpe
Wenn Ihr verzichten müsst, auf welche Details/Ausbauten
-könnt Ihr verzichten: ggf. Garage (siehe unten); Aluminium-Haustüre; Zisterne
-könnt Ihr nicht verzichten: offene Küche; Technikanbau, sonst funktioniert der Grundriss gar nicht
Warum ist der Entwurf so geworden, wie er jetzt ist?
Ein Gemisch aus vielen Beispielen aus div. Magazinen. Ich habe dann in einem Architekturprogramm einen Entwurf gezeichnet und bin damit zum Hausbauer gegangen. Der hat es dann umgesetzt wie hier zu sehen.
Was ist die wichtigste/grundlegende Frage zum Grundriss in 130 Zeichen zusammengefasst?
Wie sollte ich die Garage/ Carport am besten planen, um später in Eigenleistung selbst einen Carport errichten zu können? Jetzt bereits die Bodenplatte gießen lassen und später einen Carport-Bausatz kaufen?
Da wir ohne Keller bauen, plane ich ein Gartenhaus. Brauche ich für das Gartenhaus auch eine gegossene Bodenplatte? Dann wäre es vermutlich sinnvoll, es gleich den den Hausbauer erledigen zu lassen.
Lohnt sich der Aufpreis zur Aluminium-Haustür? (Plastik 2500 Euro, Aluminium 5000 Euro).
Bin für jeden Tipp dankbar!
Vielen Dank!
Liebe Grüße
Likee68 schrieb:
Hang: Leichter Hang, auf 25 Meter 1MeterWo verläuft denn der Hang?Wenn wenig Resonanz kommt, ist das ein Hinweis darauf, dass kaum grobe Schnitzer sind.
Ich persönlich würde den TK-Raum von innen aus dem Haus raus betreten wollen.
Was ist das blaue? Kissen?
Fenster über dem Bett würde mich persönlich stören.
Likee68 schrieb:
Brauche ich für das Gartenhaus auch eine gegossene Bodenplatte?Nein, Pflaster, Platten oder Holzdeck reichen aus.Likee68 schrieb:
Lohnt sich der Aufpreis zur Aluminium-Haustür?Das muss man selbst entscheiden. Was versprichst Du Dir von Aluminium? Wir haben unseren GU ua ausgesucht, weil er eine Holztür angeboten hat.Likee68 schrieb:
Plastik 2500 Euro, Aluminium 5000 Euro).Und Holz? 😉Ich kriege dir Pläne EG und OG bzgl. Garage und diesem X (vermutlich Oberlicht?) Noch nicht übereinander. Bin ich da der Einzige?
Falls das im EG unten rechts eine Eckverglasung ist, lasst die weg, kostet nur Geld.
Die Tür zur Garage würde ich auf Höhe der Eingangstür planen, erleichtert das Parken im Carport und minimiert Kratzerwahrscheinlichkeit.
Falls das im EG unten rechts eine Eckverglasung ist, lasst die weg, kostet nur Geld.
Die Tür zur Garage würde ich auf Höhe der Eingangstür planen, erleichtert das Parken im Carport und minimiert Kratzerwahrscheinlichkeit.
ypg schrieb:
Wo verläuft denn der Hang?Der Hang fällt vom oberen rechten Eck zum unteren linken Eck ab.
ypg schrieb:
Ich persönlich würde den TK-Raum von innen aus dem Haus raus betreten wollen.Dsa hätte ich auch am liebsten, aber dann bräuchten wir eine Tür aus dem WC hinaus und da verlaufen ja die Anschlüsse nach innen... Das versetzen vom Technikraum macht aber auch wieder Probleme mit den Abstandsflächen zur Grundstücksgrenze.ypg schrieb:
Was ist das blaue? Kissen?Ja, ist nur ein Dekoobjekt vom Planer.SoL schrieb:
Fenster über dem Bett würde mich persönlich stören.Warum würde dich das stören? Sind ja zwei Vollgeschosse, also wären die Fenster recht hoch.ypg schrieb:
Nein, Pflaster, Platten oder Holzdeck reichen aus.Gemäß Bebauungsplan dürfen wir nur 10 qm als "Nebenanlage" bauen. Da würde ich dann tatsächlich ohne Betonfundament planen.ypg schrieb:
Das muss man selbst entscheiden. Was versprichst Du Dir von Aluminium? Wir haben unseren GU ua ausgesucht, weil er eine Holztür angeboten hat.
Und Holz? 😉Unser GU empfiehlt eben immer diese Aluminium Türen, weil es die "Visitenkarte" vom Haus ist und satter klingt und mehr her macht. Aber guter Tipp mit der Holztür, da schaue ich mich mal um. SoL schrieb:
Ich kriege dir Pläne EG und OG bzgl. Garage und diesem X (vermutlich Oberlicht?) Noch nicht übereinander. Bin ich da der Einzige?Also die Pläne sind bis auf den ANbau gleich groß. Die Mauern sind nur nich 100% übereinander. Ich hoffe der Statiker muss sie nicht verrücken ...SoL schrieb:
Falls das im EG unten rechts eine Eckverglasung ist, lasst die weg, kostet nur Geld.Ja, so halb. Eigentlich wollen wir aus Kostengründen zwei Fenster nebeneinander mit eigenen Rahmen.SoL schrieb:
Die Tür zur Garage würde ich auf Höhe der Eingangstür planen, erleichtert das Parken im Carport und minimiert Kratzerwahrscheinlichkeit.Guter Tipp!Danke für eure bisherigen Anregungen!
Denkt ihr, dass hinter der Wohnungseingangstür links (oberhalb vom Büro) genügend Stellfläche für Garderobe und schuhschränke ist?
Das Oberlicht am Carport wollen wir wahrscheinlich aus Kostengründen weglassen (ca. 2000 Euro). Meint ihr, es wird dann zu dunkel im Eingangsbereich unter dem Carport?
M
Myrna_Loy05.09.22 13:01Ich würde das Büro um 60 cm (oder ein bisschen mehr) einkürzen und einen Einbauschrank einplanen.
Ansonsten gefällt mir die Planung gut, auch wenn sie mir persönlich auf der Achse Eingang Flur, Küche zu offen wäre. Eine größere Insel habt Ihr ja schon angedacht. Sonst wäre die Arbeitsfläche in der Küche doch eher knapp.
Ansonsten gefällt mir die Planung gut, auch wenn sie mir persönlich auf der Achse Eingang Flur, Küche zu offen wäre. Eine größere Insel habt Ihr ja schon angedacht. Sonst wäre die Arbeitsfläche in der Küche doch eher knapp.
Myrna_Loy schrieb:
Ich würde das Büro um 60 cm (oder ein bisschen mehr) einkürzen und einen Einbauschrank einplanen.Gute Idee, da vermute ich tatsächlich etwas Chaos ohne einen Einbauschrank. Obwohl dann wieder das Büro mit 8,5-9qm etwas klein werden könnte ...Myrna_Loy schrieb:
Ansonsten gefällt mir die Planung gut, auch wenn sie mir persönlich auf der Achse Eingang Flur, Küche zu offen wäre. Eine größere Insel habt Ihr ja schon angedacht. Sonst wäre die Arbeitsfläche in der Küche doch eher knapp.Danke!In der ersten Planung war die rechte Wand vom Wohnzimmer 80 cm länger, um es etwas mehr als eigenen bereich abzuschotten. Haben das dann aber gekürzt, weil sonst der Abstand zur Kücheninsel zu klein gewesen wäre.
Ich kann es noch nicht ganz einschätzen, ob mich der offene Bereich stört. Mittlerweile sind die meisten Planungen aber so offen.
Ähnliche Themen