Hausbau - Ratgeber
Bauherrenhilfe
- Bauherrenhilfe vor Vertragsabschluss
-- Warum einen unabhängigen Baubetreuer?
-- Vertragsgrundlagen
-- Bausumme
-- Zahlungsplan zur Kostenkontrolle
-- Pflichten des Bauherren vor Vertragsabschluss
-- Unterlagen beim Hausbau vor Vertragsabschluss
- Bauherrenhilfe nach Vertragsabschluss
-- Bauantrag bei Behörden
-- Bau-Genehmigungsverfahren bei Baubehörden
-- Bauspezifische Versicherungen
-- Bauzeitenplan
-- Baubeginn - die Letzten Pflichten der Bauherrschaft
- Bauherrenhilfe während der Bauzeit
- Gewährleistungsansprüche
- Bauabnahme
Baufinanzierung
- Baufinanzierung - Allgemeine Fragen
- Kreditarten
- Kredit-Konditionen
- Bausparen
- Staatliche Förderungen
- Verkehrswert
- Haushaltsrechnung und Bonität
Hausbau Planung
- Haustypen
- Hausbau Vorbereitungsarbeiten
- Das Baugrundstück
- Baugrund beim Hausbau
- Baurecht
- Gebäudeschutz
- Erdarbeiten und Wasserhaltung
- Stützmauern
- Einfriedung
- Untergeschoss
- Kanalisation
- Tragende Elemente
- Nichttragende Innenwände
- Fundation / Fundament
- Deckenkonstruktionen
- Dächer
- Kaminanlagen
- Treppen Rampen Leitern
- Dachbeläge und Spengler
- Fenster
- Sonnen und Wetterschutz
- Aussenputze
- Einbauten, Küchen, Türen
- Bodenbeläge und Unterlagsböden
- Parkett
- Gips, Wand, Decke
Haustechnik und Energie
- Heiztechnik
- Lüftung und Klimatechnik
- Sanitärtechnik
- Elektrotechnik
- Erneuerbare Energie
Whirlpools / Jacuzzi
Hausbau Magazin
- Baufinanzierung trotz Krise?
- Das Blockhaus
- Moderne Dämmstoffe im Vergleich
- Erker Vor- und Nachteile
- Glasflächen beim Hausbau
- Günstig ein Haus Bauen
- Mediterraner Hausbaustil
- Mehrgenerationenhaus
- Moderne Architektur
- Gartengestaltung leicht gemacht
- Traditioneller Ziegelbau
- Villa als höchster Traum
- Im Eigenheim Ruhestand geniessen
- Altbau sanieren
- Kauf einer Holzgarage
- Immobilienmakler
- Arbeitshandschuhe für den Winter
- Zuhause verschönern
- Outdoor-Plissees
- Schlafzimmer planen
- Terrassenüberdachung
- Wohngebäudeversicherung
- Zaunarten und Eigenschaften
- Hauseingang gestalten
- Der perfekte Grundriss
- Sparsamer heizen im Altbau
- Einfamilienhaus smart finanzieren
- Planung einer PV-Anlage
- Neues Haus
- Immobilienfinanzierung
- Installation einer Photovoltaikanlage
- Asbest erkennen und entfernen
- Gartenpflege im Frühling – worauf achten
- Sauna im Fokus - Wellness zuhause
- Erfolgreich vermieten
- Die perfekte Winterbekleidung
- Das Niedrigenergiehaus
- Der April und seine Stürme
- Architektonische Vielfalt
- Ökologisch und nachhaltig bauen
- Das perfekte Schlafzimmer
- Nachhaltige Energieversorgung
- Zukunftsorientiert bauen
- Nachhaltigkeit beim Hausbau
- Tiny Houses
- Wärmepumpen als nachhaltige Heizvariante
- Maßgeschneiderten Kleiderschrank
- Der richtige Baukredit
- Ratgeber für erfolgreichen Hausbau
- Haus als Altersvorsorge
Do-it-yourself Anleitungen
- Verlegeanleitung für Bodenbeläge und Parkett
- Bodenbeläge und Parkett reinigen und pflegen
- Malerarbeiten am Haus
- Garten Tipps
- Umzug und Reinigung

ᐅ Grundrissdiskussion: Einfamilienhaus, 11,3m x 9,4m, 5 Personen, Hanglage

Erstellt am: 19.11.22 10:28
D
diaphon
D
diaphon
19.11.22 10:28

Architekturplan auf Schreibtisch mit Lineal und Rollpapier; Büro im Hintergrund


Hallo zusammen,

Vielen Dank, dass Ihr euch in eurer freien Zeit mit unserem Bauvorhaben beschäftigt!

## Bebauungsplan/Einschränkungen

Grundstück: 635m²
Hang: Ja, Gefälle Diagonal ca. 8,5%
Grundflächenzahl: 0,3
Geschossflächenzahl: 0,4
Für Nebengebäude (Garage, Schuppen) dürfen wir zusätzlich maximal 50m² überbauen.
Anzahl Stellplatz: 3
maximale Firsthöhe: 8,7m
Baufenster, Baulinie und -grenze: Siehe Grundriss EG (Blau: Baufenster, Rot gestrichelt: Nebengebäude)
Höhenlinien: Siehe Grundriss
Dachform und -neigung: 0 bis 50 Grad

## Anforderungen der Bauherren

# Allgemein
5 Personen (2 Erwachsene, 3 Kinder (Alter: 5, 3, 3)
Stadtvilla, Walmdach, 2 Vollgeschosse mit Keller

# Räume
offener All-Raum (Küche, Essen, Wohnen)
offene Küche (G-Form)
4x Schlafzimmer
3x Bäder (1 pro Stockwerk)
1x Büro: Homeoffice
1x Technikraum
1x Hauswirtschaftsraum
2x Garage/Carport
1x Wohnkeller (Wg. Schlafzimmer und Büro, bis zu 1,3m darf der Keller aus dem Boden ragen)
Optional: Ankleide
Optional: Gast
Optional: Speisekammer
Optional: Abstellraum
Optional: Hobbyraum
Optional: Einliegerwohnung (wg. KFW Förderung)

# Haustechnik
Erdwärmepumpe mit Kühlfunktion
Zentrale Lüftungsanlage mit Bypass
Fußbodenheizung
KFW-Standard: So niedrig wie möglich, so hoch wie nötig (Kosten/Nutzen Verhältnis)
KNX: Wo sinnvoll, ja
Optional: Photovoltaik
Optional: Zysterne
Optional: Grauwassernutzung

# Zusatzwünsche
Holz-Kamin (Weil wir die Wärme und das Licht mögen)
Doppelcarport oder 1x Garage + 1x Carport (Für Autos, Fahrräder und Mülltonnen)
Nachhaltigkeit sofern sinnvoll / wirtschaftlich
Optional: Heimkino im Wohnzimmer (Hobby)
Optional: Terrassenüberdachung (Luxus: „Regenfest“ im Garten)
Optional: Werkstatt (Es gibt immer was zu tun.)
Optional: Nutzgarten (Hobby)
Optional: Gewächshaus (Hobby)

# Sonstiges
Abhängig von den Kosten macht es ggf. Sinn manche Dinge beim Bau zu berücksichtigen, die sich nachträglich ergänzen lassen.
Uns ist es wichtiger, dass die Dinge von Anfang an passen, die sich nicht mehr oder nur sehr schwer ändern lassen. (Z. B. Hausgröße, Wände, Fenster, Bussystem, ...).
Dazu sind wir auch bereit bei manchen anderen Dingen (erstmal) Abstriche zu machen. (Z. B. Günstigere Küche, Möbel, Lampen)

## Hausentwurf

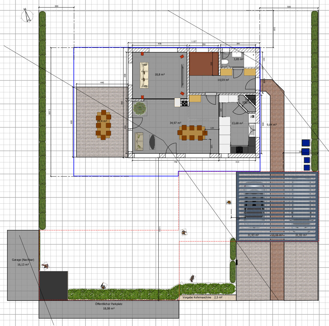
Zur Übersicht, das gesamte Areal mit Baugrenzen für Haus (Blau) und Nebengebäude (rot gestrichelt)
Der Zugang erfolgt nach vorne hin über eine öffentliche Straße.
Unten Links ist ein öffentlicher Parkplatz mit 3 Parkplätzen zwischen 2 Bäumen.
Die 2,5m² unten mittig sind Vorgabe für die Kehrmaschine.
Links angrenzend ans Grundstück
Die Terrasse ist westlich geplant, um im Hochsommer vor der direkten Sonne etwas geschützt zu sein und weil ich mir eine Überdachung wünsche und das Bauamt schon angemerkt hat, dass wir mit einer Überdachung die Baugrenzen nur sehr wenig überschreiten dürfen (1m bis vielleicht 1,5m)


Grundriss eines Einfamilienhauses mit Wohnzimmer, Küche, Essbereich, Terrasse und Garten.


Keller:

Der Keller soll Richtung Norden ca. 1,3m aus dem Boden heraus ragen, so dass wir für das Schlafzimmer und das Büro genügend Licht bekommen können. Zudem ist es Vorgabe das Grundstück nicht einzuebnen.


Grundriss eines Hauses mit Schlafzimmer, Büro, Vorrat/Lager/Werkstatt/Hobby, Bad und HWR.


EG


Grundriss einer Wohnung: Großes Wohnzimmer mit Esstisch, Küche, Schlafzimmer, Bad und Flur.


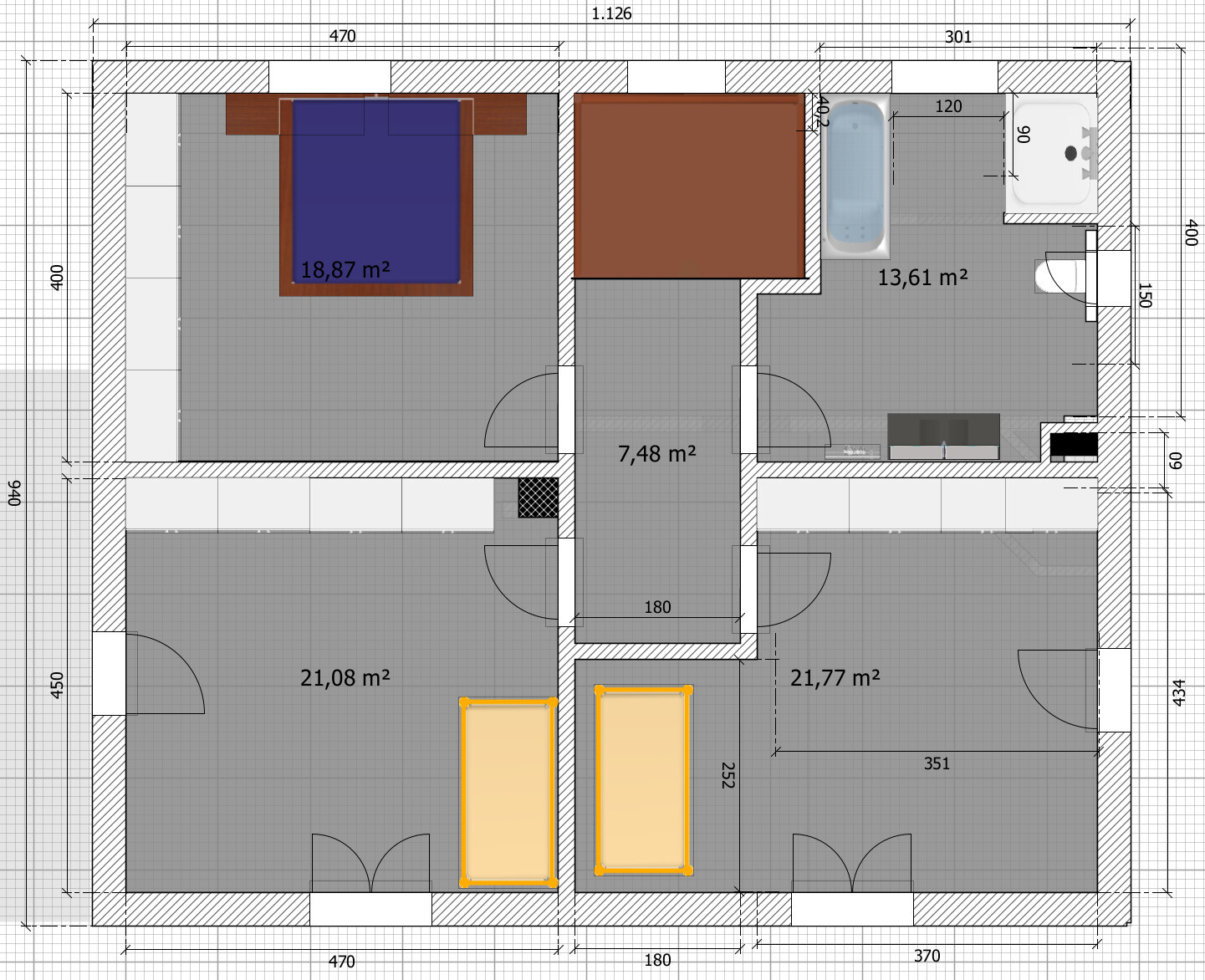
OG:

Im Obergeschoss werden wir nach Norden einen wunderschönen Blick in die Ferne / Landschaft haben. Dort schauen wir über den nördlichen Nachbarn drüber.


Grundriss eines Appartements: Schlafzimmer mit Bett, Bad, Flur und zwei Wohnbereiche.


# Der Grundriss ist eine eigene Kreation, liegt gerade der Architektin vom Bauunternehmen vor.
Insgesamt waren über 40 verschiedene Versionen mit mal größeren oder mal kleineren Anpassungen und unterschiedlichen Ansätzen nötig.
Auch wenn schon viel Zeit und Hirnschmalz in die Planung geflossen ist, freue ich mich auf kompromislos ehrliche und konstruktive Kritik!
Was wir jetzt nicht berücksichtigen, wird vor allem mich nach dem Bau sehr ärgern. Dass nicht immer alles im Nachhinein passen wird, ist mir dennoch klar. ;-)

# Unser Eindruck zum Grundriss
Sehr Gut gefällt uns das Erdgeschoss. Offene Gestaltung von Küche, Essen und (kleinem) Wohnen.
Zusätzlich etwas abgesetzt das (große) Wohnen mit TV. Kamin integriert sich im Zentrum.

So lange die Kids klein sind, können alle oben schlafen.
Später dürfen sich die Kids um das Zimmer im Keller streiten. ;-)

Wir hätten anfangs gerne im OG 4 Schlafzimmer gehabt, aber dann werden die Zimmer klein, das EG und der Keller unverhältnismäßig groß.
Deswegen tendieren wir im Moment zu der Aufteilung von 3 Schlafzimmer im OG und 1 Schlafzimmer mit Büro im KG.

Unsicher bin ich mir bei der Verbindung im EG zwischen All-Raum und dem TV-Raum.
Wie viel sollte man Platz lassen damit die Räume noch getrennt aber offen gestaltet sind.

Der Grundriss und die Zufahrt von Süden machen es aus meiner Sicht schwieriger zu planen.
Durch den Zugang von der Seite haben wir mehr Sicht Richtung Süd-Westen.
Allerdings wird der (unüberdachte) Weg zur Haustür länger.
Ist das ein Problem?

# Was ist die wichtigste/grundlegende Frage zum Grundriss in 130 Zeichen zusammengefasst?
Welche Probleme und/oder Verbesserungsmöglichkeiten seht ihr?

# Weitere Fragen:
Zwischen unserem zukünftigen Haus und einer KiTa ist nur ein weiteres Haus. Auf welche Schalldämmung sollten wir achten?
X
xMisterDx
19.11.22 13:53
diaphon schrieb:

(...)
So lange die Kids klein sind, können alle oben schlafen.
Später dürfen sich die Kids um das Zimmer im Keller streiten. ;-)
(...)

Gewagtes Unterfangen. Entweder eines der Kinder findet so ein Zimmer mit Gucklucke nach Norden im Keller cool...
oder ihr habt 10 oder mehr Jahre Krieg um die Zimmer zuhause.

Zumal das Zimmer im Keller, als Entschädigung für die blöde Lage, auch noch kleiner(!) ist als die Zimmer im OG.
Wenn es mit 25-30m² wenigstens größer wäre, ok. Das wäre ein Argument. Aber so?

PS:
Du kriegst über dieses kleine Fenster niemals nicht genug Licht ins Zimmer. Wir haben ein 1,2m breites bodentiefes Fenster im Kinderzimmer gen Norden und selbst das reicht an einem bewölkten Tag nicht aus.
S
SoL
19.11.22 15:55
Da Ihr Euch ja schon mit KFW beschäftigt:
Wie sieht denn Eure Kriegskasse aus, also wieviel darf das Haus kosten?

Das sind ja effektiv ~ 240m². Ohne alles durchgerechnet zu haben, sage ich mindestens eine 7 am Anfang ohne irgendwelche Nebenkosten...

Habs gefunden im grünen Forum: Das Budget beträgt 650k inkl. Nebenkosten... VERGISS ES!
Wie Dir schon die Kollegen im anderen Forum geschrieben haben (bevor Du netterweise den Startpost gelöscht hast, damit niemand mehr etwas lesen kann): Das Projekt ist zu dem Budget reine Illusion.

Starte neu, kleiner und deutlich (!) bescheidener.
P
Proeter
19.11.22 16:50
Hallo Diaphon,

als erstes würde ich dich bitten, den Fragebogen vollständig auszufüllen. Es scheint, als hättest du damit begonnen, danach aber die Lust verloren und die folgenden Fragen nur noch sehr sporadisch beantwortet.

Erste Eindrücke zum Grundriss: Dein Kinderzimmerkonzept geht nicht auf. Weniger Kinderzimmer als Kinder - mit Plan ein Kind später in den Keller zu schicken? Warum geht ihr als Eltern nicht einfach in den Keller, sobald die Zwillinge nicht mehr zusammen wohnen wollen. Damit schlägst du zwei Fliegen mit einer Klappe: Alle Kinder weiterhin oben in schönen Zimmern - und ihr als Eltern seid weiter weg, was ab einem bestimmten Kindesalter für beiden Seiten ohnehin sehr wünschenswert ist.
Sehe ich es richtig, dass im Badezimmer um Keller keine Toilette ist, weil du dir die Dickstoffpumpe sparen möchtest? Da würde noch einmal drüber nachdenken, wenn da unten auch geschlafen werden soll.

Das Haus kostet in dieser Größe am Hang übrigens über 1 M€. Ist das so geplant?
C
Costruttrice
19.11.22 17:57
diaphon schrieb:

Im Obergeschoss werden wir nach Norden einen wunderschönen Blick in die Ferne / Landschaft haben. Dort schauen wir über den nördlichen Nachbarn drüber.
Aber davon habt ihr, so wie es geplant ist, relativ wenig…
Die abgetrennte Ecke in der Küche finde ich maximalst unpraktisch, die Tür steht immer im Weg, ob einem die Ecke ansonsten gefällt ist Geschmacksache, ich persönlich finde das sieht altmodisch aus, aber es ist ja nicht für mich.
21qm sind schon recht üppig für Kinderzimmer, ist das so gewollt oder hat es sich einfach ergeben, nachdem ihr alles mal untergebracht hattet, was ihr braucht/wünscht?
diaphon schrieb:

Der Grundriss ist eine eigene Kreation, liegt gerade der Architektin vom Bauunternehmen vor.
diaphon schrieb:

Was wir jetzt nicht berücksichtigen, wird vor allem mich nach dem Bau sehr ärgern.
Ich finde bei den Anforderungen sollte ein Architekt da frei ran gehen und einen Entwurf entwickeln, der Eurem Budget und den Anforderungen gerecht wird. Ich würde bei einem Projekt, das sicher an die Million kratzt, nicht meine Laienzeichnung als Weisheit letzter Schluss betrachten und ins Reine zeichnen lassen.
D
diaphon
19.11.22 19:37
Hallo zusammen,

vielen Dank für die zahlreichen Rückmeldungen und bisherigen Hinweise!

Unsere Gedanken zum Thema Schlafzimmer im Keller:
Das Zimmer ist zwar kleiner als die oberen Zimmer, aber hat dafür sein "eigenes" Bad.
Das Schlafzimmer im Keller für die Eltern zu nutzen kam uns auch schon in den Sinn. Nach Rückmeldungen im Bekanntenkreis hatten wir es eher so vernommen, dass die Kids das super finden. Bei Streit müssten wir als Eltern natürlich in den Keller.
Bzgl. genügend Licht bauen wir auf die Erfahrung des Architekten.
Im Keller soll natürlich ein richtiges Bad mit Toilette rein. Ich hätte besser einzeichnen sollen oder weglassen. Sorry.

Zum Thema Budget:
Die 650k waren für das Haus inkl. Ausstattung. Angedacht sind gesamt 750k.
Damit wären wir deutlich unter der hier prognostizierten Million.
Sollte sich die Prognose bestätigen, wovon ich leider jetzt durch eure Erfahrung ausgehen muss, dann müssen wir zurück ans Reißbrett.

Zum Thema Fragebogen:
Eigentlich hatte ich gedacht ich habe die Informationen aus dem Fragebogen in meinen Post einfließen lassen, auch wenn die Reihenfolge etwas anders ist.
Welche Informationen fehlen noch?


Zum Thema Ausblick im OG nach Norden
Costruttrice schrieb:

Aber davon habt ihr, so wie es geplant ist, relativ wenig…
Irgendwelche Ideen? Oder einfach nur größere Fenster?
Costruttrice schrieb:

Die abgetrennte Ecke in der Küche finde ich maximalst unpraktisch, die Tür steht immer im Weg, ob einem die Ecke ansonsten gefällt ist Geschmacksache, ich persönlich finde das sieht altmodisch aus, aber es ist ja nicht für mich.
Der Hinweis hat mich auf eine alternative gebracht. Danke!
Costruttrice schrieb:

21qm sind schon recht üppig für Kinderzimmer, ist das so gewollt oder hat es sich einfach ergeben, nachdem ihr alles mal untergebracht hattet, was ihr braucht/wünscht?
Das hat sich nach einem längeren Prozess so ergeben. Nachfolgend die Erklärung:
Um 4 Schlafzimmer + Bad im OG unterzubringen wäre die Überbaute Grundfläche deutlich größer geworden (~125m²). Durch die Grundflächenzahl sind wir auf ca. 190m² beschränkt. Durch Zufahrt, Terrasse und Weg zum Haus wurde es - aus meiner Sicht - sehr knapp. Der Gedanke war auch bei einem so großen Haus sahen die Kinderzimmer "klein" aus. Die Idee war also bei geringerer überbauten Fläche größere Zimmer zu bekommen. Was letztendlich gedanklich zu einem Wohnkeller geführt hat.
Costruttrice schrieb:

Ich finde bei den Anforderungen sollte ein Architekt da frei ran gehen und einen Entwurf entwickeln, der Eurem Budget und den Anforderungen gerecht wird. Ich würde bei einem Projekt, das sicher an die Million kratzt, nicht meine Laienzeichnung als Weisheit letzter Schluss betrachten und ins Reine zeichnen lassen.
Sehr guter Punkt. Genau das habe ich im Gespräch mit dem Architekten auch angesprochen.
Der Weg zu diesem Grundriss war - gefühlt - relativ lang. Aber die bisherigen Anmerkungen zeigen mir schon ein paar Probleme auf. Nicht zuletzt das Budget. Vor allem für mich war es aber wichtig mich mit dem Thema Grundriss und den Möglichkeiten für das Grundstück auseinanderzusetzen. Erst dadurch kamen einige Anforderungen / Wünsche hinzu.
wohnkellerkinderzimmergrundrissschlafzimmerbaufensterküchegrundstücknebengebäudegaragehang