Unser Haus soll kernsaniert werden und eine Aufstockung erhalten. Das Haus nutzt für die Sanierung die bestehenden Wände zum größten Teil weiter.
Für die Kernsanierung werden alle Wände bis Ok neue Fensterhöhe entfernt dann kommt ein Ringanker und darauf die Aufstockung in Holztafelbauweise. Die vorhandenen Klinkerwände werden mit Holzwolle gedämmt und bekommen eine Vorhangfassade aus Stahlblech Stehpfalz (ist günstiger als Zinkblech?). Das Ziel ist KFW 55 oder besser.
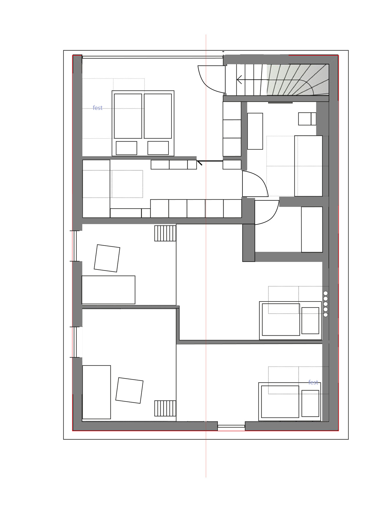
Der Boden im EG wird gedämmt und bekommt eine Fußbodenheizung. Die Treppe in Keller wird um eine Stufe verlängert, daher sind ca. 25 cm Höhe dafür vorhanden.
Im DG bieten sich die Dachschrägen für ein Wandheizung an
Die Kinderzimmer haben eine Galerie, die über eine Leiter erreichbar ist. Sie sind nur über das EG erreichbar. Der Elternbereich ist dadurch privater und evtl. kann man das Haus in ferner Zukunft in zwei Wohneinheiten teilen.
Der Wohn/Essbereich ist kompakt. Die Eingangstür soll aus Glas sein, damit wir die Abendsonne genießen können (zurzeit gibt es auf der Westseite keine Fenster und das ist oft sehr schade). Der Eingang ist weit genug von der Straße entfernt, dass das kein Problem sein sollte.
Grundsätzlich haben wir uns auch gefragt, ob ein Neubau sinnvoller wäre. Momentan tendiere ich aber eher zur Sanierung.
Der Bau soll frühestens in 2025 sein. Wir haben keine Eile, da die Kinder noch klein sind und wir mit unserem Platz gut zurechtkommen.
(Der Lageplan ist genordet)
Bebauungsplan/Einschränkungen
Größe des Grundstücks - 1040 m²
Hang – Leicht, ca. 1,50 m Gefälle
Grundflächenzahl – 0,25
Geschossflächenzahl – 0,4
Geschossigkeit - 1,5
Dachform - frei
Stilrichtung - frei
Ausrichtung – vorhandenes Gebäude
Anforderungen der Bauherren
Stilrichtung, Dachform, Gebäudetyp – Sanierung und Aufstockung des Bestandes
Keller, Geschosse – Halb unterkellert, 1,5 Geschosse
Anzahl der Personen, Alter - 2+2 (4 & 2)
Raumbedarf im EG, OG – EG: 85 m² OG: 55 ²m
Büro: Familiennutzung oder Homeoffice? – Homeoffice in Vollzeit und einmal Halbzeit
Schlafgäste pro Jahr - wenige
offene oder geschlossene Architektur – offener Wohnraum
konservativ oder moderne Bauweise – modern
offene Küche, Kochinsel – ja, ja
Anzahl Essplätze – 4-6
Garage, Carport – vorhanden
Nutzgarten, Treibhaus – vielleicht später
große Zisterne mit Regenwassernutzung im Haus
zentrale Kontrollierte-Wohnraumlüftung – da einige Nachbarn gerne Ihren Kamin anhaben, plus die anderen Vorteile einer Kontrollierte-Wohnraumlüftung
Photovoltaik komplett auf Nord und Süd Dach
der Keller muss neu gedämmt werden
Lehmputz für den Innenausbau
Hausentwurf
Von wem stammt die Planung: mir
Was gefällt besonders? Warum? Durch die Aufstockung bleibt das Haus kompakt
Was gefällt nicht? Warum? – Alles soweit ok
Preisschätzung lt Architekt/Planer: - noch keine Angebote eingeholt
Persönliches Preislimit fürs Haus, inkl Ausstattung: 400k, weniger wäre besser
favorisierte Heiztechnik: - Wärmepumpe mit Ringgrabenkollektor
Wenn Ihr verzichten müsst, auf welche Details/Ausbauten
-könnt Ihr verzichten:
-könnt Ihr nicht verzichten:
Warum ist der Entwurf so geworden, wie er jetzt ist? ZB
- basiert auf den Innenwänden des alten Hauses
- von Anbau sind wir zur Aufstockung gewechselt, da es günstiger ist. Der Ausblick aus dem Elternschlafzimmer ist jetzt auch sehr viel schöner, als es mit einem Anbau gewesen wäre
Was ist die wichtigste/grundlegende Frage zum Grundriss in 130 Zeichen zusammengefasst?
Sehr Ihr ein Problem, dass ich übersehen habe? Eure Meinung ist zwar meistens sehr direkt, aber doch hilfreich :-)







Für die Kernsanierung werden alle Wände bis Ok neue Fensterhöhe entfernt dann kommt ein Ringanker und darauf die Aufstockung in Holztafelbauweise. Die vorhandenen Klinkerwände werden mit Holzwolle gedämmt und bekommen eine Vorhangfassade aus Stahlblech Stehpfalz (ist günstiger als Zinkblech?). Das Ziel ist KFW 55 oder besser.
Der Boden im EG wird gedämmt und bekommt eine Fußbodenheizung. Die Treppe in Keller wird um eine Stufe verlängert, daher sind ca. 25 cm Höhe dafür vorhanden.
Im DG bieten sich die Dachschrägen für ein Wandheizung an
Die Kinderzimmer haben eine Galerie, die über eine Leiter erreichbar ist. Sie sind nur über das EG erreichbar. Der Elternbereich ist dadurch privater und evtl. kann man das Haus in ferner Zukunft in zwei Wohneinheiten teilen.
Der Wohn/Essbereich ist kompakt. Die Eingangstür soll aus Glas sein, damit wir die Abendsonne genießen können (zurzeit gibt es auf der Westseite keine Fenster und das ist oft sehr schade). Der Eingang ist weit genug von der Straße entfernt, dass das kein Problem sein sollte.
Grundsätzlich haben wir uns auch gefragt, ob ein Neubau sinnvoller wäre. Momentan tendiere ich aber eher zur Sanierung.
Der Bau soll frühestens in 2025 sein. Wir haben keine Eile, da die Kinder noch klein sind und wir mit unserem Platz gut zurechtkommen.
(Der Lageplan ist genordet)
Bebauungsplan/Einschränkungen
Größe des Grundstücks - 1040 m²
Hang – Leicht, ca. 1,50 m Gefälle
Grundflächenzahl – 0,25
Geschossflächenzahl – 0,4
Geschossigkeit - 1,5
Dachform - frei
Stilrichtung - frei
Ausrichtung – vorhandenes Gebäude
Anforderungen der Bauherren
Stilrichtung, Dachform, Gebäudetyp – Sanierung und Aufstockung des Bestandes
Keller, Geschosse – Halb unterkellert, 1,5 Geschosse
Anzahl der Personen, Alter - 2+2 (4 & 2)
Raumbedarf im EG, OG – EG: 85 m² OG: 55 ²m
Büro: Familiennutzung oder Homeoffice? – Homeoffice in Vollzeit und einmal Halbzeit
Schlafgäste pro Jahr - wenige
offene oder geschlossene Architektur – offener Wohnraum
konservativ oder moderne Bauweise – modern
offene Küche, Kochinsel – ja, ja
Anzahl Essplätze – 4-6
Garage, Carport – vorhanden
Nutzgarten, Treibhaus – vielleicht später
große Zisterne mit Regenwassernutzung im Haus
zentrale Kontrollierte-Wohnraumlüftung – da einige Nachbarn gerne Ihren Kamin anhaben, plus die anderen Vorteile einer Kontrollierte-Wohnraumlüftung
Photovoltaik komplett auf Nord und Süd Dach
der Keller muss neu gedämmt werden
Lehmputz für den Innenausbau
Hausentwurf
Von wem stammt die Planung: mir
Was gefällt besonders? Warum? Durch die Aufstockung bleibt das Haus kompakt
Was gefällt nicht? Warum? – Alles soweit ok
Preisschätzung lt Architekt/Planer: - noch keine Angebote eingeholt
Persönliches Preislimit fürs Haus, inkl Ausstattung: 400k, weniger wäre besser
favorisierte Heiztechnik: - Wärmepumpe mit Ringgrabenkollektor
Wenn Ihr verzichten müsst, auf welche Details/Ausbauten
-könnt Ihr verzichten:
-könnt Ihr nicht verzichten:
Warum ist der Entwurf so geworden, wie er jetzt ist? ZB
- basiert auf den Innenwänden des alten Hauses
- von Anbau sind wir zur Aufstockung gewechselt, da es günstiger ist. Der Ausblick aus dem Elternschlafzimmer ist jetzt auch sehr viel schöner, als es mit einem Anbau gewesen wäre
Was ist die wichtigste/grundlegende Frage zum Grundriss in 130 Zeichen zusammengefasst?
Sehr Ihr ein Problem, dass ich übersehen habe? Eure Meinung ist zwar meistens sehr direkt, aber doch hilfreich :-)
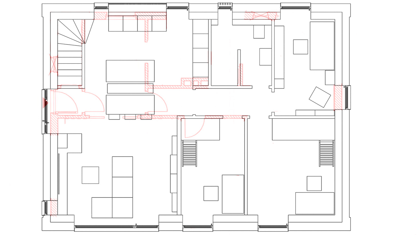
So ganz ohne Garderobe? Wohin kommen Schuhe, Jacken, Taschen, Schulranzen?
Der Eingangsbereich sieht nach Showroom nicht nach Wohnhaus aus.
Den Rest bezeichne ich mal als unkonventionell, aber spannend. Da würde ich mir aber mal noch vertieft Gedanken machen wie die Nutzbarkeit über die nächsten X Jahre aussieht. Ich würde so nicht bauen.
Der Eingangsbereich sieht nach Showroom nicht nach Wohnhaus aus.
Den Rest bezeichne ich mal als unkonventionell, aber spannend. Da würde ich mir aber mal noch vertieft Gedanken machen wie die Nutzbarkeit über die nächsten X Jahre aussieht. Ich würde so nicht bauen.
Das ist ja eigentlich keine Kernsanierung, sondern ein komplett neues Haus, nur halt mit den alten Außenwänden im EG. Im neuen Allraum werdet Ihr erstmal schauen müssen, wie ihr das statisch hinbekommt.
Budgetseitig bin ich zwiegespalten, weil Ihre ja tatsächlich ALLES neu macht.
Was mir gefällt sind die zweistöckigen Kinderzimmer. Zugang zum oberen Teil sollte über eine Möbeltreppe erfolgen, nicht wie geplant über eine Leiter. Vor allem nicht, wenn oben geschlafen wird und die Kinder noch klein sind. Vereinfacht auch das Staubsaugen oben.
Der nicht vorhandene Eingangsbereich und die fehlende Garderobe passen eher zu einem kleinen Ferienhaus, als zum Einfamilienhaus.
Budgetseitig bin ich zwiegespalten, weil Ihre ja tatsächlich ALLES neu macht.
Was mir gefällt sind die zweistöckigen Kinderzimmer. Zugang zum oberen Teil sollte über eine Möbeltreppe erfolgen, nicht wie geplant über eine Leiter. Vor allem nicht, wenn oben geschlafen wird und die Kinder noch klein sind. Vereinfacht auch das Staubsaugen oben.
Der nicht vorhandene Eingangsbereich und die fehlende Garderobe passen eher zu einem kleinen Ferienhaus, als zum Einfamilienhaus.
RomeoZwo schrieb:
So ganz ohne Garderobe? Wohin kommen Schuhe, Jacken, Taschen, Schulranzen?Neben dem Eingang ist ein raumhoher Schrank und die Schuhe kommen in die Sitzbank daneben. Das dann mehr viel mehr Platz für Jacken und Schuhe, als wir jetzt haben. Also für uns eine große Verbesserung.Ich habe keinen vermaßen Grundriss angehängt. Im Grundriss EG sind rosa Quadrate die 1m x 1m groß sind.
H
hanghaus202313.02.23 12:26Die Treppe und der Eingang funktionieren nicht. 16 Stufen a 26cm sind 3,9 m Lauflänge
Gibt es auch irgendwelche Abmessungen?
Plan vom Keller?
Wenn Du schon selber planst, dann bitte richtig. Der Abbruch wird gelb gestrichelt und der Neubau rot dargestellt. Original verbleibend schwarz.
So den Eingang, das man gleich im Wohnzimmer ist, kenne ich nur aus Nordamerika.
70 cm Außenwände im EG?
Stegfalz ist eine sehr teure Fassade und Dacheindeckung.
Dach mit vielen Dachflächenfenster und Photovoltaik vertragen sich nicht gut.
Das Schlafzimmer Fenster sollte eine gute Beschattung erhalten. Die ist auch sehr teuer.
Das Haus ist relativ groß. Da geht bestimmt noch einiges besser zu planen.
Die Badewanne direkt an den Kniestock? Wie will man da einsteigen?
Die Geschossfläche 9,5*13 = 123,5 m2 * 2 * 2.400 Euro = 592.800 Euro + 10% Sonstiges. Wir reden hier von 650 k
Gibt es auch irgendwelche Abmessungen?
Plan vom Keller?
Wenn Du schon selber planst, dann bitte richtig. Der Abbruch wird gelb gestrichelt und der Neubau rot dargestellt. Original verbleibend schwarz.
So den Eingang, das man gleich im Wohnzimmer ist, kenne ich nur aus Nordamerika.
70 cm Außenwände im EG?
Stegfalz ist eine sehr teure Fassade und Dacheindeckung.
Dach mit vielen Dachflächenfenster und Photovoltaik vertragen sich nicht gut.
Das Schlafzimmer Fenster sollte eine gute Beschattung erhalten. Die ist auch sehr teuer.
Das Haus ist relativ groß. Da geht bestimmt noch einiges besser zu planen.
Die Badewanne direkt an den Kniestock? Wie will man da einsteigen?
Die Geschossfläche 9,5*13 = 123,5 m2 * 2 * 2.400 Euro = 592.800 Euro + 10% Sonstiges. Wir reden hier von 650 k
H
hanghaus202313.02.23 12:46Gibt es Bilder und Pläne vom Bestand?
Ähnliche Themen