Guten Tag zusammen,
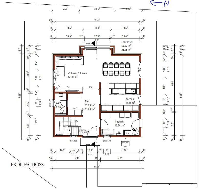
wir befinden uns in den finalen Zügen mit dem Architekten und mittlerweile werde ich von Tag zu Tag unsicherer ob der Grundriss so Alltagstauglich ist oder kompletter Unsinn.
Bebauungsplan/Einschränkungen
Größe des Grundstücks: 635m²
Hang: Nein
Grundflächenzahl: nein (§34 Orientierung an Nachbarbebauung)
Baufenster, Baulinie und -grenze: werden mit dem Grundriss eingehalten. 3m zum Nachbar und 7m zur Straße.
Anzahl Stellplatz: 2
Geschossigkeit: 1,5 mit 75 cm Kniestock. 4m Traufhöhe ist dort max.
Dachform: Satteldach
Anforderungen der Bauherren
Stilrichtung, Dachform, Gebäudetyp: möglichst modern
Keller, Geschosse: kein Keller
Anzahl der Personen, Alter: 4 Personen, Kinder sind 3 und 1
Büro: Familiennutzung oder Homeoffice?: Nein
Schlafgäste pro Jahr: Selten bis nie
Hausentwurf
Von wem stammt die Planung:
-Architekt /Do-it-Yourself
Was gefällt besonders? Warum?
- Die offene Küche und die Anordnung des Badezimmers im OG
Was gefällt nicht? Warum?
- Die Treppe sofort im Eingangsbereich und das die Diele vor dem WC ist
favorisierte Heiztechnik: Luftwärmepumpe
Warum ist der Entwurf so geworden, wie er jetzt ist? ZB
Standardentwurf vom Planer?
Das war zunächst ein Standardentwurf von unserem Architekten der dann Stück für Stück von uns verändert wurde. Der aktuelle Grundriss hat beinahe nichts mehr mit dem Original zu tun. Genau deswegen sind wir uns nicht mehr so sicher, da wir so weit von dem "Standard" weg sind.



wir befinden uns in den finalen Zügen mit dem Architekten und mittlerweile werde ich von Tag zu Tag unsicherer ob der Grundriss so Alltagstauglich ist oder kompletter Unsinn.
Bebauungsplan/Einschränkungen
Größe des Grundstücks: 635m²
Hang: Nein
Grundflächenzahl: nein (§34 Orientierung an Nachbarbebauung)
Baufenster, Baulinie und -grenze: werden mit dem Grundriss eingehalten. 3m zum Nachbar und 7m zur Straße.
Anzahl Stellplatz: 2
Geschossigkeit: 1,5 mit 75 cm Kniestock. 4m Traufhöhe ist dort max.
Dachform: Satteldach
Anforderungen der Bauherren
Stilrichtung, Dachform, Gebäudetyp: möglichst modern
Keller, Geschosse: kein Keller
Anzahl der Personen, Alter: 4 Personen, Kinder sind 3 und 1
Büro: Familiennutzung oder Homeoffice?: Nein
Schlafgäste pro Jahr: Selten bis nie
Hausentwurf
Von wem stammt die Planung:
-Architekt /Do-it-Yourself
Was gefällt besonders? Warum?
- Die offene Küche und die Anordnung des Badezimmers im OG
Was gefällt nicht? Warum?
- Die Treppe sofort im Eingangsbereich und das die Diele vor dem WC ist
favorisierte Heiztechnik: Luftwärmepumpe
Warum ist der Entwurf so geworden, wie er jetzt ist? ZB
Standardentwurf vom Planer?
Das war zunächst ein Standardentwurf von unserem Architekten der dann Stück für Stück von uns verändert wurde. Der aktuelle Grundriss hat beinahe nichts mehr mit dem Original zu tun. Genau deswegen sind wir uns nicht mehr so sicher, da wir so weit von dem "Standard" weg sind.
K
K a t j a18.07.22 14:47Nunja, das OG ist schon etwas "skurril". Die Lage entspannt sich sofort dramatisch, wenn Gäste-WC und Treppe die Plätze wechseln. Spricht was dagegen?
btw: nur 30iger Außen-Wände?
Diese Kücheninsel sieht aus, wie eine Drohung. Was ist das für ein Monster und habt Ihr da schon fertige Pläne?
btw: nur 30iger Außen-Wände?
Diese Kücheninsel sieht aus, wie eine Drohung. Was ist das für ein Monster und habt Ihr da schon fertige Pläne?
K a t j a schrieb:
Nunja, das OG ist schon etwas "skurril". Die Lage entspannt sich sofort dramatisch, wenn Gäste-WC und Treppe die Plätze wechseln. Spricht was dagegen?Richtig, ansonsten funktioniert der Grundriss...M
motorradsilke18.07.22 14:58Ich würde auch den Bereich Treppe und WC plus Diele tauschen. Dann hast du die Schuhe und Sachen gleich im Eingangsbereich und musst nicht mit dreckigen Schuhen an der Treppe vorbei.
K
K a t j a18.07.22 15:06Grundsätzlich stellt sich auch die Frage der Ausrichtung. Momentan schaut Ihr zum Friedhof, anstatt in Euren Garten.
Wie befahren ist die Straße und bitte mal die Terrasse mit 3m Abstand zum Nachbarn einzeichnen! Wie tief wird die im Osten?
Wie befahren ist die Straße und bitte mal die Terrasse mit 3m Abstand zum Nachbarn einzeichnen! Wie tief wird die im Osten?
Ähnliche Themen