W
Mein Konto
Hausbau - Ratgeber
Bauherrenhilfe
- Bauherrenhilfe vor Vertragsabschluss
-- Warum einen unabhängigen Baubetreuer?
-- Vertragsgrundlagen
-- Bausumme
-- Zahlungsplan zur Kostenkontrolle
-- Pflichten des Bauherren vor Vertragsabschluss
-- Unterlagen beim Hausbau vor Vertragsabschluss
- Bauherrenhilfe nach Vertragsabschluss
-- Bauantrag bei Behörden
-- Bau-Genehmigungsverfahren bei Baubehörden
-- Bauspezifische Versicherungen
-- Bauzeitenplan
-- Baubeginn - die Letzten Pflichten der Bauherrschaft
- Bauherrenhilfe während der Bauzeit
- Gewährleistungsansprüche
- Bauabnahme
Baufinanzierung
- Baufinanzierung - Allgemeine Fragen
- Kreditarten
- Kredit-Konditionen
- Bausparen
- Staatliche Förderungen
- Verkehrswert
- Haushaltsrechnung und Bonität
Hausbau Planung
- Haustypen
- Hausbau Vorbereitungsarbeiten
- Das Baugrundstück
- Baugrund beim Hausbau
- Baurecht
- Gebäudeschutz
- Erdarbeiten und Wasserhaltung
- Stützmauern
- Einfriedung
- Untergeschoss
- Kanalisation
- Tragende Elemente
- Nichttragende Innenwände
- Fundation / Fundament
- Deckenkonstruktionen
- Dächer
- Kaminanlagen
- Treppen Rampen Leitern
- Dachbeläge und Spengler
- Fenster
- Sonnen und Wetterschutz
- Aussenputze
- Einbauten, Küchen, Türen
- Bodenbeläge und Unterlagsböden
- Parkett
- Gips, Wand, Decke
Haustechnik und Energie
- Heiztechnik
- Lüftung und Klimatechnik
- Sanitärtechnik
- Elektrotechnik
- Erneuerbare Energie
Whirlpools / Jacuzzi
Hausbau Magazin
- Baufinanzierung trotz Krise?
- Das Blockhaus
- Moderne Dämmstoffe im Vergleich
- Erker Vor- und Nachteile
- Glasflächen beim Hausbau
- Günstig ein Haus Bauen
- Mediterraner Hausbaustil
- Mehrgenerationenhaus
- Moderne Architektur
- Gartengestaltung leicht gemacht
- Traditioneller Ziegelbau
- Villa als höchster Traum
- Im Eigenheim Ruhestand geniessen
- Altbau sanieren
- Kauf einer Holzgarage
- Immobilienmakler
- Arbeitshandschuhe für den Winter
- Zuhause verschönern
- Outdoor-Plissees
- Schlafzimmer planen
- Terrassenüberdachung
- Wohngebäudeversicherung
- Zaunarten und Eigenschaften
- Hauseingang gestalten
- Der perfekte Grundriss
- Sparsamer heizen im Altbau
- Einfamilienhaus smart finanzieren
- Planung einer PV-Anlage
- Neues Haus
- Immobilienfinanzierung
- Installation einer Photovoltaikanlage
- Asbest erkennen und entfernen
- Sauna im Fokus - Wellness zuhause
- Erfolgreich vermieten
- Die perfekte Winterbekleidung
- Das Niedrigenergiehaus
- Der April und seine Stürme
- Architektonische Vielfalt
- Ökologisch und nachhaltig bauen
- Das perfekte Schlafzimmer
- Nachhaltige Energieversorgung
- Zukunftsorientiert bauen
- Nachhaltigkeit beim Hausbau
- Tiny Houses
- Wärmepumpen als nachhaltige Heizvariante
- Maßgeschneiderten Kleiderschrank
- Der richtige Baukredit
- Ratgeber für erfolgreichen Hausbau
- Haus als Altersvorsorge
Do-it-yourself Anleitungen
- Verlegeanleitung für Bodenbeläge und Parkett
- Bodenbeläge und Parkett reinigen und pflegen
- Malerarbeiten am Haus
- Garten Tipps
- Umzug und Reinigung

ᐅ Grundriss und Aufstockung eines Hauses - Baujahr 1966


Erstellt am: 13.02.23 10:46

alles3d13.02.23 10:46
Unser Haus soll kernsaniert werden und eine Aufstockung erhalten. Das Haus nutzt für die Sanierung die bestehenden Wände zum größten Teil weiter.

Für die Kernsanierung werden alle Wände bis Ok neue Fensterhöhe entfernt dann kommt ein Ringanker und darauf die Aufstockung in Holztafelbauweise. Die vorhandenen Klinkerwände werden mit Holzwolle gedämmt und bekommen eine Vorhangfassade aus Stahlblech Stehpfalz (ist günstiger als Zinkblech?). Das Ziel ist KFW 55 oder besser.
Der Boden im EG wird gedämmt und bekommt eine Fußbodenheizung. Die Treppe in Keller wird um eine Stufe verlängert, daher sind ca. 25 cm Höhe dafür vorhanden.
Im DG bieten sich die Dachschrägen für ein Wandheizung an
Die Kinderzimmer haben eine Galerie, die über eine Leiter erreichbar ist. Sie sind nur über das EG erreichbar. Der Elternbereich ist dadurch privater und evtl. kann man das Haus in ferner Zukunft in zwei Wohneinheiten teilen.
Der Wohn/Essbereich ist kompakt. Die Eingangstür soll aus Glas sein, damit wir die Abendsonne genießen können (zurzeit gibt es auf der Westseite keine Fenster und das ist oft sehr schade). Der Eingang ist weit genug von der Straße entfernt, dass das kein Problem sein sollte.

Grundsätzlich haben wir uns auch gefragt, ob ein Neubau sinnvoller wäre. Momentan tendiere ich aber eher zur Sanierung.
Der Bau soll frühestens in 2025 sein. Wir haben keine Eile, da die Kinder noch klein sind und wir mit unserem Platz gut zurechtkommen.

(Der Lageplan ist genordet)

Bebauungsplan/Einschränkungen
Größe des Grundstücks - 1040 m²
Hang – Leicht, ca. 1,50 m Gefälle
Grundflächenzahl – 0,25
Geschossflächenzahl – 0,4
Geschossigkeit - 1,5
Dachform - frei
Stilrichtung - frei
Ausrichtung – vorhandenes Gebäude

Anforderungen der Bauherren
Stilrichtung, Dachform, Gebäudetyp – Sanierung und Aufstockung des Bestandes
Keller, Geschosse – Halb unterkellert, 1,5 Geschosse
Anzahl der Personen, Alter - 2+2 (4 & 2)
Raumbedarf im EG, OG – EG: 85 m² OG: 55 ²m
Büro: Familiennutzung oder Homeoffice? – Homeoffice in Vollzeit und einmal Halbzeit
Schlafgäste pro Jahr - wenige
offene oder geschlossene Architektur – offener Wohnraum
konservativ oder moderne Bauweise – modern
offene Küche, Kochinsel – ja, ja
Anzahl Essplätze – 4-6
Garage, Carport – vorhanden
Nutzgarten, Treibhaus – vielleicht später
große Zisterne mit Regenwassernutzung im Haus
zentrale Kontrollierte-Wohnraumlüftung – da einige Nachbarn gerne Ihren Kamin anhaben, plus die anderen Vorteile einer Kontrollierte-Wohnraumlüftung
Photovoltaik komplett auf Nord und Süd Dach
der Keller muss neu gedämmt werden
Lehmputz für den Innenausbau

Hausentwurf
Von wem stammt die Planung: mir
Was gefällt besonders? Warum? Durch die Aufstockung bleibt das Haus kompakt
Was gefällt nicht? Warum? – Alles soweit ok
Preisschätzung lt Architekt/Planer: - noch keine Angebote eingeholt
Persönliches Preislimit fürs Haus, inkl Ausstattung: 400k, weniger wäre besser
favorisierte Heiztechnik: - Wärmepumpe mit Ringgrabenkollektor

Wenn Ihr verzichten müsst, auf welche Details/Ausbauten
-könnt Ihr verzichten:
-könnt Ihr nicht verzichten:

Warum ist der Entwurf so geworden, wie er jetzt ist? ZB
- basiert auf den Innenwänden des alten Hauses
- von Anbau sind wir zur Aufstockung gewechselt, da es günstiger ist. Der Ausblick aus dem Elternschlafzimmer ist jetzt auch sehr viel schöner, als es mit einem Anbau gewesen wäre

Was ist die wichtigste/grundlegende Frage zum Grundriss in 130 Zeichen zusammengefasst?

Sehr Ihr ein Problem, dass ich übersehen habe? Eure Meinung ist zwar meistens sehr direkt, aber doch hilfreich :-)
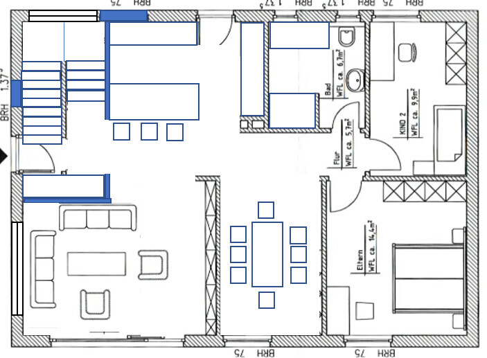
Grundriss eines Hauses mit mehreren Zimmern, Treppenhaus, Türen und Möbeln.

Lageplan eines Gebäudes mit umlaufendem Garten, Zufahrt, Terrassen und separatem Innenraum-Plan.

Moderne zweigeschossige Gebäudestruktur mit Holzwand, großen Fenstern und blauer Fassadenverkleidung

Heller Küchen-Essbereich mit Holz-Tisch, drei Stühlen und Holzwandschränken; Tür zum Balkon.

Querschnitt eines Hauses mit Treppe, Zwischengeschoss, geneigtem Dach und Höhenmarkierungen.

Grundriss eines Wohnhauses von oben mit mehreren Zimmern, Treppen, Möbeln und roten Markierungen.

2D-Grundrissplan eines Hauses mit Treppe, Küchenbereich und Wohnbereichen
RomeoZwo13.02.23 11:06
So ganz ohne Garderobe? Wohin kommen Schuhe, Jacken, Taschen, Schulranzen?
Der Eingangsbereich sieht nach Showroom nicht nach Wohnhaus aus.
Den Rest bezeichne ich mal als unkonventionell, aber spannend. Da würde ich mir aber mal noch vertieft Gedanken machen wie die Nutzbarkeit über die nächsten X Jahre aussieht. Ich würde so nicht bauen.
SoL13.02.23 11:12
Das ist ja eigentlich keine Kernsanierung, sondern ein komplett neues Haus, nur halt mit den alten Außenwänden im EG. Im neuen Allraum werdet Ihr erstmal schauen müssen, wie ihr das statisch hinbekommt.
Budgetseitig bin ich zwiegespalten, weil Ihre ja tatsächlich ALLES neu macht.

Was mir gefällt sind die zweistöckigen Kinderzimmer. Zugang zum oberen Teil sollte über eine Möbeltreppe erfolgen, nicht wie geplant über eine Leiter. Vor allem nicht, wenn oben geschlafen wird und die Kinder noch klein sind. Vereinfacht auch das Staubsaugen oben.

Der nicht vorhandene Eingangsbereich und die fehlende Garderobe passen eher zu einem kleinen Ferienhaus, als zum Einfamilienhaus.
alles3d13.02.23 11:14
RomeoZwo schrieb:

So ganz ohne Garderobe? Wohin kommen Schuhe, Jacken, Taschen, Schulranzen?
Neben dem Eingang ist ein raumhoher Schrank und die Schuhe kommen in die Sitzbank daneben. Das dann mehr viel mehr Platz für Jacken und Schuhe, als wir jetzt haben. Also für uns eine große Verbesserung.

Ich habe keinen vermaßen Grundriss angehängt. Im Grundriss EG sind rosa Quadrate die 1m x 1m groß sind.
hanghaus202313.02.23 12:26
Die Treppe und der Eingang funktionieren nicht. 16 Stufen a 26cm sind 3,9 m Lauflänge

Gibt es auch irgendwelche Abmessungen?

Plan vom Keller?

Wenn Du schon selber planst, dann bitte richtig. Der Abbruch wird gelb gestrichelt und der Neubau rot dargestellt. Original verbleibend schwarz.

So den Eingang, das man gleich im Wohnzimmer ist, kenne ich nur aus Nordamerika.

70 cm Außenwände im EG?

Stegfalz ist eine sehr teure Fassade und Dacheindeckung.

Dach mit vielen Dachflächenfenster und Photovoltaik vertragen sich nicht gut.

Das Schlafzimmer Fenster sollte eine gute Beschattung erhalten. Die ist auch sehr teuer.

Das Haus ist relativ groß. Da geht bestimmt noch einiges besser zu planen.

Die Badewanne direkt an den Kniestock? Wie will man da einsteigen?

Die Geschossfläche 9,5*13 = 123,5 m2 * 2 * 2.400 Euro = 592.800 Euro + 10% Sonstiges. Wir reden hier von 650 k
hanghaus202313.02.23 12:46
Gibt es Bilder und Pläne vom Bestand?
eingangsbereichaufstockungkernsanierungkellerdachformgrundrisswändetreppekinderzimmerfenster