Grundriss Stadtvilla 155qm - eure Meinung ist gefragt

4,80 Stern(e) 11 Votes
Zuletzt aktualisiert 07.01.2026
Sie befinden sich auf der Seite 4 der Diskussion zum Thema: Grundriss Stadtvilla 155qm - eure Meinung ist gefragt
>> Zum 1. Beitrag <<

B

bafische

Aus meiner Sicht hat der TE das klar gesagt:

a) das möchte er: unseren Senf zu dieser Grundrissplanung.

b) das möchte er nicht: die Platzierung des Hauses im Baufenster nochmals aufrollen.

Wenn ich recht erinnere, wurde dieser Aspekt im von mir verlinkten vorherigen Thread des TE schon kreuz und quer beleuchtet und hinterfragt; insofern scheint es mir ein legitimer Wunsch, diesen Thread nicht zum "Wiederaufnahmeverfahren" auszubauen, sondern den Lageplan rein als Hintergrundinformation zu verwenden und auf dieser Grundlage lediglich die "innere" Raumanordnung zu diskutieren.

Der weiterführende Hinweis "wenn das Wörtchen ´wenn´ nicht wär´, stünde das Haus anders noch besser" hat objektiv seine Berechtigung, wurde aber formell "in der Vorinstanz" schon berücksichtigt und darf vom TE wohl als "austherapiert" angesehen werden. Also mögen wir uns auf die gewünschte Grundrisskritik beschränken.

Die fällt dann meinserseits auch entsprechend knapp aus: global gesehen finde ich den Entwurf okay, mir persönlich hat der Baukörper einen Tick zu viel Symmetrie.
Hallo 11Ant,
Danke für die klärenden Worte und für deine klare Einschätzung unserer Bauplanung.
Uns ist bewusst, daß wir hier keinen neuen Design-Klassiker bauen werden. Es soll einfach, geradlinig und extrem kostensparend gebaut werden. Dem Entwurf würden 5-10qm Grundfläche mehr sicherlich guttun, der Bebauungsplan gibt aber nicht mehr her.
Das meiste Kapital haben wir in die Lage, also Grundstück, investiert, da bleibt für den Hausbau nur das kleine Besteck. Das war unsere Entscheidung.
 
Y

ypg

Zu den Fenstern:
Macht Euch bewusst, ob ihr ein modernes, eher von außen extravagantes oder ein langweiliges, also symmetrisches Haus haben wollt.
Entsprechend setzt die Fenster: fürs zweitere alles schön symmetrisch bzw übereinander, auch seitlich.
Ersteres darf aufgelockert sein, also nach Möglichkeit keine eintönige Fensterflächenanordnung wie jetzt im Süden, sondern eben mal eins über die Ecke versetzen, um 90 Grad kippen, also legen als Fensterband oder weglassen. Kinderzimmer haben mit Brüstungsfenstern mehr Privatsphäre als mit bodentiefen, gilt für alle Schlafzimmer.
 
B

bafische

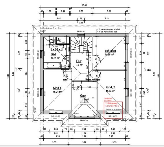
Anbei die 90% Eingabeplanung und diese durchläuft jetzt den finalen Schliff mit dem Planer.
Konstruktive Kritik ist willkommen.
Die Küche ist nicht korrekt dargestellt, wird aber eine 2 Zeilen Küche mit einer 1m breiten Kochinsel, Tür wird eine Schiebetür.
Unter der Beton-Treppe kommt eine Einbaulösung als Stauraum zur Anwendung.

3D-Modell eines modernen grauen Einfamilienhauses mit dunklem Dach und Fenstern.

Modernes zweigeschossiges Haus mit weißen Außenwänden, dunklem Dach, großen Fenstern und Terrasse.

Grundriss eines Hauses: Wohnzimmer/Essen, Küche, Diele, HWR, Treppenhaus, Maßangaben.

Grundriss eines Hauses: Flur, Bad, Schlafen, Kind 1, Kind 2, Gast; Raumaufteilung mit Maßen.
 
kaho674

kaho674

Ich hab mir die Sache mal geschnappt und versucht, die Ansichten etwas aufzupeppen. Mein Programm ist etwas älter, deswegen sieht das vielleicht etwas altbacken aus - aber das Ziel wird hoffentlich klar. (Innen nur angedeutet)

Die Fenster sind natürlich in erster Linie für die Innenraumbelichtung gedacht. Aber danach müssen sie sich auch der Außenansicht fügen. Da müssen auch manchmal Opfer gebracht werden, damit die Sache harmonisch wirkt.

Ich mag es eigentlich nicht, wenn jede Seite andere Fensterbreiten hat. Aber bevor es totales Kauderwelsch wird, da nehm ich das in Kauf:
Hier mal ein Versuch, möglicherweise hat der Architekt aber noch viel bessere Lösungen. Die kaschieren ja auch manchmal sehr gut mit Farbabsätzen in der Fassade - das kann Wunder wirken -auch wenn manche (@11ant ) das nicht mögen.

Ist nur 1 Variante. Wenn noch jemand bessere Ideen hat, gern her damit. Jetzt hab ich die Kiste einmal im Programm...



Grundrissplan eines Gebäudes: Räume, Treppen, Türen; violette Wände, Maße sichtbar


Grundriss eines Wohnhauses mit zentraler Treppe, mehreren Zimmern; Bett im Schlafzimmer rechts.


Zweistöckiges graues Haus mit braunen Fensterrahmen, dunklem Dach, steht auf Grasfläche.


Zweistöckiges Hausmodell mit großen Fensterfronten; Innenraum mit Küche sichtbar.


Zweistöckiges graues Haus mit offenen Fenstern und Tür; Innenraum sichtbar, Grasfläche davor.


Zweistöckiges unfertiges graues Haus mit Holzfensterrahmen auf grünem Rasen; Innenraum sichtbar.
 
I

Ivon558

Hallo, ich habe mich hier einmal umgeschaut und finde es eigentlich sehr schön und hätte zwei Fragen.

Welches Programm hast du für die Erstellung verwendet?
Warum hast du oben nur eine Brüstungshöhe von 40 oder 60 verwendet? Davorstellen kann ich ja dort eigentlich auch nichts, oder?

Vielleicht waren die Fragen auch schon mehrfach beantwortet worden und ich habe es nicht gesehen.

Vielen Dank
 
11ant

11ant

Zugegebenermaßen habe ich diesen Thread gerade nicht im Volltext in der Erinnerung ;-) und möchte ihn bei dem für die Jahreszeit freundlichen Spazierwetter auch nicht nochmal zurückscrollen - möglicherweise hattest Du meine Frage also schon´mal beantwortet.

In einem anderen Thread - den ich hierfür nicht "kapern" möchte" - hast Du erwähnt:
Baubegleitung ab der ersten Idee und Bauherrenrechtsschutz über 5 Jahre haben mich am Ende zusammen weniger als 1% der Bausumme gekostet. Es war mein 4tes Bauvorhaben und wähnte mich als erfahren - doch auch zukünftig würde ich kein Bauvorhaben ohne die zwei angehen.
Magst Du hier (oder in einem weiteren Thread) einmal referieren, wie diese vier Bauvorhaben abgelaufen sind: in welchen Jahren haben diese begonnen, waren es Neu- oder Umbauten, wie hast Du die Bauunternehmen (GU, Einzelvergaben) gefunden, mit welcher Beratung, mit welcher Planung (Zeichenknecht des GU, Architekt LP von bis), welcher Begleitung / Bauleitung, und was waren Deine Lehren oder gar lehrreichsten Fehler ?
Wurden die Bauvorhaben Zwei bis Vier von veränderten Umständen angestoßen, oder vom Antrieb, Bauherrenfehler nach Art der Treppe "erstes Haus für einen Feind, ..." beim Nächstenmal wegzulassen ?
 
Zuletzt aktualisiert 07.01.2026
Im Forum Grundrissplanung / Grundstücksplanung gibt es 2565 Themen mit insgesamt 88770 Beiträgen


Ähnliche Themen zu Grundriss Stadtvilla 155qm - eure Meinung ist gefragt
Nr.ErgebnisBeiträge
1Grundrissfrage, Treppe, Fenster, Ausrichtung 12
2Einfamilienhaus vom Architekt 150m² Verbesserungsvorschläge und Ideen gesucht 75
3Grobe Schnitzer im Grundriss? Küche zu klein? 39
4REH - Grundrissplanung - Küche zu klein - Seite 430
5OG Stadtville optimieren. Fenster Bodentief - Seite 8104
6Einfamilienhaus,Zwei Varianten Grundriss vom Architekt 39
7 Küchenplanung mit tiefen Fenster 43
8Grundriss Stadtvilla / Anordnung Fenster, Feedback erwünscht - Seite 216
9Neubau Einfamilienhaus ca. 174 m² Grundriss Architekt - Seite 555
10Grundriss EFH165 qm erster Entwurf - Architekt unzufrieden - Seite 374
11Stufen zwischen Küche/Esszimmer und Wohnzimmer 57
12Grundriss erster Entwurf - Meinungen erwünscht - Seite 221
13Geschlossene oder offene Küche ? 11
14Architekt total geschlampt - Erfahrungen? 17
15Probleme bei der aufteilung Küche, Essen , Wohnen 16
16Sichere Fenster/Haustüre für Randlage - Seite 534
17Finaler Grundriss-Entwurf - bis auf die Fenster - Seite 535
18Fenster / Türen / Garderobe 13
19Grundriss Einfamilienhaus - Problemfall Küche 20
20Aufmusterung Elektro, Q2, Badfliesen, Drempel, bodentiefe Fenster 23

Oben