Grundriss Stadtvilla 11.00x11.00m

4,80 Stern(e) 4 Votes
Zuletzt aktualisiert 21.11.2025
Sie befinden sich auf der Seite 4 der Diskussion zum Thema: Grundriss Stadtvilla 11.00x11.00m
>> Zum 1. Beitrag <<

P

Payday

Wer spricht von verkorkst?
Sind zwar nicht der Burner, diese Außenansichten, aber dass ein Haus oder die Fenster irgendwie symmetrisch aufgebaut sein müssen, steht nirgendwo und ist demnach _kein Kriterium_! Ja!
von müssen war nie die rede. eine treppe ist auch nicht zu schmal und muss verbreitert werden.

es ging hier um verbesserungsvorschläge und mein hinweis war, das man sich die außenansichten nochmal genauer angucken sollte. was man daraus macht muss der Bauherr selber entscheiden. nicht mehr, nicht weniger.
 
S

Stefan01

hallo,
so ich hab jetzt mal etwas mit unser Fenster problem beschäftigt.
wie ist eure meinung dazu?
Es gibt noch keine maße und die fenster sind nur grob eingezeichnet.
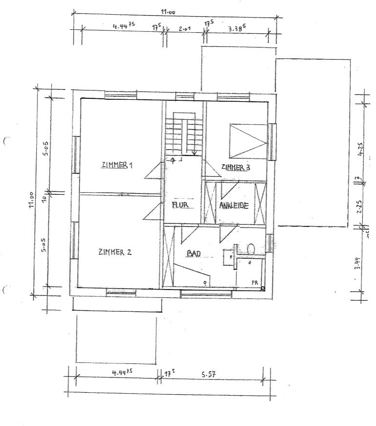
Des Weiteren habe ich mir nochmal gedanken über schlafzimmer und ankleide gemacht denke wir werden das so lassen da sonst unser schlafzimmer kleiner wird das wollen wir nicht. dafür dachte ich mir vielleicht macht es ja sinn einfach noch ein durchgang zum bad zumachen.

Grundrissplan eines Obergeschosses mit Zimmern 1-3, Bad, Flur und Ankleide


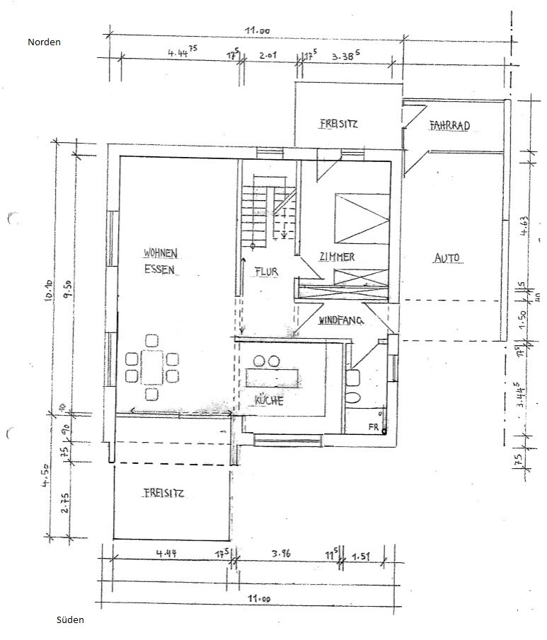
Grundriss eines Hauses im Erdgeschoss mit Wohnen/Essen, Küche, Flur, Zimmer, Freisitz, Garage und Terrasse.


Skizzenhafte Frontansicht eines zweigeschossigen Hauses mit Dach und Fenstern


Ansicht eines Hauses als einfache Skizze mit Dach und Fenstern.


Handgezeichnete Frontansicht eines Hauses mit Satteldach und Garage


Skizze eines zweigeschossigen Hauses mit Satteldach und Fenstern, Frontansicht.
 
Zuletzt aktualisiert 21.11.2025
Im Forum Grundrissplanung / Grundstücksplanung gibt es 2535 Themen mit insgesamt 87980 Beiträgen


Ähnliche Themen zu Grundriss Stadtvilla 11.00x11.00m
Nr.ErgebnisBeiträge
1Fenster Brüstungshöhe 130 im Schlafzimmer / Arbeitszimmer? - Seite 493
2Hilfe bei der Anordnung der Fenster benötigt! 32
3Riesiges Problem mit dem Kondenswasser am Fenster 34
4Fenster zwischen 2 Räumen 13
5Schlafzimmer auf der Südseite zu warm? 18
6Heizung Kinderzimmer,schlafzimmer und Bad 14
7 Küchenplanung mit tiefen Fenster - Seite 643
8Grundriss Einfamilienhaus geplant, Fenster gefallen uns - Seite 343
9Gestaltung Schlafzimmer 35
10Größe vom Schlafzimmer und Kinderzimmer - Seite 338
11Schlafzimmer warm im Haus mit Lüftung inkl. Wärmerückgewinnung 24
12Kontrollierte-Wohnraumlüftung und trotzdem nachts Fenster auf 71
13Reedkontakt Alarmanlage Fenster. Wie habt ihr das gelöst? 12
14Grundriss Stadtvilla / Anordnung Fenster, Feedback erwünscht - Seite 216
15Kinderzimmer und Schlafzimmer - Welche Größe ist zu empfehlen? - Seite 856
16Grundriss Neubau Einfamilienhaus: Fenster/Türen/Innenwände Größe/Anordnung ok? - Seite 220
17Neubau einer ca. 8x11 Doppelhaushälfte, Einschätzung Grundriss und Fenster - Seite 235
18Beschlagene Fenster trotz Lüftungsanlage 49
19Keine Fußbodenheizung im Schlafzimmer? 22
20Vorwand im Bad OG direkt neben Fenster 17

Oben