ᐅ Umbau mit Architekt: Anregungen zum Haus-Grundriss gewünscht
Erstellt am: 06.12.17 14:24
M
Maureen13-dM
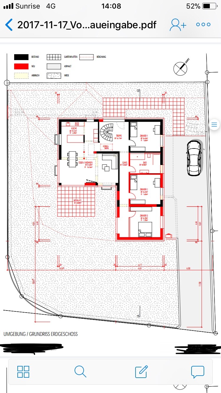
Maureen13-d06.12.17 14:24Wir (24j, w & 29j. m) möchten ein geerbtes Haus seiner Eltern umbauen. Wir haben schon einige Gespräche mit dem Architekten gehabt und nun interessieren wir uns für die Meinungen von euch. Die Außenmauern des Hauses bleiben stehen und werden teilweise ergänzt. In den angehängten Abbildungen ist ersichtlich was neu wird (rot) und welche Mauern stehen bleiben (schwarz).
Nun zum Katalog:
Bebauungsplan/Einschränkungen
Größe des Grundstücks ca. 850qm2
Hang aufgeschüttetes Gelände deshalb kein weiterer Stock zulässig
Grundflächenzahl
Geschossflächenzahl
Baufenster, Baulinie und -grenze
Randbebauung
Anzahl Stellplatz 1 Besucherparkplatz, mehrere Stellplätze auf dem Weg zur Garage
Geschossigkeit 2
Dachform Satteldach
Stilrichtung
Ausrichtung
Maximale Höhen/Begrenzungen
weitere Vorgaben
Anforderungen der Bauherren
Stilrichtung, Dachform, Gebäudetyp
Keller, Geschosse
Anzahl der Personen, Alter 2 Erwachsene, 2-3 Kinder gewünscht (noch nicht in Planung)
Raumbedarf im EG, OG
Büro: Familiennutzung oder Homeoffice? Familiennutzung
Schlafgäste pro Jahr sehr wenige
offene oder geschlossene Architektur offen
konservativ oder moderne Bauweise modern
offene Küche, Kochinsel
Anzahl Essplätze sicher 6
Kamin nein
Musik/Stereowand
Balkon, Dachterrasse nein
Garage, Carport Doppelgarage, eventuell noch ein Carport
Hausentwurf
Von wem stammt die Planung:
-Architekt
Was gefällt besonders? Warum? Schlaf und Wohnbereich abgetrennt
Was gefällt nicht? Warum? kein Gästebad im EG
Preisschätzung lt Architekt/Planer: 430000€
Persönliches Preislimit fürs Haus, inkl Ausstattung:
favorisierte Heiztechnik:Luft-Wasser-Wärmepumpe
Die Wendeltreppe ist bereits vorhanden im Haus und muss Kostentechnisch bestehen bleiben. Der Architekt möchte sie aber erneuern und durch den grossen Eingangsbereich in Szene setzen.
Nun sind wir sehr gespannt!









Nun zum Katalog:
Bebauungsplan/Einschränkungen
Größe des Grundstücks ca. 850qm2
Hang aufgeschüttetes Gelände deshalb kein weiterer Stock zulässig
Grundflächenzahl
Geschossflächenzahl
Baufenster, Baulinie und -grenze
Randbebauung
Anzahl Stellplatz 1 Besucherparkplatz, mehrere Stellplätze auf dem Weg zur Garage
Geschossigkeit 2
Dachform Satteldach
Stilrichtung
Ausrichtung
Maximale Höhen/Begrenzungen
weitere Vorgaben
Anforderungen der Bauherren
Stilrichtung, Dachform, Gebäudetyp
Keller, Geschosse
Anzahl der Personen, Alter 2 Erwachsene, 2-3 Kinder gewünscht (noch nicht in Planung)
Raumbedarf im EG, OG
Büro: Familiennutzung oder Homeoffice? Familiennutzung
Schlafgäste pro Jahr sehr wenige
offene oder geschlossene Architektur offen
konservativ oder moderne Bauweise modern
offene Küche, Kochinsel
Anzahl Essplätze sicher 6
Kamin nein
Musik/Stereowand
Balkon, Dachterrasse nein
Garage, Carport Doppelgarage, eventuell noch ein Carport
Hausentwurf
Von wem stammt die Planung:
-Architekt
Was gefällt besonders? Warum? Schlaf und Wohnbereich abgetrennt
Was gefällt nicht? Warum? kein Gästebad im EG
Preisschätzung lt Architekt/Planer: 430000€
Persönliches Preislimit fürs Haus, inkl Ausstattung:
favorisierte Heiztechnik:Luft-Wasser-Wärmepumpe
Die Wendeltreppe ist bereits vorhanden im Haus und muss Kostentechnisch bestehen bleiben. Der Architekt möchte sie aber erneuern und durch den grossen Eingangsbereich in Szene setzen.
Nun sind wir sehr gespannt!
Ich seh jetzt nur EG und UG. Ist das richtig?
Ich würde das Schlafzimmer am Ende vergrößern und den Sackgassenflur verkürzen.
Ich würde das kleine Fenster in diesem Flur an der Terrasse lassen, aber ggü. die Tür des Kinderzimmers verschieben.
Man kann im Bad die Toilette gleich nach vorn setzen ggü ein lüttes Waschbecken und eine Trennwand ins richtige Bad ziehen. Hier Toilette und Wanne tauschen, Wand ziehen mit Schiebetür.
Ich würde das Schlafzimmer am Ende vergrößern und den Sackgassenflur verkürzen.
Ich würde das kleine Fenster in diesem Flur an der Terrasse lassen, aber ggü. die Tür des Kinderzimmers verschieben.
Man kann im Bad die Toilette gleich nach vorn setzen ggü ein lüttes Waschbecken und eine Trennwand ins richtige Bad ziehen. Hier Toilette und Wanne tauschen, Wand ziehen mit Schiebetür.
M
Maureen13-d07.12.17 08:07ypg schrieb:
Ich seh jetzt nur EG und UG. Ist das richtig?
Ich würde das Schlafzimmer am Ende vergrößern und den Sackgassenflur verkürzen.
Ich würde das kleine Fenster in diesem Flur an der Terrasse lassen, aber ggü. die Tür des Kinderzimmers verschieben.
Man kann im Bad die Toilette gleich nach vorn setzen ggü ein lüttes Waschbecken und eine Trennwand ins richtige Bad ziehen. Hier Toilette und Wanne tauschen, Wand ziehen mit Schiebetür.Danke für die Antwort 🙂
Das mit dem Schlafzimmer haben wir so schon weitergeleitet wollte ich auch so. Und Bad und Küche sind nur einfach so vom Architekt eingezeichnet das hat noch keinen Plan.
M
Maureen13-d07.12.17 08:08Ja wir haben nur EG und UG aber wie man am Schnitt sieht ist UG an zwei Seiten nicht in der Erde. Man darf aufgrund des aufgeschütteten Geländes kein Stock mehr obendrauf setzen.
Sorry, mir gefällt die Sache gar nicht. Wenn ich beim Fernsehgucken mal auf's Toi muss, bin ich ja kürzer über den Hof, als durchs Haus. Dann dieser lange Mäusegang ist m.E. nur Platzverschwendung. So richtig ist auch nicht klar, was die Ausgangssituation ist. Vielleicht könntest Du die Istsituation nochmal aufzeichnen, denn wenn ich alles Rote wegnehme, bleibt kein Haus übrig. Am besten mit Maßen, dann könnte man nochmal bissl rumspielen. 🙂
Muss die Küche zwingend da hinten in die Ecke? Wie flexibel seid Ihr?
Muss die Küche zwingend da hinten in die Ecke? Wie flexibel seid Ihr?
M
Maureen13-d07.12.17 09:34Küche und Wohnzimmer sollten einfach genug Licht bekommen!
Masse habe ich nur so circa, weil der Architekt die Pläne des alten Haus hat und uns bisher nur solche Pläne gesendet hat.
Hier habe ich das Haus auf den alten Grundriss reduziert.
Das momentane Wohnzimmer ist auf der falschen Seite um abends auch Sonne zu haben.
Die vorherige Besitzerin hatte keine Kinder und wohnte nur mit ihrem Mann im Haus. Daher auch nur ein Schlafzimmer und ein kleines Nähzimmer.
Zu sagen ist noch wir möchten gerne zwei Garagen haben.
Die Masse sind anhand des Grundrisses mit dem langen Gang (dieser gefällt meinem Freund sehr gut, haben wir in der momentanen Wohnung schon).


Masse habe ich nur so circa, weil der Architekt die Pläne des alten Haus hat und uns bisher nur solche Pläne gesendet hat.
Hier habe ich das Haus auf den alten Grundriss reduziert.
Das momentane Wohnzimmer ist auf der falschen Seite um abends auch Sonne zu haben.
Die vorherige Besitzerin hatte keine Kinder und wohnte nur mit ihrem Mann im Haus. Daher auch nur ein Schlafzimmer und ein kleines Nähzimmer.
Zu sagen ist noch wir möchten gerne zwei Garagen haben.
Die Masse sind anhand des Grundrisses mit dem langen Gang (dieser gefällt meinem Freund sehr gut, haben wir in der momentanen Wohnung schon).
Ähnliche Themen