Grundriss-Planung Einfamilienhaus 230-235 m² auf zwei Vollgeschossen

4,80 Stern(e) 12 Votes
Zuletzt aktualisiert 19.11.2025
Sie befinden sich auf der Seite 10 der Diskussion zum Thema: Grundriss-Planung Einfamilienhaus 230-235 m² auf zwei Vollgeschossen
>> Zum 1. Beitrag <<

N

nordanney

Zum Thema völlig freie Architektenplanung wäre für uns interessant, ob ihr das alle bei euren Häusern so umgesetzt habt
Haben wir (beim letzten Haus). War auch nötig, da wir drei Kinderzimmer, Kinderbad sowie zwei Arbeitszimmer benötigt haben. Waren schlanke 300qm Haus.
aus eigener Erfahrung überzeugt
Auf jeden Fall!
ihr "herkömmlich" gebaut habt
Herkömmlich ist auch mit Architekt.
freuen wir uns über Fotos und Grundrisse zur Inspiration
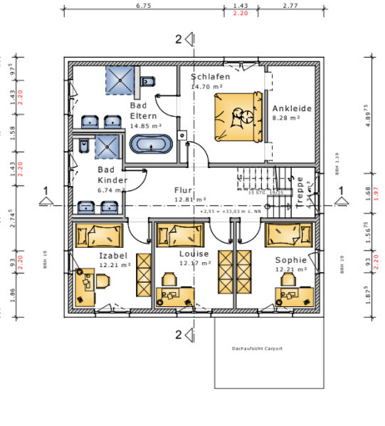
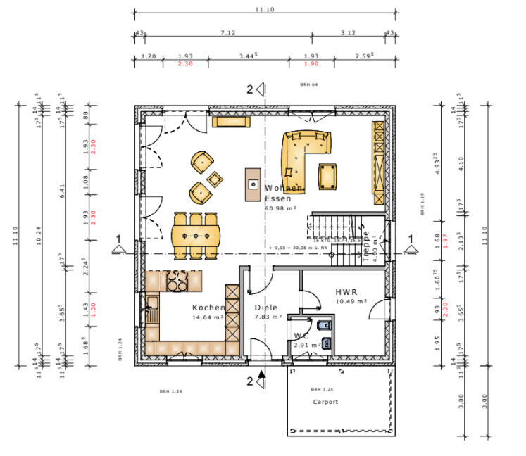
Grundriss Erdgeschoss: Küche, Diele, Wohnen/Essen, HWR, WC, Treppe, Carport


Grundriss Dachgeschoss: Elternzimmer mit Ankleide, Bad, Flur, 3 Kinderzimmer Izabel, Louise, Sophie.

Das DG spare ich mir.
 
11ant

11ant

Zum Thema völlig freie Architektenplanung wäre für uns interessant, ob ihr das alle bei euren Häusern so umgesetzt habt und davon aus eigener Erfahrung überzeugt seid
Ich bin glücklicher Mieter und berate nur andere Leute beim Planen, meinen Betrieb hatte ich mit bestehendem Gebäude übernommen. Aber ja, es ist meine feste Überzeugung, daß der Architekt am besten zwei Freiheitsgrade hat: ein "freier Architekt" im Sinne von nicht bei einem GU angestellt oder gechartert zu sein; und von den Bauherrn nicht mit dem "Umbau" von gemischten Salaten aus Selbermacherentwürfen und Internetbildchen belastet statt beauftragt zu werden.
oder ob ihr "herkömmlich" gebaut habt und es aufgrund dieser Erfahrung beim nächsten Mal mit einem freien Architekten machen würdet?
Die Planung mit einem freien Architekten IST doch "herkömmlich" ? - bewährter oldschool geht es doch gar nicht !
Wenn alle mit Architekten gebaut haben freuen wir uns über Fotos und Grundrisse zur Inspiration, selbst wenn Details anders sein sollten (andere Anzahl an Kinderzimmern o.ä.).
Oh, dann scheinst Du es wohl doch noch nicht verstanden zu haben: Schnittmuster von ANDERER LEUTE Maßanzügen passen Dir eben nicht besser als ein Katalogmodell von der Stange. Die Vorzüge von Architektenplanungen erkennt man auf Bildern nicht, außer "Sie sehen, daß Sie nichts sehen"; die haben ja keine rote Louboutin-Sohle oder sowas ;-) [falsch ! - wie der zweite ! - DAS ist Qualität !]
 
11ant

11ant

Schreib mir mal per pn, kann noch keine Nachrichten schreiben
Dann kannst Du auch keine empfangen, und Deine Aufforderung ist sinnlos, wenn Du Deine Adresse nicht nennst: erwähne sie entweder unter "Informationen" in Deinem Profil oder schreibe sie hier, während der gewünschte Kommunikationspartner hier ebenfalls online ist (letzteres ist wichtig, weil Du sie nur zeitbegrenzt - m.W. innerhalb zehn Minuten - wieder wegeditieren kannst).
 
H

Hausbauer4747

Aus dem Grundriss von @nordanney nehme ich für mich positiv mit, dass die Podesttreppe und der dann etwa 1,70m Breite im Flur eine gute Möglichkeit ist, Tageslicht in den Flur im OG zu bekommen (auch wenn das wie gesagt für uns kein Muss ist). Ein Dachgeschoss wollen wir gerne vermeiden, aktuell haben wir mit Keller vier Etagen und das ist nicht optimal. Wir wollten eigentlich einen Bungalow, da ist aber insbesondere das Thema Erdaushub und Entsorgung eine Katastrophe, bei uns wären auch die Flure sehr lang geworden. Wir favorisieren die Betondecke über dem OG und würden darüber lieber keinen zusätzlichen Wohnraum haben (auch wenn mir bekannt ist, dass es Firmen gibt, die solide Dächer nicht aus Holz bauen).
 
Zuletzt aktualisiert 19.11.2025
Im Forum Grundrissplanung / Grundstücksplanung gibt es 2536 Themen mit insgesamt 87971 Beiträgen


Ähnliche Themen zu Grundriss-Planung Einfamilienhaus 230-235 m² auf zwei Vollgeschossen
Nr.ErgebnisBeiträge
1Neubau: Dachgeschoss Ausbaufähig oder nicht - Seite 214
2Einfamilienhaus Grundriss mit Keller, Version 2 23
3Den Plan selber zeichnen?, Braucht man unbedingt einen Architekt? 11
4Architekt total geschlampt - Erfahrungen? 17
5Schmlußssrechnung Architekt - Seite 213
6Architekt --> Absprachen? Was ist das? - Seite 321
7Kosten Bodengutachten - Bezahlt die der Architekt oder wir? 12
8Abbruch Zusammenarbeit Architekt - verlangt überzogenes Honorar - Seite 228
9Zusammenarbeit mit einem Architekt - wie funktioniert es richtig? - Seite 222
10Planung / Architekt, Einbeziehung Fachplaner für Genehmigungsplan 10
11Kostenabschätzung Architekt Einfamilienhaus. Eure Einschätzung 44
12Doppelhaus Architekt oder GU / Fertighaus oder Massiv 13
13Wer hat mit Architekt gebaut? Erfahrungen?? - Seite 385
14Bau Garage auf Grenze geht lt. Architekt nicht. 11
15Ist ein Architekt wirklich so teuer? - Seite 746
16Bauträger oder Architekt - Kosten - Seite 443
17Verschiedene Maße Architekt Ausführungszeichnung - Seite 212
18Architekt und Budgetgrenze...Absicherung? Möglichkeiten - Seite 325
19Bauingenieur vs. Architekt - Seite 217
20Architekt oder Bauträger? Was ist günstiger? 13

Oben