Grundriss-Planung: Bungalow ~130m²

4,80 Stern(e) 4 Votes
Zuletzt aktualisiert 19.11.2025
Sie befinden sich auf der Seite 10 der Diskussion zum Thema: Grundriss-Planung: Bungalow ~130m²
>> Zum 1. Beitrag <<

kbt09

kbt09

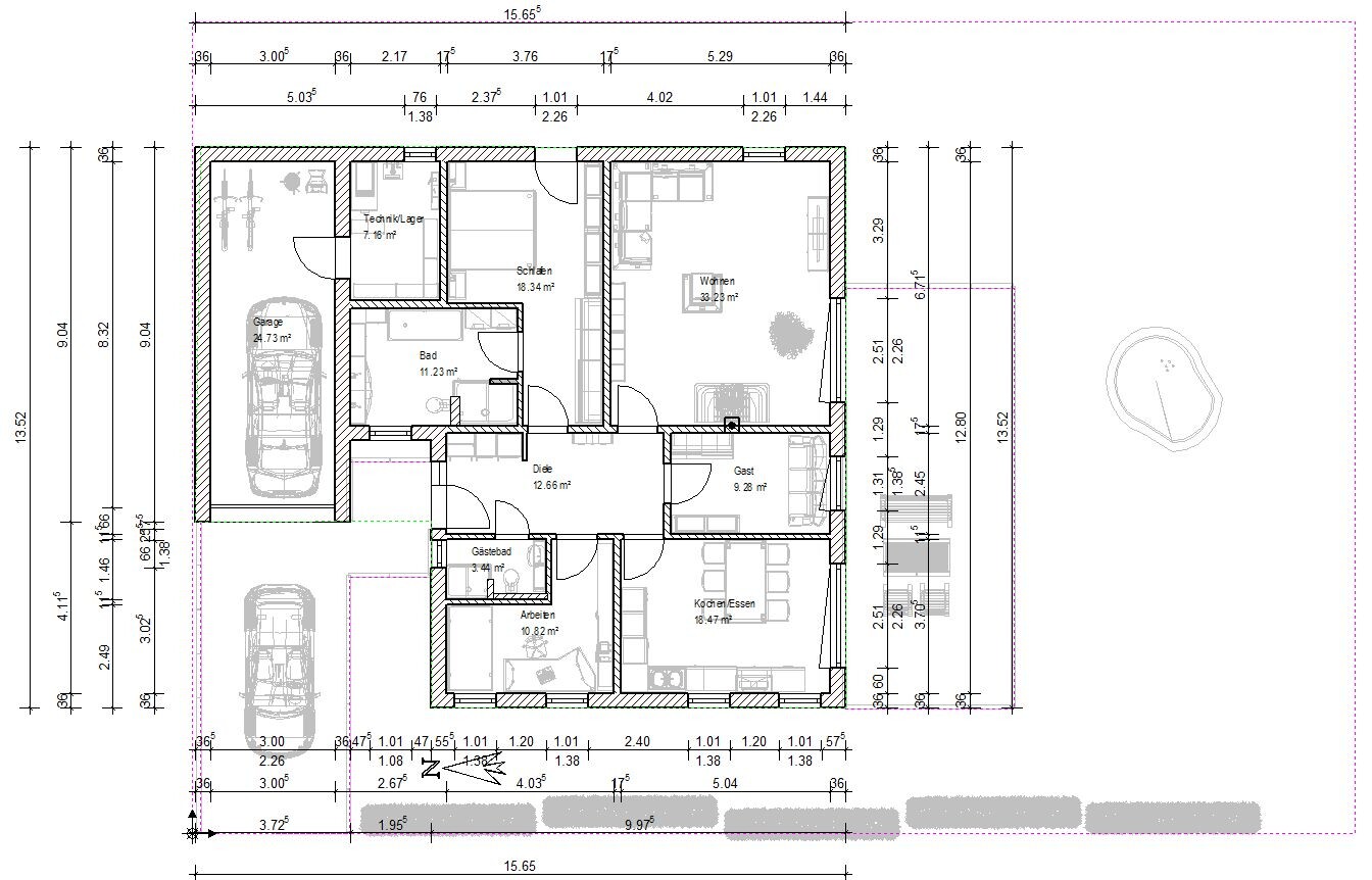
Versuch Nr. 10

Technik diesmal quasi etwas ausgelagert. Sinnvoll wäre evtl. auf Ostseite noch eine Tür in die Garage.

Gästebad um eine kleine Dusche erweitert.

Waschmaschine etc. dort, wo in aller Regel auch die Wäsche anfallen dürfte, im Bad der Hausbewohner.

Diele jetzt ohne Winkel und etwas kleiner, mit großem Schrank für Jacken und einen Bereich Staubsauger/Wischer.

Kurzer Weg Garage - Eingangstür und gerade weiter in die Küche

Also, einfach noch eine Anregung.


Flächenberechnung nach WoFiV: Wohnflächenverteilung (EG) und Garage


Einfamilienhaus aus Ziegel mit Garage, geparktem Auto, Hecke und grünem Vorgarten.

Einfamilienhaus aus Backstein mit Terrasse, Garten, Deck und Pool

Einfamilienhaus aus Backstein mit braunem Ziegeldach, grünem Rasen und Pool links.


3D-Grundriss eines Einfamilienhauses mit Terrasse, Garten, Pool und Garage

3D-Grundriss eines Hauses: Wohnzimmer, Küche, Esszimmer, Schlafzimmer, Terrasse, Garten, Pool.

Vogelperspektive Grundriss eines Hauses mit Garage (Auto), Parkplatz, Wohnzimmer, Terrasse und Garten.


Grundriss eines Hauses mit Garage, Schlafen, Wohnen, Kochen/Essen, Gast, Arbeiten und Außenbereich.
 
wrobel

wrobel

Moin Moin

A zu V meint Außenfläche zum Volumen/Raum.
in deinem Fall mehr Außenwand bei weniger Raumvolumen.

Den letzten Vorschlag finde ich schon sehr gut.
Mit welchem Programm erstellst Du die Zeichnungen?
Habe so ein Programm auch schon ausprobiert und bin dann schnell wieder zu Papier u. Bleistift gelangt.
Der PC ist halt nicht mein Werkzeug.

wenn ich es schaffe stelle ich meinen Grundriss die nächsten Tage auch mal ein.

Olli
 
EveundGerd

EveundGerd

Ich finde die letzte Zeichnung gut.

Allerdings sind in einem Bungalow die Flure wirklich recht dunkel, sofern man auf Oberlichter oder Tageslichtspots verzichtet.

Meine Schwiegereltern leben in einem Bungalow mit dunklem Flur. Besonders in der dunklen Jahreszeit sehr deprimierend und so was muss heute nicht mehr sein.

Wir waren kurzfristig auch mal dran einen Bungalow zu bauen, allerdings hätten wir für die Fluren und das Duschbad auf Tageslichtspots gesetzt.

Habt Ihr Euch denn überhaupt schon einmal Tageslichtspots angeschaut?
 
kbt09

kbt09

Das ist Virtual Architecture von EU-Software.

Ja .. die Version 10 hat schon was, allerdings gefallen mir die "L"-Zimmer nicht so ganz. Und, ob Technik-Raum nur so von Garage zugänglich so ganz ok ist? Na ja, soll ja auch mehr Ideen bringen.
 
kbt09

kbt09

Ich bin ja gar nicht neugierig ... mich würde hier ja sehr interessieren, wie der Grundriss letztendlich geworden ist. ops:
 
Zuletzt aktualisiert 19.11.2025
Im Forum Grundrissplanung / Grundstücksplanung gibt es 2536 Themen mit insgesamt 87979 Beiträgen


Ähnliche Themen zu Grundriss-Planung: Bungalow ~130m²
Nr.ErgebnisBeiträge
1Bungalow mit 140qm und Garage im Grundriss - Seite 213
2Grundriss Bungalow auf Bodenplatte ca 110 qm - Seite 457
3Meinungen zum Grundriss Bungalow 42
4Grundrissplanung Bungalow planen 46
5Entwurf Grundriss Bungalow - Eure Meinungen bitte! 14
6Bebaute Fläche: Gehören Garage / Carport zur bebauten Fläche? 19
7Bungalow Grundrissdiskussion 169 qm 14
8Grundriss, längliches Einfamilienhaus, integrierte Garage kein Keller 16
9Grundriss Bungalow - Was gibt es zu beachten? - Seite 6164
10Grundriss Bungalow 150m² - Meinungen erwünscht - Seite 430
11Haus und Garage - Ideen für die Planung erwünscht - Seite 221
12Bungalow mit Satteldach, Randbebauung, 8×17 Meter - Seite 10143
13Grundriss Bungalow ca. 160m2 Wohnfläche 20
14Ehrliche Meinung zum Bungalow-Grundriss - ca. 175qm 46
15Grundriss Bungalow Planen, ca. 120 m² - Seite 6106
16Grundrissplanung Bungalow 170qm - Seite 640
17Grundriss Bungalow 150qm geschlossene Küche, überdachte Terrasse - Seite 640
18Bungalow 148m² Grundstücksplanung / Grundrissplanung 280
19Stadtvilla mit Staffelgeschoss und Bungalow-Optik kombiniert 13
20Einfamilienhaus 172qm mit Garage und Sauna 54

Oben