Grundriss-Planung: Bungalow ~130m²

4,80 Stern(e) 4 Votes
Zuletzt aktualisiert 18.11.2025
Sie befinden sich auf der Seite 4 der Diskussion zum Thema: Grundriss-Planung: Bungalow ~130m²
>> Zum 1. Beitrag <<

X

xXLucyLouXx

Die Garage ist meiner Meinung nach auch zu kurz. Größere Autos passen da nicht rein.
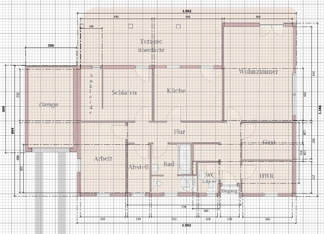
Ja die Garage war wie gesagt nicht schon gesagt nicht maßstabsgetreu. Couch passt und beim Esstisch kommt es darauf an. Auf dem ersten Grundriss hat er etwa ein Maß von 140cm, jetzt habe ich ihn mal mit 180 cm eingezeichnet. Habe jetzt noch mal ein paar Änderungen der Raumaufteilung vorgenommen:


Grundstücksplan: roter Hausumriss, überdachte Terrasse; Küche, Schlafzimmer, Bad, Garage.

jetzt auch mal mit bemaßter Garage. Ich hoffe die 350 x 600 cm passen dafür.

Grundriss eines Hauses mit Garage, Schlafen, Küche, Wohnzimmer, Bad, WC, HWR, Gast, Terrasse.
 
Zuletzt bearbeitet:
kbt09

kbt09

Ich finde die Lösung noch nicht rund. Z. B. hat die eine Person keine Möglichkeit für ein Nachtkästchen neben dem Bett.

Garage mit Innenmaß ca. 540 cm könnte sehr eng werden. Was ist z. B. mit Fahrrädern? Was ist mit Rasenmäher etc.?

Die planunteren Stühle am Esstisch haben recht wenig Bewegungsspielraum.

Soll das Arbeitszimmer auch noch eine Schlafmöglichkeit bekommen?

Eingang finde immer noch recht eng .. Gästebegrüßung etc. und vor allem auch dunkel, denn es kommt ja auch kein richtiger Lichteinfall in den Flur.

Und generell finde ich es schade, welche Räume jetzt alle gen Westen / Süden liegen, die aber zum Wohnen gar nicht gedacht sind.
 
V

Voki1

Wir befinden uns auch im Bau eines Bungalows. Mir fällt hier die überdachte Terrasse besonders auf. Hatten wir auch erst überlegt, dann aber auf knapp über die Hälfte angepasst. Bezgl. der Küche befürchte ich so eine "Schießschartensicht". Ist natürlich abhängig davon, wie weit Eure Überdachung hinausragen wird. Kostet wirklich viel Licht, was gerade in der Küche echt schade ist.
 
X

xXLucyLouXx

Ja, auf das Nachttischchen müsste ich dann verzichten, oder wir vergrößern den Grundriss auf der kompletten Seite einfach noch mal um 0,5 m.
Fahrräder und Gartengeräte würden wir gern in einer kleinen Gartenlaube unterbringen.
Ja, ich brauche im Arbeitszimmer eine Gästecouch, die ist aber nur zur Erholung zwischendurch und nicht für Übernachtungsgäste gedacht.

Durch Glastüren sollte der Flur etwas heller wirken, direkten Lichteinfall bekommen wir so aber nicht hin, das ist uns klar. Oberlicht geht leider gar nicht, das findet mein Mann optisch ganz schrecklich.

Ich hab mich jetzt doch mal am Spiegeln des gesamten Grundrisses versucht:

Grundriss eines Hauses mit Wohnzimmer, Küche, Schlafzimmer, Terrasse und Garage.
 
kbt09

kbt09

Finde ich leider immer noch unpassend.

Was sind denn das für Straßen .. kleine Wohnstraßen oder wie muss man das bewerten? Was ist im Osten und was kommt im Norden?
 
Zuletzt aktualisiert 18.11.2025
Im Forum Grundrissplanung / Grundstücksplanung gibt es 2536 Themen mit insgesamt 87966 Beiträgen


Ähnliche Themen zu Grundriss-Planung: Bungalow ~130m²
Nr.ErgebnisBeiträge
1Grundriss mit Garage auf Grundstück realisierbar? - Seite 329
2Grundriss Einfamilienhaus (ca. 170 qm) mit Garage - Hanglage 35
3Einfamilienhaus-Grundriss 170 qm für 4 Personen mit Garage 20
4Grundriss Bungalow 150qm mit Garage 79
5Grundriss Einfamilienhaus, 200m2, 2 Vollgeschosse, Garage, ohne Keller 39
6Grundriss Einfamilienhaus mit 240m² mit Einliegerwohnung 75m² und Garage 39
7Bungalow mit 140qm und Garage im Grundriss 13
8Grundriss Halboffene Küche mit großem Essbereich - Detailfragen - Seite 212
9Esstisch in einer kleinen Küche - Seite 349
10Technikraum in Garage einbauen? Ist dies möglich? - Seite 335
11Grundrissentwurf eines Passivhauses 170m² mit Garage - Seite 318
12Grundriss Einfamilienhaus, ca. 200qm ohne Keller - Einschätzung - Seite 13172
13Entwurf Einfamilienhaus mit Garage/Carport - bitte um Bewertung 22
14 2 Vollgeschosse, Durchgang Garage, Hauswirtschaftsraum unter Treppe 25
15Meinung zu Grundriss 16
16Grundriss - Anregungen & Kritik erwünscht! - Seite 326
17Grundriss - Eure Meinungen, Ideen und Vorschläge 31
18Meinungen zum Haus-Grundriss erwünscht - Seite 671
19Stadtvilla Grundriss - Änderungsvorschläge? 192
20Grundriss: Doppelhaushälfte 8x12m Meinungen und kreative Ideen erwünscht :-) - Seite 4123

Oben