Grundriss-Planung: Bungalow ~130m²

4,80 Stern(e) 4 Votes
Zuletzt aktualisiert 22.11.2025
Sie befinden sich auf der Seite 9 der Diskussion zum Thema: Grundriss-Planung: Bungalow ~130m²
>> Zum 1. Beitrag <<

kbt09

kbt09

@wrobel, was ist denn das A zu V Verhältnis? Die Rückversetzung habe ich dort gemacht, um einen kleinen überdachten Bettenlüfteplatz vom Schlafzimmer aus zu haben.

@xXLucyLouXx ... Zusammenlegung von Gäste- und Arbeitszimmer kommt gar nicht in Frage? Wobei natürlich diese 2 Räume so einen Bungalow auch mal für eine Familie mit 2 Kindern interessant macht.

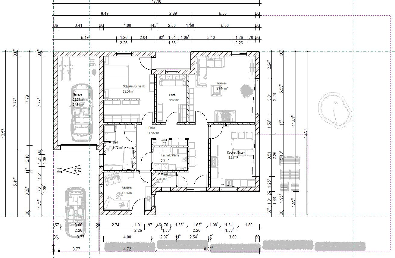
Ich habe mir mit dem Grundriss mittlerweile einen Wolf geschoben. Ich bekomme den Flur an sich nicht kleiner.

In demselben Umriss bin ich noch zu dieser Aufteilung gekommen:

Hausgrundriss: Garage, Schlafen, Gast, Diele, Bad, Arbeiten, Kochen/Essen, Wohnen.


Nachteile ..
weiterer Weg von der Garage
bzw. zusätzlicher Weg von der Straße zum Eingang
Terrasse ist dadurch auch weniger privat

Vorteil:
Ins Haus kommen und eindeutig nicht an Privaträumen vorbei zu müssen.

@wrobel .. was soll die Treppenmöglichkeit bringen? Möglichen Stauraum unter dem Dach? Bei Walmdach wird es mit Wohnraummöglichkeit da oben mehr als sinnlos.
 
L

Legurit

Das einzige was mich stört ist der Flur - grad wenn man sich immer noch gegen Oberlichter und Tageslichtspots weigert.
 
Y

ypg

Wie lang ist jetzt der Flur? Er wird immer länger - noch dazu ein paar Ecken, das ist doch nicht verbessert... sorry @kbt09
Da könnte man eher noch die südlichen Haushälften nach unten verschieben, um die Ecken zu relativieren.

findet Yvonne
 
kbt09

kbt09

Ist ja schon gut .. der Flur ist immer der Knackpunkt .. schiebe schon bei Variante 9. Soll ja auch zeigen, dass es nicht so einfach ist, mal eben zu sagen, die oder diese Variante ist nicht gut bzw. hat da oder dort einen Mangel und man schiebt ein wenig und schon wird alles gut.

Irgendwie schwebt mir gerade ein Zugang von oben mitten ins Haus vor ... nee, natürlich Scherz, aber würde den Flurraum enorm verkürzen
 
L

Legurit

ist ja auch klassisch so... Eingang in der Mittee, privater Bereich auf der einen, öffentlicher Bereich auf der anderen Seite. Was sprach hier noch mal gegen?
 
Zuletzt aktualisiert 22.11.2025
Im Forum Grundrissplanung / Grundstücksplanung gibt es 2535 Themen mit insgesamt 87992 Beiträgen


Ähnliche Themen zu Grundriss-Planung: Bungalow ~130m²
Nr.ErgebnisBeiträge
1Zugang von der Garage in den Hauswirtschaftsraum - Seite 449
2Technikraum in Garage einbauen? Ist dies möglich? - Seite 335
3Erstes Angebot, 157m2 mit Keller, KFW 70, Garage 14
4Grundrissentwurf eines Passivhauses 170m² mit Garage - Seite 218
5Entwurf Einfamilienhaus mit Garage/Carport - bitte um Bewertung 22
6Haus ohne Garage und Keller? Ausbau Dachboden? Fresswarze? - Seite 585
7Grundriss Einfamilienhaus mit Garage 18
8 2 Vollgeschosse, Durchgang Garage, Hauswirtschaftsraum unter Treppe 25
9Grundriss Einfamilienhaus / Garage im EG? 10
10Grundrissplanungen Einfamilienhaus und Garage - Seite 332
11Einfamilienhaus 145qm mit Garage ohne Keller 25
12Grundriss Einfamilienhaus (ca. 170 qm) mit Garage - Hanglage 35
13Haus, Garage / Carport auf dem Grundstück platzieren - Seite 1293
14Grundrissplanung Einfamilienhaus (190 qm) mit Garage 18
15Grundriss Bungalow 150qm mit Garage - Seite 1379
16Grundriss Einfamilienhaus 240 m² mit teilüberbauter Garage - Seite 296
17Grundriss Einfamilienhaus 136m² mit Garage & Keller 17
18Bau Garage auf Grenze geht lt. Architekt nicht. - Seite 211
19Grundriss Einfamilienhaus mit Garage, eigenplanung 17
20Grundstück - Baufenster - Lage von Haus und Garage 44

Oben