Y
Ypsi aus NI22.03.20 23:12Hallo liebe Forumianer,
wie im Vorstellungsthread bereits angekündigt, hier der aktuelle Stand unserer Hausplanung.
Das Grundstück liegt in zweiter Reihe und ist über den Hof des vorderen Hauses (gemeinsame Auffahrt) zu gängig.
Aktuell befinden sich auf dem zu bebauenden Grundstück Bestandsgebäude, die noch abgerissen werden müssen.
Wir hatten mittlerweile schon das ein oder andere Planungsgespräch mit Bauunternehmen und ich muss ehrlich gesagt gestehen, das ich von deren 'Professionalität' entsetzt bin. Haben uns jetzt gezielt Unternehmen herausgesucht, bei denen die Beratungsgespräche mit Architekten stattfinden und nicht mit z.B. einem gelernten Koch (kein Witz, ist passiert!). Zudem sind wir mittlerweile schon von der Frage genervt: 'Was wollen sie denn bauen? Ausbaubungalow oder Einfamilienhaus?'. Wenn wir dann sagen: 'Lassen sie uns doch schrittweise den Grundriss erarbeiten und schauen welche Form inkl. Dachneigung bei raus kommen kann, dann können wir immer noch den Titel des Hauses festlegen' werden wir nur blöd angeguckt. Eigenständige Ideen, zugeschnitten auf das Grundstück, kamen nicht... Auf die Frage, was man uns denn empfehlen würde, wird man nur fragend angeschaut. Muss sagen, habe da mehr erwartet, aber vielleicht ist das auch normal, das man die Grundidee zum Grundriss mitliefern muss...
Aufgrund der aktuellen Situation sind weitere Termine mit den Baufirmen schwer möglich. Also nutzen wir die Zeit und planen selbst. Nachdem wir im ersten Schritt eure Schwarmintelligenz angezapft haben, werden wir im Anschluss unseren Entwurf den Firmen zukommen lassen inkl. der Probleme, die wir noch sehen. Diese haben dann die Chance zum nächsten Beratungsgespräch unseren Entwurf zu optimieren und zu kalkulieren.
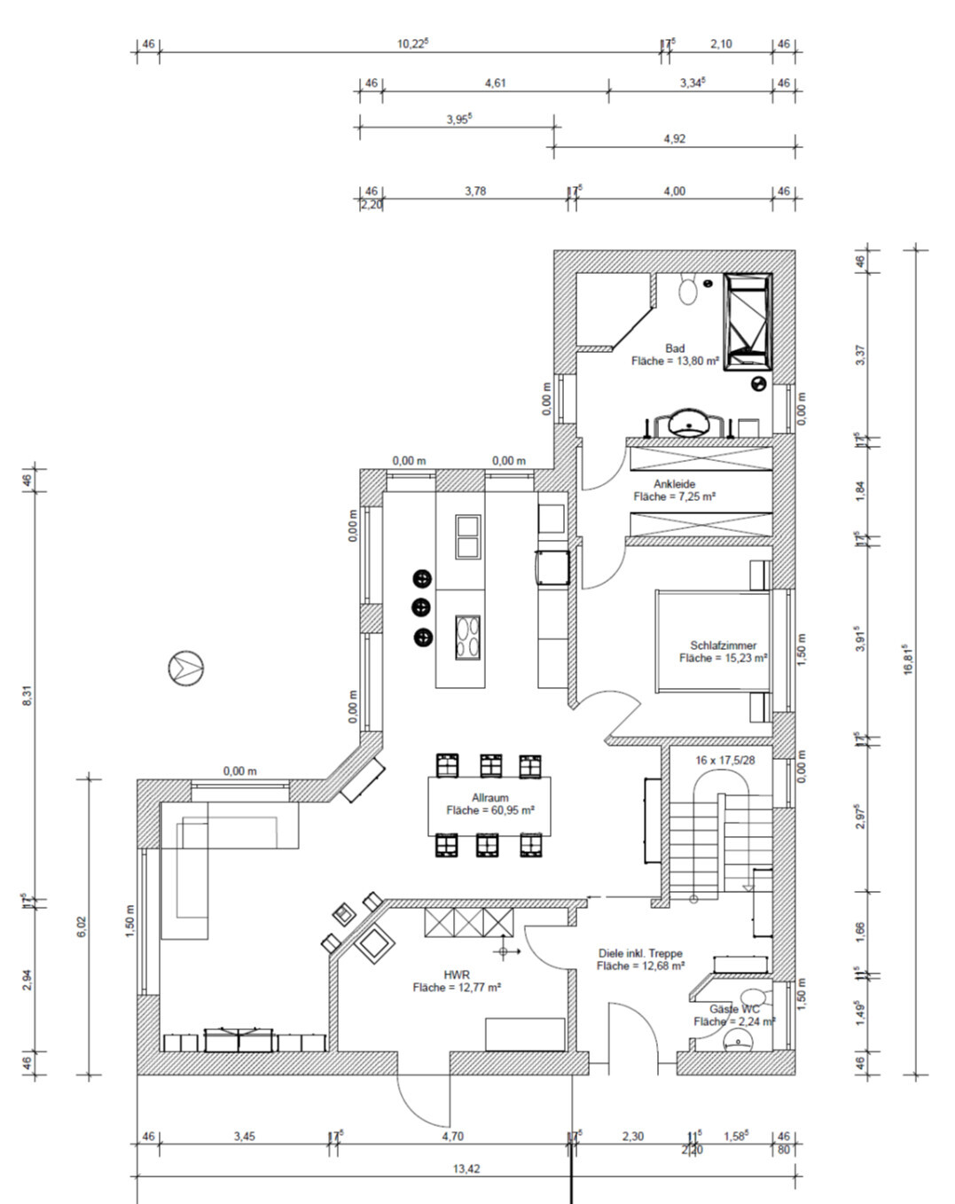
Für uns ist das Herzstück das EG, OG folgt aus dem EG Grundriss (Zimmeraufteilung, Bad über Hauswirtschaftsraum, Fenster, etc.). Das OG liegt planrechts (Norden) und planunten (Osten) auf den Außenmauern des EG auf, planlinks (Süden) und planoben (Westen) sind auf das 'Hauptrechteck' beschränkt bzw. noch 1,5m weiter eingerückt.
Anbei noch der ausgefüllte Fragebogen. Unbeantwortete Fragen hab ich gar nicht mehr mit aufgenommen.
Sind sehr auf eure Meinung gespannt!
Vielen Dank schon Mal vorab.
Ypsi aus NI
Bebauungsplan/Einschränkungen
Größe des Grundstücks ca. 700qm
Grundflächenzahl 0,3
Geschossflächenzahl 0,3
Baufenster, Baulinie und -grenze 3m zur Nachbarsgrenze
Geschossigkeit 1 Vollgeschoss
offene Bauweise
Anforderungen der Bauherren
Stilrichtung, Dachform, Gebäudetyp (mediterrane) Stadtvilla
Keller, Geschosse 1,5 Geschosse
Anzahl der Personen, Alter 2 Personen + geplante Kinder
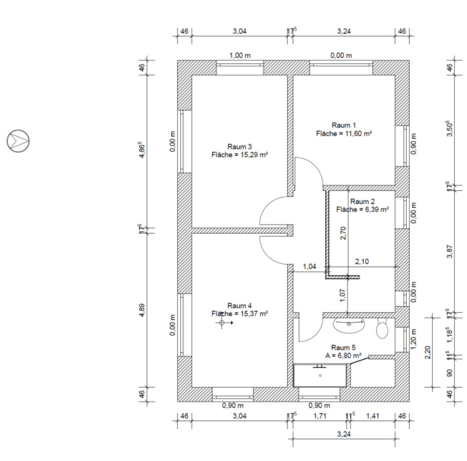
Raumbedarf im EG, OG EG = 130-140qm, OG = 50-60qm
offene oder geschlossene Architektur offen
konservativ oder moderne Bauweise modern
offene Küche, Kochinsel Kochinsel
Anzahl Essplätze 6-8
Kamin Kaminofen
Balkon, Dachterrasse ggf. Dachterrasse (Flachdach auf beiden Quadern)
Garage, Carport Doppelgarage
Hausentwurf
Von wem stammt die Planung: Do-it-Yourself
Was gefällt besonders? Warum? Form fügt sich gut in Grundstück ein, Wohnen ist etwas separiert, Küche und Esstisch als zentrales Element
Was gefällt nicht? Warum? Passt die Treppe? Ist der Eingang großzügig genug? Kann man die privaten Räume im EG so anordnen?
favorisierte Heiztechnik: Wärmepumpe
Warum ist der Entwurf so geworden, wie er jetzt ist?
Wir empfinden das Grundstück als relativ schmal. Normalerweise würde sich vom Hausgrundriss ein Rechteck anbieten, das die volle Breite des Grundstückes ausnutzt. Dann verbaut man sich aber die Sahneseite (Süden). Der Grundriss ist nach 'Form follows function' entstanden und gefällt uns mittlerweile richtig gut (ich meine damit die L-Form und nicht zwangsläufig die einzelne Raumaufteilung). Interessant ist die Idee, die beiden Schenkel im OG nicht mit Walmdach zu realisieren, sondern mittels Flachdach ggf. eine Dachterrasse (oder zwei) einzurichten.
Der ursprüngliche Wunsch war ein Bungalow. Wir haben aber eingesehen, das dieser in der Grundfläche zu viel Platz verschlingt. Ein guter Kompromiss für uns ist unser Schlafzimmer + Masterbad im EG zu haben und Kinderzimmer + Büro oben.
Was ist die wichtigste/grundlegende Frage zum Grundriss in 130 Zeichen zusammengefasst?
Gibt es grundlegende Planungsfehler, die wir bisher übersehen haben?



wie im Vorstellungsthread bereits angekündigt, hier der aktuelle Stand unserer Hausplanung.
Das Grundstück liegt in zweiter Reihe und ist über den Hof des vorderen Hauses (gemeinsame Auffahrt) zu gängig.
Aktuell befinden sich auf dem zu bebauenden Grundstück Bestandsgebäude, die noch abgerissen werden müssen.
Wir hatten mittlerweile schon das ein oder andere Planungsgespräch mit Bauunternehmen und ich muss ehrlich gesagt gestehen, das ich von deren 'Professionalität' entsetzt bin. Haben uns jetzt gezielt Unternehmen herausgesucht, bei denen die Beratungsgespräche mit Architekten stattfinden und nicht mit z.B. einem gelernten Koch (kein Witz, ist passiert!). Zudem sind wir mittlerweile schon von der Frage genervt: 'Was wollen sie denn bauen? Ausbaubungalow oder Einfamilienhaus?'. Wenn wir dann sagen: 'Lassen sie uns doch schrittweise den Grundriss erarbeiten und schauen welche Form inkl. Dachneigung bei raus kommen kann, dann können wir immer noch den Titel des Hauses festlegen' werden wir nur blöd angeguckt. Eigenständige Ideen, zugeschnitten auf das Grundstück, kamen nicht... Auf die Frage, was man uns denn empfehlen würde, wird man nur fragend angeschaut. Muss sagen, habe da mehr erwartet, aber vielleicht ist das auch normal, das man die Grundidee zum Grundriss mitliefern muss...
Aufgrund der aktuellen Situation sind weitere Termine mit den Baufirmen schwer möglich. Also nutzen wir die Zeit und planen selbst. Nachdem wir im ersten Schritt eure Schwarmintelligenz angezapft haben, werden wir im Anschluss unseren Entwurf den Firmen zukommen lassen inkl. der Probleme, die wir noch sehen. Diese haben dann die Chance zum nächsten Beratungsgespräch unseren Entwurf zu optimieren und zu kalkulieren.
Für uns ist das Herzstück das EG, OG folgt aus dem EG Grundriss (Zimmeraufteilung, Bad über Hauswirtschaftsraum, Fenster, etc.). Das OG liegt planrechts (Norden) und planunten (Osten) auf den Außenmauern des EG auf, planlinks (Süden) und planoben (Westen) sind auf das 'Hauptrechteck' beschränkt bzw. noch 1,5m weiter eingerückt.
Anbei noch der ausgefüllte Fragebogen. Unbeantwortete Fragen hab ich gar nicht mehr mit aufgenommen.
Sind sehr auf eure Meinung gespannt!
Vielen Dank schon Mal vorab.
Ypsi aus NI
Bebauungsplan/Einschränkungen
Größe des Grundstücks ca. 700qm
Grundflächenzahl 0,3
Geschossflächenzahl 0,3
Baufenster, Baulinie und -grenze 3m zur Nachbarsgrenze
Geschossigkeit 1 Vollgeschoss
offene Bauweise
Anforderungen der Bauherren
Stilrichtung, Dachform, Gebäudetyp (mediterrane) Stadtvilla
Keller, Geschosse 1,5 Geschosse
Anzahl der Personen, Alter 2 Personen + geplante Kinder
Raumbedarf im EG, OG EG = 130-140qm, OG = 50-60qm
offene oder geschlossene Architektur offen
konservativ oder moderne Bauweise modern
offene Küche, Kochinsel Kochinsel
Anzahl Essplätze 6-8
Kamin Kaminofen
Balkon, Dachterrasse ggf. Dachterrasse (Flachdach auf beiden Quadern)
Garage, Carport Doppelgarage
Hausentwurf
Von wem stammt die Planung: Do-it-Yourself
Was gefällt besonders? Warum? Form fügt sich gut in Grundstück ein, Wohnen ist etwas separiert, Küche und Esstisch als zentrales Element
Was gefällt nicht? Warum? Passt die Treppe? Ist der Eingang großzügig genug? Kann man die privaten Räume im EG so anordnen?
favorisierte Heiztechnik: Wärmepumpe
Warum ist der Entwurf so geworden, wie er jetzt ist?
Wir empfinden das Grundstück als relativ schmal. Normalerweise würde sich vom Hausgrundriss ein Rechteck anbieten, das die volle Breite des Grundstückes ausnutzt. Dann verbaut man sich aber die Sahneseite (Süden). Der Grundriss ist nach 'Form follows function' entstanden und gefällt uns mittlerweile richtig gut (ich meine damit die L-Form und nicht zwangsläufig die einzelne Raumaufteilung). Interessant ist die Idee, die beiden Schenkel im OG nicht mit Walmdach zu realisieren, sondern mittels Flachdach ggf. eine Dachterrasse (oder zwei) einzurichten.
Der ursprüngliche Wunsch war ein Bungalow. Wir haben aber eingesehen, das dieser in der Grundfläche zu viel Platz verschlingt. Ein guter Kompromiss für uns ist unser Schlafzimmer + Masterbad im EG zu haben und Kinderzimmer + Büro oben.
Was ist die wichtigste/grundlegende Frage zum Grundriss in 130 Zeichen zusammengefasst?
Gibt es grundlegende Planungsfehler, die wir bisher übersehen haben?
Y
Ypsi aus NI22.03.20 23:14Ach so, noch zu erwähnen: Wir mögen die nicht klassische Grundrissform sehr gerne. Insbesondere die abgeschrägten Ecken gefallen uns sehr gut. Aktuell leben wir auch in einem Haus, in dem viele Wände schräg stehen und wir finden es auch noch nach 8 Jahren klasse.
OG Raum 1 / 3 / 4 widmen sich sämtlich Kindern, die erst noch geplant sind ? - und der Anderthalbgeschosser soll rein durch "Anbauten" im EG erreicht werden ?
https://www.instagram.com/11antgmxde/
https://www.linkedin.com/company/bauen-jetzt/
https://www.instagram.com/11antgmxde/
https://www.linkedin.com/company/bauen-jetzt/
Hallo !
Was für ein Kniestock mit was für einem Walmdach ist denn angedacht? Und wo wäre Die Doppelgarage? Was ist die zweite graue Fläche?
Kannst Du bitte mal den Lageplan mit Haus und Einfahrt kennzeichnen und skizzieren? Danke.
Und dann noch? Was ist denn das Budget nur für das Haus?
Was für ein Kniestock mit was für einem Walmdach ist denn angedacht? Und wo wäre Die Doppelgarage? Was ist die zweite graue Fläche?
Kannst Du bitte mal den Lageplan mit Haus und Einfahrt kennzeichnen und skizzieren? Danke.
Und dann noch? Was ist denn das Budget nur für das Haus?
P
Pinky030123.03.20 06:20Was mir direkt auffällt: Der Elternbereich beginnt mit dem Schlafzimmer, sodass es unmöglich ist, in Ruhe weiterzuschlafen, wenn der Partner früher aufsteht oder andersrum beim Einschlafen.
Dass das Bett direkt neben dem Esstisch steht, ist lärmtechnisch vermutlich auch nicht optimal.
Dass das Bett direkt neben dem Esstisch steht, ist lärmtechnisch vermutlich auch nicht optimal.
Badezimmer und Ankleide nur durch das Schlafzimmer erreichbar, finde ich nicht optimal. Und dann auch noch direkt am Wohnzimmer.
Wenn Kinder da sind, wird das lustig. Falls sich einer der Elternteile dann tagsüber mal ausruhen oder länger schlafen möchte, ist das quasi nicht möglich, da es im Nebenzimmer immer laut sein wird. Gleiches gilt natürlich, wenn einer früher ins Bett möchte.
Ich verstehe übrigens immer noch nicht, warum man sich freiwillig drei Bäder baut, die müssen doch alle auch geputzt werden...
Wenn Kinder da sind, wird das lustig. Falls sich einer der Elternteile dann tagsüber mal ausruhen oder länger schlafen möchte, ist das quasi nicht möglich, da es im Nebenzimmer immer laut sein wird. Gleiches gilt natürlich, wenn einer früher ins Bett möchte.
Ich verstehe übrigens immer noch nicht, warum man sich freiwillig drei Bäder baut, die müssen doch alle auch geputzt werden...
Ähnliche Themen